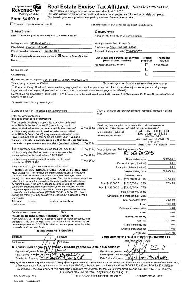
Property
Account |
| Property ID: | 381973 | Abbreviated Legal Description: | SCENIC HTS 1 LOT 6 EX: BG NWCR LOT 6 S31*W ALG COM BOUNDARY LN BETW SD LOT 6 & LOT 5 SD PLAT 177.39' TO SWLY MST CR SD LOT 6 SELY ALG CUR/R 16.04' N26*E179.61' TPB TGW PT LOT 7 SD PLAT DESC: BG NWCR SD LOT 7 N66*E ALG NLY LN SD LOT 7 173.29 TO NECR S |
| Geographic ID: | S8115-00-00006-0 | Agent Code: | |
| Type: | Real | | |
| Tax Area: | 110 - APPRAISER-OH Schl Dist, outside OH, improved & 1 acre or less | Land Use Code | 11 |
| Open Space: | N | DFL | N |
| Historic Property: | N | Remodel Property: | N |
| Multi-Family Redevelopment: | N | | |
| Township: | | Section: | |
| Range: | |
Location |
| Address: | 1270 CANTERBURY LN OAK HARBOR, WA 98277 | Mapsco: | |
| Neighborhood: | Cycle 1 | Map ID: | 122 |
| Neighborhood CD: | 1 |
Owner |
| Name: | CALLIES, RAENELL M | Owner ID: | 79779 |
| Mailing Address: | DANIEL R CALLIES 1270 CANTERBURY LN OAK HARBOR, WA 98277 | % Ownership: | 100.0000000000% |
| | | Exemptions: | |
Taxes and Assessment Details
Values
| (+) Improvement Homesite Value: | + | $0 | |
| (+) Improvement Non-Homesite Value: | + | $680,953 | |
| (+) Land Homesite Value: | + | $0 | |
| (+) Land Non-Homesite Value: | + | $300,000 | |
| (+) Curr Use (HS): | + | $0 | $0 |
| (+) Curr Use (NHS): | + | $0 | $0 |
| | | -------------------------- | |
| (=) Market Value: | = | $980,953 | |
| (–) Productivity Loss: | – | $0 | |
| | | -------------------------- | |
| (=) Subtotal: | = | $980,953 | |
| (+) Senior Appraised Value: | + | $0 | |
| (+) Non-Senior Appraised Value: | + | $980,953 | |
| | | -------------------------- | |
| (=) Total Appraised Value: | = | $980,953 | |
| (–) Senior Exemption Loss: | – | $0 | |
| (–) Exemption Loss: | – | $0 | |
| | | -------------------------- | |
| (=) Taxable Value: | = | $980,953 | |
Taxing Jurisdiction
| Owner: | CALLIES, RAENELL M | | |
| % Ownership: | 100.0000000000% | | |
| Total Value: | $980,953 | | |
| Tax Area: | 110 - APPRAISER-OH Schl Dist, outside OH, improved & 1 acre or less |
| CF | Conservation Futures | 0.0316035091 | $980,953 | $980,953 | $31.00 | | |
| CEM1 | Cemetery #1 | 0.0040320932 | $980,953 | $980,953 | $3.96 | | |
| FIRE2 | Fire & Rescue Dist #2 N Whidbey GEN | 0.5475949600 | $980,953 | $980,953 | $537.16 | | |
| HOBOND | Hospital BOND | 0.1910887512 | $980,953 | $980,953 | $187.45 | | |
| HOGEN | Hospital GEN | 0.3902502903 | $980,953 | $980,953 | $382.82 | | |
| CE | County Current Expense | 0.3708482477 | $980,953 | $980,953 | $363.78 | | |
| CR | County Roads | 0.4584763726 | $980,953 | $980,953 | $449.74 | | |
| ISLANDEMS | Hospital GEN (EMS) | 0.5000000000 | $980,953 | $980,953 | $490.48 | | |
| LIB | Library Sno-Isle GEN | 0.3153421757 | $980,953 | $980,953 | $309.34 | | |
| NWHIDPRMT | P & R N Whidbey GEN | 0.2004466701 | $980,953 | $980,953 | $196.63 | | |
| SCH201MO | School 201 Enrichment | 1.8559231640 | $980,953 | $980,953 | $1,820.57 | | |
| ST | State School | 1.3035497053 | $980,953 | $980,953 | $1,278.72 | | |
| ST2 | State School Part 2 | 0.8169543533 | $980,953 | $980,953 | $801.39 | | |
| | Total Tax Rate: | 6.9861102925 | | | | | |
| | | | | Taxes w/Current Exemptions: | $6,853.04 | | |
| | | | | Taxes w/o Exemptions: | $6,853.04 | | |
Improvement / Building
| Improvement #1: | RESIDENTIAL | State Code: | Y | 4046.0 sqft | Value: | $680,953 |
| Bathrooms: | 2.5 | Bedrooms: | 3 | | Ceiling: | DRYWALL PAINTED | Cooling: | HEAT PUMP/CONV/V | | Exterior Wall/Cover: | CEMENT FIBER | Floor Covering: | CARPET/VINYL 60-40 | | Floor Structure: | WOOD W/SUBFLOOR | Foundation: | CONCRETE | | Interior Finish: | DRYWALL PAINT | Plumbing Fixture Cnt: | 14 | | Roof Slope: | 4" IN 12" | Roof Structure/Cover: | CJ ASPHALT |
|
| | Type | Description | Class CD | Sub Class CD | Year Built | Area |
| | BAS | BASE/MAIN FLOOR | 4 | 0 | 2009 | 2535.5 |
| | UB8 | BASEMENT UNFINISHED 8" | 4 | 0 | 2009 | 997.0 |
| | OP3 | OPEN PORCH W/ROOF | 4 | 0 | 2009 | 72.0 |
| | AGR | ATTACHED GARAGE | 4 | 0 | 2009 | 712.1 |
| | OWP | OPEN WOOD PORCH W/STEPS | 4 | 0 | 2009 | 484.9 |
| | OWP | OPEN WOOD PORCH W/STEPS | 4 | 0 | 2009 | 56.0 |
| | OWC | OPEN WOOD PORCH W/STEPS/ROOF/C | 4 | 0 | 2009 | 32.0 |
| | DWN | DOWNSTAIRS LIVING AREA | 4 | 0 | 2009 | 1510.5 |
| | OP1 | OPEN PORCH SLAB | 4 | 0 | 2009 | 432.6 |
Sketch
Property Image
Land
| 1 | 16 | AC (00.51-01.00) | 0.0000 | 0.00 | 0.00 | 0.00 | 1.00 | $300,000 | $0 |
Roll Value History
| 2026 | N/A | N/A | N/A | N/A | N/A |
| 2025 | $680,953 | $300,000 | $0 | $980,953 | $980,953 |
| 2024 | $688,759 | $280,000 | $0 | $968,759 | $968,759 |
| 2023 | $673,150 | $250,000 | $0 | $923,150 | $923,150 |
| 2022 | $654,144 | $250,000 | $0 | $904,144 | $904,144 |
| 2021 | $575,347 | $115,000 | $0 | $690,347 | $690,347 |
| 2020 | $562,041 | $115,000 | $0 | $677,041 | $677,041 |
| 2019 | $468,765 | $200,000 | $0 | $668,765 | $668,765 |
| 2018 | $470,064 | $180,000 | $0 | $650,064 | $650,064 |
| 2017 | $476,281 | $120,000 | $0 | $596,281 | $596,281 |
| 2016 | $481,515 | $125,000 | $0 | $606,515 | $606,515 |
| 2015 | $486,747 | $120,000 | $0 | $606,747 | $606,747 |
| 2014 | $491,981 | $120,000 | $0 | $611,981 | $611,981 |
| 2013 | $497,217 | $110,000 | $0 | $607,217 | $607,217 |
| 2012 | $502,451 | $114,750 | $0 | $617,201 | $617,201 |
| 2011 | $512,500 | $135,000 | $0 | $647,500 | $647,500 |
| 2010 | $595,436 | $74,750 | $0 | $670,186 | $670,186 |
| 2009 | $0 | $85,000 | $0 | $85,000 | $85,000 |
| 2008 | $0 | $159,500 | $0 | $159,500 | $159,500 |
| 2007 | $0 | $16,650 | $0 | $16,650 | $16,650 |
Deed and Sales History
| 1 | 04/15/2021 | CPADC | Comm Prop Agmnt & Death Cert | JAYSON DAVID ROGER CALLIES, PR | JAYSON DAVID ROGER CALLIES, PR | | | $0.00 | 63954 | 4587468 |
| 2 | 12/12/2012 | QCD | Quit Claim Deed | CALLIES, RAENELL M | CALLIES, RAENELL M | | | $3,000.00 | 9742 | 4329128 |
| 3 | 09/21/2009 | QCD | Quit Claim Deed | CALLIES, RENEE M | CALLIES, RAENELL M | | | $0.00 | 92227 | 4260458 |
| 4 | 12/16/2003 | BLA | DNU - Boundary Line Adjustment | RYAN, THOMAS E | RYAN, THOMAS E | | | $0.00 | 70106 | 4063774 |
| 5 | 02/05/2003 | WD | Warranty Deed | RYAN, THOMAS E | CALLIES, RENEE M | | | $7,000.00 | 30648 | 4048156 |
| 6 | 10/01/1981 | WD | Warranty Deed | MURPHY, TIMOTHY J | RYAN, THOMAS E | | | $10,500.00 | 13288 | 389270 |
| 7 | 01/01/1900 | OTHER | Other - Misc. Documents | Unknown | MURPHY, TIMOTHY J | | | $0.00 | 0 | 0 |
Payout Agreement
| No payout information available.. |