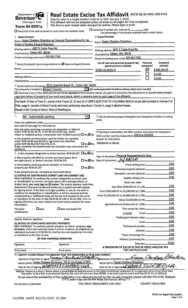
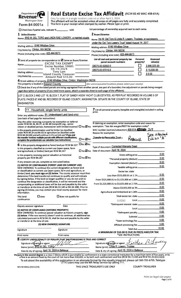
Property
Account |
| Property ID: | 382017 | Abbreviated Legal Description: | SCENIC HTS 1 LOT 10 |
| Geographic ID: | S8115-00-00010-0 | Agent Code: | |
| Type: | Real | | |
| Tax Area: | 119 - APPRAISER-OH Schl Dist, outside OH, vacant & 50 acres or less | Land Use Code | 99 |
| Open Space: | N | DFL | N |
| Historic Property: | N | Remodel Property: | N |
| Multi-Family Redevelopment: | N | | |
| Township: | | Section: | |
| Range: | |
Location |
| Address: | | Mapsco: | |
| Neighborhood: | Cycle 1 | Map ID: | 122 |
| Neighborhood CD: | 1 |
Owner |
| Name: | MUELLER, KAREN | Owner ID: | 295983 |
| Mailing Address: | SHAWN RILEY 1262 CANTERBURY LN OAK HARBOR, WA 98277 | % Ownership: | 100.0000000000% |
| | | Exemptions: | |
Taxes and Assessment Details
Values
| (+) Improvement Homesite Value: | + | $0 | |
| (+) Improvement Non-Homesite Value: | + | $0 | |
| (+) Land Homesite Value: | + | $0 | |
| (+) Land Non-Homesite Value: | + | $140,000 | |
| (+) Curr Use (HS): | + | $0 | $0 |
| (+) Curr Use (NHS): | + | $0 | $0 |
| | | -------------------------- | |
| (=) Market Value: | = | $140,000 | |
| (–) Productivity Loss: | – | $0 | |
| | | -------------------------- | |
| (=) Subtotal: | = | $140,000 | |
| (+) Senior Appraised Value: | + | $0 | |
| (+) Non-Senior Appraised Value: | + | $140,000 | |
| | | -------------------------- | |
| (=) Total Appraised Value: | = | $140,000 | |
| (–) Senior Exemption Loss: | – | $0 | |
| (–) Exemption Loss: | – | $0 | |
| | | -------------------------- | |
| (=) Taxable Value: | = | $140,000 | |
Taxing Jurisdiction
| Owner: | MUELLER, KAREN | | |
| % Ownership: | 100.0000000000% | | |
| Total Value: | $140,000 | | |
| Tax Area: | 119 - APPRAISER-OH Schl Dist, outside OH, vacant & 50 acres or less |
| CF | Conservation Futures | 0.0316035091 | $140,000 | $140,000 | $4.42 | | |
| CEM1 | Cemetery #1 | 0.0040320932 | $140,000 | $140,000 | $0.56 | | |
| HOBOND | Hospital BOND | 0.1910887512 | $140,000 | $140,000 | $26.75 | | |
| HOGEN | Hospital GEN | 0.3902502903 | $140,000 | $140,000 | $54.64 | | |
| CE | County Current Expense | 0.3708482477 | $140,000 | $140,000 | $51.92 | | |
| CR | County Roads | 0.4584763726 | $140,000 | $140,000 | $64.19 | | |
| ISLANDEMS | Hospital GEN (EMS) | 0.5000000000 | $140,000 | $140,000 | $70.00 | | |
| LIB | Library Sno-Isle GEN | 0.3153421757 | $140,000 | $140,000 | $44.15 | | |
| NWHIDPRMT | P & R N Whidbey GEN | 0.2004466701 | $140,000 | $140,000 | $28.06 | | |
| SCH201MO | School 201 Enrichment | 1.8559231640 | $140,000 | $140,000 | $259.83 | | |
| ST | State School | 1.3035497053 | $140,000 | $140,000 | $182.50 | | |
| ST2 | State School Part 2 | 0.8169543533 | $140,000 | $140,000 | $114.37 | | |
| | Total Tax Rate: | 6.4385153325 | | | | | |
| | | | | Taxes w/Current Exemptions: | $901.39 | | |
| | | | | Taxes w/o Exemptions: | $901.39 | | |
Improvement / Building
Sketch
| No sketches available for this property. |
Property Image
Land
| 1 | 15 | SQ (12001-21780) | 0.0000 | 0.00 | 0.00 | 0.00 | 1.00 | $140,000 | $0 |
Roll Value History
| 2026 | N/A | N/A | N/A | N/A | N/A |
| 2025 | $0 | $140,000 | $0 | $140,000 | $140,000 |
| 2024 | $0 | $140,000 | $0 | $140,000 | $140,000 |
| 2023 | $0 | $130,000 | $0 | $130,000 | $130,000 |
| 2022 | $0 | $120,000 | $0 | $120,000 | $120,000 |
| 2021 | $0 | $100,000 | $0 | $100,000 | $100,000 |
| 2020 | $0 | $7,000 | $0 | $7,000 | $7,000 |
| 2019 | $0 | $7,000 | $0 | $7,000 | $7,000 |
| 2018 | $0 | $7,000 | $0 | $7,000 | $7,000 |
| 2017 | $0 | $10,000 | $0 | $10,000 | $10,000 |
| 2016 | $0 | $10,000 | $0 | $10,000 | $10,000 |
| 2015 | $0 | $10,000 | $0 | $10,000 | $10,000 |
| 2014 | $0 | $10,000 | $0 | $10,000 | $10,000 |
| 2013 | $0 | $12,500 | $0 | $12,500 | $12,500 |
| 2012 | $0 | $12,500 | $0 | $12,500 | $12,500 |
| 2011 | $0 | $12,500 | $0 | $12,500 | $12,500 |
| 2010 | $0 | $12,500 | $0 | $12,500 | $12,500 |
| 2009 | $0 | $16,000 | $0 | $16,000 | $16,000 |
| 2008 | $0 | $137,750 | $0 | $137,750 | $137,750 |
| 2007 | $0 | $137,750 | $0 | $137,750 | $137,750 |
Deed and Sales History
| 1 | 09/03/2020 | WD | Warranty Deed | WOOD, HAROLD W | MUELLER, KAREN | | | $95,000.00 | 44615 | 4495812 |
| 2 | 02/15/2018 | QCD | Quit Claim Deed | WOOD TRUSTEE, REGINALD H | WOOD, HAROLD W | | | $0.00 | 32965 | 4439310 |
| 3 | 02/01/1992 | QCD | Quit Claim Deed | WOOD, REGINALD H | WOOD, REGINALD H | | | $0.00 | 21735 | 92008260 |
| 4 | 06/01/1990 | QCD | Quit Claim Deed | WOOD, REGINALD H | WOOD, REGINALD H | | | $5,000.00 | 4404 | 90014528 |
| 5 | 08/01/1979 | REC | Real Estate Contract | SOMERS, LESTER I | WOOD, REGINALD H | | | $10,110.00 | 94031 | 357405 |
| 6 | 01/01/1900 | OTHER | Other - Misc. Documents | Unknown | SOMERS, LESTER I | | | $0.00 | 0 | 0 |
Payout Agreement
| No payout information available.. |