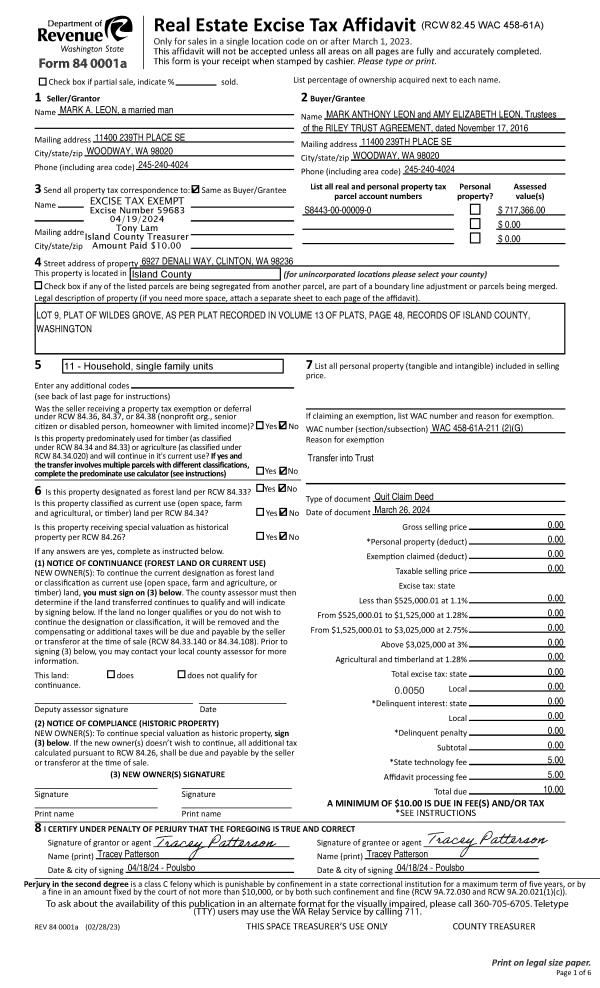
Property
Account |
| Property ID: | 382213 | Abbreviated Legal Description: | SCENIC HTS 1 LOT 30 |
| Geographic ID: | S8115-00-00030-0 | Agent Code: | |
| Type: | Real | | |
| Tax Area: | 110 - APPRAISER-OH Schl Dist, outside OH, improved & 1 acre or less | Land Use Code | 11 |
| Open Space: | N | DFL | N |
| Historic Property: | N | Remodel Property: | N |
| Multi-Family Redevelopment: | N | | |
| Township: | | Section: | |
| Range: | |
Location |
| Address: | 1251 DUPONT PLACE OAK HARBOR, WA 98277 | Mapsco: | |
| Neighborhood: | Cycle 1 | Map ID: | 122 |
| Neighborhood CD: | 1 |
Owner |
| Name: | SIMMONDS, LINDA S | Owner ID: | 305369 |
| Mailing Address: | 1251 N RAINER LN OAK HARBOR, WA 98277 | % Ownership: | 100.0000000000% |
| | | Exemptions: | SNR/DSBL |
Taxes and Assessment Details
Values
| (+) Improvement Homesite Value: | + | $280,798 | |
| (+) Improvement Non-Homesite Value: | + | $0 | |
| (+) Land Homesite Value: | + | $300,000 | |
| (+) Land Non-Homesite Value: | + | $0 | |
| (+) Curr Use (HS): | + | $0 | $0 |
| (+) Curr Use (NHS): | + | $0 | $0 |
| | | -------------------------- | |
| (=) Market Value: | = | $580,798 | |
| (–) Productivity Loss: | – | $0 | |
| | | -------------------------- | |
| (=) Subtotal: | = | $580,798 | |
| (+) Senior Appraised Value: | + | $463,251 | |
| (+) Non-Senior Appraised Value: | + | $0 | |
| | | -------------------------- | |
| (=) Total Appraised Value: | = | $463,251 | |
| (–) Senior Exemption Loss: | – | $277,951 | |
| (–) Exemption Loss: | – | $0 | |
| | | -------------------------- | |
| (=) Taxable Value: | = | $185,300 | |
Taxing Jurisdiction
| Owner: | SIMMONDS, LINDA S | | |
| % Ownership: | 100.0000000000% | | |
| Total Value: | $580,798 | | |
| Tax Area: | 110 - APPRAISER-OH Schl Dist, outside OH, improved & 1 acre or less |
| CF | Conservation Futures | 0.0316035091 | $580,798 | $185,300 | $5.86 | | |
| CEM1 | Cemetery #1 | 0.0040320932 | $580,798 | $185,300 | $0.75 | | |
| FIRE2 | Fire & Rescue Dist #2 N Whidbey GEN | 0.5475949600 | $580,798 | $185,300 | $101.47 | | |
| HOBOND | Hospital BOND | 0.0000000000 | $580,798 | $0 | $0.00 | | |
| HOGEN | Hospital GEN | 0.3902502903 | $580,798 | $185,300 | $72.31 | | |
| CE | County Current Expense | 0.3708482477 | $580,798 | $185,300 | $68.72 | | |
| CR | County Roads | 0.4584763726 | $580,798 | $185,300 | $84.96 | | |
| ISLANDEMS | Hospital GEN (EMS) | 0.5000000000 | $580,798 | $185,300 | $92.65 | | |
| LIB | Library Sno-Isle GEN | 0.3153421757 | $580,798 | $185,300 | $58.43 | | |
| NWHIDPRMT | P & R N Whidbey GEN | 0.2004466701 | $580,798 | $185,300 | $37.14 | | |
| SCH201MO | School 201 Enrichment | 0.0000000000 | $580,798 | $0 | $0.00 | | |
| ST | State School | 1.3035497053 | $580,798 | $185,300 | $241.55 | | |
| ST2 | State School Part 2 | 0.0000000000 | $580,798 | $0 | $0.00 | | |
| | Total Tax Rate: | 4.1221440240 | | | | | |
| | | | | Taxes w/Current Exemptions: | $763.84 | | |
| | | | | Taxes w/o Exemptions: | $4,057.53 | | |
Improvement / Building
| Improvement #1: | RESIDENTIAL | State Code: | Y | 1760.0 sqft | Value: | $280,798 |
| Bathrooms: | 1.75 | Bedrooms: | 2 | | Ceiling: | DRY WALL SPRAYED | Exterior Wall/Cover: | PLY/HARDBOARD T-111 | | Floor Covering: | CARPET/VINYL 80-20 | Floor Structure: | WOOD W/SUBFLOOR | | Foundation: | CONCRETE BLOCKS | Heating: | FHA OIL | | Interior Finish: | DRYWALL PAINT | Plumbing Fixture Cnt: | 9 | | Roof Slope: | 4" IN 12" | Roof Structure/Cover: | CJ ASPHALT |
|
| | Type | Description | Class CD | Sub Class CD | Year Built | Area |
| | BAS | BASE/MAIN FLOOR | 3 | 0 | 1969 | 1760.0 |
| | AGR | ATTACHED GARAGE | 3 | 0 | 1969 | 528.0 |
| | OWP | OPEN WOOD PORCH W/STEPS | 3 | 0 | 1969 | 162.0 |
| | ENP | ENCLOSED PORCH | 3 | 0 | 1969 | 168.0 |
| | DGR | DETACHED GARAGE | 3 | 0 | 1969 | 520.0 |
Sketch
Property Image
Land
| 1 | 15 | SQ (12001-21780) | 0.0000 | 0.00 | 0.00 | 0.00 | 1.00 | $300,000 | $0 |
Roll Value History
| 2026 | N/A | N/A | N/A | N/A | N/A |
| 2025 | $280,798 | $300,000 | $0 | $580,798 | $185,300 |
| 2024 | $284,851 | $280,000 | $0 | $564,851 | $185,300 |
| 2023 | $264,578 | $240,000 | $0 | $504,578 | $185,300 |
| 2022 | $243,251 | $220,000 | $0 | $463,251 | $463,251 |
| 2021 | $214,712 | $140,000 | $0 | $354,712 | $142,530 |
| 2020 | $209,994 | $115,000 | $0 | $324,994 | $142,038 |
| 2019 | $156,184 | $200,000 | $0 | $356,184 | $136,486 |
| 2018 | $156,749 | $160,000 | $0 | $316,749 | $136,403 |
| 2017 | $151,725 | $150,000 | $0 | $301,725 | $231,725 |
| 2016 | $153,816 | $120,000 | $0 | $273,816 | $203,816 |
| 2015 | $155,904 | $120,000 | $0 | $275,904 | $205,904 |
| 2014 | $157,994 | $120,000 | $0 | $277,994 | $277,994 |
| 2013 | $160,084 | $123,250 | $0 | $283,334 | $213,334 |
| 2012 | $162,173 | $123,250 | $0 | $285,423 | $215,423 |
| 2011 | $174,462 | $145,000 | $0 | $319,462 | $249,462 |
| 2010 | $186,586 | $145,000 | $0 | $331,586 | $331,586 |
| 2009 | $194,061 | $145,000 | $0 | $339,061 | $339,061 |
| 2008 | $196,753 | $208,800 | $0 | $405,553 | $405,553 |
| 2007 | $199,444 | $208,800 | $0 | $408,244 | $408,244 |
Deed and Sales History
| 1 | 07/16/2019 | TOD | Transfer On Death Deed | SIMMONDS, BARBARA | SIMMONDS, LINDA S | | | $0.00 | 54062 | 4467515 |
| 2 | 09/29/2011 | CPADC | Comm Prop Agmnt & Death Cert | SIMMONDS, THOMAS O / BARBARA | SIMMONDS, BARBARA | | | | 82156 | |
| 3 | 03/01/1995 | WD | Warranty Deed | EARLS, RICHARD K | SIMMONDS, THOMAS O | | | $194,750.00 | 51076 | 95005108 |
| 4 | 09/01/1992 | QCD | Quit Claim Deed | EARLS, RICHARD K | EARLS, RICHARD K | | | $0.00 | 23859 | 92018703 |
| 5 | 08/01/1987 | DECREE | Divorce Decree/Legal Separation | EARLS, RICHARD K | EARLS, RICHARD K | | | $0.00 | 73075 | 87013584 |
| 6 | 06/01/1985 | WD | Warranty Deed | DEPPMAN, DOROTHY A | EARLS, RICHARD K | | | $80,000.00 | 51470 | 85005954 |
| 7 | 05/01/1985 | OTHER | Other - Misc. Documents | DEPPMAN, LEWIS | DEPPMAN, DOROTHY A | | | $0.00 | 61159 | 0 |
| 8 | 03/01/1979 | WD | Warranty Deed | Unknown | DEPPMAN, LEWIS | | | $76,000.00 | 91530 | 350295 |
Payout Agreement
| No payout information available.. |