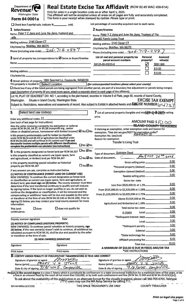
Property
Account |
| Property ID: | 382222 | Abbreviated Legal Description: | SCENIC HTS 1 LOT 31 |
| Geographic ID: | S8115-00-00031-0 | Agent Code: | |
| Type: | Real | | |
| Tax Area: | 110 - APPRAISER-OH Schl Dist, outside OH, improved & 1 acre or less | Land Use Code | 11 |
| Open Space: | N | DFL | N |
| Historic Property: | N | Remodel Property: | N |
| Multi-Family Redevelopment: | N | | |
| Township: | | Section: | |
| Range: | |
Location |
| Address: | 1252 CANTERBURY LN OAK HARBOR, WA 98277 | Mapsco: | |
| Neighborhood: | Cycle 1 | Map ID: | 122 |
| Neighborhood CD: | 1 |
Owner |
| Name: | MILLER, MELISSA A | Owner ID: | 316740 |
| Mailing Address: | COLLEEN S STUEVE 1252 CANTERBURY LN OAK HARBOR, WA 98277 | % Ownership: | 100.0000000000% |
| | | Exemptions: | |
Taxes and Assessment Details
Values
| (+) Improvement Homesite Value: | + | $0 | |
| (+) Improvement Non-Homesite Value: | + | $455,647 | |
| (+) Land Homesite Value: | + | $0 | |
| (+) Land Non-Homesite Value: | + | $300,000 | |
| (+) Curr Use (HS): | + | $0 | $0 |
| (+) Curr Use (NHS): | + | $0 | $0 |
| | | -------------------------- | |
| (=) Market Value: | = | $755,647 | |
| (–) Productivity Loss: | – | $0 | |
| | | -------------------------- | |
| (=) Subtotal: | = | $755,647 | |
| (+) Senior Appraised Value: | + | $0 | |
| (+) Non-Senior Appraised Value: | + | $755,647 | |
| | | -------------------------- | |
| (=) Total Appraised Value: | = | $755,647 | |
| (–) Senior Exemption Loss: | – | $0 | |
| (–) Exemption Loss: | – | $0 | |
| | | -------------------------- | |
| (=) Taxable Value: | = | $755,647 | |
Taxing Jurisdiction
| Owner: | MILLER, MELISSA A | | |
| % Ownership: | 100.0000000000% | | |
| Total Value: | $755,647 | | |
| Tax Area: | 110 - APPRAISER-OH Schl Dist, outside OH, improved & 1 acre or less |
| CF | Conservation Futures | 0.0316035091 | $755,647 | $755,647 | $23.88 | | |
| CEM1 | Cemetery #1 | 0.0040320932 | $755,647 | $755,647 | $3.05 | | |
| FIRE2 | Fire & Rescue Dist #2 N Whidbey GEN | 0.5475949600 | $755,647 | $755,647 | $413.79 | | |
| HOBOND | Hospital BOND | 0.1910887512 | $755,647 | $755,647 | $144.40 | | |
| HOGEN | Hospital GEN | 0.3902502903 | $755,647 | $755,647 | $294.89 | | |
| CE | County Current Expense | 0.3708482477 | $755,647 | $755,647 | $280.23 | | |
| CR | County Roads | 0.4584763726 | $755,647 | $755,647 | $346.45 | | |
| ISLANDEMS | Hospital GEN (EMS) | 0.5000000000 | $755,647 | $755,647 | $377.82 | | |
| LIB | Library Sno-Isle GEN | 0.3153421757 | $755,647 | $755,647 | $238.29 | | |
| NWHIDPRMT | P & R N Whidbey GEN | 0.2004466701 | $755,647 | $755,647 | $151.47 | | |
| SCH201MO | School 201 Enrichment | 1.8559231640 | $755,647 | $755,647 | $1,402.42 | | |
| ST | State School | 1.3035497053 | $755,647 | $755,647 | $985.02 | | |
| ST2 | State School Part 2 | 0.8169543533 | $755,647 | $755,647 | $617.33 | | |
| | Total Tax Rate: | 6.9861102925 | | | | | |
| | | | | Taxes w/Current Exemptions: | $5,279.04 | | |
| | | | | Taxes w/o Exemptions: | $5,279.04 | | |
Improvement / Building
| Improvement #1: | RESIDENTIAL | State Code: | Y | 2592.0 sqft | Value: | $455,647 |
| Bathrooms: | 3 | Bedrooms: | 4 | | Ceiling: | DRY WALL SPRAYED | Cooling: | HEAT PUMP/CONV/V | | Exterior Wall/Cover: | WOOD SIDING | Floor Covering: | VINYL 100% | | Floor Structure: | WOOD W/SUBFLOOR | Foundation: | CONCRETE | | Interior Finish: | DRYWALL PAINT | Plumbing Fixture Cnt: | 12 | | Roof Slope: | 4" IN 12" | Roof Structure/Cover: | CJ ASPHALT |
|
| | Type | Description | Class CD | Sub Class CD | Year Built | Area |
| | BAS | BASE/MAIN FLOOR | 3 | 0 | 1967 | 1682.0 |
| | UB8 | BASEMENT UNFINISHED 8" | 3 | 0 | 1967 | 780.0 |
| | AGR | ATTACHED GARAGE | 3 | 0 | 1967 | 440.0 |
| | OWP | OPEN WOOD PORCH W/STEPS | 3 | 0 | 1967 | 143.0 |
| | OWP | OPEN WOOD PORCH W/STEPS | 3 | 0 | 1967 | 711.0 |
| | DWN | DOWNSTAIRS LIVING AREA | 3 | 0 | 1967 | 910.0 |
| | OP1 | OPEN PORCH SLAB | 3 | 0 | 1967 | 526.0 |
Sketch
Property Image
Land
| 1 | 15 | SQ (12001-21780) | 0.0000 | 0.00 | 0.00 | 0.00 | 1.00 | $300,000 | $0 |
Roll Value History
| 2026 | N/A | N/A | N/A | N/A | N/A |
| 2025 | $455,647 | $300,000 | $0 | $755,647 | $755,647 |
| 2024 | $460,868 | $280,000 | $0 | $740,868 | $740,868 |
| 2023 | $466,092 | $250,000 | $0 | $716,092 | $716,092 |
| 2022 | $425,594 | $250,000 | $0 | $675,594 | $675,594 |
| 2021 | $373,348 | $115,000 | $0 | $488,348 | $488,348 |
| 2020 | $362,855 | $115,000 | $0 | $477,855 | $477,855 |
| 2019 | $285,706 | $200,000 | $0 | $485,706 | $485,706 |
| 2018 | $208,608 | $180,000 | $0 | $388,608 | $388,608 |
| 2017 | $145,725 | $150,000 | $0 | $295,725 | $295,725 |
| 2016 | $148,328 | $120,000 | $0 | $268,328 | $268,328 |
| 2015 | $150,930 | $120,000 | $0 | $270,930 | $270,930 |
| 2014 | $153,531 | $120,000 | $0 | $273,531 | $273,531 |
| 2013 | $156,133 | $110,000 | $0 | $266,133 | $266,133 |
| 2012 | $158,735 | $114,750 | $0 | $273,485 | $273,485 |
| 2011 | $162,003 | $135,000 | $0 | $297,003 | $297,003 |
| 2010 | $132,588 | $135,000 | $0 | $267,588 | $267,588 |
| 2009 | $139,110 | $120,000 | $0 | $259,110 | $259,110 |
| 2008 | $136,292 | $185,600 | $0 | $321,892 | $321,892 |
| 2007 | $138,868 | $185,600 | $0 | $324,468 | $324,468 |
Deed and Sales History
| 1 | 05/29/2025 | WD | Warranty Deed | HART, ROBIN M | MILLER, MELISSA A | | | $850,000.00 | 63646 | 4586488 |
| 2 | 09/05/2017 | WD | Warranty Deed | HANSINK, THEODORE J | HART, ROBIN M | | | $400,000.00 | 30973 | 4429662 |
| 3 | 04/20/2015 | CCOMPROP | Create Community Property | HOWZE, CATHERINE D | HANSINK, THEODORE J | | | $0.00 | 19328 | 4377336 |
| 4 | 12/01/1996 | DECREE | Divorce Decree/Legal Separation | MAYHEW, LANCE H | HOWZE, CATHERINE D | | | $0.00 | 70978 | 97004433 |
| 5 | 01/01/1900 | OTHER | Other - Misc. Documents | Unknown | MAYHEW, LANCE H | | | $0.00 | 0 | 0 |
Payout Agreement
| No payout information available.. |