Property
Account |
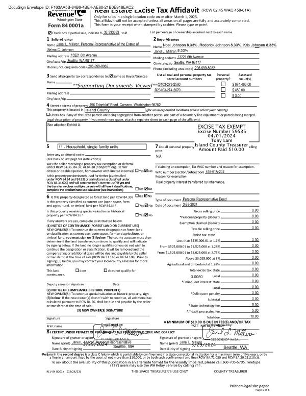
| Property ID: | 382758 | Abbreviated Legal Description: | SCENIC HILL W45.39' OF S130' OF LOT 8 & E37.96' OF S130' OF LOT 9 TGW PT ADJ VAC 650TH ST AF#91006303 ORD #880 |
| Geographic ID: | S8120-00-00008-3 | Agent Code: | |
| Type: | Real | | |
| Tax Area: | 100 - APPRAISER-OH Schl Dist, in OH | Land Use Code | 11 |
| Open Space: | N | DFL | N |
| Historic Property: | N | Remodel Property: | N |
| Multi-Family Redevelopment: | N | | |
| Township: | | Section: | |
| Range: | |
Location |
| Address: | 225 SE PASEK ST OAK HARBOR, WA 98277 | Mapsco: | |
| Neighborhood: | Cycle 1 | Map ID: | 257 |
| Neighborhood CD: | 1 |
Owner |
| Name: | DAVIS, ROGER S / TAE HWA | Owner ID: | 79849 |
| Mailing Address: | 5230 BERCOT RD FREELAND, WA 98249-9742 | % Ownership: | 100.0000000000% |
| | | Exemptions: | |
Taxes and Assessment Details
Values
| (+) Improvement Homesite Value: | + | $0 | |
| (+) Improvement Non-Homesite Value: | + | $234,297 | |
| (+) Land Homesite Value: | + | $0 | |
| (+) Land Non-Homesite Value: | + | $180,000 | |
| (+) Curr Use (HS): | + | $0 | $0 |
| (+) Curr Use (NHS): | + | $0 | $0 |
| | | -------------------------- | |
| (=) Market Value: | = | $414,297 | |
| (–) Productivity Loss: | – | $0 | |
| | | -------------------------- | |
| (=) Subtotal: | = | $414,297 | |
| (+) Senior Appraised Value: | + | $0 | |
| (+) Non-Senior Appraised Value: | + | $414,297 | |
| | | -------------------------- | |
| (=) Total Appraised Value: | = | $414,297 | |
| (–) Senior Exemption Loss: | – | $0 | |
| (–) Exemption Loss: | – | $0 | |
| | | -------------------------- | |
| (=) Taxable Value: | = | $414,297 | |
Taxing Jurisdiction
| Owner: | DAVIS, ROGER S / TAE HWA | | |
| % Ownership: | 100.0000000000% | | |
| Total Value: | $414,297 | | |
| Tax Area: | 100 - APPRAISER-OH Schl Dist, in OH |
| CF | Conservation Futures | 0.0316035091 | $414,297 | $414,297 | $13.09 | | |
| CEM1 | Cemetery #1 | 0.0040320932 | $414,297 | $414,297 | $1.67 | | |
| COH | City of Oak Harbor | 2.3001546061 | $414,297 | $414,297 | $952.95 | | |
| OAKBOND | City of Oak Harbor BOND | 0.1926904192 | $414,297 | $414,297 | $79.83 | | |
| HOBOND | Hospital BOND | 0.1910887512 | $414,297 | $414,297 | $79.17 | | |
| HOGEN | Hospital GEN | 0.3902502903 | $414,297 | $414,297 | $161.68 | | |
| CE | County Current Expense | 0.3708482477 | $414,297 | $414,297 | $153.64 | | |
| ISLANDEMS | Hospital GEN (EMS) | 0.5000000000 | $414,297 | $414,297 | $207.15 | | |
| LIB | Library Sno-Isle GEN | 0.3153421757 | $414,297 | $414,297 | $130.65 | | |
| NWHIDPRMT | P & R N Whidbey GEN | 0.2004466701 | $414,297 | $414,297 | $83.04 | | |
| SCH201MO | School 201 Enrichment | 1.8559231640 | $414,297 | $414,297 | $768.90 | | |
| ST | State School | 1.3035497053 | $414,297 | $414,297 | $540.06 | | |
| ST2 | State School Part 2 | 0.8169543533 | $414,297 | $414,297 | $338.46 | | |
| | Total Tax Rate: | 8.4728839852 | | | | | |
| | | | | Taxes w/Current Exemptions: | $3,510.29 | | |
| | | | | Taxes w/o Exemptions: | $3,510.29 | | |
Improvement / Building
| Improvement #1: | RESIDENTIAL | State Code: | Y | 1154.1 sqft | Value: | $234,297 |
| Bathrooms: | 1 | Bedrooms: | 2 | | Ceiling: | DRYWALL PAINTED | Exterior Wall/Cover: | CEMENT FIBER | | Floor Covering: | CARPET/VINYL 20-80 | Floor Structure: | WOOD W/SUBFLOOR | | Foundation: | CONCRETE | Heating: | FHA GAS | | Interior Finish: | DRYWALL PAINT | Plumbing Fixture Cnt: | 6 | | Roof Slope: | 4" IN 12" | Roof Structure/Cover: | CJ ASPHALT |
|
| | Type | Description | Class CD | Sub Class CD | Year Built | Area |
| | BAS | BASE/MAIN FLOOR | 3 | 0 | 1945 | 1154.1 |
| | UTY | STORAGE/UTILITY | 3 | 0 | 1945 | 200.0 |
| | DGR | DETACHED GARAGE | 3 | 0 | 2015 | 750.0 |
| | OP3 | OPEN PORCH W/ROOF | 3 | 0 | 1945 | 84.0 |
| | OP4 | OPEN PORCH W/CEILING-ROOF | 3 | 0 | 1945 | 26.0 |
Sketch
Property Image
Land
| 1 | 14 | SQ (08001-12000) | 0.0000 | 0.00 | 0.00 | 0.00 | 1.00 | $180,000 | $0 |
Roll Value History
| 2026 | N/A | N/A | N/A | N/A | N/A |
| 2025 | $234,297 | $180,000 | $0 | $414,297 | $414,297 |
| 2024 | $237,180 | $170,000 | $0 | $407,180 | $407,180 |
| 2023 | $201,088 | $170,000 | $0 | $371,088 | $371,088 |
| 2022 | $184,381 | $160,000 | $0 | $344,381 | $344,381 |
| 2021 | $162,337 | $125,000 | $0 | $287,337 | $287,337 |
| 2020 | $158,168 | $100,000 | $0 | $258,168 | $258,168 |
| 2019 | $112,132 | $140,000 | $0 | $252,132 | $252,132 |
| 2018 | $112,468 | $125,000 | $0 | $237,468 | $237,468 |
| 2017 | $96,034 | $110,000 | $0 | $206,034 | $206,034 |
| 2016 | $97,280 | $90,000 | $0 | $187,280 | $187,280 |
| 2015 | $98,528 | $70,000 | $0 | $168,528 | $168,528 |
| 2014 | $79,856 | $55,000 | $0 | $134,856 | $134,856 |
| 2013 | $69,361 | $55,000 | $0 | $124,361 | $124,361 |
| 2012 | $70,499 | $60,000 | $0 | $130,499 | $130,499 |
| 2011 | $57,816 | $90,000 | $0 | $147,816 | $147,816 |
| 2010 | $62,175 | $90,000 | $0 | $152,175 | $152,175 |
| 2009 | $65,256 | $104,000 | $0 | $169,256 | $169,256 |
| 2008 | $66,442 | $122,000 | $0 | $188,442 | $188,442 |
| 2007 | $67,640 | $114,550 | $0 | $182,190 | $182,190 |
Deed and Sales History
| 1 | 06/01/1995 | WD | Warranty Deed | BRIGGS, ALLYN D | DAVIS, ROGER S | | | $89,000.00 | 51995 | 95009319 |
| 2 | 06/01/1993 | OTHER | Other - Misc. Documents | BRIGGS, ALLYN D | BRIGGS, ALLYN D | | | $0.00 | 65385 | 91006303 |
| 3 | 05/01/1993 | QCD | Quit Claim Deed | BRIGGS, ALLYN D | BRIGGS, ALLYN D | | | $0.00 | 32326 | 93012033 |
| 4 | 05/01/1993 | QCD | Quit Claim Deed | BRIGGS, ALLYN D | BRIGGS, ALLYN D | | | $0.00 | 32327 | 93012034 |
| 5 | 08/01/1990 | WD | Warranty Deed | WILLIAMS, MICHAEL H | BRIGGS, ALLYN D | | | $61,500.00 | 4667 | 90015455 |
| 6 | 09/01/1987 | REC | Real Estate Contract | TENNY, EDNA M | WILLIAMS, MICHAEL H | | | $43,500.00 | 72724 | 87012295 |
| 7 | 03/01/1980 | REC | Real Estate Contract | DUTCHER, ALAN S | TENNY, EDNA M | | | $30,000.00 | 780 | 366035 |
| 8 | 08/01/1978 | OTHER | Other - Misc. Documents | Unknown | DUTCHER, ALAN S | | | $25,000.00 | 83682 | 337312 |
Payout Agreement
| No payout information available.. |