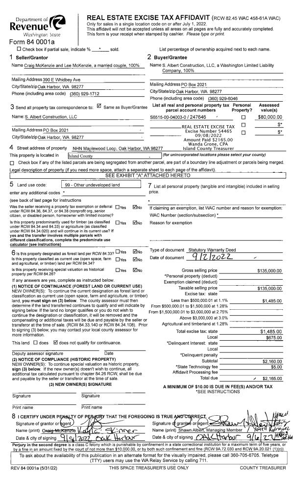
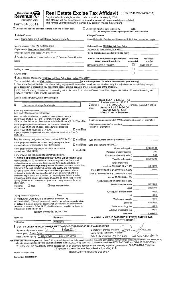
Property
Account |
| Property ID: | 383276 | Abbreviated Legal Description: | SEAHORSE SIESTA LOT 6 TGW PT GL1 SEC 33-30-3E DESC: BG NWCR SD LOT 6 S ALG WLN 83.08' TO SWCR S89*W6.04' N83.09' N89*E5.13' TPB |
| Geographic ID: | S8130-00-00006-0 | Agent Code: | |
| Type: | Real | | |
| Tax Area: | 710 - APPRAISER-S Whid Schl Dist, outside Langley, improved & 1 acre or less | Land Use Code | 11 |
| Open Space: | N | DFL | N |
| Historic Property: | N | Remodel Property: | N |
| Multi-Family Redevelopment: | N | | |
| Township: | | Section: | |
| Range: | |
Location |
| Address: | 3511 PRIMAVERA PLACE LANGLEY, WA 98260 | Mapsco: | |
| Neighborhood: | Cycle 4 | Map ID: | 910 |
| Neighborhood CD: | 4 |
Owner |
| Name: | PETERS, KYLE K | Owner ID: | 309026 |
| Mailing Address: | SUSAN E PETERS 4729 THORNWOOD LN LANGLEY, WA 98260 | % Ownership: | 100.0000000000% |
| | | Exemptions: | |
Taxes and Assessment Details
Values
| (+) Improvement Homesite Value: | + | $0 | |
| (+) Improvement Non-Homesite Value: | + | $518,024 | |
| (+) Land Homesite Value: | + | $0 | |
| (+) Land Non-Homesite Value: | + | $380,000 | |
| (+) Curr Use (HS): | + | $0 | $0 |
| (+) Curr Use (NHS): | + | $0 | $0 |
| | | -------------------------- | |
| (=) Market Value: | = | $898,024 | |
| (–) Productivity Loss: | – | $0 | |
| | | -------------------------- | |
| (=) Subtotal: | = | $898,024 | |
| (+) Senior Appraised Value: | + | $0 | |
| (+) Non-Senior Appraised Value: | + | $898,024 | |
| | | -------------------------- | |
| (=) Total Appraised Value: | = | $898,024 | |
| (–) Senior Exemption Loss: | – | $0 | |
| (–) Exemption Loss: | – | $0 | |
| | | -------------------------- | |
| (=) Taxable Value: | = | $898,024 | |
Taxing Jurisdiction
| Owner: | PETERS, KYLE K | | |
| % Ownership: | 100.0000000000% | | |
| Total Value: | $898,024 | | |
| Tax Area: | 710 - APPRAISER-S Whid Schl Dist, outside Langley, improved & 1 acre or less |
| CF | Conservation Futures | 0.0316035091 | $898,024 | $898,024 | $28.38 | | |
| FIRE3 | Fire & Rescue Dist #3 S Whidbey GEN | 1.2004855531 | $898,024 | $898,024 | $1,078.06 | | |
| HOBOND | Hospital BOND | 0.1910887512 | $898,024 | $898,024 | $171.60 | | |
| HOGEN | Hospital GEN | 0.3902502903 | $898,024 | $898,024 | $350.45 | | |
| CE | County Current Expense | 0.3708482477 | $898,024 | $898,024 | $333.03 | | |
| CR | County Roads | 0.4584763726 | $898,024 | $898,024 | $411.72 | | |
| ISLANDEMS | Hospital GEN (EMS) | 0.5000000000 | $898,024 | $898,024 | $449.01 | | |
| LIB | Library Sno-Isle GEN | 0.3153421757 | $898,024 | $898,024 | $283.18 | | |
| PORTWHID | Port of S Whidbey GEN | 0.1094540357 | $898,024 | $898,024 | $98.29 | | |
| SCH206BOND | School 206 BOND | 0.3161759235 | $898,024 | $898,024 | $283.93 | | |
| SCH206MO | School 206 Enrichment | 0.4547169547 | $898,024 | $898,024 | $408.35 | | |
| ST | State School | 1.3035497053 | $898,024 | $898,024 | $1,170.62 | | |
| ST2 | State School Part 2 | 0.8169543533 | $898,024 | $898,024 | $733.64 | | |
| SWHIDPRBD | P & R S Whidbey BOND | 0.0152817568 | $898,024 | $898,024 | $13.72 | | |
| SWHIDPRBD2 | P & R S Whidbey BOND2 | 0.0138911264 | $898,024 | $898,024 | $12.47 | | |
| SWHIDPRMT | P & R S Whidbey GEN | 0.2053334452 | $898,024 | $898,024 | $184.39 | | |
| | Total Tax Rate: | 6.6934522006 | | | | | |
| | | | | Taxes w/Current Exemptions: | $6,010.84 | | |
| | | | | Taxes w/o Exemptions: | $6,010.84 | | |
Improvement / Building
| Improvement #1: | RESIDENTIAL | State Code: | Y | 2087.0 sqft | Value: | $518,024 |
| Bathrooms: | 3 | Bedrooms: | 3 | | Ceiling: | DRYWALL PAINTED | Exterior Wall/Cover: | WOOD SIDING | | Floor Covering: | HARDWOOD/CARP 60-40 | Floor Structure: | WOOD W/SUBFLOOR | | Foundation: | CONCRETE | Heating: | FHA GAS | | Interior Finish: | DRYWALL PAINT | Plumbing Fixture Cnt: | 13 | | Roof Slope: | 6" IN 12" | Roof Structure/Cover: | CJ ASPHALT |
|
| | Type | Description | Class CD | Sub Class CD | Year Built | Area |
| | BAS | BASE/MAIN FLOOR | 4 | 0 | 1991 | 1091.0 |
| | AGR | ATTACHED GARAGE | 4 | 0 | 1991 | 289.0 |
| | UPS | UPPER STORY | 4 | 0 | 1991 | 996.0 |
| | OWP | OPEN WOOD PORCH W/STEPS | 4 | 0 | 1991 | 56.0 |
| | OWP | OPEN WOOD PORCH W/STEPS | 4 | 0 | 1991 | 42.0 |
| | OWP | OPEN WOOD PORCH W/STEPS | 4 | 0 | 1991 | 385.5 |
| | OWC | OPEN WOOD PORCH W/STEPS/ROOF/C | 4 | 0 | 1991 | 84.0 |
Sketch
Property Image
Land
| 1 | 12 | SQ (00000-06000) | 0.1800 | 7840.80 | 0.00 | 0.00 | 1.00 | $380,000 | $0 |
Roll Value History
| 2026 | N/A | N/A | N/A | N/A | N/A |
| 2025 | $518,024 | $380,000 | $0 | $898,024 | $898,024 |
| 2024 | $522,236 | $380,000 | $0 | $902,236 | $902,236 |
| 2023 | $481,460 | $380,000 | $0 | $861,460 | $861,460 |
| 2022 | $440,969 | $280,000 | $0 | $720,969 | $720,969 |
| 2021 | $304,355 | $250,000 | $0 | $554,355 | $554,355 |
| 2020 | $275,572 | $240,000 | $0 | $515,572 | $515,572 |
| 2019 | $207,286 | $275,000 | $0 | $482,286 | $482,286 |
| 2018 | $207,958 | $225,000 | $0 | $432,958 | $432,958 |
| 2017 | $209,299 | $200,000 | $0 | $409,299 | $409,299 |
| 2016 | $211,982 | $200,000 | $0 | $411,982 | $411,982 |
| 2015 | $214,666 | $120,000 | $0 | $334,666 | $334,666 |
| 2014 | $229,070 | $95,000 | $0 | $324,070 | $324,070 |
| 2013 | $231,956 | $95,000 | $0 | $326,956 | $326,956 |
| 2012 | $234,844 | $97,750 | $0 | $332,594 | $332,594 |
| 2011 | $237,733 | $115,000 | $0 | $352,733 | $352,733 |
| 2010 | $243,499 | $115,000 | $0 | $358,499 | $358,499 |
| 2009 | $253,902 | $115,000 | $0 | $368,902 | $368,902 |
| 2008 | $256,890 | $135,520 | $0 | $392,410 | $392,410 |
| 2007 | $259,930 | $135,520 | $0 | $395,450 | $395,450 |
Deed and Sales History
| 1 | 06/15/2023 | WD | Warranty Deed | GOHLKE, LINDA J | PETERS, KYLE K | | | $1,170,000.00 | 57056 | 4561290 |
| 2 | 11/29/2021 | WD | Warranty Deed | SHERMAN, BARRY W | GOHLKE, LINDA J | | | $857,000.00 | 51152 | 4534990 |
| 3 | 08/02/2010 | BLA | DNU - Boundary Line Adjustment | SHERMAN, BARRY W | SHERMAN, BARRY W | | | $0.00 | 81805 | 4263664 |
| 4 | 12/29/2009 | ESTSEPPROP | Establish Separate Property | SHERMAN, BARRY W | SHERMAN, BARRY W | | | $856.00 | 93205 | 4266262 |
| 5 | 09/12/2005 | WD | Warranty Deed | ATLANTIC AVENUE LLC, | SHERMAN, BARRY W | | | $469,000.00 | 54579 | 4147461 |
| 6 | 03/23/2001 | WD | Warranty Deed | STRONG-ROBERTS, GEORGE T | ATLANTIC AVENUE LLC, | | | $0.00 | 11291 | 2003000 |
| 7 | 03/01/1990 | WD | Warranty Deed | GESS, JERROLD P | STRONG-ROBERTS, GEORGE T | | | $11,000.00 | 1649 | 90005320 |
| 8 | 01/01/1900 | OTHER | Other - Misc. Documents | Unknown | GESS, JERROLD P | | | $0.00 | 0 | 0 |
Payout Agreement
| No payout information available.. |