Property
Account |
| Property ID: | 38328 | Abbreviated Legal Description: | 64 - NE NE SE NW - EX RD - (TR 4 UNREC DEL SAN JUAN ESTS) |
| Geographic ID: | R13327-367-2470 | Agent Code: | |
| Type: | Real | | |
| Tax Area: | 112 - APPRAISER-OH Schl Dist, outside OH, improved, greater than 1 acre | Land Use Code | 11 |
| Open Space: | N | DFL | N |
| Historic Property: | N | Remodel Property: | N |
| Multi-Family Redevelopment: | N | | |
| Township: | 33 | Section: | 27 |
| Range: | R1 |
Location |
| Address: | 1012 STAR FLOWER RD OAK HARBOR, WA 98277 | Mapsco: | |
| Neighborhood: | Cycle 6 | Map ID: | 236 |
| Neighborhood CD: | 6 |
Owner |
| Name: | ABIDES, JOHN | Owner ID: | 297688 |
| Mailing Address: | 1012 STAR FLOWER RD OAK HARBOR, WA 98277 | % Ownership: | 100.0000000000% |
| | | Exemptions: | |
Taxes and Assessment Details
Values
| (+) Improvement Homesite Value: | + | $0 | |
| (+) Improvement Non-Homesite Value: | + | $483,411 | |
| (+) Land Homesite Value: | + | $0 | |
| (+) Land Non-Homesite Value: | + | $250,000 | |
| (+) Curr Use (HS): | + | $0 | $0 |
| (+) Curr Use (NHS): | + | $0 | $0 |
| | | -------------------------- | |
| (=) Market Value: | = | $733,411 | |
| (–) Productivity Loss: | – | $0 | |
| | | -------------------------- | |
| (=) Subtotal: | = | $733,411 | |
| (+) Senior Appraised Value: | + | $0 | |
| (+) Non-Senior Appraised Value: | + | $733,411 | |
| | | -------------------------- | |
| (=) Total Appraised Value: | = | $733,411 | |
| (–) Senior Exemption Loss: | – | $0 | |
| (–) Exemption Loss: | – | $0 | |
| | | -------------------------- | |
| (=) Taxable Value: | = | $733,411 | |
Taxing Jurisdiction
| Owner: | ABIDES, JOHN | | |
| % Ownership: | 100.0000000000% | | |
| Total Value: | $733,411 | | |
| Tax Area: | 112 - APPRAISER-OH Schl Dist, outside OH, improved, greater than 1 acre |
| CF | Conservation Futures | 0.0316035091 | $733,411 | $733,411 | $23.18 | | |
| CEM1 | Cemetery #1 | 0.0040320932 | $733,411 | $733,411 | $2.96 | | |
| FIRE2 | Fire & Rescue Dist #2 N Whidbey GEN | 0.5475949600 | $733,411 | $733,411 | $401.61 | | |
| HOBOND | Hospital BOND | 0.1910887512 | $733,411 | $733,411 | $140.15 | | |
| HOGEN | Hospital GEN | 0.3902502903 | $733,411 | $733,411 | $286.21 | | |
| CE | County Current Expense | 0.3708482477 | $733,411 | $733,411 | $271.98 | | |
| CR | County Roads | 0.4584763726 | $733,411 | $733,411 | $336.25 | | |
| ISLANDEMS | Hospital GEN (EMS) | 0.5000000000 | $733,411 | $733,411 | $366.71 | | |
| LIB | Library Sno-Isle GEN | 0.3153421757 | $733,411 | $733,411 | $231.28 | | |
| NWHIDPRMT | P & R N Whidbey GEN | 0.2004466701 | $733,411 | $733,411 | $147.01 | | |
| SCH201MO | School 201 Enrichment | 1.8559231640 | $733,411 | $733,411 | $1,361.15 | | |
| ST | State School | 1.3035497053 | $733,411 | $733,411 | $956.04 | | |
| ST2 | State School Part 2 | 0.8169543533 | $733,411 | $733,411 | $599.16 | | |
| | Total Tax Rate: | 6.9861102925 | | | | | |
| | | | | Taxes w/Current Exemptions: | $5,123.69 | | |
| | | | | Taxes w/o Exemptions: | $5,123.69 | | |
Improvement / Building
| Improvement #1: | RESIDENTIAL | State Code: | Y | 2209.0 sqft | Value: | $483,411 |
| Bathrooms: | 2.5 | Bedrooms: | 4 | | Ceiling: | DRYWALL PAINTED | Cooling: | HEAT PUMP/CONV/V | | Exterior Wall/Cover: | CEMENT FIBER | Floor Covering: | CARPET/VINYL 80-20 | | Floor Structure: | WOOD W/SUBFLOOR | Foundation: | CONCRETE | | Interior Finish: | DRYWALL PAINT | Plumbing Fixture Cnt: | 12 | | Roof Slope: | 6" IN 12" | Roof Structure/Cover: | CJ ASPHALT |
|
| | Type | Description | Class CD | Sub Class CD | Year Built | Area |
| | BAS | BASE/MAIN FLOOR | 4 | 0 | 2022 | 1169.0 |
| | UPS | UPPER STORY | 4 | 0 | 2022 | 1040.0 |
| | AGR | ATTACHED GARAGE | 4 | 0 | 2022 | 656.0 |
| | OWR | OPEN WOOD PORCH W/STEPS/ROOF | 4 | 0 | 2022 | 432.0 |
| | BAI | BALCONY IRON RAIL | 4 | 0 | 2022 | 128.0 |
Sketch
Property Image
Land
| 1 | 18 | AC (02.01-03.00) | 2.2700 | 98881.20 | 0.00 | 0.00 | 1.00 | $250,000 | $0 |
Roll Value History
| 2026 | N/A | N/A | N/A | N/A | N/A |
| 2025 | $483,411 | $250,000 | $0 | $733,411 | $733,411 |
| 2024 | $488,487 | $230,000 | $0 | $718,487 | $718,487 |
| 2023 | $497,369 | $220,000 | $0 | $717,369 | $717,369 |
| 2022 | $333,740 | $80,000 | $0 | $413,740 | $413,740 |
| 2021 | $0 | $80,000 | $0 | $80,000 | $80,000 |
| 2020 | $0 | $70,000 | $0 | $70,000 | $70,000 |
| 2019 | $0 | $90,000 | $0 | $90,000 | $90,000 |
| 2018 | $0 | $90,000 | $0 | $90,000 | $90,000 |
| 2017 | $0 | $80,000 | $0 | $80,000 | $80,000 |
| 2016 | $0 | $80,000 | $0 | $80,000 | $80,000 |
| 2015 | $0 | $60,000 | $0 | $60,000 | $60,000 |
| 2014 | $0 | $39,130 | $0 | $39,130 | $39,130 |
| 2013 | $0 | $39,130 | $0 | $39,130 | $39,130 |
| 2012 | $0 | $39,130 | $0 | $39,130 | $39,130 |
| 2011 | $0 | $39,130 | $0 | $39,130 | $39,130 |
| 2010 | $0 | $39,130 | $0 | $39,130 | $39,130 |
| 2009 | $0 | $45,500 | $0 | $45,500 | $45,500 |
| 2008 | $0 | $45,500 | $0 | $45,500 | $45,500 |
| 2007 | $0 | $80,000 | $0 | $80,000 | $80,000 |
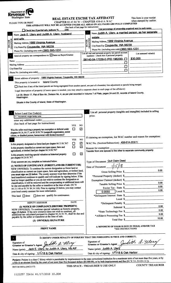
Deed and Sales History
| 1 | 01/08/2021 | QCD | Quit Claim Deed | ABIDES, JOHN | ABIDES, JOHN | | | $0.00 | 46523 | 4507655 |
| 2 | 01/05/2021 | WD | Warranty Deed | MOGUL MEDIA MINDS, | ABIDES, JOHN | | | $98,000.00 | 46522 | 4507654 |
| 3 | 01/02/2018 | QCD | Quit Claim Deed | UMAYAM, ROBERT S | MOGUL MEDIA MINDS, | | | $0.00 | 32507 | 4436854 |
| 4 | 06/01/1997 | DECREE | Divorce Decree/Legal Separation | UMAYAM, ROBERT S | UMAYAM, ROBERT S | | | $0.00 | 72043 | 97009536 |
| 5 | 05/01/1992 | WD | Warranty Deed | RALEIGH, CHARLES J | UMAYAM, ROBERT S | | | $29,500.00 | 21965 | 92009370 |
| 6 | 04/01/1990 | REC | Real Estate Contract | RAGLAND, WILLIS E | RALEIGH, CHARLES J | | | $22,000.00 | 2514 | 90008081 |
| 7 | 01/01/1900 | OTHER | Other - Misc. Documents | Unknown | RAGLAND, WILLIS E | | | $0.00 | 0 | 0 |
Payout Agreement
| No payout information available.. |