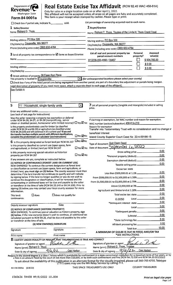
Property
Account |
| Property ID: | 383329 | Abbreviated Legal Description: | SEAHORSE SIESTA LOT 11 |
| Geographic ID: | S8130-00-00011-0 | Agent Code: | |
| Type: | Real | | |
| Tax Area: | 710 - APPRAISER-S Whid Schl Dist, outside Langley, improved & 1 acre or less | Land Use Code | 11 |
| Open Space: | N | DFL | N |
| Historic Property: | N | Remodel Property: | N |
| Multi-Family Redevelopment: | N | | |
| Township: | | Section: | |
| Range: | |
Location |
| Address: | 3521 PRIMAVERA PLACE LANGLEY, WA 98260 | Mapsco: | |
| Neighborhood: | Cycle 4 | Map ID: | 910 |
| Neighborhood CD: | 4 |
Owner |
| Name: | SHIPMAN, PAUL S | Owner ID: | 299881 |
| Mailing Address: | PATRICIA J SHIPMAN 2149 38TH AVE E SEATTLE, WA 98112 | % Ownership: | 100.0000000000% |
| | | Exemptions: | |
Taxes and Assessment Details
Values
| (+) Improvement Homesite Value: | + | $0 | |
| (+) Improvement Non-Homesite Value: | + | $400,808 | |
| (+) Land Homesite Value: | + | $0 | |
| (+) Land Non-Homesite Value: | + | $380,000 | |
| (+) Curr Use (HS): | + | $0 | $0 |
| (+) Curr Use (NHS): | + | $0 | $0 |
| | | -------------------------- | |
| (=) Market Value: | = | $780,808 | |
| (–) Productivity Loss: | – | $0 | |
| | | -------------------------- | |
| (=) Subtotal: | = | $780,808 | |
| (+) Senior Appraised Value: | + | $0 | |
| (+) Non-Senior Appraised Value: | + | $780,808 | |
| | | -------------------------- | |
| (=) Total Appraised Value: | = | $780,808 | |
| (–) Senior Exemption Loss: | – | $0 | |
| (–) Exemption Loss: | – | $0 | |
| | | -------------------------- | |
| (=) Taxable Value: | = | $780,808 | |
Taxing Jurisdiction
| Owner: | SHIPMAN, PAUL S | | |
| % Ownership: | 100.0000000000% | | |
| Total Value: | $780,808 | | |
| Tax Area: | 710 - APPRAISER-S Whid Schl Dist, outside Langley, improved & 1 acre or less |
| CF | Conservation Futures | 0.0316035091 | $780,808 | $780,808 | $24.68 | | |
| FIRE3 | Fire & Rescue Dist #3 S Whidbey GEN | 1.2004855531 | $780,808 | $780,808 | $937.35 | | |
| HOBOND | Hospital BOND | 0.1910887512 | $780,808 | $780,808 | $149.20 | | |
| HOGEN | Hospital GEN | 0.3902502903 | $780,808 | $780,808 | $304.71 | | |
| CE | County Current Expense | 0.3708482477 | $780,808 | $780,808 | $289.56 | | |
| CR | County Roads | 0.4584763726 | $780,808 | $780,808 | $357.98 | | |
| ISLANDEMS | Hospital GEN (EMS) | 0.5000000000 | $780,808 | $780,808 | $390.40 | | |
| LIB | Library Sno-Isle GEN | 0.3153421757 | $780,808 | $780,808 | $246.22 | | |
| PORTWHID | Port of S Whidbey GEN | 0.1094540357 | $780,808 | $780,808 | $85.46 | | |
| SCH206BOND | School 206 BOND | 0.3161759235 | $780,808 | $780,808 | $246.87 | | |
| SCH206MO | School 206 Enrichment | 0.4547169547 | $780,808 | $780,808 | $355.05 | | |
| ST | State School | 1.3035497053 | $780,808 | $780,808 | $1,017.82 | | |
| ST2 | State School Part 2 | 0.8169543533 | $780,808 | $780,808 | $637.88 | | |
| SWHIDPRBD | P & R S Whidbey BOND | 0.0152817568 | $780,808 | $780,808 | $11.93 | | |
| SWHIDPRBD2 | P & R S Whidbey BOND2 | 0.0138911264 | $780,808 | $780,808 | $10.85 | | |
| SWHIDPRMT | P & R S Whidbey GEN | 0.2053334452 | $780,808 | $780,808 | $160.33 | | |
| | Total Tax Rate: | 6.6934522006 | | | | | |
| | | | | Taxes w/Current Exemptions: | $5,226.29 | | |
| | | | | Taxes w/o Exemptions: | $5,226.29 | | |
Improvement / Building
| Improvement #1: | RESIDENTIAL | State Code: | Y | 1540.1 sqft | Value: | $400,808 |
| Bathrooms: | 1.75 | Bedrooms: | 2 | | Ceiling: | TONGUE & GROOVE | Exterior Wall/Cover: | WOOD SIDING | | Floor Covering: | HARDWOOD/CARP 80-20 | Floor Structure: | WOOD W/SUBFLOOR | | Foundation: | CONCRETE | Heating: | WALL HEAT ELECTRIC | | Interior Finish: | DRYWALL PAINT | Plumbing Fixture Cnt: | 10 | | Roof Slope: | 3" IN 12" | Roof Structure/Cover: | BEAM ASPHALT |
|
| | Type | Description | Class CD | Sub Class CD | Year Built | Area |
| | BAS | BASE/MAIN FLOOR | 4 | 0 | 2007 | 1153.1 |
| | AGR | ATTACHED GARAGE | 4 | 0 | 2007 | 252.0 |
| | BIG | BUILT IN GARAGE | 4 | 0 | 2007 | 101.5 |
| | ATU | ATTIC UNFINISHED | 4 | 0 | 2007 | 160.0 |
| | ATU | ATTIC UNFINISHED | 4 | 0 | 2007 | 144.0 |
| | OWP | OPEN WOOD PORCH W/STEPS | 4 | 0 | 2007 | 48.0 |
| | OWP | OPEN WOOD PORCH W/STEPS | 4 | 0 | 2007 | 94.8 |
| | OWP | OPEN WOOD PORCH W/STEPS | 4 | 0 | 2007 | 504.0 |
| | OWR | OPEN WOOD PORCH W/STEPS/ROOF | 4 | 0 | 2007 | 56.0 |
| | OWR | OPEN WOOD PORCH W/STEPS/ROOF | 4 | 0 | 2007 | 144.0 |
| | LOF | LOFT | 4 | 0 | 2007 | 387.0 |
Sketch
Property Image
Land
| 1 | 13 | SQ (06001-08000) | 0.0000 | 0.00 | 0.00 | 0.00 | 1.00 | $380,000 | $0 |
Roll Value History
| 2026 | N/A | N/A | N/A | N/A | N/A |
| 2025 | $400,808 | $380,000 | $0 | $780,808 | $780,808 |
| 2024 | $404,175 | $380,000 | $0 | $784,175 | $784,175 |
| 2023 | $407,767 | $380,000 | $0 | $787,767 | $787,767 |
| 2022 | $372,092 | $280,000 | $0 | $652,092 | $652,092 |
| 2021 | $273,110 | $250,000 | $0 | $523,110 | $523,110 |
| 2020 | $259,704 | $240,000 | $0 | $499,704 | $499,704 |
| 2019 | $188,980 | $275,000 | $0 | $463,980 | $463,980 |
| 2018 | $189,508 | $225,000 | $0 | $414,508 | $414,508 |
| 2017 | $190,572 | $200,000 | $0 | $390,572 | $390,572 |
| 2016 | $192,688 | $200,000 | $0 | $392,688 | $392,688 |
| 2015 | $194,805 | $120,000 | $0 | $314,805 | $314,805 |
| 2014 | $196,049 | $65,000 | $0 | $261,049 | $261,049 |
| 2013 | $198,180 | $95,000 | $0 | $293,180 | $293,180 |
| 2012 | $200,310 | $97,750 | $0 | $298,060 | $298,060 |
| 2011 | $202,441 | $115,000 | $0 | $317,441 | $317,441 |
| 2010 | $211,696 | $115,000 | $0 | $326,696 | $326,696 |
| 2009 | $220,449 | $100,000 | $0 | $320,449 | $320,449 |
| 2008 | $217,005 | $91,476 | $0 | $308,481 | $308,481 |
| 2007 | $88,561 | $91,476 | $0 | $180,037 | $180,037 |
Deed and Sales History
| 1 | 06/17/2021 | WD | Warranty Deed | GIBSON, HARRY L & TARI L | SHIPMAN, PAUL S | | | $834,000.00 | 48788 | 4522404 |
| 2 | 04/01/1997 | WD | Warranty Deed | WHEELER, ROBERT J | GIBSON, HARRY L | | | $42,000.00 | 71155 | 97005209 |
| 3 | 12/01/1993 | QCD | Quit Claim Deed | BOLLMAN, LYNN B | WHEELER, ROBERT J | | | $0.00 | 34980 | 93025804 |
| 4 | 06/01/1993 | WD | Warranty Deed | BREED, JERRY | BOLLMAN, LYNN B | | | $24,950.00 | 32230 | 93011570 |
| 5 | 05/01/1990 | QCD | Quit Claim Deed | BITTS, MAX K | BREED, JERRY | | | $0.00 | 3656 | 90011881 |
| 6 | 07/01/1979 | CD | DNU - Correction Deed | GOOD, BRUNO & | BITTS, MAX K | | | $0.00 | 933770 | 3554400 |
| 7 | 07/01/1979 | EXECUTORD | Executor Deed | ROBINSON, HELEN J | GOOD, BRUNO & | | | $9,000.00 | 93378 | 355441 |
| 8 | 01/01/1900 | OTHER | Other - Misc. Documents | Unknown | ROBINSON, HELEN J | | | $0.00 | 0 | 0 |
Payout Agreement
| No payout information available.. |