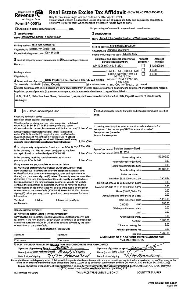
Property
Account |
| Property ID: | 383800 | Abbreviated Legal Description: | SEA VIEW 2 LOT 29 |
| Geographic ID: | S8135-02-00029-0 | Agent Code: | |
| Type: | Real | | |
| Tax Area: | 110 - APPRAISER-OH Schl Dist, outside OH, improved & 1 acre or less | Land Use Code | 11 |
| Open Space: | N | DFL | N |
| Historic Property: | N | Remodel Property: | N |
| Multi-Family Redevelopment: | N | | |
| Township: | | Section: | |
| Range: | |
Location |
| Address: | 1954 ISLAND VIEW RD OAK HARBOR, WA 98277 | Mapsco: | |
| Neighborhood: | Cycle 1 | Map ID: | 106 |
| Neighborhood CD: | 1 |
Owner |
| Name: | KNOUSE, THOMAS S | Owner ID: | 79894 |
| Mailing Address: | 1954 ISLAND VIEW RD OAK HARBOR, WA 98277-8579 | % Ownership: | 100.0000000000% |
| | | Exemptions: | |
Taxes and Assessment Details
Values
| (+) Improvement Homesite Value: | + | $0 | |
| (+) Improvement Non-Homesite Value: | + | $209,757 | |
| (+) Land Homesite Value: | + | $0 | |
| (+) Land Non-Homesite Value: | + | $230,000 | |
| (+) Curr Use (HS): | + | $0 | $0 |
| (+) Curr Use (NHS): | + | $0 | $0 |
| | | -------------------------- | |
| (=) Market Value: | = | $439,757 | |
| (–) Productivity Loss: | – | $0 | |
| | | -------------------------- | |
| (=) Subtotal: | = | $439,757 | |
| (+) Senior Appraised Value: | + | $0 | |
| (+) Non-Senior Appraised Value: | + | $439,757 | |
| | | -------------------------- | |
| (=) Total Appraised Value: | = | $439,757 | |
| (–) Senior Exemption Loss: | – | $0 | |
| (–) Exemption Loss: | – | $0 | |
| | | -------------------------- | |
| (=) Taxable Value: | = | $439,757 | |
Taxing Jurisdiction
| Owner: | KNOUSE, THOMAS S | | |
| % Ownership: | 100.0000000000% | | |
| Total Value: | $439,757 | | |
| Tax Area: | 110 - APPRAISER-OH Schl Dist, outside OH, improved & 1 acre or less |
| CF | Conservation Futures | 0.0316035091 | $439,757 | $439,757 | $13.90 | | |
| CEM1 | Cemetery #1 | 0.0040320932 | $439,757 | $439,757 | $1.77 | | |
| FIRE2 | Fire & Rescue Dist #2 N Whidbey GEN | 0.5475949600 | $439,757 | $439,757 | $240.81 | | |
| HOBOND | Hospital BOND | 0.1910887512 | $439,757 | $439,757 | $84.03 | | |
| HOGEN | Hospital GEN | 0.3902502903 | $439,757 | $439,757 | $171.62 | | |
| CE | County Current Expense | 0.3708482477 | $439,757 | $439,757 | $163.08 | | |
| CR | County Roads | 0.4584763726 | $439,757 | $439,757 | $201.62 | | |
| ISLANDEMS | Hospital GEN (EMS) | 0.5000000000 | $439,757 | $439,757 | $219.88 | | |
| LIB | Library Sno-Isle GEN | 0.3153421757 | $439,757 | $439,757 | $138.67 | | |
| NWHIDPRMT | P & R N Whidbey GEN | 0.2004466701 | $439,757 | $439,757 | $88.15 | | |
| SCH201MO | School 201 Enrichment | 1.8559231640 | $439,757 | $439,757 | $816.16 | | |
| ST | State School | 1.3035497053 | $439,757 | $439,757 | $573.25 | | |
| ST2 | State School Part 2 | 0.8169543533 | $439,757 | $439,757 | $359.26 | | |
| | Total Tax Rate: | 6.9861102925 | | | | | |
| | | | | Taxes w/Current Exemptions: | $3,072.20 | | |
| | | | | Taxes w/o Exemptions: | $3,072.20 | | |
Improvement / Building
| Improvement #1: | RESIDENTIAL | State Code: | Y | 1616.0 sqft | Value: | $209,757 |
| Bathrooms: | 2 | Bedrooms: | 3 | | Ceiling: | DRYWALL PAINTED | Exterior Wall/Cover: | WOOD SIDING | | Floor Covering: | CARPET/VINYL 80-20 | Floor Structure: | WOOD W/SUBFLOOR | | Foundation: | CONCRETE | Heating: | WALL HEAT ELECTRIC | | Interior Finish: | DRYWALL PAINT | Plumbing Fixture Cnt: | 9 | | Roof Slope: | 5" IN 12" | Roof Structure/Cover: | CJ ASPHALT |
|
| | Type | Description | Class CD | Sub Class CD | Year Built | Area |
| | BAS | BASE/MAIN FLOOR | 3 | 0 | 1987 | 936.0 |
| | OP2 | OPEN PORCH W/STEPS | 3 | 0 | 1987 | 48.0 |
| | AGR | ATTACHED GARAGE | 3 | 0 | 1987 | 240.0 |
| | BIG | BUILT IN GARAGE | 3 | 0 | 1987 | 336.0 |
| | BAW | BALCONY WOOD RAIL | 3 | 0 | 1987 | 84.0 |
| | BAW | BALCONY WOOD RAIL | 3 | 0 | 1987 | 84.0 |
| | DWN | DOWNSTAIRS LIVING AREA | 3 | 0 | 1987 | 680.0 |
Sketch
Property Image
Land
| 1 | 15 | SQ (12001-21780) | 0.0000 | 0.00 | 0.00 | 0.00 | 1.00 | $230,000 | $0 |
Roll Value History
| 2026 | N/A | N/A | N/A | N/A | N/A |
| 2025 | $209,757 | $230,000 | $0 | $439,757 | $439,757 |
| 2024 | $212,877 | $200,000 | $0 | $412,877 | $412,877 |
| 2023 | $215,997 | $200,000 | $0 | $415,997 | $415,997 |
| 2022 | $198,418 | $200,000 | $0 | $398,418 | $398,418 |
| 2021 | $174,998 | $150,000 | $0 | $324,998 | $324,998 |
| 2020 | $170,893 | $110,000 | $0 | $280,893 | $280,893 |
| 2019 | $125,213 | $150,000 | $0 | $275,213 | $275,213 |
| 2018 | $125,642 | $140,000 | $0 | $265,642 | $265,642 |
| 2017 | $120,245 | $120,000 | $0 | $240,245 | $240,245 |
| 2016 | $121,937 | $110,000 | $0 | $231,937 | $231,937 |
| 2015 | $123,631 | $75,000 | $0 | $198,631 | $198,631 |
| 2014 | $125,325 | $68,000 | $0 | $193,325 | $193,325 |
| 2013 | $127,020 | $68,000 | $0 | $195,020 | $195,020 |
| 2012 | $128,713 | $68,000 | $0 | $196,713 | $196,713 |
| 2011 | $131,830 | $80,000 | $0 | $211,830 | $211,830 |
| 2010 | $138,942 | $80,000 | $0 | $218,942 | $218,942 |
| 2009 | $144,893 | $100,000 | $0 | $244,893 | $244,893 |
| 2008 | $146,776 | $113,000 | $0 | $259,776 | $259,776 |
| 2007 | $148,663 | $95,500 | $0 | $244,163 | $244,163 |
Deed and Sales History
| 1 | 05/01/1988 | WD | Warranty Deed | DILLINGHAM, DON M | KNOUSE, THOMAS S | | | $81,500.00 | 81678 | 88006295 |
| 2 | 10/01/1979 | REC | Real Estate Contract | FAIRFAX, CLIFF F | DILLINGHAM, DON M | | | $11,500.00 | 95050 | 360354 |
| 3 | 01/01/1900 | OTHER | Other - Misc. Documents | Unknown | FAIRFAX, CLIFF F | | | $0.00 | 0 | 0 |
Payout Agreement
| No payout information available.. |