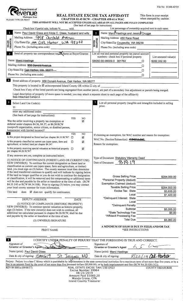
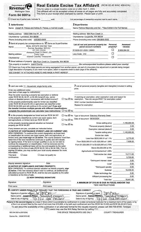
Property
Account |
| Property ID: | 383819 | Abbreviated Legal Description: | SEA VIEW 2 LOT 30 |
| Geographic ID: | S8135-02-00030-0 | Agent Code: | |
| Type: | Real | | |
| Tax Area: | 110 - APPRAISER-OH Schl Dist, outside OH, improved & 1 acre or less | Land Use Code | 11 |
| Open Space: | N | DFL | N |
| Historic Property: | N | Remodel Property: | N |
| Multi-Family Redevelopment: | N | | |
| Township: | | Section: | |
| Range: | |
Location |
| Address: | 1948 ISLAND VIEW RD OAK HARBOR, WA 98277 | Mapsco: | |
| Neighborhood: | Cycle 1 | Map ID: | 106 |
| Neighborhood CD: | 1 |
Owner |
| Name: | ZAKRAVSKY, STEVEN TAICHI | Owner ID: | 293297 |
| Mailing Address: | 9212 LAURELHURST CT SAN DIEGO, CA 92126-4841 | % Ownership: | 100.0000000000% |
| | | Exemptions: | |
Taxes and Assessment Details
Values
| (+) Improvement Homesite Value: | + | $0 | |
| (+) Improvement Non-Homesite Value: | + | $188,497 | |
| (+) Land Homesite Value: | + | $0 | |
| (+) Land Non-Homesite Value: | + | $230,000 | |
| (+) Curr Use (HS): | + | $0 | $0 |
| (+) Curr Use (NHS): | + | $0 | $0 |
| | | -------------------------- | |
| (=) Market Value: | = | $418,497 | |
| (–) Productivity Loss: | – | $0 | |
| | | -------------------------- | |
| (=) Subtotal: | = | $418,497 | |
| (+) Senior Appraised Value: | + | $0 | |
| (+) Non-Senior Appraised Value: | + | $418,497 | |
| | | -------------------------- | |
| (=) Total Appraised Value: | = | $418,497 | |
| (–) Senior Exemption Loss: | – | $0 | |
| (–) Exemption Loss: | – | $0 | |
| | | -------------------------- | |
| (=) Taxable Value: | = | $418,497 | |
Taxing Jurisdiction
| Owner: | ZAKRAVSKY, STEVEN TAICHI | | |
| % Ownership: | 100.0000000000% | | |
| Total Value: | $418,497 | | |
| Tax Area: | 110 - APPRAISER-OH Schl Dist, outside OH, improved & 1 acre or less |
| CF | Conservation Futures | 0.0316035091 | $418,497 | $418,497 | $13.23 | | |
| CEM1 | Cemetery #1 | 0.0040320932 | $418,497 | $418,497 | $1.69 | | |
| FIRE2 | Fire & Rescue Dist #2 N Whidbey GEN | 0.5475949600 | $418,497 | $418,497 | $229.17 | | |
| HOBOND | Hospital BOND | 0.1910887512 | $418,497 | $418,497 | $79.97 | | |
| HOGEN | Hospital GEN | 0.3902502903 | $418,497 | $418,497 | $163.32 | | |
| CE | County Current Expense | 0.3708482477 | $418,497 | $418,497 | $155.20 | | |
| CR | County Roads | 0.4584763726 | $418,497 | $418,497 | $191.87 | | |
| ISLANDEMS | Hospital GEN (EMS) | 0.5000000000 | $418,497 | $418,497 | $209.25 | | |
| LIB | Library Sno-Isle GEN | 0.3153421757 | $418,497 | $418,497 | $131.97 | | |
| NWHIDPRMT | P & R N Whidbey GEN | 0.2004466701 | $418,497 | $418,497 | $83.89 | | |
| SCH201MO | School 201 Enrichment | 1.8559231640 | $418,497 | $418,497 | $776.70 | | |
| ST | State School | 1.3035497053 | $418,497 | $418,497 | $545.53 | | |
| ST2 | State School Part 2 | 0.8169543533 | $418,497 | $418,497 | $341.89 | | |
| | Total Tax Rate: | 6.9861102925 | | | | | |
| | | | | Taxes w/Current Exemptions: | $2,923.68 | | |
| | | | | Taxes w/o Exemptions: | $2,923.68 | | |
Improvement / Building
| Improvement #1: | RESIDENTIAL | State Code: | Y | 1108.0 sqft | Value: | $188,497 |
| Bathrooms: | 1.75 | Bedrooms: | 3 | | Ceiling: | DRY WALL SPRAYED | Exterior Wall/Cover: | WOOD SIDING | | Floor Covering: | VINYL 100% | Floor Structure: | WOOD W/SUBFLOOR | | Foundation: | CONCRETE | Heating: | BASEBOARD ELECTRIC | | Interior Finish: | DRYWALL PAINT | Plumbing Fixture Cnt: | 9 | | Roof Slope: | 5" IN 12" | Roof Structure/Cover: | CJ ASPHALT |
|
| | Type | Description | Class CD | Sub Class CD | Year Built | Area |
| | BAS | BASE/MAIN FLOOR | 3 | 0 | 1974 | 1108.0 |
| | OP4 | OPEN PORCH W/CEILING-ROOF | 3 | 0 | 1974 | 20.0 |
| | AGR | ATTACHED GARAGE | 3 | 0 | 1974 | 480.0 |
| | OWP | OPEN WOOD PORCH W/STEPS | 3 | 0 | 1974 | 350.0 |
Sketch
Property Image
Land
| 1 | 15 | SQ (12001-21780) | 0.0000 | 0.00 | 0.00 | 0.00 | 1.00 | $230,000 | $0 |
Roll Value History
| 2026 | N/A | N/A | N/A | N/A | N/A |
| 2025 | $188,497 | $230,000 | $0 | $418,497 | $418,497 |
| 2024 | $194,912 | $200,000 | $0 | $394,912 | $394,912 |
| 2023 | $197,610 | $200,000 | $0 | $397,610 | $397,610 |
| 2022 | $181,380 | $200,000 | $0 | $381,380 | $381,380 |
| 2021 | $159,846 | $150,000 | $0 | $309,846 | $309,846 |
| 2020 | $155,595 | $110,000 | $0 | $265,595 | $265,595 |
| 2019 | $109,087 | $150,000 | $0 | $259,087 | $259,087 |
| 2018 | $109,441 | $140,000 | $0 | $249,441 | $249,441 |
| 2017 | $103,343 | $120,000 | $0 | $223,343 | $223,343 |
| 2016 | $104,819 | $110,000 | $0 | $214,819 | $214,819 |
| 2015 | $106,296 | $75,000 | $0 | $181,296 | $181,296 |
| 2014 | $107,771 | $68,000 | $0 | $175,771 | $175,771 |
| 2013 | $109,248 | $68,000 | $0 | $177,248 | $177,248 |
| 2012 | $110,725 | $68,000 | $0 | $178,725 | $178,725 |
| 2011 | $113,838 | $80,000 | $0 | $193,838 | $193,838 |
| 2010 | $121,254 | $80,000 | $0 | $201,254 | $201,254 |
| 2009 | $126,396 | $100,000 | $0 | $226,396 | $226,396 |
| 2008 | $127,990 | $113,000 | $0 | $240,990 | $240,990 |
| 2007 | $129,583 | $95,500 | $0 | $225,083 | $225,083 |
Deed and Sales History
| 1 | 01/16/2020 | WD | Warranty Deed | REDONDO BEACH INVESTMENTS | ZAKRAVSKY, STEVEN TAICHI | | | $341,000.00 | 41905 | 4480055 |
| 2 | 07/12/2019 | QCD | Quit Claim Deed | EASTSIDE FUNDING LLC | REDONDO BEACH INVESTMENTS | | | $0.00 | 39549 | 4467947 |
| 3 | 07/22/2019 | TRUSTEED | Trustee's Deed | DALE, THOMAS R | REDONDO BEACH INVESTMENTS | | | $0.00 | 39548 | 4467946 |
| 4 | 07/03/2006 | WD | Warranty Deed | WRIGHT, BOBBY J | DALE, THOMAS R | | | $238,950.00 | 62957 | 4175266 |
| 5 | 10/01/1993 | WD | Warranty Deed | WOOD, RANDAL V | WRIGHT, BOBBY J | | | $99,000.00 | 33968 | 93020655 |
| 6 | 04/01/1991 | QCD | Quit Claim Deed | WOOD, RANDAL | WOOD, RANDAL V | | | $0.00 | 11231 | 91005253 |
| 7 | 06/01/1978 | OTHER | Other - Misc. Documents | Unknown | WOOD, RANDAL | | | $46,000.00 | 82970 | 335074 |
Payout Agreement
| No payout information available.. |