Property
Account |
| Property ID: | 383980 | Abbreviated Legal Description: | SEA VIEW 2 LOT 39-3: N80'OF S170' LOT 39 |
| Geographic ID: | S8135-02-00039-3 | Agent Code: | |
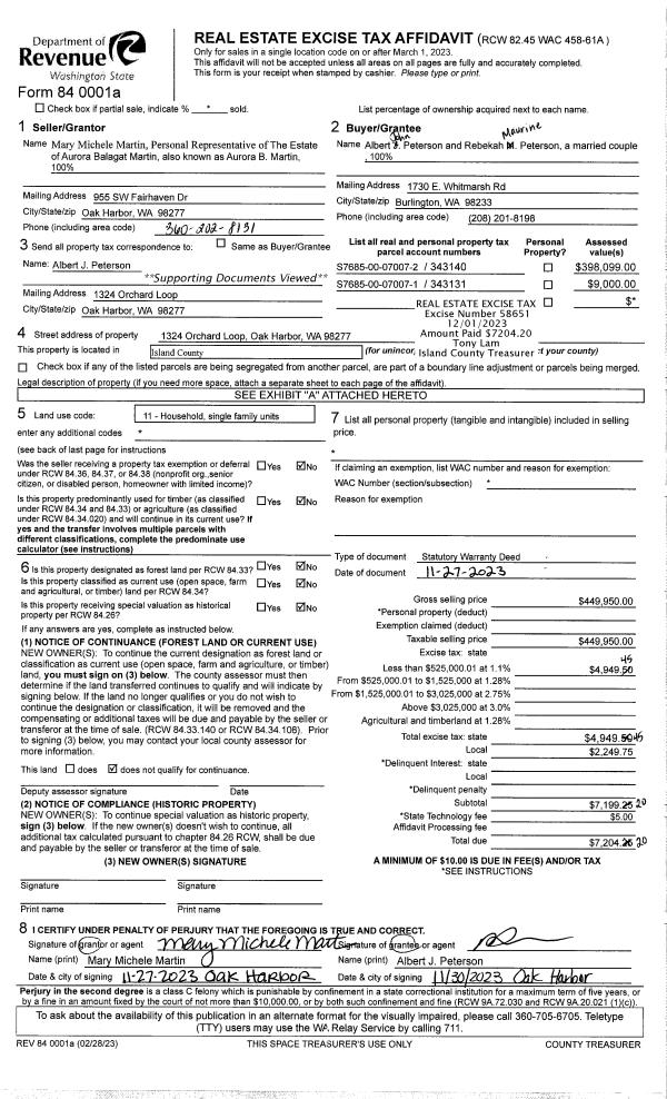
| Type: | Real | | |
| Tax Area: | 110 - APPRAISER-OH Schl Dist, outside OH, improved & 1 acre or less | Land Use Code | 11 |
| Open Space: | N | DFL | N |
| Historic Property: | N | Remodel Property: | N |
| Multi-Family Redevelopment: | N | | |
| Township: | | Section: | |
| Range: | |
Location |
| Address: | 1911 PEACOCK LN OAK HARBOR, WA 98277 | Mapsco: | |
| Neighborhood: | Cycle 1 | Map ID: | 106 |
| Neighborhood CD: | 1 |
Owner |
| Name: | REDDY JR, THOMAS E | Owner ID: | 79912 |
| Mailing Address: | 1911 PEACOCK LN OAK HARBOR, WA 98277-8599 | % Ownership: | 100.0000000000% |
| | | Exemptions: | |
Taxes and Assessment Details
Values
| (+) Improvement Homesite Value: | + | $0 | |
| (+) Improvement Non-Homesite Value: | + | $206,739 | |
| (+) Land Homesite Value: | + | $0 | |
| (+) Land Non-Homesite Value: | + | $230,000 | |
| (+) Curr Use (HS): | + | $0 | $0 |
| (+) Curr Use (NHS): | + | $0 | $0 |
| | | -------------------------- | |
| (=) Market Value: | = | $436,739 | |
| (–) Productivity Loss: | – | $0 | |
| | | -------------------------- | |
| (=) Subtotal: | = | $436,739 | |
| (+) Senior Appraised Value: | + | $0 | |
| (+) Non-Senior Appraised Value: | + | $436,739 | |
| | | -------------------------- | |
| (=) Total Appraised Value: | = | $436,739 | |
| (–) Senior Exemption Loss: | – | $0 | |
| (–) Exemption Loss: | – | $0 | |
| | | -------------------------- | |
| (=) Taxable Value: | = | $436,739 | |
Taxing Jurisdiction
| Owner: | REDDY JR, THOMAS E | | |
| % Ownership: | 100.0000000000% | | |
| Total Value: | $436,739 | | |
| Tax Area: | 110 - APPRAISER-OH Schl Dist, outside OH, improved & 1 acre or less |
| CF | Conservation Futures | 0.0316035091 | $436,739 | $436,739 | $13.80 | | |
| CEM1 | Cemetery #1 | 0.0040320932 | $436,739 | $436,739 | $1.76 | | |
| FIRE2 | Fire & Rescue Dist #2 N Whidbey GEN | 0.5475949600 | $436,739 | $436,739 | $239.16 | | |
| HOBOND | Hospital BOND | 0.1910887512 | $436,739 | $436,739 | $83.46 | | |
| HOGEN | Hospital GEN | 0.3902502903 | $436,739 | $436,739 | $170.44 | | |
| CE | County Current Expense | 0.3708482477 | $436,739 | $436,739 | $161.96 | | |
| CR | County Roads | 0.4584763726 | $436,739 | $436,739 | $200.23 | | |
| ISLANDEMS | Hospital GEN (EMS) | 0.5000000000 | $436,739 | $436,739 | $218.37 | | |
| LIB | Library Sno-Isle GEN | 0.3153421757 | $436,739 | $436,739 | $137.72 | | |
| NWHIDPRMT | P & R N Whidbey GEN | 0.2004466701 | $436,739 | $436,739 | $87.54 | | |
| SCH201MO | School 201 Enrichment | 1.8559231640 | $436,739 | $436,739 | $810.55 | | |
| ST | State School | 1.3035497053 | $436,739 | $436,739 | $569.31 | | |
| ST2 | State School Part 2 | 0.8169543533 | $436,739 | $436,739 | $356.80 | | |
| | Total Tax Rate: | 6.9861102925 | | | | | |
| | | | | Taxes w/Current Exemptions: | $3,051.10 | | |
| | | | | Taxes w/o Exemptions: | $3,051.10 | | |
Improvement / Building
| Improvement #1: | RESIDENTIAL | State Code: | Y | 1392.0 sqft | Value: | $206,739 |
| Bathrooms: | 1.75 | Bedrooms: | 3 | | Ceiling: | DRY WALL SPRAYED | Exterior Wall/Cover: | VINYL | | Floor Covering: | CARPET/VINYL 80-20 | Floor Structure: | WOOD W/SUBFLOOR | | Foundation: | CONCRETE | Heating: | BASEBOARD ELECTRIC | | Interior Finish: | DRYWALL PAINT | Plumbing Fixture Cnt: | 9 | | Roof Slope: | 3" IN 12" | Roof Structure/Cover: | CJ ASPHALT |
|
| | Type | Description | Class CD | Sub Class CD | Year Built | Area |
| | BAS | BASE/MAIN FLOOR | 3 | 0 | 1973 | 1392.0 |
| | UTY | STORAGE/UTILITY | 3 | 0 | 1973 | 216.0 |
| | AGR | ATTACHED GARAGE | 3 | 0 | 1973 | 264.0 |
Sketch
Property Image
Land
| 1 | 16 | AC (00.51-01.00) | 0.5200 | 22651.20 | 0.00 | 0.00 | 1.00 | $230,000 | $0 |
Roll Value History
| 2026 | N/A | N/A | N/A | N/A | N/A |
| 2025 | $206,739 | $230,000 | $0 | $436,739 | $436,739 |
| 2024 | $214,099 | $200,000 | $0 | $414,099 | $414,099 |
| 2023 | $223,243 | $200,000 | $0 | $423,243 | $423,243 |
| 2022 | $204,904 | $200,000 | $0 | $404,904 | $404,904 |
| 2021 | $180,584 | $150,000 | $0 | $330,584 | $330,584 |
| 2020 | $176,077 | $110,000 | $0 | $286,077 | $286,077 |
| 2019 | $127,201 | $150,000 | $0 | $277,201 | $277,201 |
| 2018 | $127,613 | $140,000 | $0 | $267,613 | $267,613 |
| 2017 | $96,445 | $120,000 | $0 | $216,445 | $216,445 |
| 2016 | $98,054 | $110,000 | $0 | $208,054 | $208,054 |
| 2015 | $99,662 | $75,000 | $0 | $174,662 | $174,662 |
| 2014 | $101,269 | $68,000 | $0 | $169,269 | $169,269 |
| 2013 | $102,876 | $68,000 | $0 | $170,876 | $170,876 |
| 2012 | $104,484 | $68,000 | $0 | $172,484 | $172,484 |
| 2011 | $109,501 | $80,000 | $0 | $189,501 | $189,501 |
| 2010 | $118,124 | $80,000 | $0 | $198,124 | $198,124 |
| 2009 | $123,441 | $100,000 | $0 | $223,441 | $223,441 |
| 2008 | $125,284 | $113,000 | $0 | $238,284 | $238,284 |
| 2007 | $127,217 | $95,500 | $0 | $222,717 | $222,717 |
Deed and Sales History
| 1 | 01/01/1900 | OTHER | Other - Misc. Documents | Unknown | REDDY JR, THOMAS E | | | $0.00 | 0 | 0 |
Payout Agreement
| No payout information available.. |