Property
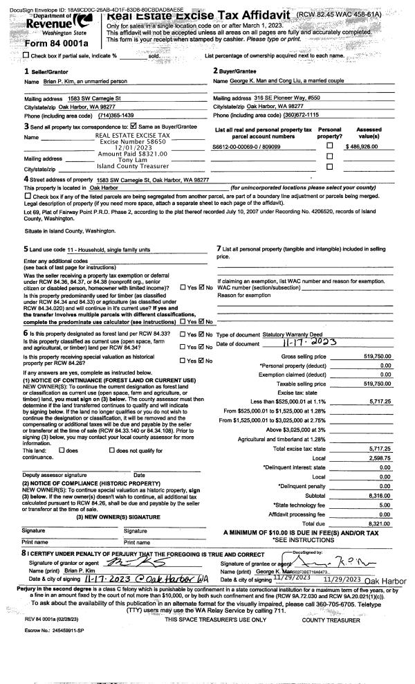
Account |
| Property ID: | 383999 | Abbreviated Legal Description: | SEA VIEW 2 LOT 39-4: S90' OF LOT 39 (LOT A SP 73-025 AF#260583) |
| Geographic ID: | S8135-02-00039-4 | Agent Code: | |
| Type: | Real | | |
| Tax Area: | 110 - APPRAISER-OH Schl Dist, outside OH, improved & 1 acre or less | Land Use Code | 11 |
| Open Space: | N | DFL | N |
| Historic Property: | N | Remodel Property: | N |
| Multi-Family Redevelopment: | N | | |
| Township: | | Section: | |
| Range: | |
Location |
| Address: | 1901 PEACOCK LN OAK HARBOR, WA 98277 | Mapsco: | |
| Neighborhood: | Cycle 1 | Map ID: | 106 |
| Neighborhood CD: | 1 |
Owner |
| Name: | WELCH, TY AUSTIN | Owner ID: | 301396 |
| Mailing Address: | LORENA J WELCH 1901 PEACOCK LN OAK HARBOR, WA 98277 | % Ownership: | 100.0000000000% |
| | | Exemptions: | |
Taxes and Assessment Details
Values
| (+) Improvement Homesite Value: | + | $0 | |
| (+) Improvement Non-Homesite Value: | + | $222,189 | |
| (+) Land Homesite Value: | + | $0 | |
| (+) Land Non-Homesite Value: | + | $230,000 | |
| (+) Curr Use (HS): | + | $0 | $0 |
| (+) Curr Use (NHS): | + | $0 | $0 |
| | | -------------------------- | |
| (=) Market Value: | = | $452,189 | |
| (–) Productivity Loss: | – | $0 | |
| | | -------------------------- | |
| (=) Subtotal: | = | $452,189 | |
| (+) Senior Appraised Value: | + | $0 | |
| (+) Non-Senior Appraised Value: | + | $452,189 | |
| | | -------------------------- | |
| (=) Total Appraised Value: | = | $452,189 | |
| (–) Senior Exemption Loss: | – | $0 | |
| (–) Exemption Loss: | – | $0 | |
| | | -------------------------- | |
| (=) Taxable Value: | = | $452,189 | |
Taxing Jurisdiction
| Owner: | WELCH, TY AUSTIN | | |
| % Ownership: | 100.0000000000% | | |
| Total Value: | $452,189 | | |
| Tax Area: | 110 - APPRAISER-OH Schl Dist, outside OH, improved & 1 acre or less |
| CF | Conservation Futures | 0.0316035091 | $452,189 | $452,189 | $14.29 | | |
| CEM1 | Cemetery #1 | 0.0040320932 | $452,189 | $452,189 | $1.82 | | |
| FIRE2 | Fire & Rescue Dist #2 N Whidbey GEN | 0.5475949600 | $452,189 | $452,189 | $247.62 | | |
| HOBOND | Hospital BOND | 0.1910887512 | $452,189 | $452,189 | $86.41 | | |
| HOGEN | Hospital GEN | 0.3902502903 | $452,189 | $452,189 | $176.47 | | |
| CE | County Current Expense | 0.3708482477 | $452,189 | $452,189 | $167.69 | | |
| CR | County Roads | 0.4584763726 | $452,189 | $452,189 | $207.32 | | |
| ISLANDEMS | Hospital GEN (EMS) | 0.5000000000 | $452,189 | $452,189 | $226.09 | | |
| LIB | Library Sno-Isle GEN | 0.3153421757 | $452,189 | $452,189 | $142.59 | | |
| NWHIDPRMT | P & R N Whidbey GEN | 0.2004466701 | $452,189 | $452,189 | $90.64 | | |
| SCH201MO | School 201 Enrichment | 1.8559231640 | $452,189 | $452,189 | $839.23 | | |
| ST | State School | 1.3035497053 | $452,189 | $452,189 | $589.45 | | |
| ST2 | State School Part 2 | 0.8169543533 | $452,189 | $452,189 | $369.42 | | |
| | Total Tax Rate: | 6.9861102925 | | | | | |
| | | | | Taxes w/Current Exemptions: | $3,159.04 | | |
| | | | | Taxes w/o Exemptions: | $3,159.04 | | |
Improvement / Building
| Improvement #1: | RESIDENTIAL | State Code: | Y | 1509.0 sqft | Value: | $222,189 |
| Bathrooms: | 2 | Bedrooms: | 4 | | Ceiling: | DRY WALL SPRAYED | Exterior Wall/Cover: | PLY/HARDBOARD T-111 | | Floor Covering: | VINYL 100% | Floor Structure: | WOOD W/SUBFLOOR | | Foundation: | CONCRETE | Heating: | BASEBOARD ELECTRIC | | Interior Finish: | DRYWALL PAINT | Plumbing Fixture Cnt: | 9 | | Roof Slope: | 5" IN 12" | Roof Structure/Cover: | CJ ASPHALT |
|
| | Type | Description | Class CD | Sub Class CD | Year Built | Area |
| | BAS | BASE/MAIN FLOOR | 3 | 0 | 1973 | 1509.0 |
| | AGR | ATTACHED GARAGE | 3 | 0 | 1973 | 432.0 |
Sketch
Property Image
Land
| 1 | 16 | AC (00.51-01.00) | 0.5200 | 22651.20 | 0.00 | 0.00 | 1.00 | $230,000 | $0 |
Roll Value History
| 2026 | N/A | N/A | N/A | N/A | N/A |
| 2025 | $222,189 | $230,000 | $0 | $452,189 | $452,189 |
| 2024 | $230,053 | $200,000 | $0 | $430,053 | $430,053 |
| 2023 | $218,387 | $200,000 | $0 | $418,387 | $418,387 |
| 2022 | $200,565 | $200,000 | $0 | $400,565 | $400,565 |
| 2021 | $176,847 | $150,000 | $0 | $326,847 | $326,847 |
| 2020 | $172,579 | $110,000 | $0 | $282,579 | $282,579 |
| 2019 | $125,606 | $150,000 | $0 | $275,606 | $275,606 |
| 2018 | $126,029 | $140,000 | $0 | $266,029 | $266,029 |
| 2017 | $110,597 | $120,000 | $0 | $230,597 | $230,597 |
| 2016 | $112,380 | $110,000 | $0 | $222,380 | $222,380 |
| 2015 | $114,164 | $75,000 | $0 | $189,164 | $189,164 |
| 2014 | $115,948 | $68,000 | $0 | $183,948 | $183,948 |
| 2013 | $117,731 | $68,000 | $0 | $185,731 | $185,731 |
| 2012 | $119,515 | $68,000 | $0 | $187,515 | $187,515 |
| 2011 | $122,514 | $80,000 | $0 | $202,514 | $202,514 |
| 2010 | $133,089 | $80,000 | $0 | $213,089 | $213,089 |
| 2009 | $138,954 | $100,000 | $0 | $238,954 | $238,954 |
| 2008 | $140,900 | $113,000 | $0 | $253,900 | $253,900 |
| 2007 | $142,846 | $95,500 | $0 | $238,346 | $238,346 |
Deed and Sales History
| 1 | 09/20/2021 | QCD | Quit Claim Deed | WELCH, LORENA J | WELCH, TY AUSTIN | | | $0.00 | 50217 | 4530179 |
| 2 | 05/02/2007 | WD | Warranty Deed | MIHALIK, MICHAEL J | WELCH, LORENA J | | | $269,500.00 | 71469 | 4201145 |
| 3 | 10/01/1990 | WD | Warranty Deed | DIXON, JOE S | MIHALIK, MICHAEL J | | | $101,600.00 | 5817 | 90019612 |
| 4 | 12/01/1989 | WD | Warranty Deed | FARINA, JOSEPH J | DIXON, JOE S | | | $87,500.00 | 95890 | 89018923 |
| 5 | 01/01/1900 | OTHER | Other - Misc. Documents | Unknown | FARINA, JOSEPH J | | | $0.00 | 0 | 0 |
Payout Agreement
| No payout information available.. |