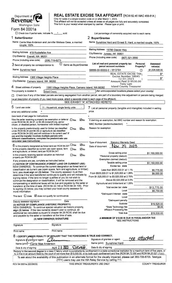
Property
Account |
| Property ID: | 384060 | Abbreviated Legal Description: | SEA VIEW 2 N82.50' OF S165' OF LOT 41 |
| Geographic ID: | S8135-02-00041-3 | Agent Code: | |
| Type: | Real | | |
| Tax Area: | 110 - APPRAISER-OH Schl Dist, outside OH, improved & 1 acre or less | Land Use Code | 11 |
| Open Space: | N | DFL | N |
| Historic Property: | N | Remodel Property: | N |
| Multi-Family Redevelopment: | N | | |
| Township: | | Section: | |
| Range: | |
Location |
| Address: | 1934 PEACOCK LN OAK HARBOR, WA 98277 | Mapsco: | |
| Neighborhood: | Cycle 1 | Map ID: | 106 |
| Neighborhood CD: | 1 |
Owner |
| Name: | LAWSON, SCOTT | Owner ID: | 278621 |
| Mailing Address: | JENNIFER LAWSON PO BOX 204 OAK HARBOR, WA 98277 | % Ownership: | 100.0000000000% |
| | | Exemptions: | |
Taxes and Assessment Details
Values
| (+) Improvement Homesite Value: | + | $0 | |
| (+) Improvement Non-Homesite Value: | + | $196,904 | |
| (+) Land Homesite Value: | + | $0 | |
| (+) Land Non-Homesite Value: | + | $230,000 | |
| (+) Curr Use (HS): | + | $0 | $0 |
| (+) Curr Use (NHS): | + | $0 | $0 |
| | | -------------------------- | |
| (=) Market Value: | = | $426,904 | |
| (–) Productivity Loss: | – | $0 | |
| | | -------------------------- | |
| (=) Subtotal: | = | $426,904 | |
| (+) Senior Appraised Value: | + | $0 | |
| (+) Non-Senior Appraised Value: | + | $426,904 | |
| | | -------------------------- | |
| (=) Total Appraised Value: | = | $426,904 | |
| (–) Senior Exemption Loss: | – | $0 | |
| (–) Exemption Loss: | – | $0 | |
| | | -------------------------- | |
| (=) Taxable Value: | = | $426,904 | |
Taxing Jurisdiction
| Owner: | LAWSON, SCOTT | | |
| % Ownership: | 100.0000000000% | | |
| Total Value: | $426,904 | | |
| Tax Area: | 110 - APPRAISER-OH Schl Dist, outside OH, improved & 1 acre or less |
| CF | Conservation Futures | 0.0316035091 | $426,904 | $426,904 | $13.49 | | |
| CEM1 | Cemetery #1 | 0.0040320932 | $426,904 | $426,904 | $1.72 | | |
| FIRE2 | Fire & Rescue Dist #2 N Whidbey GEN | 0.5475949600 | $426,904 | $426,904 | $233.77 | | |
| HOBOND | Hospital BOND | 0.1910887512 | $426,904 | $426,904 | $81.58 | | |
| HOGEN | Hospital GEN | 0.3902502903 | $426,904 | $426,904 | $166.60 | | |
| CE | County Current Expense | 0.3708482477 | $426,904 | $426,904 | $158.32 | | |
| CR | County Roads | 0.4584763726 | $426,904 | $426,904 | $195.73 | | |
| ISLANDEMS | Hospital GEN (EMS) | 0.5000000000 | $426,904 | $426,904 | $213.45 | | |
| LIB | Library Sno-Isle GEN | 0.3153421757 | $426,904 | $426,904 | $134.62 | | |
| NWHIDPRMT | P & R N Whidbey GEN | 0.2004466701 | $426,904 | $426,904 | $85.57 | | |
| SCH201MO | School 201 Enrichment | 1.8559231640 | $426,904 | $426,904 | $792.30 | | |
| ST | State School | 1.3035497053 | $426,904 | $426,904 | $556.49 | | |
| ST2 | State School Part 2 | 0.8169543533 | $426,904 | $426,904 | $348.76 | | |
| | Total Tax Rate: | 6.9861102925 | | | | | |
| | | | | Taxes w/Current Exemptions: | $2,982.40 | | |
| | | | | Taxes w/o Exemptions: | $2,982.40 | | |
Improvement / Building
| Improvement #1: | RESIDENTIAL | State Code: | Y | 1375.0 sqft | Value: | $196,904 |
| Bathrooms: | 1.5 | Bedrooms: | 3 | | Ceiling: | DRY WALL SPRAYED | Exterior Wall/Cover: | PLY/HARDBOARD T-111 | | Floor Covering: | CARPET/VINYL 80-20 | Floor Structure: | WOOD W/SUBFLOOR | | Foundation: | CONCRETE | Heating: | BASEBOARD ELECTRIC | | Interior Finish: | DRYWALL PAINT | Plumbing Fixture Cnt: | 8 | | Roof Slope: | 5" IN 12" | Roof Structure/Cover: | CJ ASPHALT |
|
| | Type | Description | Class CD | Sub Class CD | Year Built | Area |
| | BAS | BASE/MAIN FLOOR | 3 | 0 | 1973 | 1375.0 |
| | OCP | OPEN CARPORT | 3 | 0 | 1973 | 375.0 |
| | OP4 | OPEN PORCH W/CEILING-ROOF | 3 | 0 | 1973 | 80.0 |
| | OWP | OPEN WOOD PORCH W/STEPS | 3 | 0 | 1973 | 72.0 |
| | OWR | OPEN WOOD PORCH W/STEPS/ROOF | 3 | 0 | 1973 | 128.0 |
Sketch
Property Image
Land
| 1 | 16 | AC (00.51-01.00) | 0.5700 | 24829.20 | 0.00 | 0.00 | 1.00 | $230,000 | $0 |
Roll Value History
| 2026 | N/A | N/A | N/A | N/A | N/A |
| 2025 | $196,904 | $230,000 | $0 | $426,904 | $426,904 |
| 2024 | $203,992 | $200,000 | $0 | $403,992 | $403,992 |
| 2023 | $209,638 | $200,000 | $0 | $409,638 | $409,638 |
| 2022 | $192,386 | $200,000 | $0 | $392,386 | $392,386 |
| 2021 | $169,514 | $150,000 | $0 | $319,514 | $319,514 |
| 2020 | $165,348 | $110,000 | $0 | $275,348 | $275,348 |
| 2019 | $119,837 | $150,000 | $0 | $269,837 | $269,837 |
| 2018 | $120,221 | $140,000 | $0 | $260,221 | $260,221 |
| 2017 | $84,843 | $120,000 | $0 | $204,843 | $204,843 |
| 2016 | $86,272 | $110,000 | $0 | $196,272 | $196,272 |
| 2015 | $87,699 | $75,000 | $0 | $162,699 | $162,699 |
| 2014 | $89,128 | $68,000 | $0 | $157,128 | $157,128 |
| 2013 | $90,555 | $68,000 | $0 | $158,555 | $158,555 |
| 2012 | $91,984 | $68,000 | $0 | $159,984 | $159,984 |
| 2011 | $93,411 | $80,000 | $0 | $173,411 | $173,411 |
| 2010 | $102,350 | $80,000 | $0 | $182,350 | $182,350 |
| 2009 | $106,894 | $100,000 | $0 | $206,894 | $206,894 |
| 2008 | $108,414 | $113,000 | $0 | $221,414 | $221,414 |
| 2007 | $109,956 | $95,500 | $0 | $205,456 | $205,456 |
Deed and Sales History
| 1 | 02/13/2017 | WD | Warranty Deed | SECRETARY OF VETERAN AFFAIRS | LAWSON, SCOTT | | | $0.00 | 28180 | 4417667 |
| 2 | 10/14/2016 | WD | Warranty Deed | WELLS FARGO HOME MORTGAGE | SECRETARY OF VETERAN AFFAIRS | | | $0.00 | 26597 | 4409636 |
| 3 | 10/06/2016 | SHERIFFD | Sheriff Deed | HANSEN, RUSSELL M | WELLS FARGO HOME MORTGAGE | | | $0.00 | 26596 | 440935 |
| 4 | 08/01/1996 | DECREE | Divorce Decree/Legal Separation | HANSEN, RUSSELL M | HANSEN, RUSSELL M | | | $0.00 | 62797 | 96013656 |
| 5 | 07/01/1993 | WD | Warranty Deed | MOYER, DANNY C | HANSEN, RUSSELL M | | | $98,900.00 | 32728 | 93014150 |
| 6 | 10/01/1986 | WD | Warranty Deed | MCAULIFFE, PATRICIA A | MOYER, DANNY C | | | $59,000.00 | 63120 | 86014073 |
Payout Agreement
| No payout information available.. |