Property
Account |
| Property ID: | 384612 | Abbreviated Legal Description: | SEA VIEW 7 LOT 92 |
| Geographic ID: | S8135-07-00092-0 | Agent Code: | |
| Type: | Real | | |
| Tax Area: | 110 - APPRAISER-OH Schl Dist, outside OH, improved & 1 acre or less | Land Use Code | 11 |
| Open Space: | N | DFL | N |
| Historic Property: | N | Remodel Property: | N |
| Multi-Family Redevelopment: | N | | |
| Township: | | Section: | |
| Range: | |
Location |
| Address: | 2021 PINE WOOD WAY OAK HARBOR, WA 98277 | Mapsco: | |
| Neighborhood: | Cycle 1 | Map ID: | 106 |
| Neighborhood CD: | 1 |
Owner |
| Name: | DUNNING, PETER | Owner ID: | 277159 |
| Mailing Address: | 2021 PINEWOOD WAY OAK HARBOR, WA 98277 | % Ownership: | 100.0000000000% |
| | | Exemptions: | |
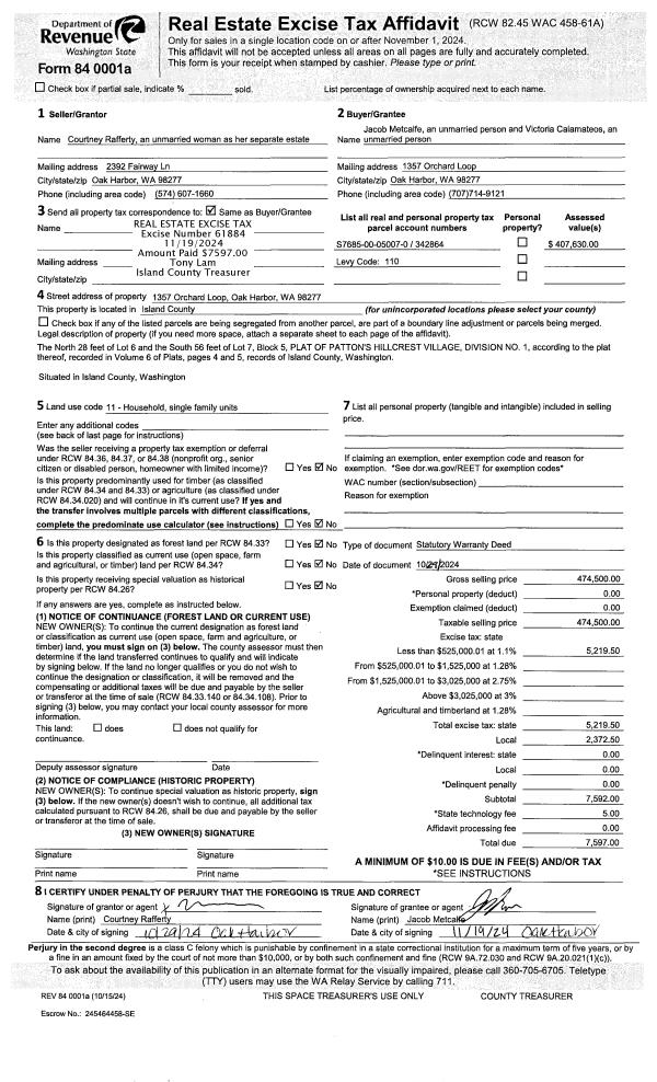
Taxes and Assessment Details
Values
| (+) Improvement Homesite Value: | + | $0 | |
| (+) Improvement Non-Homesite Value: | + | $303,160 | |
| (+) Land Homesite Value: | + | $0 | |
| (+) Land Non-Homesite Value: | + | $230,000 | |
| (+) Curr Use (HS): | + | $0 | $0 |
| (+) Curr Use (NHS): | + | $0 | $0 |
| | | -------------------------- | |
| (=) Market Value: | = | $533,160 | |
| (–) Productivity Loss: | – | $0 | |
| | | -------------------------- | |
| (=) Subtotal: | = | $533,160 | |
| (+) Senior Appraised Value: | + | $0 | |
| (+) Non-Senior Appraised Value: | + | $533,160 | |
| | | -------------------------- | |
| (=) Total Appraised Value: | = | $533,160 | |
| (–) Senior Exemption Loss: | – | $0 | |
| (–) Exemption Loss: | – | $0 | |
| | | -------------------------- | |
| (=) Taxable Value: | = | $533,160 | |
Taxing Jurisdiction
| Owner: | DUNNING, PETER | | |
| % Ownership: | 100.0000000000% | | |
| Total Value: | $533,160 | | |
| Tax Area: | 110 - APPRAISER-OH Schl Dist, outside OH, improved & 1 acre or less |
| CF | Conservation Futures | 0.0316035091 | $533,160 | $533,160 | $16.85 | | |
| CEM1 | Cemetery #1 | 0.0040320932 | $533,160 | $533,160 | $2.15 | | |
| FIRE2 | Fire & Rescue Dist #2 N Whidbey GEN | 0.5475949600 | $533,160 | $533,160 | $291.96 | | |
| HOBOND | Hospital BOND | 0.1910887512 | $533,160 | $533,160 | $101.88 | | |
| HOGEN | Hospital GEN | 0.3902502903 | $533,160 | $533,160 | $208.07 | | |
| CE | County Current Expense | 0.3708482477 | $533,160 | $533,160 | $197.72 | | |
| CR | County Roads | 0.4584763726 | $533,160 | $533,160 | $244.44 | | |
| ISLANDEMS | Hospital GEN (EMS) | 0.5000000000 | $533,160 | $533,160 | $266.58 | | |
| LIB | Library Sno-Isle GEN | 0.3153421757 | $533,160 | $533,160 | $168.13 | | |
| NWHIDPRMT | P & R N Whidbey GEN | 0.2004466701 | $533,160 | $533,160 | $106.87 | | |
| SCH201MO | School 201 Enrichment | 1.8559231640 | $533,160 | $533,160 | $989.50 | | |
| ST | State School | 1.3035497053 | $533,160 | $533,160 | $695.00 | | |
| ST2 | State School Part 2 | 0.8169543533 | $533,160 | $533,160 | $435.57 | | |
| | Total Tax Rate: | 6.9861102925 | | | | | |
| | | | | Taxes w/Current Exemptions: | $3,724.72 | | |
| | | | | Taxes w/o Exemptions: | $3,724.72 | | |
Improvement / Building
| Improvement #1: | RESIDENTIAL | State Code: | Y | 2045.6 sqft | Value: | $303,160 |
| Bathrooms: | 2 | Bedrooms: | 4 | | Ceiling: | DRYWALL PAINTED | Cooling: | HEAT PUMP/CONV/V | | Exterior Wall/Cover: | PLY/HARDBOARD T-111 | Floor Covering: | HARDWOOD/CARP 80-20 | | Floor Structure: | WOOD W/SUBFLOOR | Foundation: | CONCRETE | | Interior Finish: | DRYWALL PAINT | Plumbing Fixture Cnt: | 9 | | Roof Slope: | 8" IN 12" | Roof Structure/Cover: | CJ ASPHALT |
|
| | Type | Description | Class CD | Sub Class CD | Year Built | Area |
| | BAS | BASE/MAIN FLOOR | 3 | 0 | 1977 | 1530.8 |
| | AGR | ATTACHED GARAGE | 3 | 0 | 1977 | 396.0 |
| | UPS | UPPER STORY | 3 | 0 | 1977 | 514.8 |
| | OWP | OPEN WOOD PORCH W/STEPS | 3 | 0 | 1977 | 153.6 |
| | OWP | OPEN WOOD PORCH W/STEPS | 3 | 0 | 1977 | 280.0 |
| | OWR | OPEN WOOD PORCH W/STEPS/ROOF | 3 | 0 | 1977 | 55.0 |
Sketch
Property Image
Land
| 1 | 15 | SQ (12001-21780) | 0.0000 | 0.00 | 0.00 | 0.00 | 1.00 | $230,000 | $0 |
Roll Value History
| 2026 | N/A | N/A | N/A | N/A | N/A |
| 2025 | $303,160 | $230,000 | $0 | $533,160 | $533,160 |
| 2024 | $307,189 | $200,000 | $0 | $507,189 | $507,189 |
| 2023 | $300,994 | $200,000 | $0 | $500,994 | $500,994 |
| 2022 | $275,977 | $200,000 | $0 | $475,977 | $475,977 |
| 2021 | $242,981 | $150,000 | $0 | $392,981 | $392,981 |
| 2020 | $237,268 | $110,000 | $0 | $347,268 | $347,268 |
| 2019 | $182,531 | $150,000 | $0 | $332,531 | $332,531 |
| 2018 | $183,079 | $140,000 | $0 | $323,079 | $323,079 |
| 2017 | $184,074 | $120,000 | $0 | $304,074 | $304,074 |
| 2016 | $152,452 | $110,000 | $0 | $262,452 | $262,452 |
| 2015 | $154,599 | $75,000 | $0 | $229,599 | $229,599 |
| 2014 | $139,569 | $68,000 | $0 | $207,569 | $207,569 |
| 2013 | $141,717 | $68,000 | $0 | $209,717 | $209,717 |
| 2012 | $143,864 | $68,000 | $0 | $211,864 | $211,864 |
| 2011 | $145,615 | $80,000 | $0 | $225,615 | $225,615 |
| 2010 | $160,176 | $80,000 | $0 | $240,176 | $240,176 |
| 2009 | $166,988 | $100,000 | $0 | $266,988 | $266,988 |
| 2008 | $169,136 | $113,000 | $0 | $282,136 | $282,136 |
| 2007 | $171,282 | $95,500 | $0 | $266,782 | $266,782 |
Deed and Sales History
| 1 | 10/09/2016 | WD | Warranty Deed | BRAUN, CHRISTOPHER M | DUNNING, PETER | | | $325,000.00 | 26509 | 4409168 |
| 2 | 05/10/2007 | ESTSEPPROP | Establish Separate Property | BRAUN, CHRISTOPHER M | BRAUN, CHRISTOPHER M | | | $0.00 | 71589 | 4202019 |
| 3 | 03/15/2005 | ESTSEPPROP | Establish Separate Property | BRAUN, CHRISTOPHER M | BRAUN, CHRISTOPHER M | | | $0.00 | 51116 | 4128922 |
| 4 | 06/28/1999 | WD | Warranty Deed | DIZON, CECILIO M | BRAUN, CHRISTOPHER M | | | $158,950.00 | 92609 | 99015602 |
| 5 | 12/01/1994 | WD | Warranty Deed | BAUR, ANDREW T | DIZON, CECILIO M | | | $147,700.00 | 44954 | 94025216 |
| 6 | 08/01/1992 | WD | Warranty Deed | CONGDON, DAVID R | BAUR, ANDREW T | | | $135,950.00 | 23564 | 92017271 |
| 7 | 05/01/1990 | WD | Warranty Deed | HODGE, BILLY J | CONGDON, DAVID R | | | $94,000.00 | 3123 | 90010155 |
| 8 | 12/01/1987 | WD | Warranty Deed | WILSON, JAMES M | HODGE, BILLY J | | | $78,000.00 | 73915 | 87017023 |
| 9 | 09/01/1983 | WD | Warranty Deed | WILSON, JOSEPH R | WILSON, JAMES M | | | $75,200.00 | 33635 | 418633 |
Payout Agreement
| No payout information available.. |