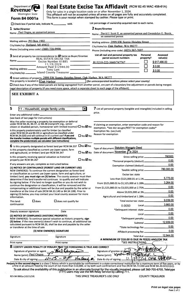
Property
Account |
| Property ID: | 384649 | Abbreviated Legal Description: | SEA VIEW 7 LOT 95 |
| Geographic ID: | S8135-07-00095-0 | Agent Code: | |
| Type: | Real | | |
| Tax Area: | 110 - APPRAISER-OH Schl Dist, outside OH, improved & 1 acre or less | Land Use Code | 11 |
| Open Space: | N | DFL | N |
| Historic Property: | N | Remodel Property: | N |
| Multi-Family Redevelopment: | N | | |
| Township: | | Section: | |
| Range: | |
Location |
| Address: | 2047 PINE WOOD WAY OAK HARBOR, WA 98277 | Mapsco: | |
| Neighborhood: | Cycle 1 | Map ID: | 106 |
| Neighborhood CD: | 1 |
Owner |
| Name: | SCHUMM, WILLIAM E | Owner ID: | 109358 |
| Mailing Address: | 2047 PINE WOOD WAY OAK HARBOR, WA 98277-7321 | % Ownership: | 100.0000000000% |
| | | Exemptions: | |
Taxes and Assessment Details
Values
| (+) Improvement Homesite Value: | + | $0 | |
| (+) Improvement Non-Homesite Value: | + | $311,838 | |
| (+) Land Homesite Value: | + | $0 | |
| (+) Land Non-Homesite Value: | + | $230,000 | |
| (+) Curr Use (HS): | + | $0 | $0 |
| (+) Curr Use (NHS): | + | $0 | $0 |
| | | -------------------------- | |
| (=) Market Value: | = | $541,838 | |
| (–) Productivity Loss: | – | $0 | |
| | | -------------------------- | |
| (=) Subtotal: | = | $541,838 | |
| (+) Senior Appraised Value: | + | $0 | |
| (+) Non-Senior Appraised Value: | + | $541,838 | |
| | | -------------------------- | |
| (=) Total Appraised Value: | = | $541,838 | |
| (–) Senior Exemption Loss: | – | $0 | |
| (–) Exemption Loss: | – | $0 | |
| | | -------------------------- | |
| (=) Taxable Value: | = | $541,838 | |
Taxing Jurisdiction
| Owner: | SCHUMM, WILLIAM E | | |
| % Ownership: | 100.0000000000% | | |
| Total Value: | $541,838 | | |
| Tax Area: | 110 - APPRAISER-OH Schl Dist, outside OH, improved & 1 acre or less |
| CF | Conservation Futures | 0.0316035091 | $541,838 | $541,838 | $17.12 | | |
| CEM1 | Cemetery #1 | 0.0040320932 | $541,838 | $541,838 | $2.18 | | |
| FIRE2 | Fire & Rescue Dist #2 N Whidbey GEN | 0.5475949600 | $541,838 | $541,838 | $296.71 | | |
| HOBOND | Hospital BOND | 0.1910887512 | $541,838 | $541,838 | $103.54 | | |
| HOGEN | Hospital GEN | 0.3902502903 | $541,838 | $541,838 | $211.45 | | |
| CE | County Current Expense | 0.3708482477 | $541,838 | $541,838 | $200.94 | | |
| CR | County Roads | 0.4584763726 | $541,838 | $541,838 | $248.42 | | |
| ISLANDEMS | Hospital GEN (EMS) | 0.5000000000 | $541,838 | $541,838 | $270.92 | | |
| LIB | Library Sno-Isle GEN | 0.3153421757 | $541,838 | $541,838 | $170.86 | | |
| NWHIDPRMT | P & R N Whidbey GEN | 0.2004466701 | $541,838 | $541,838 | $108.61 | | |
| SCH201MO | School 201 Enrichment | 1.8559231640 | $541,838 | $541,838 | $1,005.61 | | |
| ST | State School | 1.3035497053 | $541,838 | $541,838 | $706.31 | | |
| ST2 | State School Part 2 | 0.8169543533 | $541,838 | $541,838 | $442.66 | | |
| | Total Tax Rate: | 6.9861102925 | | | | | |
| | | | | Taxes w/Current Exemptions: | $3,785.33 | | |
| | | | | Taxes w/o Exemptions: | $3,785.33 | | |
Improvement / Building
| Improvement #1: | RESIDENTIAL | State Code: | Y | 1698.0 sqft | Value: | $311,838 |
| Bathrooms: | 2 | Bedrooms: | 3 | | Ceiling: | DRY WALL SPRAYED | Exterior Wall/Cover: | WOOD SIDING | | Floor Covering: | CARPET 100% | Floor Structure: | WOOD W/SUBFLOOR | | Foundation: | CONCRETE | Heating: | BASEBOARD ELECTRIC | | Interior Finish: | DRYWALL PAINT | Plumbing Fixture Cnt: | 9 | | Roof Slope: | 4" IN 12" | Roof Structure/Cover: | STEEL TERNE |
|
| | Type | Description | Class CD | Sub Class CD | Year Built | Area |
| | BAS | BASE/MAIN FLOOR | 3 | 0 | 1978 | 1698.0 |
| | OP4 | OPEN PORCH W/CEILING-ROOF | 3 | 0 | 1978 | 30.0 |
| | AGR | ATTACHED GARAGE | 3 | 0 | 1978 | 506.0 |
| | DGR | DETACHED GARAGE | 3 | 0 | 1978 | 690.0 |
Sketch
Property Image
Land
| 1 | 15 | SQ (12001-21780) | 0.0000 | 0.00 | 0.00 | 0.00 | 1.00 | $230,000 | $0 |
Roll Value History
| 2026 | N/A | N/A | N/A | N/A | N/A |
| 2025 | $311,838 | $230,000 | $0 | $541,838 | $541,838 |
| 2024 | $322,265 | $200,000 | $0 | $522,265 | $522,265 |
| 2023 | $317,926 | $200,000 | $0 | $517,926 | $517,926 |
| 2022 | $291,815 | $200,000 | $0 | $491,815 | $491,815 |
| 2021 | $257,164 | $150,000 | $0 | $407,164 | $407,164 |
| 2020 | $251,272 | $110,000 | $0 | $361,272 | $361,272 |
| 2019 | $186,056 | $150,000 | $0 | $336,056 | $336,056 |
| 2018 | $186,658 | $140,000 | $0 | $326,658 | $326,658 |
| 2017 | $160,067 | $120,000 | $0 | $280,067 | $280,067 |
| 2016 | $162,207 | $110,000 | $0 | $272,207 | $272,207 |
| 2015 | $164,348 | $75,000 | $0 | $239,348 | $239,348 |
| 2014 | $166,490 | $68,000 | $0 | $234,490 | $234,490 |
| 2013 | $168,631 | $68,000 | $0 | $236,631 | $236,631 |
| 2012 | $170,770 | $68,000 | $0 | $238,770 | $238,770 |
| 2011 | $176,916 | $80,000 | $0 | $256,916 | $256,916 |
| 2010 | $187,894 | $80,000 | $0 | $267,894 | $267,894 |
| 2009 | $195,792 | $100,000 | $0 | $295,792 | $295,792 |
| 2008 | $199,348 | $113,000 | $0 | $312,348 | $312,348 |
| 2007 | $202,850 | $95,500 | $0 | $298,350 | $298,350 |
Deed and Sales History
| 1 | 07/01/1979 | WD | Warranty Deed | KACKMAN, CRAIG L | SCHUUM, WILLIAM E | | | $48,000.00 | 93853 | 356813 |
| 2 | 01/01/1900 | OTHER | Other - Misc. Documents | Unknown | KACKMAN, CRAIG L | | | $0.00 | 0 | 0 |
Payout Agreement
| No payout information available.. |