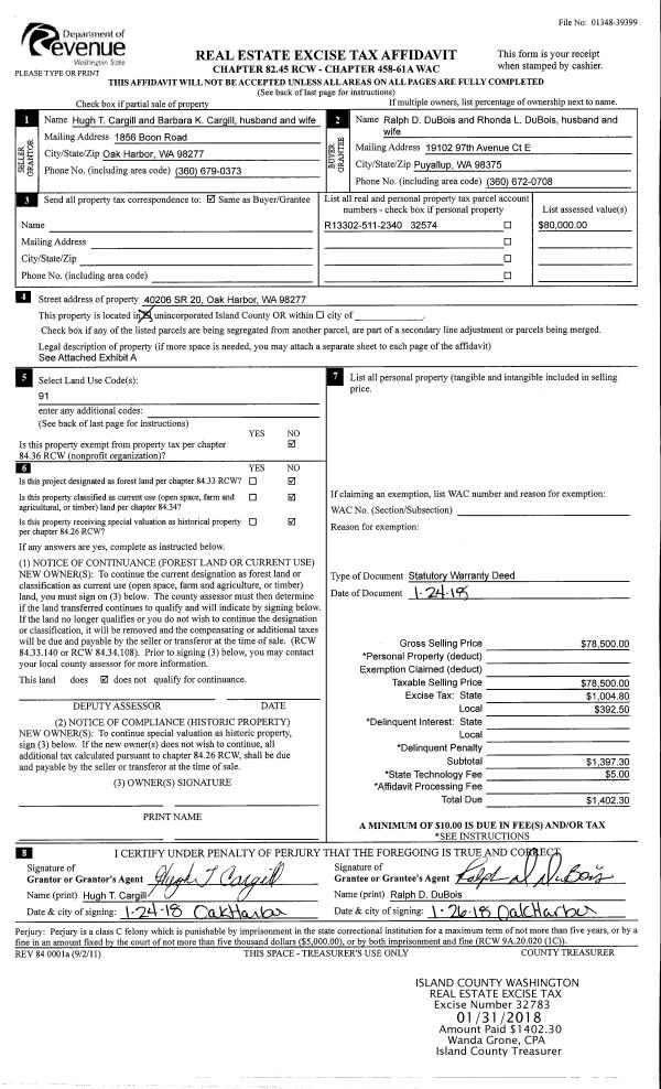
Property
Account |
| Property ID: | 384747 | Abbreviated Legal Description: | SHAD GLN 1 LOT 1 BLK 1 |
| Geographic ID: | S8140-00-01001-0 | Agent Code: | |
| Type: | Real | | |
| Tax Area: | 100 - APPRAISER-OH Schl Dist, in OH | Land Use Code | 11 |
| Open Space: | N | DFL | N |
| Historic Property: | N | Remodel Property: | N |
| Multi-Family Redevelopment: | N | | |
| Township: | | Section: | |
| Range: | |
Location |
| Address: | 1079 NW ANCHOR DR OAK HARBOR, WA 98277 | Mapsco: | |
| Neighborhood: | Cycle 1 | Map ID: | 255 |
| Neighborhood CD: | 1 |
Owner |
| Name: | PERRIGOUE, CHANTELLE S | Owner ID: | 305814 |
| Mailing Address: | 1079 NORTHWEST ANCHOR DR OAK HARBOR, WA 98277 | % Ownership: | 100.0000000000% |
| | | Exemptions: | |
Taxes and Assessment Details
Values
| (+) Improvement Homesite Value: | + | $0 | |
| (+) Improvement Non-Homesite Value: | + | $182,640 | |
| (+) Land Homesite Value: | + | $0 | |
| (+) Land Non-Homesite Value: | + | $190,000 | |
| (+) Curr Use (HS): | + | $0 | $0 |
| (+) Curr Use (NHS): | + | $0 | $0 |
| | | -------------------------- | |
| (=) Market Value: | = | $372,640 | |
| (–) Productivity Loss: | – | $0 | |
| | | -------------------------- | |
| (=) Subtotal: | = | $372,640 | |
| (+) Senior Appraised Value: | + | $0 | |
| (+) Non-Senior Appraised Value: | + | $372,640 | |
| | | -------------------------- | |
| (=) Total Appraised Value: | = | $372,640 | |
| (–) Senior Exemption Loss: | – | $0 | |
| (–) Exemption Loss: | – | $0 | |
| | | -------------------------- | |
| (=) Taxable Value: | = | $372,640 | |
Taxing Jurisdiction
| Owner: | PERRIGOUE, CHANTELLE S | | |
| % Ownership: | 100.0000000000% | | |
| Total Value: | $372,640 | | |
| Tax Area: | 100 - APPRAISER-OH Schl Dist, in OH |
| CF | Conservation Futures | 0.0316035091 | $372,640 | $372,640 | $11.78 | | |
| CEM1 | Cemetery #1 | 0.0040320932 | $372,640 | $372,640 | $1.50 | | |
| COH | City of Oak Harbor | 2.3001546061 | $372,640 | $372,640 | $857.13 | | |
| OAKBOND | City of Oak Harbor BOND | 0.1926904192 | $372,640 | $372,640 | $71.80 | | |
| HOBOND | Hospital BOND | 0.1910887512 | $372,640 | $372,640 | $71.21 | | |
| HOGEN | Hospital GEN | 0.3902502903 | $372,640 | $372,640 | $145.42 | | |
| CE | County Current Expense | 0.3708482477 | $372,640 | $372,640 | $138.19 | | |
| ISLANDEMS | Hospital GEN (EMS) | 0.5000000000 | $372,640 | $372,640 | $186.32 | | |
| LIB | Library Sno-Isle GEN | 0.3153421757 | $372,640 | $372,640 | $117.51 | | |
| NWHIDPRMT | P & R N Whidbey GEN | 0.2004466701 | $372,640 | $372,640 | $74.69 | | |
| SCH201MO | School 201 Enrichment | 1.8559231640 | $372,640 | $372,640 | $691.59 | | |
| ST | State School | 1.3035497053 | $372,640 | $372,640 | $485.75 | | |
| ST2 | State School Part 2 | 0.8169543533 | $372,640 | $372,640 | $304.43 | | |
| | Total Tax Rate: | 8.4728839852 | | | | | |
| | | | | Taxes w/Current Exemptions: | $3,157.32 | | |
| | | | | Taxes w/o Exemptions: | $3,157.32 | | |
Improvement / Building
| Improvement #1: | RESIDENTIAL | State Code: | Y | 1092.0 sqft | Value: | $182,640 |
| Bathrooms: | 1 | Bedrooms: | 3 | | Ceiling: | DRY WALL SPRAYED | Exterior Wall/Cover: | WOOD SIDING | | Floor Covering: | CARPET/VINYL 60-40 | Floor Structure: | WOOD W/SUBFLOOR | | Foundation: | CONCRETE | Heating: | BASEBOARD ELECTRIC | | Interior Finish: | DRYWALL PAINT | Plumbing Fixture Cnt: | 6 | | Roof Slope: | 4" IN 12" | Roof Structure/Cover: | CJ ASPHALT |
|
| | Type | Description | Class CD | Sub Class CD | Year Built | Area |
| | BAS | BASE/MAIN FLOOR | 3 | 0 | 1968 | 1092.0 |
| | OP2 | OPEN PORCH W/STEPS | 3 | 0 | 1968 | 64.0 |
| | AGR | ATTACHED GARAGE | 3 | 0 | 1968 | 312.0 |
Sketch
Property Image
Land
| 1 | 13 | SQ (06001-08000) | 0.0000 | 0.00 | 0.00 | 0.00 | 1.00 | $190,000 | $0 |
Roll Value History
| 2026 | N/A | N/A | N/A | N/A | N/A |
| 2025 | $182,640 | $190,000 | $0 | $372,640 | $372,640 |
| 2024 | $188,960 | $180,000 | $0 | $368,960 | $368,960 |
| 2023 | $186,545 | $190,000 | $0 | $376,545 | $376,545 |
| 2022 | $171,109 | $180,000 | $0 | $351,109 | $351,109 |
| 2021 | $150,691 | $130,000 | $0 | $280,691 | $280,691 |
| 2020 | $146,983 | $100,000 | $0 | $246,983 | $246,983 |
| 2019 | $106,082 | $150,000 | $0 | $256,082 | $256,082 |
| 2018 | $106,407 | $130,000 | $0 | $236,407 | $236,407 |
| 2017 | $107,061 | $110,000 | $0 | $217,061 | $217,061 |
| 2016 | $76,978 | $90,000 | $0 | $166,978 | $166,978 |
| 2015 | $78,219 | $70,000 | $0 | $148,219 | $148,219 |
| 2014 | $79,460 | $55,000 | $0 | $134,460 | $134,460 |
| 2013 | $80,703 | $55,000 | $0 | $135,703 | $135,703 |
| 2012 | $81,943 | $65,000 | $0 | $146,943 | $146,943 |
| 2011 | $74,859 | $65,000 | $0 | $139,859 | $139,859 |
| 2010 | $82,930 | $65,000 | $0 | $147,930 | $147,930 |
| 2009 | $86,638 | $87,150 | $0 | $173,788 | $173,788 |
| 2008 | $87,882 | $105,000 | $0 | $192,882 | $192,882 |
| 2007 | $89,126 | $105,000 | $0 | $194,126 | $194,126 |
Deed and Sales History
| 1 | 03/16/2022 | WD | Warranty Deed | ROBINSON, KRISTEN L | PERRIGOUE, CHANTELLE S | | | $405,000.00 | 52434 | 4542115 |
| 2 | 01/28/2017 | WD | Warranty Deed | HILL, DAVID A | ROBINSON, KRISTEN L | | | $229,000.00 | 27920 | 4416205 |
| 3 | 09/23/2010 | WD | Warranty Deed | NAVY FEDERAL CREDIT UNION | HILL, DAVID A | | | $138,900.00 | 2430 | 4281949 |
| 4 | 04/21/2010 | TRUSTEED | Trustee's Deed | HARRINGTON, THOMAS J | NAVY FEDERAL CREDIT UNION, | | | $53,368.00 | 979 | 4272784 |
| 5 | 05/01/1997 | WD | Warranty Deed | HIGGINS, DENNIS | HARRINGTON, THOMAS J | | | $89,500.00 | 71840 | 97008395 |
| 6 | 09/01/1989 | WD | Warranty Deed | MASSEY, WILLIAM L | HIGGINS, DENNIS | | | $60,000.00 | 94210 | 89013851 |
| 7 | 04/01/1985 | WD | Warranty Deed | SEC, HOUSING & | MASSEY, WILLIAM L | | | $0.00 | 51123 | 85004611 |
| 8 | 02/01/1985 | WD | Warranty Deed | MCCRACKEN, OWEN H | SEC, HOUSING & | | | $0.00 | 50412 | 85001907 |
| 9 | 09/01/1981 | WD | Warranty Deed | ISLAND, RESOURCES, I | MCCRACKEN, OWEN H | | | $49,000.00 | 12751 | 387482 |
| 10 | 12/01/1979 | WD | Warranty Deed | GALLEGOS, ALEXIUS M | ISLAND, RESOURCES, I | | | $42,460.00 | 95762 | 362642 |
Payout Agreement
| No payout information available.. |