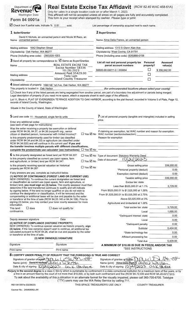
Property
Account |
| Property ID: | 384943 | Abbreviated Legal Description: | SHAD GLN 1 LOT 21 BLK 1 |
| Geographic ID: | S8140-00-01021-0 | Agent Code: | |
| Type: | Real | | |
| Tax Area: | 100 - APPRAISER-OH Schl Dist, in OH | Land Use Code | 11 |
| Open Space: | N | DFL | N |
| Historic Property: | N | Remodel Property: | N |
| Multi-Family Redevelopment: | N | | |
| Township: | | Section: | |
| Range: | |
Location |
| Address: | 1092 NW CATHLAMET DR OAK HARBOR, WA 98277 | Mapsco: | |
| Neighborhood: | Cycle 1 | Map ID: | 255 |
| Neighborhood CD: | 1 |
Owner |
| Name: | JENSEN, ROBERT L | Owner ID: | 80069 |
| Mailing Address: | 1092 NW CATHLAMET DR OAK HARBOR, WA 98277-2071 | % Ownership: | 100.0000000000% |
| | | Exemptions: | |
Taxes and Assessment Details
Values
| (+) Improvement Homesite Value: | + | $0 | |
| (+) Improvement Non-Homesite Value: | + | $189,936 | |
| (+) Land Homesite Value: | + | $0 | |
| (+) Land Non-Homesite Value: | + | $190,000 | |
| (+) Curr Use (HS): | + | $0 | $0 |
| (+) Curr Use (NHS): | + | $0 | $0 |
| | | -------------------------- | |
| (=) Market Value: | = | $379,936 | |
| (–) Productivity Loss: | – | $0 | |
| | | -------------------------- | |
| (=) Subtotal: | = | $379,936 | |
| (+) Senior Appraised Value: | + | $0 | |
| (+) Non-Senior Appraised Value: | + | $379,936 | |
| | | -------------------------- | |
| (=) Total Appraised Value: | = | $379,936 | |
| (–) Senior Exemption Loss: | – | $0 | |
| (–) Exemption Loss: | – | $0 | |
| | | -------------------------- | |
| (=) Taxable Value: | = | $379,936 | |
Taxing Jurisdiction
| Owner: | JENSEN, ROBERT L | | |
| % Ownership: | 100.0000000000% | | |
| Total Value: | $379,936 | | |
| Tax Area: | 100 - APPRAISER-OH Schl Dist, in OH |
| CF | Conservation Futures | 0.0316035091 | $379,936 | $379,936 | $12.01 | | |
| CEM1 | Cemetery #1 | 0.0040320932 | $379,936 | $379,936 | $1.53 | | |
| COH | City of Oak Harbor | 2.3001546061 | $379,936 | $379,936 | $873.91 | | |
| OAKBOND | City of Oak Harbor BOND | 0.1926904192 | $379,936 | $379,936 | $73.21 | | |
| HOBOND | Hospital BOND | 0.1910887512 | $379,936 | $379,936 | $72.60 | | |
| HOGEN | Hospital GEN | 0.3902502903 | $379,936 | $379,936 | $148.27 | | |
| CE | County Current Expense | 0.3708482477 | $379,936 | $379,936 | $140.90 | | |
| ISLANDEMS | Hospital GEN (EMS) | 0.5000000000 | $379,936 | $379,936 | $189.97 | | |
| LIB | Library Sno-Isle GEN | 0.3153421757 | $379,936 | $379,936 | $119.81 | | |
| NWHIDPRMT | P & R N Whidbey GEN | 0.2004466701 | $379,936 | $379,936 | $76.16 | | |
| SCH201MO | School 201 Enrichment | 1.8559231640 | $379,936 | $379,936 | $705.13 | | |
| ST | State School | 1.3035497053 | $379,936 | $379,936 | $495.27 | | |
| ST2 | State School Part 2 | 0.8169543533 | $379,936 | $379,936 | $310.39 | | |
| | Total Tax Rate: | 8.4728839852 | | | | | |
| | | | | Taxes w/Current Exemptions: | $3,219.16 | | |
| | | | | Taxes w/o Exemptions: | $3,219.16 | | |
Improvement / Building
| Improvement #1: | RESIDENTIAL | State Code: | Y | 1014.0 sqft | Value: | $189,936 |
| Bathrooms: | 1 | Bedrooms: | 3 | | Ceiling: | DRY WALL SPRAYED | Exterior Wall/Cover: | WOOD SIDING | | Floor Covering: | VINYL/HARDWOOD 20-80 | Floor Structure: | WOOD W/SUBFLOOR | | Foundation: | CONCRETE | Heating: | FHA GAS | | Interior Finish: | DRYWALL PAINT | Plumbing Fixture Cnt: | 6 | | Roof Slope: | 4" IN 12" | Roof Structure/Cover: | CJ ASPHALT |
|
| | Type | Description | Class CD | Sub Class CD | Year Built | Area |
| | BAS | BASE/MAIN FLOOR | 3 | 0 | 1970 | 1014.0 |
| | OWP | OPEN WOOD PORCH W/STEPS | 3 | 0 | 1970 | 170.0 |
| | AGR | ATTACHED GARAGE | 3 | 0 | 1970 | 312.0 |
| | ENP | ENCLOSED PORCH | 3 | 0 | 1970 | 161.0 |
Sketch
Property Image
Land
| 1 | 14 | SQ (08001-12000) | 0.0000 | 0.00 | 0.00 | 0.00 | 1.00 | $190,000 | $0 |
Roll Value History
| 2026 | N/A | N/A | N/A | N/A | N/A |
| 2025 | $189,936 | $190,000 | $0 | $379,936 | $379,936 |
| 2024 | $192,461 | $180,000 | $0 | $372,461 | $372,461 |
| 2023 | $189,936 | $190,000 | $0 | $379,936 | $379,936 |
| 2022 | $174,274 | $180,000 | $0 | $354,274 | $354,274 |
| 2021 | $153,531 | $130,000 | $0 | $283,531 | $283,531 |
| 2020 | $149,806 | $100,000 | $0 | $249,806 | $249,806 |
| 2019 | $107,025 | $150,000 | $0 | $257,025 | $257,025 |
| 2018 | $107,363 | $130,000 | $0 | $237,363 | $237,363 |
| 2017 | $81,326 | $110,000 | $0 | $191,326 | $191,326 |
| 2016 | $82,660 | $90,000 | $0 | $172,660 | $172,660 |
| 2015 | $83,993 | $70,000 | $0 | $153,993 | $153,993 |
| 2014 | $85,325 | $55,000 | $0 | $140,325 | $140,325 |
| 2013 | $86,659 | $55,000 | $0 | $141,659 | $141,659 |
| 2012 | $87,993 | $65,000 | $0 | $152,993 | $152,993 |
| 2011 | $75,877 | $65,000 | $0 | $140,877 | $140,877 |
| 2010 | $82,903 | $65,000 | $0 | $147,903 | $147,903 |
| 2009 | $86,798 | $87,150 | $0 | $173,948 | $173,948 |
| 2008 | $88,273 | $105,000 | $0 | $193,273 | $193,273 |
| 2007 | $89,746 | $105,000 | $0 | $194,746 | $194,746 |
Deed and Sales History
| 1 | 07/01/1984 | WD | Warranty Deed | PERROTTA, PAUL T | JENSEN, ROBERT L | | | $53,000.00 | 42055 | 84000719 |
| 2 | 06/01/1982 | WD | Warranty Deed | KOETJE, NEIL H | PERROTTA, PAUL T | | | $43,000.00 | 21433 | 397410 |
| 3 | 01/01/1900 | OTHER | Other - Misc. Documents | Unknown | KOETJE, NEIL H | | | $0.00 | 0 | 0 |
Payout Agreement
| No payout information available.. |