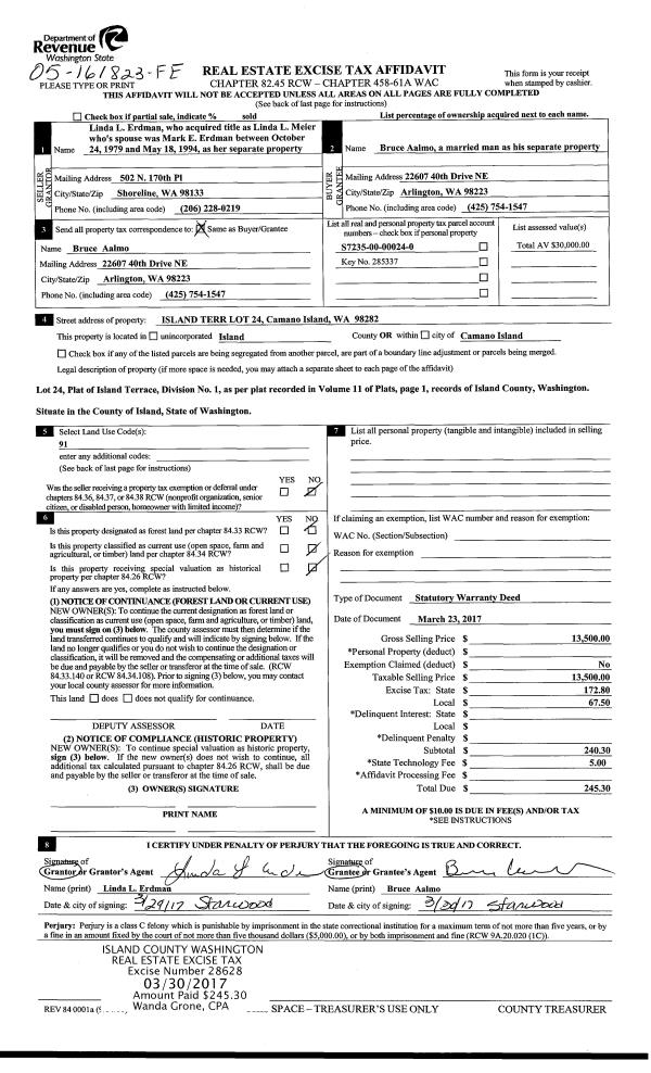
Property
Account |
| Property ID: | 385005 | Abbreviated Legal Description: | SHAD GLN 1 LOT 6 BLK 2 |
| Geographic ID: | S8140-00-02006-0 | Agent Code: | |
| Type: | Real | | |
| Tax Area: | 160 - APPRAISER-OH Schl Dist, Special Dist, improved & 1 acre or less | Land Use Code | 11 |
| Open Space: | N | DFL | N |
| Historic Property: | N | Remodel Property: | N |
| Multi-Family Redevelopment: | N | | |
| Township: | | Section: | |
| Range: | |
Location |
| Address: | 944 NW CATHLAMET DR OAK HARBOR, WA 98277 | Mapsco: | |
| Neighborhood: | Cycle 1 | Map ID: | 255 |
| Neighborhood CD: | 1 |
Owner |
| Name: | SMALLS, JUAN A | Owner ID: | 278439 |
| Mailing Address: | LEJANI L SMALLS 944 NW CATHLAMET DR OAK HARBOR, WA 98277 | % Ownership: | 100.0000000000% |
| | | Exemptions: | |
Taxes and Assessment Details
Values
| (+) Improvement Homesite Value: | + | $0 | |
| (+) Improvement Non-Homesite Value: | + | $187,725 | |
| (+) Land Homesite Value: | + | $0 | |
| (+) Land Non-Homesite Value: | + | $190,000 | |
| (+) Curr Use (HS): | + | $0 | $0 |
| (+) Curr Use (NHS): | + | $0 | $0 |
| | | -------------------------- | |
| (=) Market Value: | = | $377,725 | |
| (–) Productivity Loss: | – | $0 | |
| | | -------------------------- | |
| (=) Subtotal: | = | $377,725 | |
| (+) Senior Appraised Value: | + | $0 | |
| (+) Non-Senior Appraised Value: | + | $377,725 | |
| | | -------------------------- | |
| (=) Total Appraised Value: | = | $377,725 | |
| (–) Senior Exemption Loss: | – | $0 | |
| (–) Exemption Loss: | – | $0 | |
| | | -------------------------- | |
| (=) Taxable Value: | = | $377,725 | |
Taxing Jurisdiction
| Owner: | SMALLS, JUAN A | | |
| % Ownership: | 100.0000000000% | | |
| Total Value: | $377,725 | | |
| Tax Area: | 160 - APPRAISER-OH Schl Dist, Special Dist, improved & 1 acre or less |
| CF | Conservation Futures | 0.0316035091 | $377,725 | $377,725 | $11.94 | | |
| CEM1 | Cemetery #1 | 0.0040320932 | $377,725 | $377,725 | $1.52 | | |
| FIRE2 | Fire & Rescue Dist #2 N Whidbey GEN | 0.5475949600 | $377,725 | $377,725 | $206.84 | | |
| HOBOND | Hospital BOND | 0.1910887512 | $377,725 | $377,725 | $72.18 | | |
| HOGEN | Hospital GEN | 0.3902502903 | $377,725 | $377,725 | $147.41 | | |
| CE | County Current Expense | 0.3708482477 | $377,725 | $377,725 | $140.08 | | |
| CR | County Roads | 0.4584763726 | $377,725 | $377,725 | $173.18 | | |
| ISLANDEMS | Hospital GEN (EMS) | 0.5000000000 | $377,725 | $377,725 | $188.86 | | |
| LIB | Library Sno-Isle GEN | 0.3153421757 | $377,725 | $377,725 | $119.11 | | |
| NWHIDPRMT | P & R N Whidbey GEN | 0.2004466701 | $377,725 | $377,725 | $75.71 | | |
| SCH201MO | School 201 Enrichment | 1.8559231640 | $377,725 | $377,725 | $701.03 | | |
| ST | State School | 1.3035497053 | $377,725 | $377,725 | $492.38 | | |
| ST2 | State School Part 2 | 0.8169543533 | $377,725 | $377,725 | $308.58 | | |
| | Total Tax Rate: | 6.9861102925 | | | | | |
| | | | | Taxes w/Current Exemptions: | $2,638.82 | | |
| | | | | Taxes w/o Exemptions: | $2,638.82 | | |
Improvement / Building
| Improvement #1: | RESIDENTIAL | State Code: | Y | 1326.0 sqft | Value: | $187,725 |
| Bathrooms: | 1 | Bedrooms: | 3 | | Ceiling: | DRY WALL SPRAYED | Exterior Wall/Cover: | WOOD SIDING | | Floor Covering: | VINYL/HARDWOOD 20-80 | Floor Structure: | WOOD W/SUBFLOOR | | Foundation: | CONCRETE | Heating: | BASEBOARD ELECTRIC | | Interior Finish: | DRYWALL PAINT | Plumbing Fixture Cnt: | 6 | | Roof Slope: | 4" IN 12" | Roof Structure/Cover: | CJ ASPHALT |
|
| | Type | Description | Class CD | Sub Class CD | Year Built | Area |
| | BAS | BASE/MAIN FLOOR | 3 | 0 | 1970 | 1326.0 |
| | OP2 | OPEN PORCH W/STEPS | 3 | 0 | 1970 | 22.5 |
| | OWP | OPEN WOOD PORCH W/STEPS | 3 | 0 | 1970 | 132.0 |
Sketch
Property Image
Land
| 1 | 14 | SQ (08001-12000) | 0.0000 | 0.00 | 0.00 | 0.00 | 1.00 | $190,000 | $0 |
Roll Value History
| 2026 | N/A | N/A | N/A | N/A | N/A |
| 2025 | $187,725 | $190,000 | $0 | $377,725 | $377,725 |
| 2024 | $194,201 | $180,000 | $0 | $374,201 | $374,201 |
| 2023 | $191,620 | $190,000 | $0 | $381,620 | $381,620 |
| 2022 | $175,843 | $180,000 | $0 | $355,843 | $355,843 |
| 2021 | $154,946 | $130,000 | $0 | $284,946 | $284,946 |
| 2020 | $151,461 | $100,000 | $0 | $251,461 | $251,461 |
| 2019 | $109,889 | $150,000 | $0 | $259,889 | $259,889 |
| 2018 | $110,240 | $130,000 | $0 | $240,240 | $240,240 |
| 2017 | $110,943 | $110,000 | $0 | $220,943 | $220,943 |
| 2016 | $88,739 | $90,000 | $0 | $178,739 | $178,739 |
| 2015 | $90,147 | $70,000 | $0 | $160,147 | $160,147 |
| 2014 | $91,555 | $55,000 | $0 | $146,555 | $146,555 |
| 2013 | $89,079 | $55,000 | $0 | $144,079 | $144,079 |
| 2012 | $90,515 | $65,000 | $0 | $155,515 | $155,515 |
| 2011 | $82,282 | $65,000 | $0 | $147,282 | $147,282 |
| 2010 | $88,836 | $65,000 | $0 | $153,836 | $153,836 |
| 2009 | $92,935 | $87,150 | $0 | $180,085 | $180,085 |
| 2008 | $94,340 | $105,000 | $0 | $199,340 | $199,340 |
| 2007 | $95,829 | $105,000 | $0 | $200,829 | $200,829 |
Deed and Sales History
| 1 | 02/01/2017 | WD | Warranty Deed | DUNCANS, GREGORY SCOTT | SMALLS, JUAN A | | | $229,000.00 | 27977 | 4416551 |
| 2 | 01/01/1998 | DECREE | Divorce Decree/Legal Separation | DUNCANS, GREGORY S | DUNCANS, GREGORY S | | | $0.00 | 80413 | 98002105 |
| 3 | 11/01/1995 | WD | Warranty Deed | MORGAN, KENNETH R | DUNCANS, GREGORY S | | | $105,000.00 | 53956 | 95018198 |
| 4 | 10/01/1992 | WD | Warranty Deed | HOLGUIN, ANTONIO | MORGAN, KENNETH R | | | $82,900.00 | 24323 | 92021169 |
| 5 | 04/01/1986 | WD | Warranty Deed | WINBLAD, ROBERT D | HOLGUIN, ANTONIO | | | $55,000.00 | 61088 | 86005031 |
| 6 | 02/01/1984 | QCD | Quit Claim Deed | WINBLAD, ROBERT D | WINBLAD, ROBERT D | | | $2,600.00 | 40339 | 421112 |
| 7 | 11/01/1979 | REC | Real Estate Contract | ROMANO, LEONARD A | WINBLAD, ROBERT D | | | $48,000.00 | 95550 | 361998 |
Payout Agreement
| No payout information available.. |