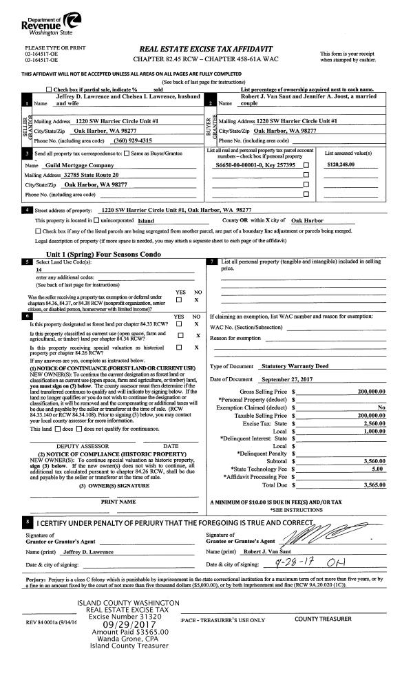
Property
Account |
| Property ID: | 385103 | Abbreviated Legal Description: | SHAD GLN 1 LOT 16 BLK 2 |
| Geographic ID: | S8140-00-02016-0 | Agent Code: | |
| Type: | Real | | |
| Tax Area: | 100 - APPRAISER-OH Schl Dist, in OH | Land Use Code | 11 |
| Open Space: | N | DFL | N |
| Historic Property: | N | Remodel Property: | N |
| Multi-Family Redevelopment: | N | | |
| Township: | | Section: | |
| Range: | |
Location |
| Address: | 1043 NW ANCHOR DR OAK HARBOR, WA 98277 | Mapsco: | |
| Neighborhood: | Cycle 1 | Map ID: | 255 |
| Neighborhood CD: | 1 |
Owner |
| Name: | BURTON, LARRY W | Owner ID: | 302113 |
| Mailing Address: | NOELL ANN WILSON 1043 NW ANCHOR DR OAK HARBOR, WA 98277 | % Ownership: | 100.0000000000% |
| | | Exemptions: | |
Taxes and Assessment Details
Values
| (+) Improvement Homesite Value: | + | $0 | |
| (+) Improvement Non-Homesite Value: | + | $201,569 | |
| (+) Land Homesite Value: | + | $0 | |
| (+) Land Non-Homesite Value: | + | $190,000 | |
| (+) Curr Use (HS): | + | $0 | $0 |
| (+) Curr Use (NHS): | + | $0 | $0 |
| | | -------------------------- | |
| (=) Market Value: | = | $391,569 | |
| (–) Productivity Loss: | – | $0 | |
| | | -------------------------- | |
| (=) Subtotal: | = | $391,569 | |
| (+) Senior Appraised Value: | + | $0 | |
| (+) Non-Senior Appraised Value: | + | $391,569 | |
| | | -------------------------- | |
| (=) Total Appraised Value: | = | $391,569 | |
| (–) Senior Exemption Loss: | – | $0 | |
| (–) Exemption Loss: | – | $0 | |
| | | -------------------------- | |
| (=) Taxable Value: | = | $391,569 | |
Taxing Jurisdiction
| Owner: | BURTON, LARRY W | | |
| % Ownership: | 100.0000000000% | | |
| Total Value: | $391,569 | | |
| Tax Area: | 100 - APPRAISER-OH Schl Dist, in OH |
| CF | Conservation Futures | 0.0316035091 | $391,569 | $391,569 | $12.37 | | |
| CEM1 | Cemetery #1 | 0.0040320932 | $391,569 | $391,569 | $1.58 | | |
| COH | City of Oak Harbor | 2.3001546061 | $391,569 | $391,569 | $900.67 | | |
| OAKBOND | City of Oak Harbor BOND | 0.1926904192 | $391,569 | $391,569 | $75.45 | | |
| HOBOND | Hospital BOND | 0.1910887512 | $391,569 | $391,569 | $74.82 | | |
| HOGEN | Hospital GEN | 0.3902502903 | $391,569 | $391,569 | $152.81 | | |
| CE | County Current Expense | 0.3708482477 | $391,569 | $391,569 | $145.21 | | |
| ISLANDEMS | Hospital GEN (EMS) | 0.5000000000 | $391,569 | $391,569 | $195.78 | | |
| LIB | Library Sno-Isle GEN | 0.3153421757 | $391,569 | $391,569 | $123.48 | | |
| NWHIDPRMT | P & R N Whidbey GEN | 0.2004466701 | $391,569 | $391,569 | $78.49 | | |
| SCH201MO | School 201 Enrichment | 1.8559231640 | $391,569 | $391,569 | $726.72 | | |
| ST | State School | 1.3035497053 | $391,569 | $391,569 | $510.43 | | |
| ST2 | State School Part 2 | 0.8169543533 | $391,569 | $391,569 | $319.89 | | |
| | Total Tax Rate: | 8.4728839852 | | | | | |
| | | | | Taxes w/Current Exemptions: | $3,317.70 | | |
| | | | | Taxes w/o Exemptions: | $3,317.70 | | |
Improvement / Building
| Improvement #1: | RESIDENTIAL | State Code: | Y | 1567.6 sqft | Value: | $201,569 |
| Bathrooms: | 1.25 | Bedrooms: | 4 | | Ceiling: | DRYWALL PAINTED | Exterior Wall/Cover: | WOOD SIDING | | Floor Covering: | HARDWOOD/CARP 20-80 | Floor Structure: | WOOD W/SUBFLOOR | | Foundation: | CONCRETE | Heating: | BASEBOARD ELECTRIC | | Interior Finish: | DRYWALL PAINT | Plumbing Fixture Cnt: | 8 | | Roof Slope: | 4" IN 12" | Roof Structure/Cover: | CJ ASPHALT |
|
| | Type | Description | Class CD | Sub Class CD | Year Built | Area |
| | BAS | BASE/MAIN FLOOR | 3 | 0 | 1968 | 1567.6 |
| | OP2 | OPEN PORCH W/STEPS | 3 | 0 | 1968 | 16.0 |
| | UTY | STORAGE/UTILITY | 3 | 0 | 1968 | 81.6 |
| | OWP | OPEN WOOD PORCH W/STEPS | 3 | 0 | 1968 | 100.0 |
Sketch
Property Image
Land
| 1 | 13 | SQ (06001-08000) | 0.0000 | 0.00 | 0.00 | 0.00 | 1.00 | $190,000 | $0 |
Roll Value History
| 2026 | N/A | N/A | N/A | N/A | N/A |
| 2025 | $201,569 | $190,000 | $0 | $391,569 | $391,569 |
| 2024 | $208,796 | $180,000 | $0 | $388,796 | $388,796 |
| 2023 | $205,866 | $190,000 | $0 | $395,866 | $395,866 |
| 2022 | $189,059 | $180,000 | $0 | $369,059 | $369,059 |
| 2021 | $166,711 | $130,000 | $0 | $296,711 | $296,711 |
| 2020 | $162,921 | $100,000 | $0 | $262,921 | $262,921 |
| 2019 | $118,597 | $150,000 | $0 | $268,597 | $268,597 |
| 2018 | $118,997 | $130,000 | $0 | $248,997 | $248,997 |
| 2017 | $94,401 | $110,000 | $0 | $204,401 | $204,401 |
| 2016 | $96,000 | $90,000 | $0 | $186,000 | $186,000 |
| 2015 | $97,602 | $70,000 | $0 | $167,602 | $167,602 |
| 2014 | $99,201 | $55,000 | $0 | $154,201 | $154,201 |
| 2013 | $100,801 | $55,000 | $0 | $155,801 | $155,801 |
| 2012 | $102,401 | $65,000 | $0 | $167,401 | $167,401 |
| 2011 | $95,472 | $65,000 | $0 | $160,472 | $160,472 |
| 2010 | $105,635 | $65,000 | $0 | $170,635 | $170,635 |
| 2009 | $110,485 | $87,150 | $0 | $197,635 | $197,635 |
| 2008 | $112,128 | $105,000 | $0 | $217,128 | $217,128 |
| 2007 | $113,771 | $105,000 | $0 | $218,771 | $218,771 |
Deed and Sales History
| 1 | 11/08/2021 | QCD | Quit Claim Deed | BURTON, LARRY | BURTON, LARRY W | | | $0.00 | 51064 | 4534488 |
| 2 | 08/20/2014 | WD | Warranty Deed | RANSOM TRUSTEE, BARBARA | BURTON, LARRY | | | $150,000.00 | 16498 | 4364308 |
| 3 | 12/01/1991 | QCD | Quit Claim Deed | RANSOM, BARBARA | RANSOM, BARBARA T | | | $0.00 | 20919 | 92004707 |
| 4 | 01/01/1990 | QCD | Quit Claim Deed | SWOPE, THOMAS M | RANSOM, BARBARA | | | $0.00 | 823 | 90002663 |
| 5 | 02/01/1990 | WD | Warranty Deed | RANSOM, BARBARA | RANSOM, BARBARA | | | $62,900.00 | 822 | 90002662 |
| 6 | 09/01/1983 | WD | Warranty Deed | JUSTINIANO, JESUS E | SWOPE, THOMAS M | | | $56,700.00 | 33007 | 416123 |
| 7 | 02/01/1979 | WD | Warranty Deed | Unknown | JUSTINIANO, JESUS E | | | $49,900.00 | 90702 | 347612 |
Payout Agreement
| No payout information available.. |