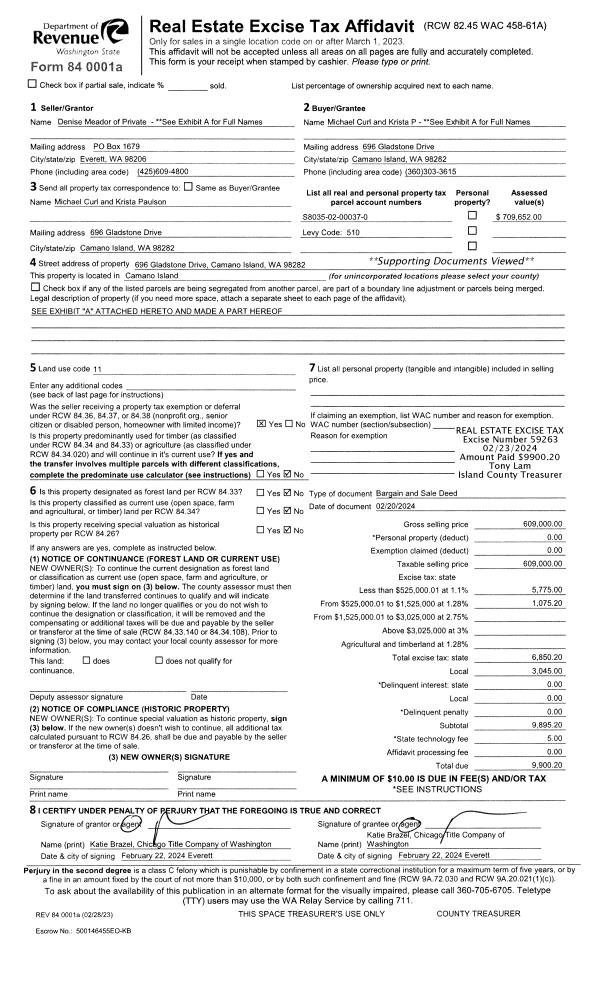
Property
Account |
| Property ID: | 385185 | Abbreviated Legal Description: | SHAD GLN 1 LOT 24 BLK 2 |
| Geographic ID: | S8140-00-02024-0 | Agent Code: | |
| Type: | Real | | |
| Tax Area: | 100 - APPRAISER-OH Schl Dist, in OH | Land Use Code | 11 |
| Open Space: | N | DFL | N |
| Historic Property: | N | Remodel Property: | N |
| Multi-Family Redevelopment: | N | | |
| Township: | | Section: | |
| Range: | |
Location |
| Address: | 139 NW 10TH CT OAK HARBOR, WA 98277 | Mapsco: | |
| Neighborhood: | Cycle 1 | Map ID: | 255 |
| Neighborhood CD: | 1 |
Owner |
| Name: | PRILLER, MARIA MARTHA | Owner ID: | 296070 |
| Mailing Address: | JOSE LUNA 139 NW 10TH CT OAK HARBOR, WA 98277 | % Ownership: | 100.0000000000% |
| | | Exemptions: | |
Taxes and Assessment Details
Values
| (+) Improvement Homesite Value: | + | $0 | |
| (+) Improvement Non-Homesite Value: | + | $229,728 | |
| (+) Land Homesite Value: | + | $0 | |
| (+) Land Non-Homesite Value: | + | $190,000 | |
| (+) Curr Use (HS): | + | $0 | $0 |
| (+) Curr Use (NHS): | + | $0 | $0 |
| | | -------------------------- | |
| (=) Market Value: | = | $419,728 | |
| (–) Productivity Loss: | – | $0 | |
| | | -------------------------- | |
| (=) Subtotal: | = | $419,728 | |
| (+) Senior Appraised Value: | + | $0 | |
| (+) Non-Senior Appraised Value: | + | $419,728 | |
| | | -------------------------- | |
| (=) Total Appraised Value: | = | $419,728 | |
| (–) Senior Exemption Loss: | – | $0 | |
| (–) Exemption Loss: | – | $0 | |
| | | -------------------------- | |
| (=) Taxable Value: | = | $419,728 | |
Taxing Jurisdiction
| Owner: | PRILLER, MARIA MARTHA | | |
| % Ownership: | 100.0000000000% | | |
| Total Value: | $419,728 | | |
| Tax Area: | 100 - APPRAISER-OH Schl Dist, in OH |
| CF | Conservation Futures | 0.0316035091 | $419,728 | $419,728 | $13.26 | | |
| CEM1 | Cemetery #1 | 0.0040320932 | $419,728 | $419,728 | $1.69 | | |
| COH | City of Oak Harbor | 2.3001546061 | $419,728 | $419,728 | $965.44 | | |
| OAKBOND | City of Oak Harbor BOND | 0.1926904192 | $419,728 | $419,728 | $80.88 | | |
| HOBOND | Hospital BOND | 0.1910887512 | $419,728 | $419,728 | $80.21 | | |
| HOGEN | Hospital GEN | 0.3902502903 | $419,728 | $419,728 | $163.80 | | |
| CE | County Current Expense | 0.3708482477 | $419,728 | $419,728 | $155.66 | | |
| ISLANDEMS | Hospital GEN (EMS) | 0.5000000000 | $419,728 | $419,728 | $209.86 | | |
| LIB | Library Sno-Isle GEN | 0.3153421757 | $419,728 | $419,728 | $132.36 | | |
| NWHIDPRMT | P & R N Whidbey GEN | 0.2004466701 | $419,728 | $419,728 | $84.13 | | |
| SCH201MO | School 201 Enrichment | 1.8559231640 | $419,728 | $419,728 | $778.98 | | |
| ST | State School | 1.3035497053 | $419,728 | $419,728 | $547.14 | | |
| ST2 | State School Part 2 | 0.8169543533 | $419,728 | $419,728 | $342.90 | | |
| | Total Tax Rate: | 8.4728839852 | | | | | |
| | | | | Taxes w/Current Exemptions: | $3,556.31 | | |
| | | | | Taxes w/o Exemptions: | $3,556.31 | | |
Improvement / Building
| Improvement #1: | RESIDENTIAL | State Code: | Y | 1092.0 sqft | Value: | $229,728 |
| Bathrooms: | 1.5 | Bedrooms: | 3 | | Ceiling: | DRYWALL PAINTED | Exterior Wall/Cover: | CEMENT FIBER | | Floor Covering: | VINYL/HARDWOOD 20-80 | Floor Structure: | WOOD W/SUBFLOOR | | Foundation: | CONCRETE | Heating: | WALL HEAT ELECTRIC | | Interior Finish: | DRYWALL PAINT | Plumbing Fixture Cnt: | 9 | | Roof Slope: | 4" IN 12" | Roof Structure/Cover: | CJ ASPHALT |
|
| | Type | Description | Class CD | Sub Class CD | Year Built | Area |
| | BAS | BASE/MAIN FLOOR | 3 | 0 | 1968 | 1092.0 |
| | AGR | ATTACHED GARAGE | 3 | 0 | 1968 | 336.0 |
Sketch
Property Image
Land
| 1 | 14 | SQ (08001-12000) | 0.0000 | 0.00 | 0.00 | 0.00 | 1.00 | $190,000 | $0 |
Roll Value History
| 2026 | N/A | N/A | N/A | N/A | N/A |
| 2025 | $229,728 | $190,000 | $0 | $419,728 | $419,728 |
| 2024 | $232,361 | $180,000 | $0 | $412,361 | $412,361 |
| 2023 | $234,994 | $190,000 | $0 | $424,994 | $424,994 |
| 2022 | $214,581 | $180,000 | $0 | $394,581 | $394,581 |
| 2021 | $188,247 | $130,000 | $0 | $318,247 | $318,247 |
| 2020 | $171,835 | $100,000 | $0 | $271,835 | $271,835 |
| 2019 | $120,550 | $150,000 | $0 | $270,550 | $270,550 |
| 2018 | $120,881 | $130,000 | $0 | $250,881 | $250,881 |
| 2017 | $121,541 | $110,000 | $0 | $231,541 | $231,541 |
| 2016 | $122,863 | $90,000 | $0 | $212,863 | $212,863 |
| 2015 | $124,183 | $70,000 | $0 | $194,183 | $194,183 |
| 2014 | $10,000 | $55,000 | $0 | $65,000 | $65,000 |
| 2013 | $82,179 | $55,000 | $0 | $137,179 | $137,179 |
| 2012 | $83,504 | $65,000 | $0 | $148,504 | $148,504 |
| 2011 | $77,350 | $65,000 | $0 | $142,350 | $142,350 |
| 2010 | $83,624 | $65,000 | $0 | $148,624 | $148,624 |
| 2009 | $87,520 | $87,150 | $0 | $174,670 | $174,670 |
| 2008 | $88,856 | $105,000 | $0 | $193,856 | $193,856 |
| 2007 | $90,192 | $105,000 | $0 | $195,192 | $195,192 |
Deed and Sales History
| 1 | 09/08/2020 | QCD | Quit Claim Deed | SANABRIA-LUNA, ROSA | PRILLER, MARIA MARTHA | | | $0.00 | 44710 | 4496309 |
| 2 | 09/08/2020 | WD | Warranty Deed | DENNEY, KYLE T | PRILLER, MARIA MARTHA | | | $337,000.00 | 44708 | 4496308 |
| 3 | 07/22/2014 | QCD | Quit Claim Deed | DENNEY, CASEY S | DENNEY, KYLE T | | | $31,000.00 | 16137 | 4362846 |
| 4 | 07/03/2014 | QCD | Quit Claim Deed | DENNY, CASEY S | DENNEY, CASEY S | | | $0.00 | 15986 | 4362160 |
| 5 | 02/12/2014 | REC | Real Estate Contract | DENNEY, KYLE TRACY | DENNY, CASEY S | | | $60,000.00 | 14308 | 4355362 |
| 6 | 12/10/2013 | PRD | Personal Representatives Deed | DENNEY, SHIRLEY A | DENNEY, KYLE TRACY | | | $0.00 | 14071 | 4354201 |
| 7 | 10/01/1993 | QCD | Quit Claim Deed | DENNEY, STEVEN C | DENNEY, SHIRLEY A | | | $0.00 | 34148 | 93021632 |
| 8 | 04/01/1988 | WD | Warranty Deed | HERR, JAMES M | DENNEY, STEVEN C | | | $0.00 | 81041 | 88003991 |
| 9 | 11/01/1983 | WD | Warranty Deed | FOLLMER, DUANE C | HERR, JAMES M | | | $55,000.00 | 33374 | 417600 |
| 10 | 03/01/1981 | WD | Warranty Deed | GINGERY, JOHN O | FOLLMER, DUANE C | | | $47,000.00 | 10922 | 381153 |
| 11 | 01/01/1900 | OTHER | Other - Misc. Documents | Unknown | GINGERY, JOHN O | | | $0.00 | 0 | 0 |
Payout Agreement
| No payout information available.. |