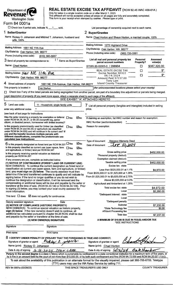
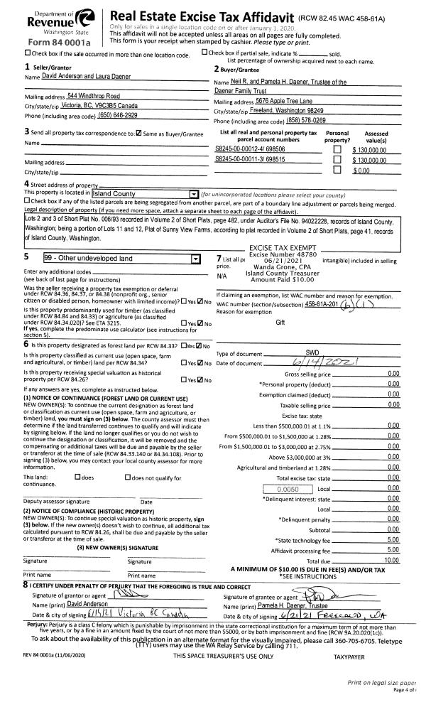
Property
Account |
| Property ID: | 385238 | Abbreviated Legal Description: | SHAD GLN 1 LOT 4 BLK 3 |
| Geographic ID: | S8140-00-03004-0 | Agent Code: | |
| Type: | Real | | |
| Tax Area: | 100 - APPRAISER-OH Schl Dist, in OH | Land Use Code | 11 |
| Open Space: | N | DFL | N |
| Historic Property: | N | Remodel Property: | N |
| Multi-Family Redevelopment: | N | | |
| Township: | | Section: | |
| Range: | |
Location |
| Address: | 1067 NW CATHLAMET DR OAK HARBOR, WA 98277 | Mapsco: | |
| Neighborhood: | Cycle 1 | Map ID: | 255 |
| Neighborhood CD: | 1 |
Owner |
| Name: | LEE, JOSEPH R | Owner ID: | 297389 |
| Mailing Address: | KIRSTIN LEE JARED SCHOMER 451 SE QUAKER ST OAK HARBOR, WA 98277 | % Ownership: | 100.0000000000% |
| | | Exemptions: | |
Taxes and Assessment Details
Values
| (+) Improvement Homesite Value: | + | $0 | |
| (+) Improvement Non-Homesite Value: | + | $214,493 | |
| (+) Land Homesite Value: | + | $0 | |
| (+) Land Non-Homesite Value: | + | $190,000 | |
| (+) Curr Use (HS): | + | $0 | $0 |
| (+) Curr Use (NHS): | + | $0 | $0 |
| | | -------------------------- | |
| (=) Market Value: | = | $404,493 | |
| (–) Productivity Loss: | – | $0 | |
| | | -------------------------- | |
| (=) Subtotal: | = | $404,493 | |
| (+) Senior Appraised Value: | + | $0 | |
| (+) Non-Senior Appraised Value: | + | $404,493 | |
| | | -------------------------- | |
| (=) Total Appraised Value: | = | $404,493 | |
| (–) Senior Exemption Loss: | – | $0 | |
| (–) Exemption Loss: | – | $0 | |
| | | -------------------------- | |
| (=) Taxable Value: | = | $404,493 | |
Taxing Jurisdiction
| Owner: | LEE, JOSEPH R | | |
| % Ownership: | 100.0000000000% | | |
| Total Value: | $404,493 | | |
| Tax Area: | 100 - APPRAISER-OH Schl Dist, in OH |
| CF | Conservation Futures | 0.0316035091 | $404,493 | $404,493 | $12.78 | | |
| CEM1 | Cemetery #1 | 0.0040320932 | $404,493 | $404,493 | $1.63 | | |
| COH | City of Oak Harbor | 2.3001546061 | $404,493 | $404,493 | $930.40 | | |
| OAKBOND | City of Oak Harbor BOND | 0.1926904192 | $404,493 | $404,493 | $77.94 | | |
| HOBOND | Hospital BOND | 0.1910887512 | $404,493 | $404,493 | $77.29 | | |
| HOGEN | Hospital GEN | 0.3902502903 | $404,493 | $404,493 | $157.85 | | |
| CE | County Current Expense | 0.3708482477 | $404,493 | $404,493 | $150.01 | | |
| ISLANDEMS | Hospital GEN (EMS) | 0.5000000000 | $404,493 | $404,493 | $202.25 | | |
| LIB | Library Sno-Isle GEN | 0.3153421757 | $404,493 | $404,493 | $127.55 | | |
| NWHIDPRMT | P & R N Whidbey GEN | 0.2004466701 | $404,493 | $404,493 | $81.08 | | |
| SCH201MO | School 201 Enrichment | 1.8559231640 | $404,493 | $404,493 | $750.71 | | |
| ST | State School | 1.3035497053 | $404,493 | $404,493 | $527.28 | | |
| ST2 | State School Part 2 | 0.8169543533 | $404,493 | $404,493 | $330.45 | | |
| | Total Tax Rate: | 8.4728839852 | | | | | |
| | | | | Taxes w/Current Exemptions: | $3,427.22 | | |
| | | | | Taxes w/o Exemptions: | $3,427.22 | | |
Improvement / Building
| Improvement #1: | RESIDENTIAL | State Code: | Y | 1625.0 sqft | Value: | $214,493 |
| Bathrooms: | 1.5 | Bedrooms: | 4 | | Ceiling: | DRY WALL SPRAYED | Exterior Wall/Cover: | PLY/HARDBOARD T-111 | | Floor Covering: | CARPET/VINYL 80-20 | Floor Structure: | WOOD W/SUBFLOOR | | Foundation: | CONCRETE | Heating: | BASEBOARD ELECTRIC | | Interior Finish: | DRYWALL PAINT | Plumbing Fixture Cnt: | 8 | | Roof Slope: | 4" IN 12" | Roof Structure/Cover: | CJ ASPHALT |
|
| | Type | Description | Class CD | Sub Class CD | Year Built | Area |
| | BAS | BASE/MAIN FLOOR | 3 | 0 | 1970 | 1625.0 |
| | OP2 | OPEN PORCH W/STEPS | 3 | 0 | 1970 | 12.0 |
| | OP3 | OPEN PORCH W/ROOF | 3 | 0 | 1970 | 299.0 |
Sketch
Property Image
Land
| 1 | 14 | SQ (08001-12000) | 0.0000 | 0.00 | 0.00 | 0.00 | 1.00 | $190,000 | $0 |
Roll Value History
| 2026 | N/A | N/A | N/A | N/A | N/A |
| 2025 | $214,493 | $190,000 | $0 | $404,493 | $404,493 |
| 2024 | $222,244 | $180,000 | $0 | $402,244 | $402,244 |
| 2023 | $219,250 | $190,000 | $0 | $409,250 | $409,250 |
| 2022 | $201,245 | $180,000 | $0 | $381,245 | $381,245 |
| 2021 | $177,355 | $130,000 | $0 | $307,355 | $307,355 |
| 2020 | $173,204 | $100,000 | $0 | $273,204 | $273,204 |
| 2019 | $126,257 | $150,000 | $0 | $276,257 | $276,257 |
| 2018 | $126,666 | $130,000 | $0 | $256,666 | $256,666 |
| 2017 | $97,858 | $110,000 | $0 | $207,858 | $207,858 |
| 2016 | $99,546 | $90,000 | $0 | $189,546 | $189,546 |
| 2015 | $101,234 | $70,000 | $0 | $171,234 | $171,234 |
| 2014 | $102,920 | $55,000 | $0 | $157,920 | $157,920 |
| 2013 | $104,608 | $55,000 | $0 | $159,608 | $159,608 |
| 2012 | $106,295 | $65,000 | $0 | $171,295 | $171,295 |
| 2011 | $98,433 | $65,000 | $0 | $163,433 | $163,433 |
| 2010 | $104,365 | $65,000 | $0 | $169,365 | $169,365 |
| 2009 | $109,209 | $87,150 | $0 | $196,359 | $196,359 |
| 2008 | $110,834 | $105,000 | $0 | $215,834 | $215,834 |
| 2007 | $112,459 | $105,000 | $0 | $217,459 | $217,459 |
Deed and Sales History
| 1 | 12/16/2020 | WD | Warranty Deed | JORDAN, GERALD V / VIOLET M | LEE, JOSEPH R | | | $369,000.00 | 46184 | 4505644 |
| 2 | 05/01/1995 | QCD | Quit Claim Deed | JORDAN, GEARLD V | JORDAN, GERALD V | | | $0.00 | 51841 | 95008573 |
| 3 | 01/01/1900 | OTHER | Other - Misc. Documents | Unknown | JORDAN, GEARLD V | | | $0.00 | 0 | 0 |
Payout Agreement
| No payout information available.. |