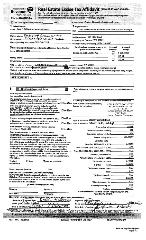
Property
Account |
| Property ID: | 385363 | Abbreviated Legal Description: | SHAD GLN 1 LOT 3 BLK 5 |
| Geographic ID: | S8140-00-05003-0 | Agent Code: | |
| Type: | Real | | |
| Tax Area: | 100 - APPRAISER-OH Schl Dist, in OH | Land Use Code | 11 |
| Open Space: | N | DFL | N |
| Historic Property: | N | Remodel Property: | N |
| Multi-Family Redevelopment: | N | | |
| Township: | | Section: | |
| Range: | |
Location |
| Address: | 1048 NW ANCHOR DR OAK HARBOR, WA 98277 | Mapsco: | |
| Neighborhood: | Cycle 1 | Map ID: | 255 |
| Neighborhood CD: | 1 |
Owner |
| Name: | GLASS, KEITH A & NENITA B | Owner ID: | 80111 |
| Mailing Address: | 1048 NW ANCHOR DR OAK HARBOR, WA 98277-2065 | % Ownership: | 100.0000000000% |
| | | Exemptions: | |
Taxes and Assessment Details
Values
| (+) Improvement Homesite Value: | + | $0 | |
| (+) Improvement Non-Homesite Value: | + | $199,971 | |
| (+) Land Homesite Value: | + | $0 | |
| (+) Land Non-Homesite Value: | + | $190,000 | |
| (+) Curr Use (HS): | + | $0 | $0 |
| (+) Curr Use (NHS): | + | $0 | $0 |
| | | -------------------------- | |
| (=) Market Value: | = | $389,971 | |
| (–) Productivity Loss: | – | $0 | |
| | | -------------------------- | |
| (=) Subtotal: | = | $389,971 | |
| (+) Senior Appraised Value: | + | $0 | |
| (+) Non-Senior Appraised Value: | + | $389,971 | |
| | | -------------------------- | |
| (=) Total Appraised Value: | = | $389,971 | |
| (–) Senior Exemption Loss: | – | $0 | |
| (–) Exemption Loss: | – | $0 | |
| | | -------------------------- | |
| (=) Taxable Value: | = | $389,971 | |
Taxing Jurisdiction
| Owner: | GLASS, KEITH A & NENITA B | | |
| % Ownership: | 100.0000000000% | | |
| Total Value: | $389,971 | | |
| Tax Area: | 100 - APPRAISER-OH Schl Dist, in OH |
| CF | Conservation Futures | 0.0316035091 | $389,971 | $389,971 | $12.32 | | |
| CEM1 | Cemetery #1 | 0.0040320932 | $389,971 | $389,971 | $1.57 | | |
| COH | City of Oak Harbor | 2.3001546061 | $389,971 | $389,971 | $896.99 | | |
| OAKBOND | City of Oak Harbor BOND | 0.1926904192 | $389,971 | $389,971 | $75.14 | | |
| HOBOND | Hospital BOND | 0.1910887512 | $389,971 | $389,971 | $74.52 | | |
| HOGEN | Hospital GEN | 0.3902502903 | $389,971 | $389,971 | $152.19 | | |
| CE | County Current Expense | 0.3708482477 | $389,971 | $389,971 | $144.62 | | |
| ISLANDEMS | Hospital GEN (EMS) | 0.5000000000 | $389,971 | $389,971 | $194.99 | | |
| LIB | Library Sno-Isle GEN | 0.3153421757 | $389,971 | $389,971 | $122.97 | | |
| NWHIDPRMT | P & R N Whidbey GEN | 0.2004466701 | $389,971 | $389,971 | $78.17 | | |
| SCH201MO | School 201 Enrichment | 1.8559231640 | $389,971 | $389,971 | $723.76 | | |
| ST | State School | 1.3035497053 | $389,971 | $389,971 | $508.35 | | |
| ST2 | State School Part 2 | 0.8169543533 | $389,971 | $389,971 | $318.59 | | |
| | Total Tax Rate: | 8.4728839852 | | | | | |
| | | | | Taxes w/Current Exemptions: | $3,304.18 | | |
| | | | | Taxes w/o Exemptions: | $3,304.18 | | |
Improvement / Building
| Improvement #1: | RESIDENTIAL | State Code: | Y | 1144.0 sqft | Value: | $199,971 |
| Bathrooms: | 1.5 | Bedrooms: | 3 | | Ceiling: | DRYWALL PAINTED | Cooling: | HEAT PUMP/CONV/V | | Exterior Wall/Cover: | VINYL | Floor Covering: | CARPET/VINYL 80-20 | | Floor Structure: | WOOD W/SUBFLOOR | Foundation: | CONCRETE | | Interior Finish: | DRYWALL PAINT | Plumbing Fixture Cnt: | 8 | | Roof Slope: | 3" IN 12" | Roof Structure/Cover: | CJ ALUMINIUM HEAVY |
|
| | Type | Description | Class CD | Sub Class CD | Year Built | Area |
| | BAS | BASE/MAIN FLOOR | 3 | 0 | 1968 | 1144.0 |
| | OP2 | OPEN PORCH W/STEPS | 3 | 0 | 1968 | 20.0 |
| | AGR | ATTACHED GARAGE | 3 | 0 | 1968 | 312.0 |
| | OWP | OPEN WOOD PORCH W/STEPS | 3 | 0 | 1968 | 480.0 |
Sketch
Property Image
Land
| 1 | 14 | SQ (08001-12000) | 0.0000 | 0.00 | 0.00 | 0.00 | 1.00 | $190,000 | $0 |
Roll Value History
| 2026 | N/A | N/A | N/A | N/A | N/A |
| 2025 | $199,971 | $190,000 | $0 | $389,971 | $389,971 |
| 2024 | $202,701 | $180,000 | $0 | $382,701 | $382,701 |
| 2023 | $199,971 | $190,000 | $0 | $389,971 | $389,971 |
| 2022 | $183,546 | $180,000 | $0 | $363,546 | $363,546 |
| 2021 | $161,751 | $130,000 | $0 | $291,751 | $291,751 |
| 2020 | $157,700 | $100,000 | $0 | $257,700 | $257,700 |
| 2019 | $111,727 | $150,000 | $0 | $261,727 | $261,727 |
| 2018 | $110,149 | $130,000 | $0 | $240,149 | $240,149 |
| 2017 | $77,794 | $110,000 | $0 | $187,794 | $187,794 |
| 2016 | $79,135 | $90,000 | $0 | $169,135 | $169,135 |
| 2015 | $80,476 | $70,000 | $0 | $150,476 | $150,476 |
| 2014 | $81,818 | $55,000 | $0 | $136,818 | $136,818 |
| 2013 | $83,158 | $55,000 | $0 | $138,158 | $138,158 |
| 2012 | $84,499 | $65,000 | $0 | $149,499 | $149,499 |
| 2011 | $83,169 | $65,000 | $0 | $148,169 | $148,169 |
| 2010 | $92,912 | $65,000 | $0 | $157,912 | $157,912 |
| 2009 | $97,144 | $87,150 | $0 | $184,294 | $184,294 |
| 2008 | $98,641 | $105,000 | $0 | $203,641 | $203,641 |
| 2007 | $100,137 | $105,000 | $0 | $205,137 | $205,137 |
Deed and Sales History
| 1 | 06/01/1994 | WD | Warranty Deed | STUTZ, RAYMOND A | GLASS, KEITH A | | | $97,000.00 | 42310 | 94013128 |
| 2 | 01/01/1900 | OTHER | Other - Misc. Documents | Unknown | STUTZ, RAYMOND A | | | $0.00 | 0 | 0 |
Payout Agreement
| No payout information available.. |