Property
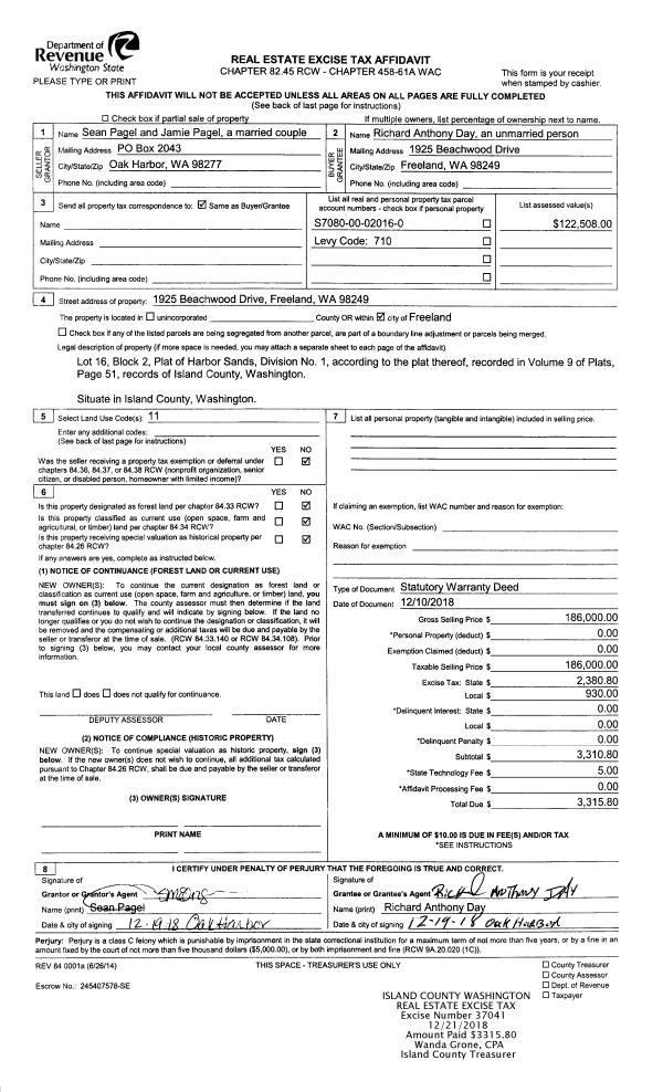
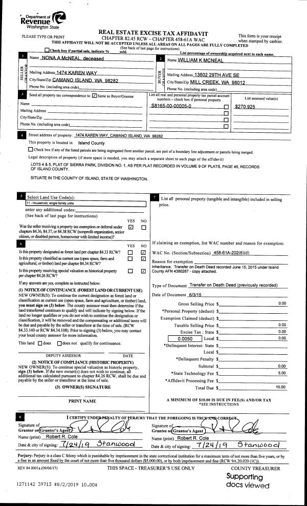
Account |
| Property ID: | 385372 | Abbreviated Legal Description: | SHAD GLN 1 LOT 4 BLK 5 |
| Geographic ID: | S8140-00-05004-0 | Agent Code: | |
| Type: | Real | | |
| Tax Area: | 100 - APPRAISER-OH Schl Dist, in OH | Land Use Code | 11 |
| Open Space: | N | DFL | N |
| Historic Property: | N | Remodel Property: | N |
| Multi-Family Redevelopment: | N | | |
| Township: | | Section: | |
| Range: | |
Location |
| Address: | 1032 NW ANCHOR DR OAK HARBOR, WA 98277 | Mapsco: | |
| Neighborhood: | Cycle 1 | Map ID: | 255 |
| Neighborhood CD: | 1 |
Owner |
| Name: | FORTANEL, KATELYN R | Owner ID: | 297077 |
| Mailing Address: | 1032 NW ANCHOR DR OAK HARBOR, WA 98277 | % Ownership: | 100.0000000000% |
| | | Exemptions: | |
Taxes and Assessment Details
Values
| (+) Improvement Homesite Value: | + | $0 | |
| (+) Improvement Non-Homesite Value: | + | $167,766 | |
| (+) Land Homesite Value: | + | $0 | |
| (+) Land Non-Homesite Value: | + | $190,000 | |
| (+) Curr Use (HS): | + | $0 | $0 |
| (+) Curr Use (NHS): | + | $0 | $0 |
| | | -------------------------- | |
| (=) Market Value: | = | $357,766 | |
| (–) Productivity Loss: | – | $0 | |
| | | -------------------------- | |
| (=) Subtotal: | = | $357,766 | |
| (+) Senior Appraised Value: | + | $0 | |
| (+) Non-Senior Appraised Value: | + | $357,766 | |
| | | -------------------------- | |
| (=) Total Appraised Value: | = | $357,766 | |
| (–) Senior Exemption Loss: | – | $0 | |
| (–) Exemption Loss: | – | $0 | |
| | | -------------------------- | |
| (=) Taxable Value: | = | $357,766 | |
Taxing Jurisdiction
| Owner: | FORTANEL, KATELYN R | | |
| % Ownership: | 100.0000000000% | | |
| Total Value: | $357,766 | | |
| Tax Area: | 100 - APPRAISER-OH Schl Dist, in OH |
| CF | Conservation Futures | 0.0316035091 | $357,766 | $357,766 | $11.31 | | |
| CEM1 | Cemetery #1 | 0.0040320932 | $357,766 | $357,766 | $1.44 | | |
| COH | City of Oak Harbor | 2.3001546061 | $357,766 | $357,766 | $822.92 | | |
| OAKBOND | City of Oak Harbor BOND | 0.1926904192 | $357,766 | $357,766 | $68.94 | | |
| HOBOND | Hospital BOND | 0.1910887512 | $357,766 | $357,766 | $68.37 | | |
| HOGEN | Hospital GEN | 0.3902502903 | $357,766 | $357,766 | $139.62 | | |
| CE | County Current Expense | 0.3708482477 | $357,766 | $357,766 | $132.68 | | |
| ISLANDEMS | Hospital GEN (EMS) | 0.5000000000 | $357,766 | $357,766 | $178.88 | | |
| LIB | Library Sno-Isle GEN | 0.3153421757 | $357,766 | $357,766 | $112.82 | | |
| NWHIDPRMT | P & R N Whidbey GEN | 0.2004466701 | $357,766 | $357,766 | $71.71 | | |
| SCH201MO | School 201 Enrichment | 1.8559231640 | $357,766 | $357,766 | $663.99 | | |
| ST | State School | 1.3035497053 | $357,766 | $357,766 | $466.37 | | |
| ST2 | State School Part 2 | 0.8169543533 | $357,766 | $357,766 | $292.28 | | |
| | Total Tax Rate: | 8.4728839852 | | | | | |
| | | | | Taxes w/Current Exemptions: | $3,031.33 | | |
| | | | | Taxes w/o Exemptions: | $3,031.33 | | |
Improvement / Building
| Improvement #1: | RESIDENTIAL | State Code: | Y | 1040.0 sqft | Value: | $167,766 |
| Bathrooms: | 1 | Bedrooms: | 3 | | Ceiling: | DRYWALL PAINTED | Exterior Wall/Cover: | PLY/HARDBOARD T-111 | | Floor Covering: | VINYL 100% | Floor Structure: | WOOD W/SUBFLOOR | | Foundation: | CONCRETE | Heating: | BASEBOARD ELECTRIC | | Interior Finish: | DRYWALL PAINT | Plumbing Fixture Cnt: | 6 | | Roof Slope: | 3" IN 12" | Roof Structure/Cover: | CJ ASPHALT |
|
| | Type | Description | Class CD | Sub Class CD | Year Built | Area |
| | BAS | BASE/MAIN FLOOR | 3 | 0 | 1968 | 1040.0 |
| | OP1 | OPEN PORCH SLAB | 3 | 0 | 1968 | 540.0 |
| | OP2 | OPEN PORCH W/STEPS | 3 | 0 | 1968 | 14.0 |
| | AGR | ATTACHED GARAGE | 3 | 0 | 1968 | 312.0 |
Sketch
Property Image
Land
| 1 | 14 | SQ (08001-12000) | 0.0000 | 0.00 | 0.00 | 0.00 | 1.00 | $190,000 | $0 |
Roll Value History
| 2026 | N/A | N/A | N/A | N/A | N/A |
| 2025 | $167,766 | $190,000 | $0 | $357,766 | $357,766 |
| 2024 | $173,599 | $180,000 | $0 | $353,599 | $353,599 |
| 2023 | $167,940 | $190,000 | $0 | $357,940 | $357,940 |
| 2022 | $154,089 | $180,000 | $0 | $334,089 | $334,089 |
| 2021 | $135,749 | $130,000 | $0 | $265,749 | $265,749 |
| 2020 | $132,400 | $100,000 | $0 | $232,400 | $232,400 |
| 2019 | $94,302 | $150,000 | $0 | $244,302 | $244,302 |
| 2018 | $94,600 | $130,000 | $0 | $224,600 | $224,600 |
| 2017 | $70,420 | $110,000 | $0 | $180,420 | $180,420 |
| 2016 | $71,635 | $90,000 | $0 | $161,635 | $161,635 |
| 2015 | $72,849 | $70,000 | $0 | $142,849 | $142,849 |
| 2014 | $74,063 | $55,000 | $0 | $129,063 | $129,063 |
| 2013 | $75,277 | $55,000 | $0 | $130,277 | $130,277 |
| 2012 | $76,490 | $65,000 | $0 | $141,490 | $141,490 |
| 2011 | $72,259 | $65,000 | $0 | $137,259 | $137,259 |
| 2010 | $76,758 | $65,000 | $0 | $141,758 | $141,758 |
| 2009 | $80,312 | $87,150 | $0 | $167,462 | $167,462 |
| 2008 | $81,517 | $105,000 | $0 | $186,517 | $186,517 |
| 2007 | $82,722 | $105,000 | $0 | $187,722 | $187,722 |
Deed and Sales History
| 1 | 12/07/2020 | QCD | Quit Claim Deed | FORTANEL, KATELYN R | FORTANEL, KATELYN R | | | $0.00 | 46031 | 4504587 |
| 2 | 12/18/2018 | WD | Warranty Deed | ROGERS TTEE, EUGENE D | FORTANEL, KATELYN R | | | $225,000.00 | 37192 | 4457469 |
| 3 | 04/30/1991 | QCD | Quit Claim Deed | ROGERS, EUGENE D | ROGERS TTEE, EUGENE D | | | $0.00 | 73387 | 4213741 |
| 4 | 04/01/1991 | QCD | Quit Claim Deed | COOMBS, CONSTRUCTION, I | ROGERS, EUGENE D | | | $0.00 | 11512 | 91006367 |
| 5 | 09/01/1985 | WD | Warranty Deed | ROGERS, EUGENE D | COOMBS, CONSTRUCTION, I | | | $53,190.00 | 52915 | 85011531 |
| 6 | 09/01/1985 | QCD | Quit Claim Deed | ROGERS, EUGENE D | ROGERS, EUGENE D | | | $0.00 | 52916 | 85011532 |
| 7 | 09/01/1985 | QCD | Quit Claim Deed | CALEY, JIMMY L | ROGERS, EUGENE D | | | $0.00 | 52917 | 85011533 |
| 8 | 12/01/1981 | WD | Warranty Deed | NECE, JOHN W | CALEY, JIMMY L | | | $51,500.00 | 13684 | 390786 |
| 9 | 01/01/1900 | OTHER | Other - Misc. Documents | Unknown | NECE, JOHN W | | | $0.00 | 0 | 0 |
Payout Agreement
| No payout information available.. |