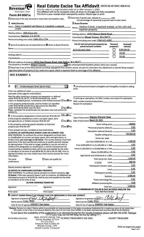
Property
Account |
| Property ID: | 385381 | Abbreviated Legal Description: | SHAD GLN 1 LOT 5 BLK 5 |
| Geographic ID: | S8140-00-05005-0 | Agent Code: | |
| Type: | Real | | |
| Tax Area: | 100 - APPRAISER-OH Schl Dist, in OH | Land Use Code | 11 |
| Open Space: | N | DFL | N |
| Historic Property: | N | Remodel Property: | N |
| Multi-Family Redevelopment: | N | | |
| Township: | | Section: | |
| Range: | |
Location |
| Address: | 1024 NW ANCHOR DR OAK HARBOR, WA 98277 | Mapsco: | |
| Neighborhood: | Cycle 1 | Map ID: | 255 |
| Neighborhood CD: | 1 |
Owner |
| Name: | THOMAS, KILEIGH | Owner ID: | 296752 |
| Mailing Address: | ANDREA THOMAS 1024 NW ANCHOR DR OAK HARBOR, WA 98277 | % Ownership: | 100.0000000000% |
| | | Exemptions: | |
Taxes and Assessment Details
Values
| (+) Improvement Homesite Value: | + | $0 | |
| (+) Improvement Non-Homesite Value: | + | $207,750 | |
| (+) Land Homesite Value: | + | $0 | |
| (+) Land Non-Homesite Value: | + | $190,000 | |
| (+) Curr Use (HS): | + | $0 | $0 |
| (+) Curr Use (NHS): | + | $0 | $0 |
| | | -------------------------- | |
| (=) Market Value: | = | $397,750 | |
| (–) Productivity Loss: | – | $0 | |
| | | -------------------------- | |
| (=) Subtotal: | = | $397,750 | |
| (+) Senior Appraised Value: | + | $0 | |
| (+) Non-Senior Appraised Value: | + | $397,750 | |
| | | -------------------------- | |
| (=) Total Appraised Value: | = | $397,750 | |
| (–) Senior Exemption Loss: | – | $0 | |
| (–) Exemption Loss: | – | $0 | |
| | | -------------------------- | |
| (=) Taxable Value: | = | $397,750 | |
Taxing Jurisdiction
| Owner: | THOMAS, KILEIGH | | |
| % Ownership: | 100.0000000000% | | |
| Total Value: | $397,750 | | |
| Tax Area: | 100 - APPRAISER-OH Schl Dist, in OH |
| CF | Conservation Futures | 0.0316035091 | $397,750 | $397,750 | $12.57 | | |
| CEM1 | Cemetery #1 | 0.0040320932 | $397,750 | $397,750 | $1.60 | | |
| COH | City of Oak Harbor | 2.3001546061 | $397,750 | $397,750 | $914.89 | | |
| OAKBOND | City of Oak Harbor BOND | 0.1926904192 | $397,750 | $397,750 | $76.64 | | |
| HOBOND | Hospital BOND | 0.1910887512 | $397,750 | $397,750 | $76.01 | | |
| HOGEN | Hospital GEN | 0.3902502903 | $397,750 | $397,750 | $155.22 | | |
| CE | County Current Expense | 0.3708482477 | $397,750 | $397,750 | $147.50 | | |
| ISLANDEMS | Hospital GEN (EMS) | 0.5000000000 | $397,750 | $397,750 | $198.88 | | |
| LIB | Library Sno-Isle GEN | 0.3153421757 | $397,750 | $397,750 | $125.43 | | |
| NWHIDPRMT | P & R N Whidbey GEN | 0.2004466701 | $397,750 | $397,750 | $79.73 | | |
| SCH201MO | School 201 Enrichment | 1.8559231640 | $397,750 | $397,750 | $738.19 | | |
| ST | State School | 1.3035497053 | $397,750 | $397,750 | $518.49 | | |
| ST2 | State School Part 2 | 0.8169543533 | $397,750 | $397,750 | $324.94 | | |
| | Total Tax Rate: | 8.4728839852 | | | | | |
| | | | | Taxes w/Current Exemptions: | $3,370.09 | | |
| | | | | Taxes w/o Exemptions: | $3,370.09 | | |
Improvement / Building
| Improvement #1: | RESIDENTIAL | State Code: | Y | 1092.0 sqft | Value: | $207,750 |
| Bathrooms: | 2 | Bedrooms: | 3 | | Ceiling: | DRYWALL PAINTED | Exterior Wall/Cover: | WOOD SIDING | | Floor Covering: | CARPET/VINYL 80-20 | Floor Structure: | WOOD W/SUBFLOOR | | Foundation: | CONCRETE | Heating: | BASEBOARD ELECTRIC | | Interior Finish: | DRYWALL PAINT | Plumbing Fixture Cnt: | 9 | | Roof Slope: | 4" IN 12" | Roof Structure/Cover: | CJ ASPHALT |
|
| | Type | Description | Class CD | Sub Class CD | Year Built | Area |
| | BAS | BASE/MAIN FLOOR | 3 | 0 | 1968 | 1092.0 |
| | AGR | ATTACHED GARAGE | 3 | 0 | 1968 | 312.0 |
Sketch
Property Image
Land
| 1 | 14 | SQ (08001-12000) | 0.0000 | 0.00 | 0.00 | 0.00 | 1.00 | $190,000 | $0 |
Roll Value History
| 2026 | N/A | N/A | N/A | N/A | N/A |
| 2025 | $207,750 | $190,000 | $0 | $397,750 | $397,750 |
| 2024 | $214,355 | $180,000 | $0 | $394,355 | $394,355 |
| 2023 | $225,277 | $190,000 | $0 | $415,277 | $415,277 |
| 2022 | $205,707 | $180,000 | $0 | $385,707 | $385,707 |
| 2021 | $180,464 | $130,000 | $0 | $310,464 | $310,464 |
| 2020 | $154,732 | $100,000 | $0 | $254,732 | $254,732 |
| 2019 | $108,076 | $150,000 | $0 | $258,076 | $258,076 |
| 2018 | $108,393 | $130,000 | $0 | $238,393 | $238,393 |
| 2017 | $102,173 | $110,000 | $0 | $212,173 | $212,173 |
| 2016 | $78,233 | $90,000 | $0 | $168,233 | $168,233 |
| 2015 | $79,475 | $70,000 | $0 | $149,475 | $149,475 |
| 2014 | $80,717 | $55,000 | $0 | $135,717 | $135,717 |
| 2013 | $81,959 | $55,000 | $0 | $136,959 | $136,959 |
| 2012 | $83,200 | $65,000 | $0 | $148,200 | $148,200 |
| 2011 | $76,839 | $65,000 | $0 | $141,839 | $141,839 |
| 2010 | $84,914 | $65,000 | $0 | $149,914 | $149,914 |
| 2009 | $88,844 | $87,150 | $0 | $175,994 | $175,994 |
| 2008 | $90,283 | $105,000 | $0 | $195,283 | $195,283 |
| 2007 | $91,761 | $105,000 | $0 | $196,761 | $196,761 |
Deed and Sales History
| 1 | 11/12/2020 | WD | Warranty Deed | SHAMPINE, JONATHAN FRANK | THOMAS, KILEIGH | | | $345,000.00 | 45795 | 4502949 |
| 2 | 03/13/2017 | WD | Warranty Deed | WASSON, ELIZABETH | SHAMPINE, JONATHAN FRANK | | | $249,500.00 | 28432 | 4418805 |
| 3 | 11/15/2016 | TRUSTEED | Trustee's Deed | LEMAS, MICHAEL W | WASSON, ELIZABETH | | | $173,000.00 | 27023 | 4411924 |
| 4 | 09/26/2008 | WD | Warranty Deed | LEMAS, MATTHEW R | LEMAS, MICHAEL W | | | $210,000.00 | 82546 | 4237501 |
| 5 | 02/06/2007 | WD | Warranty Deed | SHAW, BRYN G | LEMAS, MATTHEW R | | | $177,500.00 | 70506 | 4194235 |
| 6 | 01/08/2003 | WD | Warranty Deed | SUTTER, MOLLIE R | SHAW, BRYN G | | | $110,500.00 | 30094 | 4043496 |
| 7 | 09/09/1999 | DECREE | Divorce Decree/Legal Separation | HUNT, FORREST R | SUTTER, MOLLIE R | | | $0.00 | 68436 | 0 |
| 8 | 04/01/1981 | WD | Warranty Deed | CANNON, ROBERT J | HUNT, FORREST R | | | $55,600.00 | 10943 | 381219 |
| 9 | 11/01/1979 | WD | Warranty Deed | PENNINGTON, DANNY T | CANNON, ROBERT J | | | $49,900.00 | 95708 | 362444 |
Payout Agreement
| No payout information available.. |