Property
Account |
| Property ID: | 385407 | Abbreviated Legal Description: | SHAD GLN 1 LOT 7 BLK 5 |
| Geographic ID: | S8140-00-05007-0 | Agent Code: | |
| Type: | Real | | |
| Tax Area: | 100 - APPRAISER-OH Schl Dist, in OH | Land Use Code | 11 |
| Open Space: | N | DFL | N |
| Historic Property: | N | Remodel Property: | N |
| Multi-Family Redevelopment: | N | | |
| Township: | | Section: | |
| Range: | |
Location |
| Address: | 964 NW ANCHOR DR OAK HARBOR, WA 98277 | Mapsco: | |
| Neighborhood: | Cycle 1 | Map ID: | 255 |
| Neighborhood CD: | 1 |
Owner |
| Name: | VENTER, JOSHUA RYAN | Owner ID: | 283981 |
| Mailing Address: | 964 NW ANCHOR DR OAK HARBOR, WA 98277 | % Ownership: | 100.0000000000% |
| | | Exemptions: | |
Taxes and Assessment Details
Values
| (+) Improvement Homesite Value: | + | $0 | |
| (+) Improvement Non-Homesite Value: | + | $172,690 | |
| (+) Land Homesite Value: | + | $0 | |
| (+) Land Non-Homesite Value: | + | $190,000 | |
| (+) Curr Use (HS): | + | $0 | $0 |
| (+) Curr Use (NHS): | + | $0 | $0 |
| | | -------------------------- | |
| (=) Market Value: | = | $362,690 | |
| (–) Productivity Loss: | – | $0 | |
| | | -------------------------- | |
| (=) Subtotal: | = | $362,690 | |
| (+) Senior Appraised Value: | + | $0 | |
| (+) Non-Senior Appraised Value: | + | $362,690 | |
| | | -------------------------- | |
| (=) Total Appraised Value: | = | $362,690 | |
| (–) Senior Exemption Loss: | – | $0 | |
| (–) Exemption Loss: | – | $0 | |
| | | -------------------------- | |
| (=) Taxable Value: | = | $362,690 | |
Taxing Jurisdiction
| Owner: | VENTER, JOSHUA RYAN | | |
| % Ownership: | 100.0000000000% | | |
| Total Value: | $362,690 | | |
| Tax Area: | 100 - APPRAISER-OH Schl Dist, in OH |
| CF | Conservation Futures | 0.0316035091 | $362,690 | $362,690 | $11.46 | | |
| CEM1 | Cemetery #1 | 0.0040320932 | $362,690 | $362,690 | $1.46 | | |
| COH | City of Oak Harbor | 2.3001546061 | $362,690 | $362,690 | $834.24 | | |
| OAKBOND | City of Oak Harbor BOND | 0.1926904192 | $362,690 | $362,690 | $69.89 | | |
| HOBOND | Hospital BOND | 0.1910887512 | $362,690 | $362,690 | $69.31 | | |
| HOGEN | Hospital GEN | 0.3902502903 | $362,690 | $362,690 | $141.54 | | |
| CE | County Current Expense | 0.3708482477 | $362,690 | $362,690 | $134.50 | | |
| ISLANDEMS | Hospital GEN (EMS) | 0.5000000000 | $362,690 | $362,690 | $181.35 | | |
| LIB | Library Sno-Isle GEN | 0.3153421757 | $362,690 | $362,690 | $114.37 | | |
| NWHIDPRMT | P & R N Whidbey GEN | 0.2004466701 | $362,690 | $362,690 | $72.70 | | |
| SCH201MO | School 201 Enrichment | 1.8559231640 | $362,690 | $362,690 | $673.12 | | |
| ST | State School | 1.3035497053 | $362,690 | $362,690 | $472.78 | | |
| ST2 | State School Part 2 | 0.8169543533 | $362,690 | $362,690 | $296.30 | | |
| | Total Tax Rate: | 8.4728839852 | | | | | |
| | | | | Taxes w/Current Exemptions: | $3,073.02 | | |
| | | | | Taxes w/o Exemptions: | $3,073.02 | | |
Improvement / Building
| Improvement #1: | RESIDENTIAL | State Code: | Y | 1092.0 sqft | Value: | $172,690 |
| Bathrooms: | 1 | Bedrooms: | 3 | | Ceiling: | DRYWALL PAINTED | Exterior Wall/Cover: | WOOD SIDING | | Floor Covering: | VINYL/HARDWOOD 20-80 | Floor Structure: | WOOD W/SUBFLOOR | | Foundation: | CONCRETE | Heating: | BASEBOARD ELECTRIC | | Interior Finish: | DRYWALL PAINT | Plumbing Fixture Cnt: | 6 | | Roof Slope: | 3" IN 12" | Roof Structure/Cover: | CJ ALUMINIUM HEAVY |
|
| | Type | Description | Class CD | Sub Class CD | Year Built | Area |
| | BAS | BASE/MAIN FLOOR | 3 | 0 | 1968 | 1092.0 |
| | AGR | ATTACHED GARAGE | 3 | 0 | 1968 | 312.0 |
Sketch
Property Image
Land
| 1 | 14 | SQ (08001-12000) | 0.0000 | 0.00 | 0.00 | 0.00 | 1.00 | $190,000 | $0 |
Roll Value History
| 2026 | N/A | N/A | N/A | N/A | N/A |
| 2025 | $172,690 | $190,000 | $0 | $362,690 | $362,690 |
| 2024 | $178,561 | $180,000 | $0 | $358,561 | $358,561 |
| 2023 | $176,054 | $190,000 | $0 | $366,054 | $366,054 |
| 2022 | $161,690 | $180,000 | $0 | $341,690 | $341,690 |
| 2021 | $142,570 | $130,000 | $0 | $272,570 | $272,570 |
| 2020 | $139,354 | $100,000 | $0 | $239,354 | $239,354 |
| 2019 | $100,094 | $150,000 | $0 | $250,094 | $250,094 |
| 2018 | $100,431 | $130,000 | $0 | $230,431 | $230,431 |
| 2017 | $81,578 | $110,000 | $0 | $191,578 | $191,578 |
| 2016 | $82,938 | $90,000 | $0 | $172,938 | $172,938 |
| 2015 | $84,297 | $70,000 | $0 | $154,297 | $154,297 |
| 2014 | $85,657 | $55,000 | $0 | $140,657 | $140,657 |
| 2013 | $87,018 | $55,000 | $0 | $142,018 | $142,018 |
| 2012 | $88,376 | $65,000 | $0 | $153,376 | $153,376 |
| 2011 | $85,289 | $65,000 | $0 | $150,289 | $150,289 |
| 2010 | $94,607 | $65,000 | $0 | $159,607 | $159,607 |
| 2009 | $98,856 | $87,150 | $0 | $186,006 | $186,006 |
| 2008 | $100,300 | $105,000 | $0 | $205,300 | $205,300 |
| 2007 | $101,743 | $105,000 | $0 | $206,743 | $206,743 |
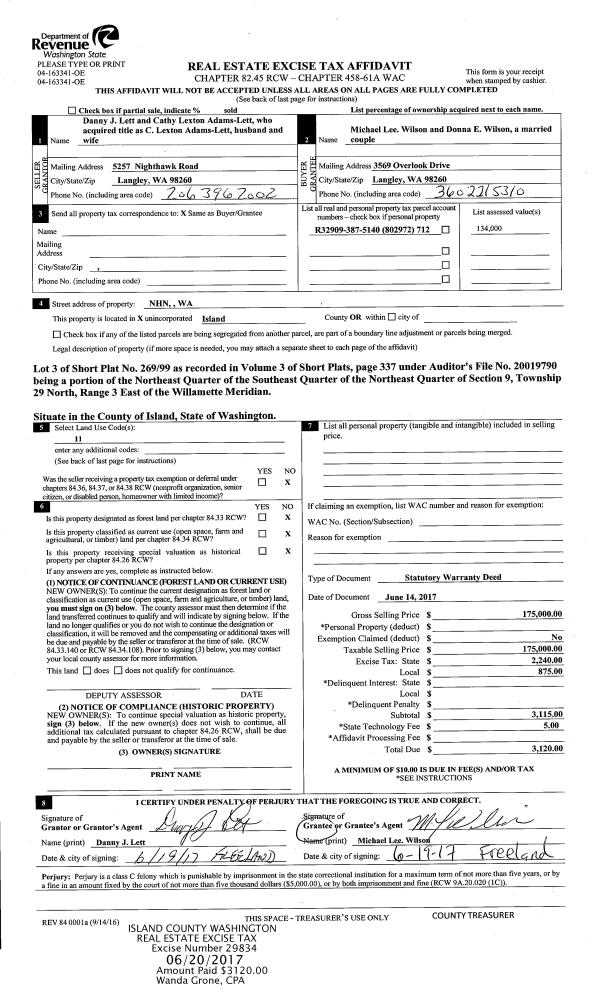
Deed and Sales History
| 1 | 01/16/2018 | WD | Warranty Deed | FEDERAL HOME LOAN MORTGAGE CORPORATION, | VENTER, JOSHUA RYAN | | | $212,000.00 | 33032 | 4439631 |
| 2 | 06/12/2017 | TRUSTEED | Trustee's Deed | MASTNE, MELVYN C | FEDERAL HOME LOAN MORTGAGE CORPORATION, | | | $0.00 | 29760 | 4424331 |
| 3 | 12/23/2006 | QCD | Quit Claim Deed | MASTNE, MELVYN C | MASTNE, MELVYN C | | | $0.00 | 70297 | 4192901 |
| 4 | 10/01/1991 | WD | Warranty Deed | BOSWELL, JAMES L | MASTNE, MELVYN C | | | $78,500.00 | 13843 | 91016430 |
| 5 | 09/01/1989 | WD | Warranty Deed | SEM, DAVID A | BOSWELL, JAMES L | | | $58,500.00 | 94151 | 89013694 |
| 6 | 02/01/1983 | QCD | Quit Claim Deed | SEBO, ROBERT | SEM, DAVID A | | | $0.00 | 30577 | 406759 |
| 7 | 03/01/1982 | CD | DNU - Correction Deed | SEBO, ROBERT & | SEBO, ROBERT | | | $1.00 | 20562 | 393942 |
| 8 | 10/01/1981 | TRUSTEED | Trustee's Deed | BURTON, TIMOTHY P | SEBO, ROBERT & | | | $48,188.00 | 13422 | 389803 |
| 9 | 08/01/1979 | TRUSTEED | Trustee's Deed | HERTLING, STEPHEN | BURTON, TIMOTHY P | | | $45,500.00 | 94443 | 358469 |
| 10 | 01/01/1900 | OTHER | Other - Misc. Documents | Unknown | HERTLING, STEPHEN | | | $0.00 | 0 | 0 |
Payout Agreement
| No payout information available.. |