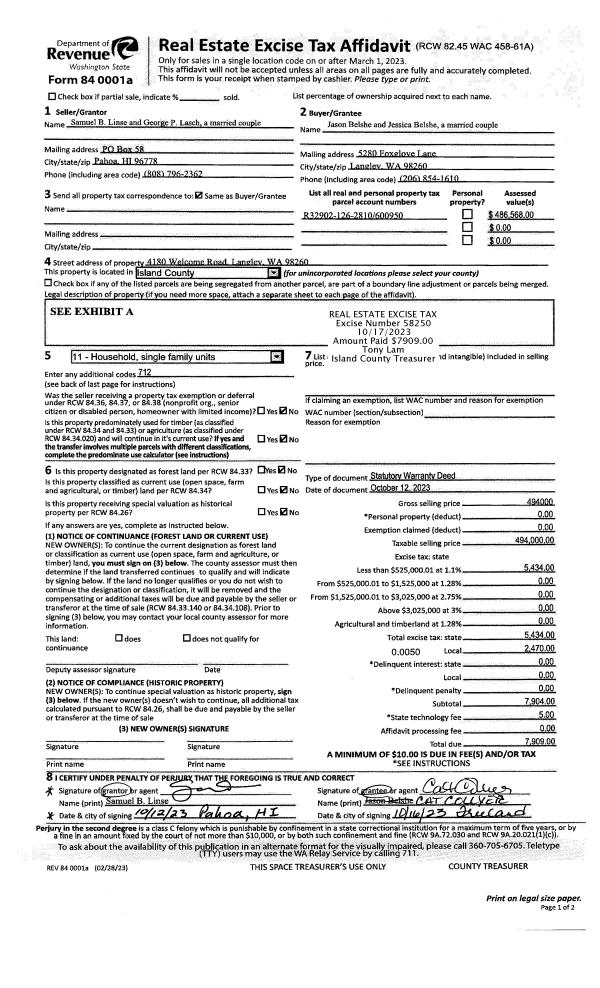
Property
Account |
| Property ID: | 385568 | Abbreviated Legal Description: | SHAD GLN 2 LOT 8 BLK 4 |
| Geographic ID: | S8140-02-04008-0 | Agent Code: | |
| Type: | Real | | |
| Tax Area: | 100 - APPRAISER-OH Schl Dist, in OH | Land Use Code | 11 |
| Open Space: | N | DFL | N |
| Historic Property: | N | Remodel Property: | N |
| Multi-Family Redevelopment: | N | | |
| Township: | | Section: | |
| Range: | |
Location |
| Address: | 362 NW DORY DR OAK HARBOR, WA 98277 | Mapsco: | |
| Neighborhood: | Cycle 1 | Map ID: | 255 |
| Neighborhood CD: | 1 |
Owner |
| Name: | STROEDER, HELEN R | Owner ID: | 80132 |
| Mailing Address: | 362 NW DORY DR OAK HARBOR, WA 98277-2077 | % Ownership: | 100.0000000000% |
| | | Exemptions: | SNR/DSBL |
Taxes and Assessment Details
Values
| (+) Improvement Homesite Value: | + | $203,650 | |
| (+) Improvement Non-Homesite Value: | + | $0 | |
| (+) Land Homesite Value: | + | $190,000 | |
| (+) Land Non-Homesite Value: | + | $0 | |
| (+) Curr Use (HS): | + | $0 | $0 |
| (+) Curr Use (NHS): | + | $0 | $0 |
| | | -------------------------- | |
| (=) Market Value: | = | $393,650 | |
| (–) Productivity Loss: | – | $0 | |
| | | -------------------------- | |
| (=) Subtotal: | = | $393,650 | |
| (+) Senior Appraised Value: | + | $393,650 | |
| (+) Non-Senior Appraised Value: | + | $0 | |
| | | -------------------------- | |
| (=) Total Appraised Value: | = | $393,650 | |
| (–) Senior Exemption Loss: | – | $0 | |
| (–) Exemption Loss: | – | $0 | |
| | | -------------------------- | |
| (=) Taxable Value: | = | $393,650 | |
Taxing Jurisdiction
| Owner: | STROEDER, HELEN R | | |
| % Ownership: | 100.0000000000% | | |
| Total Value: | $393,650 | | |
| Tax Area: | 100 - APPRAISER-OH Schl Dist, in OH |
| CF | Conservation Futures | 0.0316035091 | $393,650 | $393,650 | $12.44 | | |
| CEM1 | Cemetery #1 | 0.0040320932 | $393,650 | $393,650 | $1.59 | | |
| COH | City of Oak Harbor | 2.3001546061 | $393,650 | $393,650 | $905.46 | | |
| OAKBOND | City of Oak Harbor BOND | 0.1926904192 | $393,650 | $393,650 | $75.85 | | |
| HOBOND | Hospital BOND | 0.0000000000 | $393,650 | $0 | $0.00 | | |
| HOGEN | Hospital GEN | 0.3902502903 | $393,650 | $393,650 | $153.62 | | |
| CE | County Current Expense | 0.3708482477 | $393,650 | $393,650 | $145.98 | | |
| ISLANDEMS | Hospital GEN (EMS) | 0.5000000000 | $393,650 | $393,650 | $196.83 | | |
| LIB | Library Sno-Isle GEN | 0.3153421757 | $393,650 | $393,650 | $124.13 | | |
| NWHIDPRMT | P & R N Whidbey GEN | 0.2004466701 | $393,650 | $393,650 | $78.91 | | |
| SCH201MO | School 201 Enrichment | 0.0000000000 | $393,650 | $0 | $0.00 | | |
| ST | State School | 1.3035497053 | $393,650 | $393,650 | $513.14 | | |
| ST2 | State School Part 2 | 0.0000000000 | $393,650 | $0 | $0.00 | | |
| | Total Tax Rate: | 5.6089177167 | | | | | |
| | | | | Taxes w/Current Exemptions: | $2,207.95 | | |
| | | | | Taxes w/o Exemptions: | $3,335.34 | | |
Improvement / Building
| Improvement #1: | RESIDENTIAL | State Code: | Y | 1776.0 sqft | Value: | $203,650 |
| Bathrooms: | 2 | Bedrooms: | 5 | | Ceiling: | DRYWALL PAINTED | Exterior Wall/Cover: | PLY/HARDBOARD T-111 | | Floor Covering: | HARDWOOD/CARP 20-80 | Floor Structure: | WOOD W/SUBFLOOR | | Foundation: | CONCRETE | Heating: | BASEBOARD ELECTRIC | | Interior Finish: | DRYWALL PAINT | Plumbing Fixture Cnt: | 9 | | Roof Slope: | 4" IN 12" | Roof Structure/Cover: | CJ ASPHALT |
|
| | Type | Description | Class CD | Sub Class CD | Year Built | Area |
| | BAS | BASE/MAIN FLOOR | 3 | 0 | 1972 | 1008.0 |
| | DWN | DOWNSTAIRS LIVING AREA | 3 | 0 | 1972 | 768.0 |
| | OP1 | OPEN PORCH SLAB | 3 | 0 | 1972 | 420.0 |
| | OP2 | OPEN PORCH W/STEPS | 3 | 0 | 1972 | 86.0 |
| | BIG | BUILT IN GARAGE | 3 | 0 | 1972 | 240.0 |
| | OWP | OPEN WOOD PORCH W/STEPS | 3 | 0 | 1972 | 96.0 |
Sketch
Property Image
Land
| 1 | 14 | SQ (08001-12000) | 0.0000 | 0.00 | 0.00 | 0.00 | 1.00 | $190,000 | $0 |
Roll Value History
| 2026 | N/A | N/A | N/A | N/A | N/A |
| 2025 | $203,650 | $190,000 | $0 | $393,650 | $393,650 |
| 2024 | $211,026 | $180,000 | $0 | $391,026 | $391,026 |
| 2023 | $208,063 | $190,000 | $0 | $398,063 | $398,063 |
| 2022 | $191,087 | $180,000 | $0 | $371,087 | $371,087 |
| 2021 | $168,493 | $130,000 | $0 | $298,493 | $298,493 |
| 2020 | $164,633 | $100,000 | $0 | $264,633 | $154,093 |
| 2019 | $121,373 | $150,000 | $0 | $271,373 | $154,093 |
| 2018 | $121,782 | $130,000 | $0 | $251,782 | $154,093 |
| 2017 | $109,919 | $110,000 | $0 | $219,919 | $154,093 |
| 2016 | $111,560 | $90,000 | $0 | $201,560 | $154,093 |
| 2015 | $113,200 | $70,000 | $0 | $183,200 | $154,093 |
| 2014 | $114,841 | $55,000 | $0 | $169,841 | $169,841 |
| 2013 | $116,481 | $55,000 | $0 | $171,481 | $61,638 |
| 2012 | $118,121 | $65,000 | $0 | $183,121 | $61,638 |
| 2011 | $118,779 | $65,000 | $0 | $183,779 | $61,638 |
| 2010 | $121,681 | $65,000 | $0 | $186,681 | $61,638 |
| 2009 | $125,413 | $87,152 | $0 | $212,565 | $61,637 |
| 2008 | $127,625 | $104,420 | $0 | $232,045 | $61,637 |
| 2007 | $128,520 | $105,152 | $0 | $233,672 | $61,637 |
Deed and Sales History
| 1 | 04/28/1999 | WD | Warranty Deed | STROEDER, THOMAS G | STROEDER, HELEN R | | | $0.00 | 91629 | 99010393 |
| 2 | 11/01/1984 | WD | Warranty Deed | SISTO, FRANK J | STROEDER, THOMAS G | | | $63,900.00 | 43247 | 84005299 |
| 3 | 01/01/1900 | OTHER | Other - Misc. Documents | Unknown | SISTO, FRANK J | | | $0.00 | 0 | 0 |
Payout Agreement
| No payout information available.. |