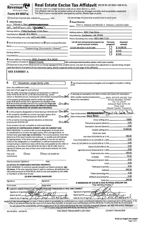
Property
Account |
| Property ID: | 385586 | Abbreviated Legal Description: | SHAD GLN 2 LOT 2 BLK 6 |
| Geographic ID: | S8140-02-06002-0 | Agent Code: | |
| Type: | Real | | |
| Tax Area: | 100 - APPRAISER-OH Schl Dist, in OH | Land Use Code | 11 |
| Open Space: | N | DFL | N |
| Historic Property: | N | Remodel Property: | N |
| Multi-Family Redevelopment: | N | | |
| Township: | | Section: | |
| Range: | |
Location |
| Address: | 485 NW DORY DR OAK HARBOR, WA 98277 | Mapsco: | |
| Neighborhood: | Cycle 1 | Map ID: | 255 |
| Neighborhood CD: | 1 |
Owner |
| Name: | WILSON, CHARLES L | Owner ID: | 80134 |
| Mailing Address: | 4770 NEPTUNE CIR FERNDALE, WA 98248-9532 | % Ownership: | 100.0000000000% |
| | | Exemptions: | |
Taxes and Assessment Details
Values
| (+) Improvement Homesite Value: | + | $0 | |
| (+) Improvement Non-Homesite Value: | + | $179,760 | |
| (+) Land Homesite Value: | + | $0 | |
| (+) Land Non-Homesite Value: | + | $190,000 | |
| (+) Curr Use (HS): | + | $0 | $0 |
| (+) Curr Use (NHS): | + | $0 | $0 |
| | | -------------------------- | |
| (=) Market Value: | = | $369,760 | |
| (–) Productivity Loss: | – | $0 | |
| | | -------------------------- | |
| (=) Subtotal: | = | $369,760 | |
| (+) Senior Appraised Value: | + | $0 | |
| (+) Non-Senior Appraised Value: | + | $369,760 | |
| | | -------------------------- | |
| (=) Total Appraised Value: | = | $369,760 | |
| (–) Senior Exemption Loss: | – | $0 | |
| (–) Exemption Loss: | – | $0 | |
| | | -------------------------- | |
| (=) Taxable Value: | = | $369,760 | |
Taxing Jurisdiction
| Owner: | WILSON, CHARLES L | | |
| % Ownership: | 100.0000000000% | | |
| Total Value: | $369,760 | | |
| Tax Area: | 100 - APPRAISER-OH Schl Dist, in OH |
| CF | Conservation Futures | 0.0316035091 | $369,760 | $369,760 | $11.69 | | |
| CEM1 | Cemetery #1 | 0.0040320932 | $369,760 | $369,760 | $1.49 | | |
| COH | City of Oak Harbor | 2.3001546061 | $369,760 | $369,760 | $850.51 | | |
| OAKBOND | City of Oak Harbor BOND | 0.1926904192 | $369,760 | $369,760 | $71.25 | | |
| HOBOND | Hospital BOND | 0.1910887512 | $369,760 | $369,760 | $70.66 | | |
| HOGEN | Hospital GEN | 0.3902502903 | $369,760 | $369,760 | $144.30 | | |
| CE | County Current Expense | 0.3708482477 | $369,760 | $369,760 | $137.12 | | |
| ISLANDEMS | Hospital GEN (EMS) | 0.5000000000 | $369,760 | $369,760 | $184.88 | | |
| LIB | Library Sno-Isle GEN | 0.3153421757 | $369,760 | $369,760 | $116.60 | | |
| NWHIDPRMT | P & R N Whidbey GEN | 0.2004466701 | $369,760 | $369,760 | $74.12 | | |
| SCH201MO | School 201 Enrichment | 1.8559231640 | $369,760 | $369,760 | $686.25 | | |
| ST | State School | 1.3035497053 | $369,760 | $369,760 | $482.00 | | |
| ST2 | State School Part 2 | 0.8169543533 | $369,760 | $369,760 | $302.08 | | |
| | Total Tax Rate: | 8.4728839852 | | | | | |
| | | | | Taxes w/Current Exemptions: | $3,132.95 | | |
| | | | | Taxes w/o Exemptions: | $3,132.95 | | |
Improvement / Building
| Improvement #1: | RESIDENTIAL | State Code: | Y | 1536.0 sqft | Value: | $179,760 |
| Bathrooms: | 1.5 | Bedrooms: | 3 | | Ceiling: | DRY WALL SPRAYED | Exterior Wall/Cover: | PLY/HARDBOARD T-111 | | Floor Covering: | CARPET/VINYL 80-20 | Floor Structure: | WOOD W/SUBFLOOR | | Foundation: | CONCRETE | Heating: | BASEBOARD ELECTRIC | | Interior Finish: | DRYWALL PAINT | Plumbing Fixture Cnt: | 8 | | Roof Slope: | 4" IN 12" | Roof Structure/Cover: | CJ ASPHALT |
|
| | Type | Description | Class CD | Sub Class CD | Year Built | Area |
| | BAS | BASE/MAIN FLOOR | 3 | 0 | 1972 | 1008.0 |
| | DWN | DOWNSTAIRS LIVING AREA | 3 | 0 | 1972 | 528.0 |
| | OP1 | OPEN PORCH SLAB | 3 | 0 | 1972 | 320.0 |
| | OP2 | OPEN PORCH W/STEPS | 3 | 0 | 1972 | 70.0 |
| | BIG | BUILT IN GARAGE | 3 | 0 | 1972 | 480.0 |
| | OWP | OPEN WOOD PORCH W/STEPS | 3 | 0 | 1972 | 84.0 |
Sketch
Property Image
Land
| 1 | 14 | SQ (08001-12000) | 0.0000 | 0.00 | 0.00 | 0.00 | 1.00 | $190,000 | $0 |
Roll Value History
| 2026 | N/A | N/A | N/A | N/A | N/A |
| 2025 | $179,760 | $190,000 | $0 | $369,760 | $369,760 |
| 2024 | $186,617 | $180,000 | $0 | $366,617 | $366,617 |
| 2023 | $189,523 | $190,000 | $0 | $379,523 | $379,523 |
| 2022 | $174,252 | $180,000 | $0 | $354,252 | $354,252 |
| 2021 | $153,802 | $130,000 | $0 | $283,802 | $283,802 |
| 2020 | $150,384 | $100,000 | $0 | $250,384 | $250,384 |
| 2019 | $110,341 | $150,000 | $0 | $260,341 | $260,341 |
| 2018 | $110,738 | $130,000 | $0 | $240,738 | $240,738 |
| 2017 | $89,800 | $110,000 | $0 | $199,800 | $199,800 |
| 2016 | $91,350 | $90,000 | $0 | $181,350 | $181,350 |
| 2015 | $92,896 | $70,000 | $0 | $162,896 | $162,896 |
| 2014 | $94,445 | $55,000 | $0 | $149,445 | $149,445 |
| 2013 | $95,993 | $55,000 | $0 | $150,993 | $150,993 |
| 2012 | $97,541 | $65,000 | $0 | $162,541 | $162,541 |
| 2011 | $93,044 | $65,000 | $0 | $158,044 | $158,044 |
| 2010 | $99,605 | $65,000 | $0 | $164,605 | $164,605 |
| 2009 | $104,225 | $87,150 | $0 | $191,375 | $191,375 |
| 2008 | $104,349 | $105,000 | $0 | $209,349 | $209,349 |
| 2007 | $105,969 | $105,000 | $0 | $210,969 | $210,969 |
Deed and Sales History
| 1 | 01/01/1991 | WD | Warranty Deed | DU, BOIS, E | WILSON, CHARLES L | | | $89,000.00 | 10138 | 91000701 |
| 2 | 12/01/1978 | OTHER | Other - Misc. Documents | Unknown | DU, BOIS, E | | | $45,000.00 | 90253 | 346119 |
Payout Agreement
| No payout information available.. |