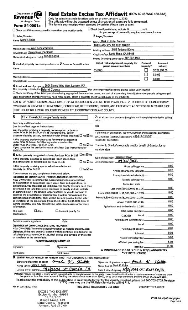
Property
Account |
| Property ID: | 385791 | Abbreviated Legal Description: | SHAD GLN 3 LOT 9 BLK 6 |
| Geographic ID: | S8140-03-06009-0 | Agent Code: | |
| Type: | Real | | |
| Tax Area: | 100 - APPRAISER-OH Schl Dist, in OH | Land Use Code | 11 |
| Open Space: | N | DFL | N |
| Historic Property: | N | Remodel Property: | N |
| Multi-Family Redevelopment: | N | | |
| Township: | | Section: | |
| Range: | |
Location |
| Address: | 596 NW CLIPPER DR OAK HARBOR, WA 98277 | Mapsco: | |
| Neighborhood: | Cycle 1 | Map ID: | 255 |
| Neighborhood CD: | 1 |
Owner |
| Name: | FREEMAN, RONALD REGAN | Owner ID: | 296575 |
| Mailing Address: | SUSAN FREEMAN 596 NW CLIPPER DR OAK HARBOR, WA 98277 | % Ownership: | 100.0000000000% |
| | | Exemptions: | |
Taxes and Assessment Details
Values
| (+) Improvement Homesite Value: | + | $0 | |
| (+) Improvement Non-Homesite Value: | + | $234,476 | |
| (+) Land Homesite Value: | + | $0 | |
| (+) Land Non-Homesite Value: | + | $190,000 | |
| (+) Curr Use (HS): | + | $0 | $0 |
| (+) Curr Use (NHS): | + | $0 | $0 |
| | | -------------------------- | |
| (=) Market Value: | = | $424,476 | |
| (–) Productivity Loss: | – | $0 | |
| | | -------------------------- | |
| (=) Subtotal: | = | $424,476 | |
| (+) Senior Appraised Value: | + | $0 | |
| (+) Non-Senior Appraised Value: | + | $424,476 | |
| | | -------------------------- | |
| (=) Total Appraised Value: | = | $424,476 | |
| (–) Senior Exemption Loss: | – | $0 | |
| (–) Exemption Loss: | – | $0 | |
| | | -------------------------- | |
| (=) Taxable Value: | = | $424,476 | |
Taxing Jurisdiction
| Owner: | FREEMAN, RONALD REGAN | | |
| % Ownership: | 100.0000000000% | | |
| Total Value: | $424,476 | | |
| Tax Area: | 100 - APPRAISER-OH Schl Dist, in OH |
| CF | Conservation Futures | 0.0316035091 | $424,476 | $424,476 | $13.41 | | |
| CEM1 | Cemetery #1 | 0.0040320932 | $424,476 | $424,476 | $1.71 | | |
| COH | City of Oak Harbor | 2.3001546061 | $424,476 | $424,476 | $976.36 | | |
| OAKBOND | City of Oak Harbor BOND | 0.1926904192 | $424,476 | $424,476 | $81.79 | | |
| HOBOND | Hospital BOND | 0.1910887512 | $424,476 | $424,476 | $81.11 | | |
| HOGEN | Hospital GEN | 0.3902502903 | $424,476 | $424,476 | $165.65 | | |
| CE | County Current Expense | 0.3708482477 | $424,476 | $424,476 | $157.42 | | |
| ISLANDEMS | Hospital GEN (EMS) | 0.5000000000 | $424,476 | $424,476 | $212.24 | | |
| LIB | Library Sno-Isle GEN | 0.3153421757 | $424,476 | $424,476 | $133.86 | | |
| NWHIDPRMT | P & R N Whidbey GEN | 0.2004466701 | $424,476 | $424,476 | $85.08 | | |
| SCH201MO | School 201 Enrichment | 1.8559231640 | $424,476 | $424,476 | $787.79 | | |
| ST | State School | 1.3035497053 | $424,476 | $424,476 | $553.33 | | |
| ST2 | State School Part 2 | 0.8169543533 | $424,476 | $424,476 | $346.78 | | |
| | Total Tax Rate: | 8.4728839852 | | | | | |
| | | | | Taxes w/Current Exemptions: | $3,596.53 | | |
| | | | | Taxes w/o Exemptions: | $3,596.53 | | |
Improvement / Building
| Improvement #1: | RESIDENTIAL | State Code: | Y | 1536.0 sqft | Value: | $234,476 |
| Bathrooms: | 1.5 | Bedrooms: | 3 | | Ceiling: | DRY WALL SPRAYED | Exterior Wall/Cover: | VINYL | | Floor Covering: | VINYL/HARDWOOD 60-40 | Floor Structure: | WOOD W/SUBFLOOR | | Foundation: | CONCRETE | Heating: | BASEBOARD ELECTRIC | | Interior Finish: | DRYWALL PAINT | Plumbing Fixture Cnt: | 8 | | Roof Slope: | 4" IN 12" | Roof Structure/Cover: | CJ ASPHALT |
|
| | Type | Description | Class CD | Sub Class CD | Year Built | Area |
| | BAS | BASE/MAIN FLOOR | 3 | 0 | 1972 | 1008.0 |
| | DWN | DOWNSTAIRS LIVING AREA | 3 | 0 | 1972 | 528.0 |
| | OWP | OPEN WOOD PORCH W/STEPS | 3 | 0 | 1972 | 127.0 |
| | BIG | BUILT IN GARAGE | 3 | 0 | 1972 | 480.0 |
| | OWP | OPEN WOOD PORCH W/STEPS | 3 | 0 | 1972 | 230.0 |
Sketch
Property Image
Land
| 1 | 14 | SQ (08001-12000) | 0.0000 | 0.00 | 0.00 | 0.00 | 1.00 | $190,000 | $0 |
Roll Value History
| 2026 | N/A | N/A | N/A | N/A | N/A |
| 2025 | $234,476 | $190,000 | $0 | $424,476 | $424,476 |
| 2024 | $242,438 | $180,000 | $0 | $422,438 | $422,438 |
| 2023 | $215,109 | $190,000 | $0 | $405,109 | $405,109 |
| 2022 | $197,377 | $180,000 | $0 | $377,377 | $377,377 |
| 2021 | $173,873 | $130,000 | $0 | $303,873 | $303,873 |
| 2020 | $169,724 | $100,000 | $0 | $269,724 | $269,724 |
| 2019 | $123,188 | $150,000 | $0 | $273,188 | $273,188 |
| 2018 | $123,577 | $130,000 | $0 | $253,577 | $253,577 |
| 2017 | $96,373 | $110,000 | $0 | $206,373 | $206,373 |
| 2016 | $97,928 | $90,000 | $0 | $187,928 | $187,928 |
| 2015 | $99,483 | $70,000 | $0 | $169,483 | $169,483 |
| 2014 | $101,037 | $55,000 | $0 | $156,037 | $156,037 |
| 2013 | $102,590 | $55,000 | $0 | $157,590 | $157,590 |
| 2012 | $104,145 | $65,000 | $0 | $169,145 | $169,145 |
| 2011 | $99,094 | $65,000 | $0 | $164,094 | $164,094 |
| 2010 | $107,102 | $65,000 | $0 | $172,102 | $172,102 |
| 2009 | $111,761 | $87,150 | $0 | $198,911 | $198,911 |
| 2008 | $113,352 | $105,000 | $0 | $218,352 | $218,352 |
| 2007 | $114,943 | $105,000 | $0 | $219,943 | $219,943 |
Deed and Sales History
| 1 | 10/26/2020 | WD | Warranty Deed | GUENTHER, DARRELL EUGENE | FREEMAN, RONALD REGAN | | | $340,000.00 | 45509 | 4501162 |
| 2 | 11/28/2018 | QCD | Quit Claim Deed | GUENTHER, DARRELL | GUENTHER, DARRELL EUGENE | | | $0.00 | 36807 | 4455713 |
| 3 | 12/09/2005 | WD | Warranty Deed | BOESE, TERRELL W | GUENTHER, DARRELL | | | $229,900.00 | 56180 | 4156958 |
| 4 | 06/01/1992 | WD | Warranty Deed | HARRINGTON, DAVID L | BOESE, TERRELL W | | | $95,500.00 | 22411 | 92011617 |
| 5 | 02/01/1985 | WD | Warranty Deed | KRUSE, JAMES E | HARRINGTON, DAVID L | | | $0.00 | 13293 | 91014045 |
| 6 | 01/01/1981 | REC | Real Estate Contract | SMITH, WARREN L | KRUSE, JAMES E | | | $58,500.00 | 10336 | 379075 |
| 7 | 01/01/1900 | OTHER | Other - Misc. Documents | Unknown | SMITH, WARREN L | | | $0.00 | 0 | 0 |
Payout Agreement
| No payout information available.. |