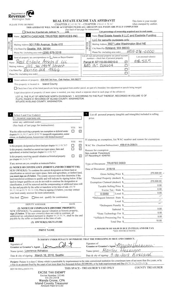
Property
Account |
| Property ID: | 385835 | Abbreviated Legal Description: | SHAD GLN 3 LOT 13 BLK 6 |
| Geographic ID: | S8140-03-06013-0 | Agent Code: | |
| Type: | Real | | |
| Tax Area: | 100 - APPRAISER-OH Schl Dist, in OH | Land Use Code | 11 |
| Open Space: | N | DFL | N |
| Historic Property: | N | Remodel Property: | N |
| Multi-Family Redevelopment: | N | | |
| Township: | | Section: | |
| Range: | |
Location |
| Address: | 375 NW 8TH AVE OAK HARBOR, WA 98277 | Mapsco: | |
| Neighborhood: | Cycle 1 | Map ID: | 255 |
| Neighborhood CD: | 1 |
Owner |
| Name: | HULL, JOANNE M | Owner ID: | 80158 |
| Mailing Address: | CLINT D SMITH 375 NW 8TH AVE OAK HARBOR, WA 98277-2059 | % Ownership: | 100.0000000000% |
| | | Exemptions: | |
Taxes and Assessment Details
Values
| (+) Improvement Homesite Value: | + | $0 | |
| (+) Improvement Non-Homesite Value: | + | $200,605 | |
| (+) Land Homesite Value: | + | $0 | |
| (+) Land Non-Homesite Value: | + | $190,000 | |
| (+) Curr Use (HS): | + | $0 | $0 |
| (+) Curr Use (NHS): | + | $0 | $0 |
| | | -------------------------- | |
| (=) Market Value: | = | $390,605 | |
| (–) Productivity Loss: | – | $0 | |
| | | -------------------------- | |
| (=) Subtotal: | = | $390,605 | |
| (+) Senior Appraised Value: | + | $0 | |
| (+) Non-Senior Appraised Value: | + | $390,605 | |
| | | -------------------------- | |
| (=) Total Appraised Value: | = | $390,605 | |
| (–) Senior Exemption Loss: | – | $0 | |
| (–) Exemption Loss: | – | $0 | |
| | | -------------------------- | |
| (=) Taxable Value: | = | $390,605 | |
Taxing Jurisdiction
| Owner: | HULL, JOANNE M | | |
| % Ownership: | 100.0000000000% | | |
| Total Value: | $390,605 | | |
| Tax Area: | 100 - APPRAISER-OH Schl Dist, in OH |
| CF | Conservation Futures | 0.0316035091 | $390,605 | $390,605 | $12.34 | | |
| CEM1 | Cemetery #1 | 0.0040320932 | $390,605 | $390,605 | $1.57 | | |
| COH | City of Oak Harbor | 2.3001546061 | $390,605 | $390,605 | $898.45 | | |
| OAKBOND | City of Oak Harbor BOND | 0.1926904192 | $390,605 | $390,605 | $75.27 | | |
| HOBOND | Hospital BOND | 0.1910887512 | $390,605 | $390,605 | $74.64 | | |
| HOGEN | Hospital GEN | 0.3902502903 | $390,605 | $390,605 | $152.43 | | |
| CE | County Current Expense | 0.3708482477 | $390,605 | $390,605 | $144.86 | | |
| ISLANDEMS | Hospital GEN (EMS) | 0.5000000000 | $390,605 | $390,605 | $195.30 | | |
| LIB | Library Sno-Isle GEN | 0.3153421757 | $390,605 | $390,605 | $123.17 | | |
| NWHIDPRMT | P & R N Whidbey GEN | 0.2004466701 | $390,605 | $390,605 | $78.30 | | |
| SCH201MO | School 201 Enrichment | 1.8559231640 | $390,605 | $390,605 | $724.93 | | |
| ST | State School | 1.3035497053 | $390,605 | $390,605 | $509.17 | | |
| ST2 | State School Part 2 | 0.8169543533 | $390,605 | $390,605 | $319.11 | | |
| | Total Tax Rate: | 8.4728839852 | | | | | |
| | | | | Taxes w/Current Exemptions: | $3,309.54 | | |
| | | | | Taxes w/o Exemptions: | $3,309.54 | | |
Improvement / Building
| Improvement #1: | RESIDENTIAL | State Code: | Y | 1536.0 sqft | Value: | $200,605 |
| Bathrooms: | 1.5 | Bedrooms: | 3 | | Ceiling: | DRY WALL SPRAYED | Exterior Wall/Cover: | PLY/HARDBOARD T-111 | | Floor Covering: | CARPET/VINYL 80-20 | Floor Structure: | WOOD W/SUBFLOOR | | Foundation: | CONCRETE | Heating: | BASEBOARD ELECTRIC | | Interior Finish: | DRYWALL PAINT | Plumbing Fixture Cnt: | 8 | | Roof Slope: | 4" IN 12" | Roof Structure/Cover: | CJ ALUMINIUM HEAVY |
|
| | Type | Description | Class CD | Sub Class CD | Year Built | Area |
| | BAS | BASE/MAIN FLOOR | 3 | 0 | 1972 | 1008.0 |
| | DWN | DOWNSTAIRS LIVING AREA | 3 | 0 | 1972 | 528.0 |
| | OP2 | OPEN PORCH W/STEPS | 3 | 0 | 1972 | 70.0 |
| | BIG | BUILT IN GARAGE | 3 | 0 | 1972 | 480.0 |
| | OWP | OPEN WOOD PORCH W/STEPS | 3 | 0 | 1972 | 78.0 |
Sketch
Property Image
Land
| 1 | 13 | SQ (06001-08000) | 0.0000 | 0.00 | 0.00 | 0.00 | 1.00 | $190,000 | $0 |
Roll Value History
| 2026 | N/A | N/A | N/A | N/A | N/A |
| 2025 | $200,605 | $190,000 | $0 | $390,605 | $390,605 |
| 2024 | $207,842 | $180,000 | $0 | $387,842 | $387,842 |
| 2023 | $196,146 | $190,000 | $0 | $386,146 | $386,146 |
| 2022 | $180,221 | $180,000 | $0 | $360,221 | $360,221 |
| 2021 | $158,971 | $130,000 | $0 | $288,971 | $288,971 |
| 2020 | $155,340 | $100,000 | $0 | $255,340 | $255,340 |
| 2019 | $113,908 | $150,000 | $0 | $263,908 | $263,908 |
| 2018 | $114,303 | $130,000 | $0 | $244,303 | $244,303 |
| 2017 | $88,853 | $110,000 | $0 | $198,853 | $198,853 |
| 2016 | $90,386 | $90,000 | $0 | $180,386 | $180,386 |
| 2015 | $91,917 | $70,000 | $0 | $161,917 | $161,917 |
| 2014 | $93,449 | $55,000 | $0 | $148,449 | $148,449 |
| 2013 | $94,981 | $55,000 | $0 | $149,981 | $149,981 |
| 2012 | $96,512 | $65,000 | $0 | $161,512 | $161,512 |
| 2011 | $91,220 | $65,000 | $0 | $156,220 | $156,220 |
| 2010 | $101,872 | $65,000 | $0 | $166,872 | $166,872 |
| 2009 | $106,372 | $87,150 | $0 | $193,522 | $193,522 |
| 2008 | $107,884 | $105,000 | $0 | $212,884 | $212,884 |
| 2007 | $109,396 | $105,000 | $0 | $214,396 | $214,396 |
Deed and Sales History
| 1 | 02/01/1996 | WD | Warranty Deed | INMAN, PERRY H | HULL, JOANNE M | | | $116,500.00 | 60566 | 96003074 |
| 2 | 03/01/1992 | WD | Warranty Deed | CAVE, KENNETH L | INMAN, PERRY H | | | $95,000.00 | 20887 | 92004498 |
| 3 | 05/01/1990 | WD | Warranty Deed | BUMBASI, FERNANDO C | CAVE, KENNETH L | | | $67,000.00 | 3001 | 90009785 |
| 4 | 09/01/1979 | WD | Warranty Deed | COX, RICHARD C | BUMBASI, FERNANDO C | | | $52,500.00 | 94871 | 359835 |
| 5 | 01/01/1900 | OTHER | Other - Misc. Documents | Unknown | COX, RICHARD C | | | $0.00 | 0 | 0 |
Payout Agreement
| No payout information available.. |