Property
Account |
| Property ID: | 385880 | Abbreviated Legal Description: | SHAD GLN 3 LOT 18 BLK 6 |
| Geographic ID: | S8140-03-06018-0 | Agent Code: | |
| Type: | Real | | |
| Tax Area: | 100 - APPRAISER-OH Schl Dist, in OH | Land Use Code | 11 |
| Open Space: | N | DFL | N |
| Historic Property: | N | Remodel Property: | N |
| Multi-Family Redevelopment: | N | | |
| Township: | | Section: | |
| Range: | |
Location |
| Address: | 227 NW 8TH AVE OAK HARBOR, WA 98277 | Mapsco: | |
| Neighborhood: | Cycle 1 | Map ID: | 255 |
| Neighborhood CD: | 1 |
Owner |
| Name: | SOLOMON, CALVIN | Owner ID: | 281866 |
| Mailing Address: | 227 NW 8TH AVE OAK HARBOR, WA 98277 | % Ownership: | 100.0000000000% |
| | | Exemptions: | |
Taxes and Assessment Details
Values
| (+) Improvement Homesite Value: | + | $0 | |
| (+) Improvement Non-Homesite Value: | + | $232,669 | |
| (+) Land Homesite Value: | + | $0 | |
| (+) Land Non-Homesite Value: | + | $190,000 | |
| (+) Curr Use (HS): | + | $0 | $0 |
| (+) Curr Use (NHS): | + | $0 | $0 |
| | | -------------------------- | |
| (=) Market Value: | = | $422,669 | |
| (–) Productivity Loss: | – | $0 | |
| | | -------------------------- | |
| (=) Subtotal: | = | $422,669 | |
| (+) Senior Appraised Value: | + | $0 | |
| (+) Non-Senior Appraised Value: | + | $422,669 | |
| | | -------------------------- | |
| (=) Total Appraised Value: | = | $422,669 | |
| (–) Senior Exemption Loss: | – | $0 | |
| (–) Exemption Loss: | – | $0 | |
| | | -------------------------- | |
| (=) Taxable Value: | = | $422,669 | |
Taxing Jurisdiction
| Owner: | SOLOMON, CALVIN | | |
| % Ownership: | 100.0000000000% | | |
| Total Value: | $422,669 | | |
| Tax Area: | 100 - APPRAISER-OH Schl Dist, in OH |
| CF | Conservation Futures | 0.0316035091 | $422,669 | $422,669 | $13.36 | | |
| CEM1 | Cemetery #1 | 0.0040320932 | $422,669 | $422,669 | $1.70 | | |
| COH | City of Oak Harbor | 2.3001546061 | $422,669 | $422,669 | $972.20 | | |
| OAKBOND | City of Oak Harbor BOND | 0.1926904192 | $422,669 | $422,669 | $81.44 | | |
| HOBOND | Hospital BOND | 0.1910887512 | $422,669 | $422,669 | $80.77 | | |
| HOGEN | Hospital GEN | 0.3902502903 | $422,669 | $422,669 | $164.95 | | |
| CE | County Current Expense | 0.3708482477 | $422,669 | $422,669 | $156.75 | | |
| ISLANDEMS | Hospital GEN (EMS) | 0.5000000000 | $422,669 | $422,669 | $211.33 | | |
| LIB | Library Sno-Isle GEN | 0.3153421757 | $422,669 | $422,669 | $133.29 | | |
| NWHIDPRMT | P & R N Whidbey GEN | 0.2004466701 | $422,669 | $422,669 | $84.72 | | |
| SCH201MO | School 201 Enrichment | 1.8559231640 | $422,669 | $422,669 | $784.44 | | |
| ST | State School | 1.3035497053 | $422,669 | $422,669 | $550.97 | | |
| ST2 | State School Part 2 | 0.8169543533 | $422,669 | $422,669 | $345.30 | | |
| | Total Tax Rate: | 8.4728839852 | | | | | |
| | | | | Taxes w/Current Exemptions: | $3,581.22 | | |
| | | | | Taxes w/o Exemptions: | $3,581.22 | | |
Improvement / Building
| Improvement #1: | RESIDENTIAL | State Code: | Y | 2016.0 sqft | Value: | $232,669 |
| Bathrooms: | 2 | Bedrooms: | 4 | | Ceiling: | DRY WALL SPRAYED | Exterior Wall/Cover: | VINYL | | Floor Covering: | CARPET/VINYL 60-40 | Floor Structure: | WOOD W/SUBFLOOR | | Foundation: | CONCRETE | Heating: | WALL HEAT ELECTRIC | | Interior Finish: | DRYWALL PAINT | Plumbing Fixture Cnt: | 9 | | Roof Slope: | 4" IN 12" | Roof Structure/Cover: | CJ ASPHALT |
|
| | Type | Description | Class CD | Sub Class CD | Year Built | Area |
| | BAS | BASE/MAIN FLOOR | 3 | 0 | 1972 | 1008.0 |
| | OP2 | OPEN PORCH W/STEPS | 3 | 0 | 1972 | 70.0 |
| | OWP | OPEN WOOD PORCH W/STEPS | 3 | 0 | 1972 | 182.0 |
| | DWN | DOWNSTAIRS LIVING AREA | 3 | 0 | 1972 | 1008.0 |
Sketch
Property Image
Land
| 1 | 13 | SQ (06001-08000) | 0.0000 | 0.00 | 0.00 | 0.00 | 1.00 | $190,000 | $0 |
Roll Value History
| 2026 | N/A | N/A | N/A | N/A | N/A |
| 2025 | $232,669 | $190,000 | $0 | $422,669 | $422,669 |
| 2024 | $235,761 | $180,000 | $0 | $415,761 | $415,761 |
| 2023 | $232,669 | $190,000 | $0 | $422,669 | $422,669 |
| 2022 | $213,487 | $180,000 | $0 | $393,487 | $393,487 |
| 2021 | $188,062 | $130,000 | $0 | $318,062 | $318,062 |
| 2020 | $183,719 | $100,000 | $0 | $283,719 | $283,719 |
| 2019 | $141,078 | $150,000 | $0 | $291,078 | $291,078 |
| 2018 | $141,523 | $130,000 | $0 | $271,523 | $271,523 |
| 2017 | $102,376 | $110,000 | $0 | $212,376 | $212,376 |
| 2016 | $104,083 | $90,000 | $0 | $194,083 | $194,083 |
| 2015 | $105,789 | $70,000 | $0 | $175,789 | $175,789 |
| 2014 | $107,496 | $55,000 | $0 | $162,496 | $162,496 |
| 2013 | $109,202 | $55,000 | $0 | $164,202 | $164,202 |
| 2012 | $110,908 | $65,000 | $0 | $175,908 | $175,908 |
| 2011 | $103,642 | $65,000 | $0 | $168,642 | $168,642 |
| 2010 | $115,082 | $65,000 | $0 | $180,082 | $180,082 |
| 2009 | $120,179 | $87,150 | $0 | $207,329 | $207,329 |
| 2008 | $120,218 | $105,000 | $0 | $225,218 | $225,218 |
| 2007 | $121,921 | $105,000 | $0 | $226,921 | $226,921 |
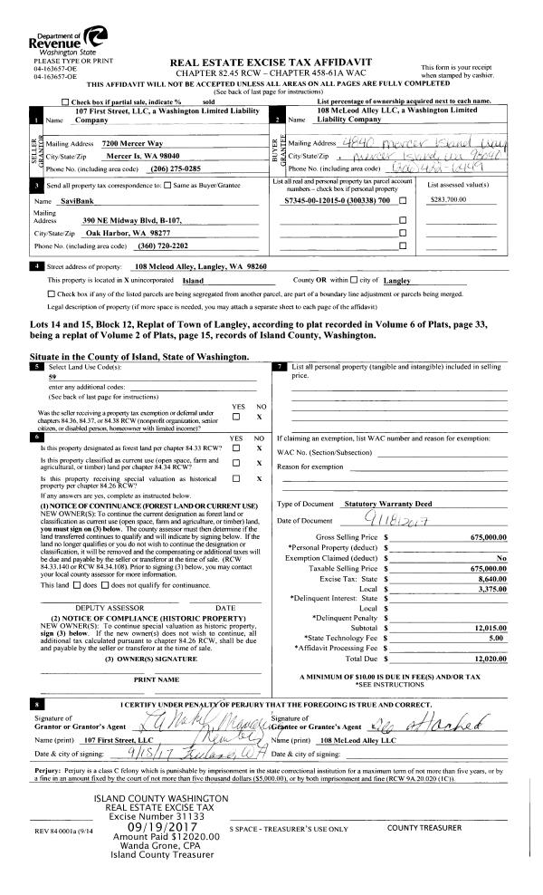
Deed and Sales History
| 1 | 09/11/2017 | QCD | Quit Claim Deed | SOLOMON, CALVIN | SOLOMON, CALVIN | | | $0.00 | 31035 | 4429936 |
| 2 | 09/01/2017 | WD | Warranty Deed | JONES, NATHAN G | SOLOMON, CALVIN | | | $275,000.00 | 31034 | 4429935 |
| 3 | 06/16/2006 | ESTSEPPROP | Establish Separate Property | JONES, NATHAN G | JONES, NATHAN G | | | $0.00 | 62883 | 4174955 |
| 4 | 04/17/2006 | 5 | DNU - Marriage License/Name Change | JONES, NATHAN G | JONES, NATHAN G | | | $0.00 | 60666 | 4167870 |
| 5 | 01/24/2006 | WD | Warranty Deed | ROCK, STEVEN A | JONES, NATHAN G | | | $175,000.00 | 60417 | 4161197 |
| 6 | 05/24/2001 | WD | Warranty Deed | SANBORN, CHRIS L | ROCK, STEVEN A | | | $144,950.00 | 11973 | 20033575 |
| 7 | 07/02/1998 | WD | Warranty Deed | LEWIS, SCOTT B | SANBORN, CHRIS L | | | $119,000.00 | 82677 | 98013833 |
| 8 | 08/01/1991 | WD | Warranty Deed | HANAN, STEPHEN C | LEWIS, SCOTT B | | | $0.00 | 13103 | 91013213 |
| 9 | 09/01/1990 | WD | Warranty Deed | BRAATEN, TERRY K | HANAN, STEPHEN C | | | $98,500.00 | 5346 | 90017815 |
| 10 | 11/01/1984 | WD | Warranty Deed | VICKERY, JOHN L | BRAATEN, TERRY K | | | $66,000.00 | 43438 | 84006058 |
| 11 | 01/01/1900 | OTHER | Other - Misc. Documents | Unknown | SANBORN, CHRIS L | | | $0.00 | 82677 | 98013833 |
| 12 | 01/01/1900 | OTHER | Other - Misc. Documents | SANBORN, CHRIS L | VICKERY, JOHN L | | | $0.00 | 0 | 0 |
Payout Agreement
| No payout information available.. |