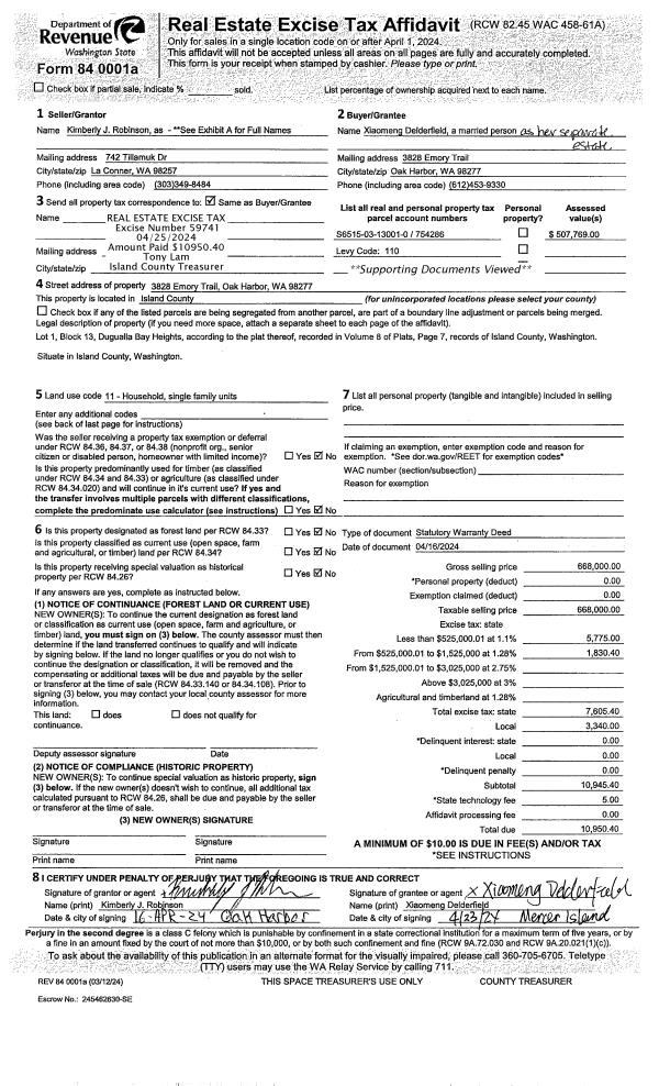
Property
Account |
| Property ID: | 386139 | Abbreviated Legal Description: | SHAD GLN 5 LOT 5 BLK 4 |
| Geographic ID: | S8140-05-04005-0 | Agent Code: | |
| Type: | Real | | |
| Tax Area: | 100 - APPRAISER-OH Schl Dist, in OH | Land Use Code | 11 |
| Open Space: | N | DFL | N |
| Historic Property: | N | Remodel Property: | N |
| Multi-Family Redevelopment: | N | | |
| Township: | | Section: | |
| Range: | |
Location |
| Address: | 924 NW FRIGATE ST OAK HARBOR, WA 98277 | Mapsco: | |
| Neighborhood: | Cycle 1 | Map ID: | 255 |
| Neighborhood CD: | 1 |
Owner |
| Name: | PARK, HENRY L | Owner ID: | 80188 |
| Mailing Address: | 924 NW FRIGATE ST OAK HARBOR, WA 98277-3877 | % Ownership: | 100.0000000000% |
| | | Exemptions: | |
Taxes and Assessment Details
Values
| (+) Improvement Homesite Value: | + | $0 | |
| (+) Improvement Non-Homesite Value: | + | $237,268 | |
| (+) Land Homesite Value: | + | $0 | |
| (+) Land Non-Homesite Value: | + | $190,000 | |
| (+) Curr Use (HS): | + | $0 | $0 |
| (+) Curr Use (NHS): | + | $0 | $0 |
| | | -------------------------- | |
| (=) Market Value: | = | $427,268 | |
| (–) Productivity Loss: | – | $0 | |
| | | -------------------------- | |
| (=) Subtotal: | = | $427,268 | |
| (+) Senior Appraised Value: | + | $0 | |
| (+) Non-Senior Appraised Value: | + | $427,268 | |
| | | -------------------------- | |
| (=) Total Appraised Value: | = | $427,268 | |
| (–) Senior Exemption Loss: | – | $0 | |
| (–) Exemption Loss: | – | $0 | |
| | | -------------------------- | |
| (=) Taxable Value: | = | $427,268 | |
Taxing Jurisdiction
| Owner: | PARK, HENRY L | | |
| % Ownership: | 100.0000000000% | | |
| Total Value: | $427,268 | | |
| Tax Area: | 100 - APPRAISER-OH Schl Dist, in OH |
| CF | Conservation Futures | 0.0316035091 | $427,268 | $427,268 | $13.50 | | |
| CEM1 | Cemetery #1 | 0.0040320932 | $427,268 | $427,268 | $1.72 | | |
| COH | City of Oak Harbor | 2.3001546061 | $427,268 | $427,268 | $982.78 | | |
| OAKBOND | City of Oak Harbor BOND | 0.1926904192 | $427,268 | $427,268 | $82.33 | | |
| HOBOND | Hospital BOND | 0.1910887512 | $427,268 | $427,268 | $81.65 | | |
| HOGEN | Hospital GEN | 0.3902502903 | $427,268 | $427,268 | $166.74 | | |
| CE | County Current Expense | 0.3708482477 | $427,268 | $427,268 | $158.45 | | |
| ISLANDEMS | Hospital GEN (EMS) | 0.5000000000 | $427,268 | $427,268 | $213.63 | | |
| LIB | Library Sno-Isle GEN | 0.3153421757 | $427,268 | $427,268 | $134.74 | | |
| NWHIDPRMT | P & R N Whidbey GEN | 0.2004466701 | $427,268 | $427,268 | $85.64 | | |
| SCH201MO | School 201 Enrichment | 1.8559231640 | $427,268 | $427,268 | $792.98 | | |
| ST | State School | 1.3035497053 | $427,268 | $427,268 | $556.97 | | |
| ST2 | State School Part 2 | 0.8169543533 | $427,268 | $427,268 | $349.06 | | |
| | Total Tax Rate: | 8.4728839852 | | | | | |
| | | | | Taxes w/Current Exemptions: | $3,620.19 | | |
| | | | | Taxes w/o Exemptions: | $3,620.19 | | |
Improvement / Building
| Improvement #1: | RESIDENTIAL | State Code: | Y | 1660.0 sqft | Value: | $237,268 |
| Bathrooms: | 2.75 | Bedrooms: | 3 | | Ceiling: | DRY WALL SPRAYED | Exterior Wall/Cover: | PLY/HARDBOARD T-111 | | Floor Covering: | CARPET/VINYL 80-20 | Floor Structure: | WOOD W/SUBFLOOR | | Foundation: | CONCRETE | Heating: | BASEBOARD ELECTRIC | | Interior Finish: | DRYWALL PAINT | Plumbing Fixture Cnt: | 12 | | Roof Slope: | 4" IN 12" | Roof Structure/Cover: | CJ ASPHALT |
|
| | Type | Description | Class CD | Sub Class CD | Year Built | Area |
| | BAS | BASE/MAIN FLOOR | 3 | 0 | 1973 | 1132.0 |
| | DWN | DOWNSTAIRS LIVING AREA | 3 | 0 | 1973 | 528.0 |
| | OP2 | OPEN PORCH W/STEPS | 3 | 0 | 1973 | 60.0 |
| | BIG | BUILT IN GARAGE | 3 | 0 | 1973 | 528.0 |
| | OWP | OPEN WOOD PORCH W/STEPS | 3 | 0 | 1973 | 80.0 |
Sketch
Property Image
Land
| 1 | 15 | SQ (12001-21780) | 0.0000 | 0.00 | 0.00 | 0.00 | 1.00 | $190,000 | $0 |
Roll Value History
| 2026 | N/A | N/A | N/A | N/A | N/A |
| 2025 | $237,268 | $190,000 | $0 | $427,268 | $427,268 |
| 2024 | $245,463 | $180,000 | $0 | $425,463 | $425,463 |
| 2023 | $242,244 | $190,000 | $0 | $432,244 | $432,244 |
| 2022 | $222,268 | $180,000 | $0 | $402,268 | $402,268 |
| 2021 | $195,809 | $130,000 | $0 | $325,809 | $325,809 |
| 2020 | $190,611 | $100,000 | $0 | $290,611 | $290,611 |
| 2019 | $137,916 | $150,000 | $0 | $287,916 | $287,916 |
| 2018 | $138,352 | $130,000 | $0 | $268,352 | $268,352 |
| 2017 | $102,038 | $110,000 | $0 | $212,038 | $212,038 |
| 2016 | $103,740 | $90,000 | $0 | $193,740 | $193,740 |
| 2015 | $105,441 | $70,000 | $0 | $175,441 | $175,441 |
| 2014 | $107,140 | $55,000 | $0 | $162,140 | $162,140 |
| 2013 | $108,841 | $55,000 | $0 | $163,841 | $163,841 |
| 2012 | $110,543 | $65,000 | $0 | $175,543 | $175,543 |
| 2011 | $103,254 | $65,000 | $0 | $168,254 | $168,254 |
| 2010 | $113,804 | $65,000 | $0 | $178,804 | $178,804 |
| 2009 | $118,812 | $87,150 | $0 | $205,962 | $205,962 |
| 2008 | $118,812 | $105,000 | $0 | $223,812 | $223,812 |
| 2007 | $120,461 | $105,000 | $0 | $225,461 | $225,461 |
Deed and Sales History
| 1 | 07/01/1978 | OTHER | Other - Misc. Documents | Unknown | PARK, HENRY L | | | $49,750.00 | 83539 | 336885 |
Payout Agreement
| No payout information available.. |