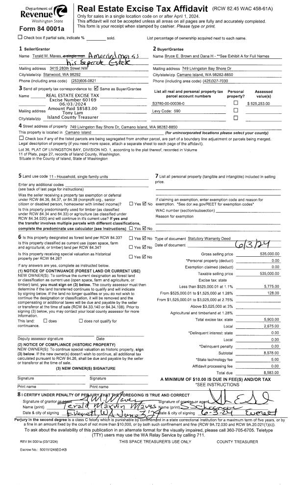
Property
Account |
| Property ID: | 386371 | Abbreviated Legal Description: | SHAD GLN 6 LOT 17 BLK 4 |
| Geographic ID: | S8140-06-04017-0 | Agent Code: | |
| Type: | Real | | |
| Tax Area: | 100 - APPRAISER-OH Schl Dist, in OH | Land Use Code | 11 |
| Open Space: | N | DFL | N |
| Historic Property: | N | Remodel Property: | N |
| Multi-Family Redevelopment: | N | | |
| Township: | | Section: | |
| Range: | |
Location |
| Address: | 675 NW HIYU DR OAK HARBOR, WA 98277 | Mapsco: | |
| Neighborhood: | Cycle 1 | Map ID: | 255 |
| Neighborhood CD: | 1 |
Owner |
| Name: | EGGETT, GORDON E | Owner ID: | 259326 |
| Mailing Address: | CHARMAINE L EGGETT 2717 CRESCENT ACRES RD OAK HARBOR, WA 98277 | % Ownership: | 100.0000000000% |
| | | Exemptions: | |
Taxes and Assessment Details
Values
| (+) Improvement Homesite Value: | + | $0 | |
| (+) Improvement Non-Homesite Value: | + | $279,747 | |
| (+) Land Homesite Value: | + | $0 | |
| (+) Land Non-Homesite Value: | + | $190,000 | |
| (+) Curr Use (HS): | + | $0 | $0 |
| (+) Curr Use (NHS): | + | $0 | $0 |
| | | -------------------------- | |
| (=) Market Value: | = | $469,747 | |
| (–) Productivity Loss: | – | $0 | |
| | | -------------------------- | |
| (=) Subtotal: | = | $469,747 | |
| (+) Senior Appraised Value: | + | $0 | |
| (+) Non-Senior Appraised Value: | + | $469,747 | |
| | | -------------------------- | |
| (=) Total Appraised Value: | = | $469,747 | |
| (–) Senior Exemption Loss: | – | $0 | |
| (–) Exemption Loss: | – | $0 | |
| | | -------------------------- | |
| (=) Taxable Value: | = | $469,747 | |
Taxing Jurisdiction
| Owner: | EGGETT, GORDON E | | |
| % Ownership: | 100.0000000000% | | |
| Total Value: | $469,747 | | |
| Tax Area: | 100 - APPRAISER-OH Schl Dist, in OH |
| CF | Conservation Futures | 0.0316035091 | $469,747 | $469,747 | $14.85 | | |
| CEM1 | Cemetery #1 | 0.0040320932 | $469,747 | $469,747 | $1.89 | | |
| COH | City of Oak Harbor | 2.3001546061 | $469,747 | $469,747 | $1,080.49 | | |
| OAKBOND | City of Oak Harbor BOND | 0.1926904192 | $469,747 | $469,747 | $90.52 | | |
| HOBOND | Hospital BOND | 0.1910887512 | $469,747 | $469,747 | $89.76 | | |
| HOGEN | Hospital GEN | 0.3902502903 | $469,747 | $469,747 | $183.32 | | |
| CE | County Current Expense | 0.3708482477 | $469,747 | $469,747 | $174.20 | | |
| ISLANDEMS | Hospital GEN (EMS) | 0.5000000000 | $469,747 | $469,747 | $234.87 | | |
| LIB | Library Sno-Isle GEN | 0.3153421757 | $469,747 | $469,747 | $148.13 | | |
| NWHIDPRMT | P & R N Whidbey GEN | 0.2004466701 | $469,747 | $469,747 | $94.16 | | |
| SCH201MO | School 201 Enrichment | 1.8559231640 | $469,747 | $469,747 | $871.81 | | |
| ST | State School | 1.3035497053 | $469,747 | $469,747 | $612.34 | | |
| ST2 | State School Part 2 | 0.8169543533 | $469,747 | $469,747 | $383.76 | | |
| | Total Tax Rate: | 8.4728839852 | | | | | |
| | | | | Taxes w/Current Exemptions: | $3,980.10 | | |
| | | | | Taxes w/o Exemptions: | $3,980.10 | | |
Improvement / Building
| Improvement #1: | RESIDENTIAL | State Code: | Y | 2142.0 sqft | Value: | $279,747 |
| Bathrooms: | 2.75 | Bedrooms: | 4 | | Ceiling: | DRY WALL SPRAYED | Cooling: | HEAT PUMP/CONV/V | | Exterior Wall/Cover: | PLY/HARDBOARD T-111 | Floor Covering: | CARPET/VINYL 80-20 | | Floor Structure: | WOOD W/SUBFLOOR | Foundation: | CONCRETE | | Interior Finish: | DRYWALL PAINT | Plumbing Fixture Cnt: | 12 | | Roof Slope: | 4" IN 12" | Roof Structure/Cover: | CJ ASPHALT |
|
| | Type | Description | Class CD | Sub Class CD | Year Built | Area |
| | BAS | BASE/MAIN FLOOR | 3 | 0 | 1975 | 1056.0 |
| | AGR | ATTACHED GARAGE | 3 | 0 | 1975 | 440.0 |
| | UPS | UPPER STORY | 3 | 0 | 1975 | 1086.0 |
| | OWP | OPEN WOOD PORCH W/STEPS | 3 | 0 | 1975 | 46.4 |
| | OWP | OPEN WOOD PORCH W/STEPS | 3 | 0 | 1975 | 172.2 |
Sketch
Property Image
Land
| 1 | 14 | SQ (08001-12000) | 0.0000 | 0.00 | 0.00 | 0.00 | 1.00 | $190,000 | $0 |
Roll Value History
| 2026 | N/A | N/A | N/A | N/A | N/A |
| 2025 | $279,747 | $190,000 | $0 | $469,747 | $469,747 |
| 2024 | $283,465 | $180,000 | $0 | $463,465 | $463,465 |
| 2023 | $279,747 | $190,000 | $0 | $469,747 | $469,747 |
| 2022 | $256,692 | $180,000 | $0 | $436,692 | $436,692 |
| 2021 | $222,108 | $130,000 | $0 | $352,108 | $352,108 |
| 2020 | $216,648 | $100,000 | $0 | $316,648 | $316,648 |
| 2019 | $165,229 | $150,000 | $0 | $315,229 | $315,229 |
| 2018 | $165,750 | $130,000 | $0 | $295,750 | $295,750 |
| 2017 | $128,830 | $110,000 | $0 | $238,830 | $238,830 |
| 2016 | $130,874 | $90,000 | $0 | $220,874 | $220,874 |
| 2015 | $132,919 | $70,000 | $0 | $202,919 | $202,919 |
| 2014 | $134,965 | $55,000 | $0 | $189,965 | $189,965 |
| 2013 | $137,009 | $55,000 | $0 | $192,009 | $192,009 |
| 2012 | $139,054 | $65,000 | $0 | $204,054 | $204,054 |
| 2011 | $131,275 | $65,000 | $0 | $196,275 | $196,275 |
| 2010 | $139,851 | $65,000 | $0 | $204,851 | $204,851 |
| 2009 | $146,138 | $87,150 | $0 | $233,288 | $233,288 |
| 2008 | $148,189 | $105,000 | $0 | $253,189 | $253,189 |
| 2007 | $150,240 | $105,000 | $0 | $255,240 | $255,240 |
Deed and Sales History
| 1 | 08/27/2012 | CCOMPROP | Create Community Property | EGGETT, GORDON E | EGGETT, GORDON E | | | $0.00 | 8754 | 4322422 |
| 2 | 01/01/1900 | OTHER | Other - Misc. Documents | Unknown | EGGETT, GORDON E | | | $0.00 | 0 | 0 |
Payout Agreement
| No payout information available.. |