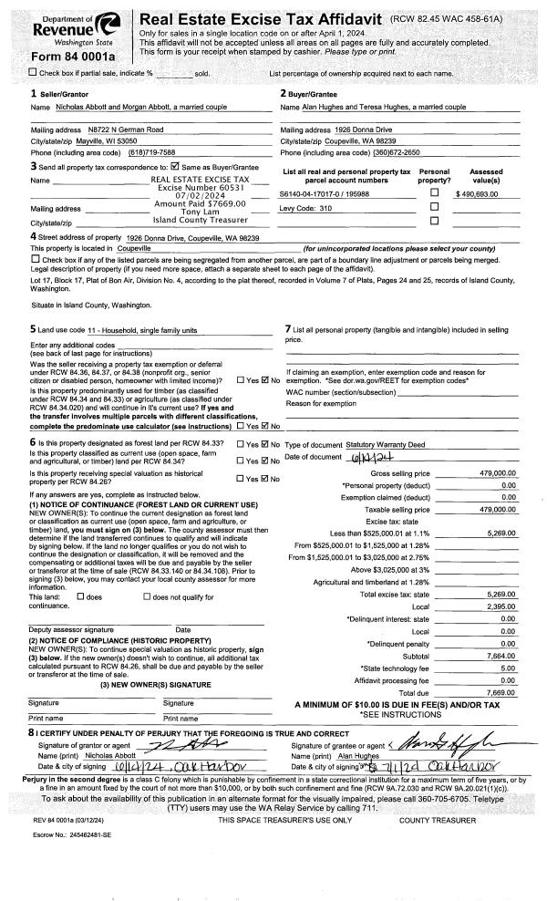
Property
Account |
| Property ID: | 386442 | Abbreviated Legal Description: | SHAD GLN 6 LOT 14 BLK 5 |
| Geographic ID: | S8140-06-05014-0 | Agent Code: | |
| Type: | Real | | |
| Tax Area: | 100 - APPRAISER-OH Schl Dist, in OH | Land Use Code | 11 |
| Open Space: | N | DFL | N |
| Historic Property: | N | Remodel Property: | N |
| Multi-Family Redevelopment: | N | | |
| Township: | | Section: | |
| Range: | |
Location |
| Address: | 880 NW ILLAHEE DR OAK HARBOR, WA 98277 | Mapsco: | |
| Neighborhood: | Cycle 1 | Map ID: | 255 |
| Neighborhood CD: | 1 |
Owner |
| Name: | FTIZGERALD, JOSPEH T | Owner ID: | 277456 |
| Mailing Address: | SARAH N FITZGERALD 880 NW ILLAHEE DR OAK HARBOR, WA 98277 | % Ownership: | 100.0000000000% |
| | | Exemptions: | |
Taxes and Assessment Details
Values
| (+) Improvement Homesite Value: | + | $0 | |
| (+) Improvement Non-Homesite Value: | + | $268,671 | |
| (+) Land Homesite Value: | + | $0 | |
| (+) Land Non-Homesite Value: | + | $190,000 | |
| (+) Curr Use (HS): | + | $0 | $0 |
| (+) Curr Use (NHS): | + | $0 | $0 |
| | | -------------------------- | |
| (=) Market Value: | = | $458,671 | |
| (–) Productivity Loss: | – | $0 | |
| | | -------------------------- | |
| (=) Subtotal: | = | $458,671 | |
| (+) Senior Appraised Value: | + | $0 | |
| (+) Non-Senior Appraised Value: | + | $458,671 | |
| | | -------------------------- | |
| (=) Total Appraised Value: | = | $458,671 | |
| (–) Senior Exemption Loss: | – | $0 | |
| (–) Exemption Loss: | – | $0 | |
| | | -------------------------- | |
| (=) Taxable Value: | = | $458,671 | |
Taxing Jurisdiction
| Owner: | FTIZGERALD, JOSPEH T | | |
| % Ownership: | 100.0000000000% | | |
| Total Value: | $458,671 | | |
| Tax Area: | 100 - APPRAISER-OH Schl Dist, in OH |
| CF | Conservation Futures | 0.0316035091 | $458,671 | $458,671 | $14.50 | | |
| CEM1 | Cemetery #1 | 0.0040320932 | $458,671 | $458,671 | $1.85 | | |
| COH | City of Oak Harbor | 2.3001546061 | $458,671 | $458,671 | $1,055.01 | | |
| OAKBOND | City of Oak Harbor BOND | 0.1926904192 | $458,671 | $458,671 | $88.38 | | |
| HOBOND | Hospital BOND | 0.1910887512 | $458,671 | $458,671 | $87.65 | | |
| HOGEN | Hospital GEN | 0.3902502903 | $458,671 | $458,671 | $179.00 | | |
| CE | County Current Expense | 0.3708482477 | $458,671 | $458,671 | $170.10 | | |
| ISLANDEMS | Hospital GEN (EMS) | 0.5000000000 | $458,671 | $458,671 | $229.34 | | |
| LIB | Library Sno-Isle GEN | 0.3153421757 | $458,671 | $458,671 | $144.64 | | |
| NWHIDPRMT | P & R N Whidbey GEN | 0.2004466701 | $458,671 | $458,671 | $91.94 | | |
| SCH201MO | School 201 Enrichment | 1.8559231640 | $458,671 | $458,671 | $851.26 | | |
| ST | State School | 1.3035497053 | $458,671 | $458,671 | $597.90 | | |
| ST2 | State School Part 2 | 0.8169543533 | $458,671 | $458,671 | $374.71 | | |
| | Total Tax Rate: | 8.4728839852 | | | | | |
| | | | | Taxes w/Current Exemptions: | $3,886.28 | | |
| | | | | Taxes w/o Exemptions: | $3,886.28 | | |
Improvement / Building
| Improvement #1: | RESIDENTIAL | State Code: | Y | 2142.0 sqft | Value: | $268,671 |
| Bathrooms: | 2.5 | Bedrooms: | 3 | | Ceiling: | DRY WALL SPRAYED | Exterior Wall/Cover: | PLY/HARDBOARD T-111 | | Floor Covering: | CARPET/VINYL 20-80 | Floor Structure: | WOOD W/SUBFLOOR | | Foundation: | CONCRETE | Heating: | BASEBOARD ELECTRIC | | Interior Finish: | DRYWALL PAINT | Plumbing Fixture Cnt: | 11 | | Roof Slope: | 4" IN 12" | Roof Structure/Cover: | CJ ASPHALT |
|
| | Type | Description | Class CD | Sub Class CD | Year Built | Area |
| | BAS | BASE/MAIN FLOOR | 3 | 0 | 1975 | 1086.0 |
| | DWN | DOWNSTAIRS LIVING AREA | 3 | 0 | 1975 | 1056.0 |
| | AGR | ATTACHED GARAGE | 3 | 0 | 1975 | 440.0 |
| | OWP | OPEN WOOD PORCH W/STEPS | 3 | 0 | 1975 | 24.0 |
| | OWP | OPEN WOOD PORCH W/STEPS | 3 | 0 | 1975 | 80.0 |
Sketch
Property Image
Land
| 1 | 14 | SQ (08001-12000) | 0.0000 | 0.00 | 0.00 | 0.00 | 1.00 | $190,000 | $0 |
Roll Value History
| 2026 | N/A | N/A | N/A | N/A | N/A |
| 2025 | $268,671 | $190,000 | $0 | $458,671 | $458,671 |
| 2024 | $278,011 | $180,000 | $0 | $458,011 | $458,011 |
| 2023 | $274,546 | $190,000 | $0 | $464,546 | $464,546 |
| 2022 | $251,751 | $180,000 | $0 | $431,751 | $431,751 |
| 2021 | $221,647 | $130,000 | $0 | $351,647 | $351,647 |
| 2020 | $216,177 | $100,000 | $0 | $316,177 | $316,177 |
| 2019 | $165,483 | $150,000 | $0 | $315,483 | $315,483 |
| 2018 | $165,981 | $130,000 | $0 | $295,981 | $295,981 |
| 2017 | $165,695 | $110,000 | $0 | $275,695 | $275,695 |
| 2016 | $121,444 | $90,000 | $0 | $211,444 | $211,444 |
| 2015 | $123,371 | $70,000 | $0 | $193,371 | $193,371 |
| 2014 | $125,300 | $55,000 | $0 | $180,300 | $180,300 |
| 2013 | $127,227 | $55,000 | $0 | $182,227 | $182,227 |
| 2012 | $129,155 | $65,000 | $0 | $194,155 | $194,155 |
| 2011 | $125,993 | $65,000 | $0 | $190,993 | $190,993 |
| 2010 | $136,520 | $65,000 | $0 | $201,520 | $201,520 |
| 2009 | $142,474 | $87,150 | $0 | $229,624 | $229,624 |
| 2008 | $144,362 | $105,000 | $0 | $249,362 | $249,362 |
| 2007 | $146,250 | $105,000 | $0 | $251,250 | $251,250 |
Deed and Sales History
| 1 | 10/31/2016 | WD | Warranty Deed | WISE, SHAWN B | FTIZGERALD, JOSPEH T | | | $292,000.00 | 26853 | 4411155 |
| 2 | 07/21/2004 | WD | Warranty Deed | TERLAJE, ALFREDO T | WISE, SHAWN B | | | $175,000.00 | 43427 | 4108223 |
| 3 | 10/01/2001 | ESTSEPPROP | Establish Separate Property | TERLAJE, ALFREDO T | TERLAJE, ALFREDO T | | | $0.00 | 13927 | 20045160 |
| 4 | 02/01/1989 | QCD | Quit Claim Deed | TERLAJE, ALFREDO T | TERLAJE, ALFREDO T | | | $0.00 | 90666 | 89002326 |
Payout Agreement
| No payout information available.. |