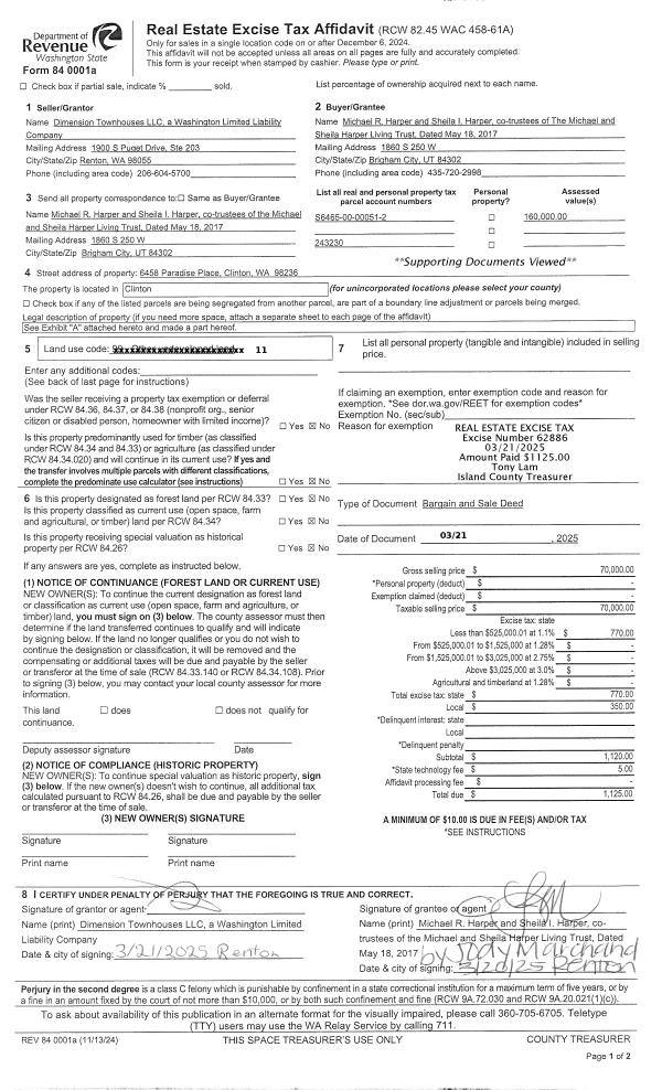
Property
Account |
| Property ID: | 386576 | Abbreviated Legal Description: | SHAD GLN 7 LOT 7 BLK 2 |
| Geographic ID: | S8140-07-02007-0 | Agent Code: | |
| Type: | Real | | |
| Tax Area: | 100 - APPRAISER-OH Schl Dist, in OH | Land Use Code | 11 |
| Open Space: | N | DFL | N |
| Historic Property: | N | Remodel Property: | N |
| Multi-Family Redevelopment: | N | | |
| Township: | | Section: | |
| Range: | |
Location |
| Address: | 748 NW HYAK DR OAK HARBOR, WA 98277 | Mapsco: | |
| Neighborhood: | Cycle 1 | Map ID: | 255 |
| Neighborhood CD: | 1 |
Owner |
| Name: | ALANIS, JACK | Owner ID: | 315243 |
| Mailing Address: | 748 NW HYAK DR OAK HARBOR, WA 98277 | % Ownership: | 100.0000000000% |
| | | Exemptions: | |
Taxes and Assessment Details
Values
| (+) Improvement Homesite Value: | + | $0 | |
| (+) Improvement Non-Homesite Value: | + | $220,074 | |
| (+) Land Homesite Value: | + | $0 | |
| (+) Land Non-Homesite Value: | + | $190,000 | |
| (+) Curr Use (HS): | + | $0 | $0 |
| (+) Curr Use (NHS): | + | $0 | $0 |
| | | -------------------------- | |
| (=) Market Value: | = | $410,074 | |
| (–) Productivity Loss: | – | $0 | |
| | | -------------------------- | |
| (=) Subtotal: | = | $410,074 | |
| (+) Senior Appraised Value: | + | $0 | |
| (+) Non-Senior Appraised Value: | + | $410,074 | |
| | | -------------------------- | |
| (=) Total Appraised Value: | = | $410,074 | |
| (–) Senior Exemption Loss: | – | $0 | |
| (–) Exemption Loss: | – | $0 | |
| | | -------------------------- | |
| (=) Taxable Value: | = | $410,074 | |
Taxing Jurisdiction
| Owner: | ALANIS, JACK | | |
| % Ownership: | 100.0000000000% | | |
| Total Value: | $410,074 | | |
| Tax Area: | 100 - APPRAISER-OH Schl Dist, in OH |
| CF | Conservation Futures | 0.0316035091 | $410,074 | $410,074 | $12.96 | | |
| CEM1 | Cemetery #1 | 0.0040320932 | $410,074 | $410,074 | $1.65 | | |
| COH | City of Oak Harbor | 2.3001546061 | $410,074 | $410,074 | $943.23 | | |
| OAKBOND | City of Oak Harbor BOND | 0.1926904192 | $410,074 | $410,074 | $79.02 | | |
| HOBOND | Hospital BOND | 0.1910887512 | $410,074 | $410,074 | $78.36 | | |
| HOGEN | Hospital GEN | 0.3902502903 | $410,074 | $410,074 | $160.03 | | |
| CE | County Current Expense | 0.3708482477 | $410,074 | $410,074 | $152.08 | | |
| ISLANDEMS | Hospital GEN (EMS) | 0.5000000000 | $410,074 | $410,074 | $205.04 | | |
| LIB | Library Sno-Isle GEN | 0.3153421757 | $410,074 | $410,074 | $129.31 | | |
| NWHIDPRMT | P & R N Whidbey GEN | 0.2004466701 | $410,074 | $410,074 | $82.20 | | |
| SCH201MO | School 201 Enrichment | 1.8559231640 | $410,074 | $410,074 | $761.07 | | |
| ST | State School | 1.3035497053 | $410,074 | $410,074 | $534.55 | | |
| ST2 | State School Part 2 | 0.8169543533 | $410,074 | $410,074 | $335.01 | | |
| | Total Tax Rate: | 8.4728839852 | | | | | |
| | | | | Taxes w/Current Exemptions: | $3,474.51 | | |
| | | | | Taxes w/o Exemptions: | $3,474.51 | | |
Improvement / Building
| Improvement #1: | RESIDENTIAL | State Code: | Y | 1210.1 sqft | Value: | $220,074 |
| Bathrooms: | 2 | Bedrooms: | 3 | | Ceiling: | DRY WALL SPRAYED | Exterior Wall/Cover: | VINYL | | Floor Covering: | LAMINATE/LVP | Floor Structure: | WOOD W/SUBFLOOR | | Foundation: | CONCRETE | Heating: | FHA GAS | | Interior Finish: | DRYWALL PAINT | Plumbing Fixture Cnt: | 6 | | Roof Slope: | 4" IN 12" | Roof Structure/Cover: | CJ ASPHALT |
|
| | Type | Description | Class CD | Sub Class CD | Year Built | Area |
| | BAS | BASE/MAIN FLOOR | 3 | 0 | 1976 | 1210.1 |
| | OWP | OPEN WOOD PORCH W/STEPS | 3 | 0 | 1976 | 168.3 |
| | AGR | ATTACHED GARAGE | 3 | 0 | 1976 | 420.0 |
| | OWP | OPEN WOOD PORCH W/STEPS | 3 | 0 | 1976 | 157.7 |
| | OWC | OPEN WOOD PORCH W/STEPS/ROOF/C | 3 | 0 | 1976 | 51.1 |
Sketch
Property Image
Land
| 1 | 14 | SQ (08001-12000) | 0.0000 | 0.00 | 0.00 | 0.00 | 1.00 | $190,000 | $0 |
Roll Value History
| 2026 | N/A | N/A | N/A | N/A | N/A |
| 2025 | $220,074 | $190,000 | $0 | $410,074 | $410,074 |
| 2024 | $201,514 | $180,000 | $0 | $381,514 | $381,514 |
| 2023 | $198,799 | $190,000 | $0 | $388,799 | $388,799 |
| 2022 | $182,468 | $180,000 | $0 | $362,468 | $362,468 |
| 2021 | $160,815 | $130,000 | $0 | $290,815 | $290,815 |
| 2020 | $157,075 | $100,000 | $0 | $257,075 | $257,075 |
| 2019 | $112,750 | $150,000 | $0 | $262,750 | $262,750 |
| 2018 | $113,114 | $130,000 | $0 | $243,114 | $243,114 |
| 2017 | $94,570 | $110,000 | $0 | $204,570 | $204,570 |
| 2016 | $96,048 | $90,000 | $0 | $186,048 | $186,048 |
| 2015 | $97,526 | $70,000 | $0 | $167,526 | $167,526 |
| 2014 | $99,003 | $55,000 | $0 | $154,003 | $154,003 |
| 2013 | $100,481 | $55,000 | $0 | $155,481 | $155,481 |
| 2012 | $101,959 | $65,000 | $0 | $166,959 | $166,959 |
| 2011 | $99,968 | $65,000 | $0 | $164,968 | $164,968 |
| 2010 | $106,566 | $65,000 | $0 | $171,566 | $171,566 |
| 2009 | $111,205 | $87,150 | $0 | $198,355 | $198,355 |
| 2008 | $112,660 | $105,000 | $0 | $217,660 | $217,660 |
| 2007 | $114,114 | $105,000 | $0 | $219,114 | $219,114 |
Deed and Sales History
| 1 | 01/23/2025 | WD | Warranty Deed | DRYING FORCE LLC | ALANIS, JACK | | | $439,950.00 | 62411 | 4581708 |
| 2 | 10/14/2024 | WD | Warranty Deed | HOFFMIRE, CHRISTOPHER SHANE | DRYING FORCE LLC | | | $285,000.00 | 61593 | 4578331 |
| 3 | 05/25/2012 | ESTSEPPROP | Establish Separate Property | HOFFMIRE, CHRISTOPHER SHANE | HOFFMIRE, CHRISTOPHER SHANE | | | $0.00 | 7795 | 4316151 |
| 4 | 05/23/2012 | WD | Warranty Deed | SEARS, MAXINE R | HOFFMIRE, CHRISTOPHER SHANE | | | $170,748.00 | 7794 | 4316146 |
| 5 | 07/01/1991 | OTHER | Other - Misc. Documents | SEARS, ROY G | SEARS, MAXINE R | | | $0.00 | 64342 | 91009314 |
| 6 | 01/01/1900 | OTHER | Other - Misc. Documents | Unknown | SEARS, ROY G | | | $0.00 | 0 | 0 |
Payout Agreement
| No payout information available.. |