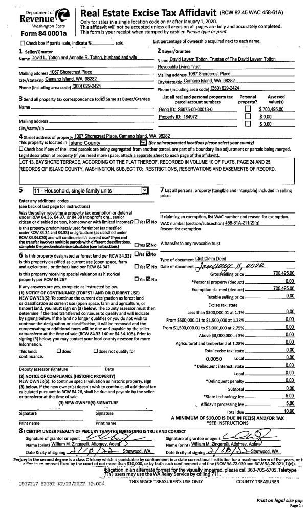
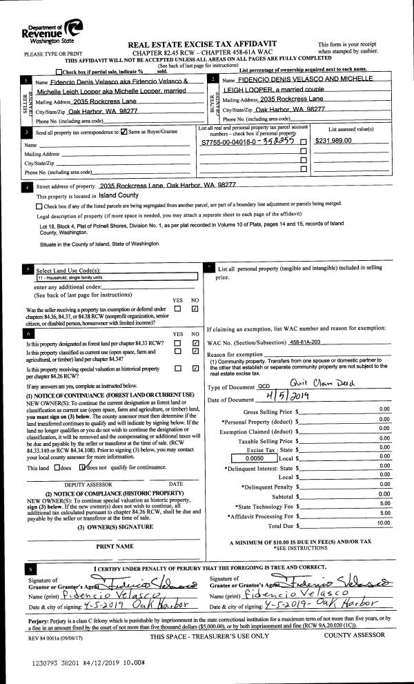
Property
Account |
| Property ID: | 386709 | Abbreviated Legal Description: | SHAD GLN 7 LOT 18 BLK 3 |
| Geographic ID: | S8140-07-03018-0 | Agent Code: | |
| Type: | Real | | |
| Tax Area: | 100 - APPRAISER-OH Schl Dist, in OH | Land Use Code | 11 |
| Open Space: | N | DFL | N |
| Historic Property: | N | Remodel Property: | N |
| Multi-Family Redevelopment: | N | | |
| Township: | | Section: | |
| Range: | |
Location |
| Address: | 795 NW HYAK DR OAK HARBOR, WA 98277 | Mapsco: | |
| Neighborhood: | Cycle 1 | Map ID: | 255 |
| Neighborhood CD: | 1 |
Owner |
| Name: | HAYNES, KEVIN SCOTT | Owner ID: | 301770 |
| Mailing Address: | 795 NW HYAK DR OAK HARBOR, WA 98277 | % Ownership: | 100.0000000000% |
| | | Exemptions: | |
Taxes and Assessment Details
Values
| (+) Improvement Homesite Value: | + | $0 | |
| (+) Improvement Non-Homesite Value: | + | $216,603 | |
| (+) Land Homesite Value: | + | $0 | |
| (+) Land Non-Homesite Value: | + | $190,000 | |
| (+) Curr Use (HS): | + | $0 | $0 |
| (+) Curr Use (NHS): | + | $0 | $0 |
| | | -------------------------- | |
| (=) Market Value: | = | $406,603 | |
| (–) Productivity Loss: | – | $0 | |
| | | -------------------------- | |
| (=) Subtotal: | = | $406,603 | |
| (+) Senior Appraised Value: | + | $0 | |
| (+) Non-Senior Appraised Value: | + | $406,603 | |
| | | -------------------------- | |
| (=) Total Appraised Value: | = | $406,603 | |
| (–) Senior Exemption Loss: | – | $0 | |
| (–) Exemption Loss: | – | $0 | |
| | | -------------------------- | |
| (=) Taxable Value: | = | $406,603 | |
Taxing Jurisdiction
| Owner: | HAYNES, KEVIN SCOTT | | |
| % Ownership: | 100.0000000000% | | |
| Total Value: | $406,603 | | |
| Tax Area: | 100 - APPRAISER-OH Schl Dist, in OH |
| CF | Conservation Futures | 0.0316035091 | $406,603 | $406,603 | $12.85 | | |
| CEM1 | Cemetery #1 | 0.0040320932 | $406,603 | $406,603 | $1.64 | | |
| COH | City of Oak Harbor | 2.3001546061 | $406,603 | $406,603 | $935.25 | | |
| OAKBOND | City of Oak Harbor BOND | 0.1926904192 | $406,603 | $406,603 | $78.35 | | |
| HOBOND | Hospital BOND | 0.1910887512 | $406,603 | $406,603 | $77.70 | | |
| HOGEN | Hospital GEN | 0.3902502903 | $406,603 | $406,603 | $158.68 | | |
| CE | County Current Expense | 0.3708482477 | $406,603 | $406,603 | $150.79 | | |
| ISLANDEMS | Hospital GEN (EMS) | 0.5000000000 | $406,603 | $406,603 | $203.30 | | |
| LIB | Library Sno-Isle GEN | 0.3153421757 | $406,603 | $406,603 | $128.22 | | |
| NWHIDPRMT | P & R N Whidbey GEN | 0.2004466701 | $406,603 | $406,603 | $81.50 | | |
| SCH201MO | School 201 Enrichment | 1.8559231640 | $406,603 | $406,603 | $754.62 | | |
| ST | State School | 1.3035497053 | $406,603 | $406,603 | $530.03 | | |
| ST2 | State School Part 2 | 0.8169543533 | $406,603 | $406,603 | $332.18 | | |
| | Total Tax Rate: | 8.4728839852 | | | | | |
| | | | | Taxes w/Current Exemptions: | $3,445.11 | | |
| | | | | Taxes w/o Exemptions: | $3,445.11 | | |
Improvement / Building
| Improvement #1: | RESIDENTIAL | State Code: | Y | 1056.0 sqft | Value: | $216,603 |
| Bathrooms: | 2 | Bedrooms: | 3 | | Ceiling: | DRYWALL PAINTED | Exterior Wall/Cover: | PLY/HARDBOARD T-111 | | Floor Covering: | VINYL 100% | Floor Structure: | WOOD W/SUBFLOOR | | Foundation: | CONCRETE | Heating: | WALL HEAT ELECTRIC | | Interior Finish: | DRYWALL PAINT | Plumbing Fixture Cnt: | 9 | | Roof Slope: | 4" IN 12" | Roof Structure/Cover: | CJ ASPHALT |
|
| | Type | Description | Class CD | Sub Class CD | Year Built | Area |
| | BAS | BASE/MAIN FLOOR | 3 | 0 | 1976 | 1056.0 |
| | OP3 | OPEN PORCH W/ROOF | 3 | 0 | 1976 | 40.0 |
| | AGR | ATTACHED GARAGE | 3 | 0 | 1976 | 528.0 |
Sketch
Property Image
Land
| 1 | 14 | SQ (08001-12000) | 0.0000 | 0.00 | 0.00 | 0.00 | 1.00 | $190,000 | $0 |
Roll Value History
| 2026 | N/A | N/A | N/A | N/A | N/A |
| 2025 | $216,603 | $190,000 | $0 | $406,603 | $406,603 |
| 2024 | $219,144 | $180,000 | $0 | $399,144 | $399,144 |
| 2023 | $227,221 | $190,000 | $0 | $417,221 | $417,221 |
| 2022 | $208,168 | $180,000 | $0 | $388,168 | $388,168 |
| 2021 | $183,112 | $130,000 | $0 | $313,112 | $313,112 |
| 2020 | $177,752 | $100,000 | $0 | $277,752 | $277,752 |
| 2019 | $125,058 | $150,000 | $0 | $275,058 | $275,058 |
| 2018 | $96,130 | $130,000 | $0 | $226,130 | $226,130 |
| 2017 | $77,821 | $110,000 | $0 | $187,821 | $187,821 |
| 2016 | $79,118 | $90,000 | $0 | $169,118 | $169,118 |
| 2015 | $80,414 | $70,000 | $0 | $150,414 | $150,414 |
| 2014 | $81,713 | $55,000 | $0 | $136,713 | $136,713 |
| 2013 | $83,009 | $55,000 | $0 | $138,009 | $138,009 |
| 2012 | $84,306 | $65,000 | $0 | $149,306 | $149,306 |
| 2011 | $86,155 | $65,000 | $0 | $151,155 | $151,155 |
| 2010 | $89,930 | $65,000 | $0 | $154,930 | $154,930 |
| 2009 | $93,967 | $87,150 | $0 | $181,117 | $181,117 |
| 2008 | $95,272 | $105,000 | $0 | $200,272 | $200,272 |
| 2007 | $96,577 | $105,000 | $0 | $201,577 | $201,577 |
Deed and Sales History
| 1 | 10/22/2021 | WD | Warranty Deed | CHRISTOPHER, CARLEX-JAMAL | HAYNES, KEVIN SCOTT | | | $390,000.00 | 50659 | 4532566 |
| 2 | 04/29/2019 | WD | Warranty Deed | LIBRA, DOUGLAS F | CHRISTOPHER, CARLEX-JAMAL | | | $298,500.00 | 38240 | 4462208 |
| 3 | 01/10/2019 | TRUSTEED | Trustee's Deed | KERSH, RICHARD & GLORIA O | LIBRA, DOUGLAS F | | | $225,500.00 | 37382 | 4458267 |
| 4 | 02/01/1996 | WD | Warranty Deed | ACOSTA, ALBERT B | KERSH, RICHARD & | | | $114,900.00 | 60568 | 96003080 |
| 5 | 06/01/1993 | WD | Warranty Deed | ALEXANDER, JOSEPH C | ACOSTA, ALBERT B | | | $91,500.00 | 32342 | 93012058 |
| 6 | 01/01/1988 | WD | Warranty Deed | POTTER, PHILIP E | ALEXANDER, JOSEPH C | | | $58,000.00 | 80250 | 88001117 |
| 7 | 01/01/1900 | OTHER | Other - Misc. Documents | Unknown | POTTER, PHILIP E | | | $0.00 | 0 | 0 |
Payout Agreement
| No payout information available.. |