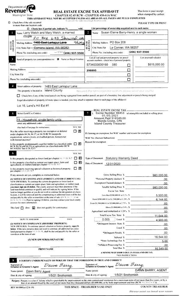
Property
Account |
| Property ID: | 386834 | Abbreviated Legal Description: | SHAD GLN 7 LOT 7 BLK 7 |
| Geographic ID: | S8140-07-07007-0 | Agent Code: | |
| Type: | Real | | |
| Tax Area: | 100 - APPRAISER-OH Schl Dist, in OH | Land Use Code | 11 |
| Open Space: | N | DFL | N |
| Historic Property: | N | Remodel Property: | N |
| Multi-Family Redevelopment: | N | | |
| Township: | | Section: | |
| Range: | |
Location |
| Address: | 953 NW ILLAHEE DR OAK HARBOR, WA 98277 | Mapsco: | |
| Neighborhood: | Cycle 1 | Map ID: | 255 |
| Neighborhood CD: | 1 |
Owner |
| Name: | WIERZBOWSKI, STEPHEN J | Owner ID: | 306531 |
| Mailing Address: | 953 NW ILLAHEE DR OAK HARBOR, WA 98277 | % Ownership: | 100.0000000000% |
| | | Exemptions: | |
Taxes and Assessment Details
Values
| (+) Improvement Homesite Value: | + | $0 | |
| (+) Improvement Non-Homesite Value: | + | $255,404 | |
| (+) Land Homesite Value: | + | $0 | |
| (+) Land Non-Homesite Value: | + | $190,000 | |
| (+) Curr Use (HS): | + | $0 | $0 |
| (+) Curr Use (NHS): | + | $0 | $0 |
| | | -------------------------- | |
| (=) Market Value: | = | $445,404 | |
| (–) Productivity Loss: | – | $0 | |
| | | -------------------------- | |
| (=) Subtotal: | = | $445,404 | |
| (+) Senior Appraised Value: | + | $0 | |
| (+) Non-Senior Appraised Value: | + | $445,404 | |
| | | -------------------------- | |
| (=) Total Appraised Value: | = | $445,404 | |
| (–) Senior Exemption Loss: | – | $0 | |
| (–) Exemption Loss: | – | $0 | |
| | | -------------------------- | |
| (=) Taxable Value: | = | $445,404 | |
Taxing Jurisdiction
| Owner: | WIERZBOWSKI, STEPHEN J | | |
| % Ownership: | 100.0000000000% | | |
| Total Value: | $445,404 | | |
| Tax Area: | 100 - APPRAISER-OH Schl Dist, in OH |
| CF | Conservation Futures | 0.0316035091 | $445,404 | $445,404 | $14.08 | | |
| CEM1 | Cemetery #1 | 0.0040320932 | $445,404 | $445,404 | $1.80 | | |
| COH | City of Oak Harbor | 2.3001546061 | $445,404 | $445,404 | $1,024.50 | | |
| OAKBOND | City of Oak Harbor BOND | 0.1926904192 | $445,404 | $445,404 | $85.83 | | |
| HOBOND | Hospital BOND | 0.1910887512 | $445,404 | $445,404 | $85.11 | | |
| HOGEN | Hospital GEN | 0.3902502903 | $445,404 | $445,404 | $173.82 | | |
| CE | County Current Expense | 0.3708482477 | $445,404 | $445,404 | $165.18 | | |
| ISLANDEMS | Hospital GEN (EMS) | 0.5000000000 | $445,404 | $445,404 | $222.70 | | |
| LIB | Library Sno-Isle GEN | 0.3153421757 | $445,404 | $445,404 | $140.45 | | |
| NWHIDPRMT | P & R N Whidbey GEN | 0.2004466701 | $445,404 | $445,404 | $89.28 | | |
| SCH201MO | School 201 Enrichment | 1.8559231640 | $445,404 | $445,404 | $826.64 | | |
| ST | State School | 1.3035497053 | $445,404 | $445,404 | $580.61 | | |
| ST2 | State School Part 2 | 0.8169543533 | $445,404 | $445,404 | $363.87 | | |
| | Total Tax Rate: | 8.4728839852 | | | | | |
| | | | | Taxes w/Current Exemptions: | $3,773.87 | | |
| | | | | Taxes w/o Exemptions: | $3,773.87 | | |
Improvement / Building
| Improvement #1: | RESIDENTIAL | State Code: | Y | 1836.0 sqft | Value: | $255,404 |
| Bathrooms: | 2 | Bedrooms: | 3 | | Ceiling: | DRY WALL SPRAYED | Exterior Wall/Cover: | VINYL | | Floor Covering: | HARDWOOD/CARP 60-40 | Floor Structure: | WOOD W/SUBFLOOR | | Foundation: | SLAB/CONCRETE | Heating: | BASEBOARD ELECTRIC | | Interior Finish: | DRYWALL PAINT | Plumbing Fixture Cnt: | 9 | | Roof Slope: | 4" IN 12" | Roof Structure/Cover: | CJ ASPHALT |
|
| | Type | Description | Class CD | Sub Class CD | Year Built | Area |
| | BAS | BASE/MAIN FLOOR | 3 | 0 | 1976 | 1080.0 |
| | DWN | DOWNSTAIRS LIVING AREA | 3 | 0 | 1976 | 756.0 |
| | OP2 | OPEN PORCH W/STEPS | 3 | 0 | 1976 | 54.0 |
| | OP3 | OPEN PORCH W/ROOF | 3 | 0 | 1976 | 30.0 |
| | BIG | BUILT IN GARAGE | 3 | 0 | 1976 | 480.0 |
Sketch
Property Image
Land
| 1 | 14 | SQ (08001-12000) | 0.0000 | 0.00 | 0.00 | 0.00 | 1.00 | $190,000 | $0 |
Roll Value History
| 2026 | N/A | N/A | N/A | N/A | N/A |
| 2025 | $255,404 | $190,000 | $0 | $445,404 | $445,404 |
| 2024 | $264,266 | $180,000 | $0 | $444,266 | $444,266 |
| 2023 | $260,889 | $190,000 | $0 | $450,889 | $450,889 |
| 2022 | $239,294 | $180,000 | $0 | $419,294 | $419,294 |
| 2021 | $210,732 | $130,000 | $0 | $340,732 | $340,732 |
| 2020 | $205,729 | $100,000 | $0 | $305,729 | $305,729 |
| 2019 | $145,265 | $150,000 | $0 | $295,265 | $295,265 |
| 2018 | $145,742 | $130,000 | $0 | $275,742 | $275,742 |
| 2017 | $109,936 | $110,000 | $0 | $219,936 | $219,936 |
| 2016 | $111,654 | $90,000 | $0 | $201,654 | $201,654 |
| 2015 | $113,371 | $70,000 | $0 | $183,371 | $183,371 |
| 2014 | $115,088 | $55,000 | $0 | $170,088 | $170,088 |
| 2013 | $116,808 | $55,000 | $0 | $171,808 | $171,808 |
| 2012 | $118,525 | $65,000 | $0 | $183,525 | $183,525 |
| 2011 | $117,745 | $65,000 | $0 | $182,745 | $182,745 |
| 2010 | $127,995 | $65,000 | $0 | $192,995 | $192,995 |
| 2009 | $133,553 | $87,150 | $0 | $220,703 | $220,703 |
| 2008 | $135,345 | $105,000 | $0 | $240,345 | $240,345 |
| 2007 | $137,137 | $105,000 | $0 | $242,137 | $242,137 |
Deed and Sales History
| 1 | 10/24/2022 | WD | Warranty Deed | LANDIN, JUAN DAVID | WIERZBOWSKI, STEPHEN J | | | $450,000.00 | 55052 | 4553311 |
| 2 | 10/22/2019 | WD | Warranty Deed | BEAUCHENE, GENE P / VILMA T | LANDIN, JUAN DAVID | | | $355,000.00 | 40842 | 4474147 |
| 3 | 06/01/1997 | WD | Warranty Deed | HAYES, STEVEN D | BEAUCHENE, GENE P | | | $132,000.00 | 72149 | 97010099 |
| 4 | 01/01/1991 | WD | Warranty Deed | MCNERNEY, STEPHEN R | HAYES, STEVEN D | | | $97,950.00 | 10181 | 91000915 |
| 5 | 08/01/1985 | WD | Warranty Deed | FOX, DENNIS L | MCNERNEY, STEPHEN R | | | $67,500.00 | 52413 | 85009543 |
| 6 | 01/01/1900 | OTHER | Other - Misc. Documents | Unknown | FOX, DENNIS L | | | $0.00 | 0 | 0 |
Payout Agreement
| No payout information available.. |