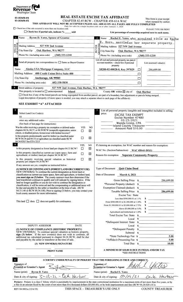
Property
Account |
| Property ID: | 386898 | Abbreviated Legal Description: | SHAD GLN 8 LOT 12 BLK 6 |
| Geographic ID: | S8140-08-06012-0 | Agent Code: | |
| Type: | Real | | |
| Tax Area: | 100 - APPRAISER-OH Schl Dist, in OH | Land Use Code | 11 |
| Open Space: | N | DFL | N |
| Historic Property: | N | Remodel Property: | N |
| Multi-Family Redevelopment: | N | | |
| Township: | | Section: | |
| Range: | |
Location |
| Address: | 790 NW HIYU DR OAK HARBOR, WA 98277 | Mapsco: | |
| Neighborhood: | Cycle 1 | Map ID: | 255 |
| Neighborhood CD: | 1 |
Owner |
| Name: | KLIX, RYAN EDWARD | Owner ID: | 314775 |
| Mailing Address: | 790 NW HIYU DR OAK HARBOR, WA 98277 | % Ownership: | 100.0000000000% |
| | | Exemptions: | |
Taxes and Assessment Details
Values
| (+) Improvement Homesite Value: | + | $0 | |
| (+) Improvement Non-Homesite Value: | + | $281,472 | |
| (+) Land Homesite Value: | + | $0 | |
| (+) Land Non-Homesite Value: | + | $190,000 | |
| (+) Curr Use (HS): | + | $0 | $0 |
| (+) Curr Use (NHS): | + | $0 | $0 |
| | | -------------------------- | |
| (=) Market Value: | = | $471,472 | |
| (–) Productivity Loss: | – | $0 | |
| | | -------------------------- | |
| (=) Subtotal: | = | $471,472 | |
| (+) Senior Appraised Value: | + | $0 | |
| (+) Non-Senior Appraised Value: | + | $471,472 | |
| | | -------------------------- | |
| (=) Total Appraised Value: | = | $471,472 | |
| (–) Senior Exemption Loss: | – | $0 | |
| (–) Exemption Loss: | – | $0 | |
| | | -------------------------- | |
| (=) Taxable Value: | = | $471,472 | |
Taxing Jurisdiction
| Owner: | KLIX, RYAN EDWARD | | |
| % Ownership: | 100.0000000000% | | |
| Total Value: | $471,472 | | |
| Tax Area: | 100 - APPRAISER-OH Schl Dist, in OH |
| CF | Conservation Futures | 0.0316035091 | $471,472 | $471,472 | $14.90 | | |
| CEM1 | Cemetery #1 | 0.0040320932 | $471,472 | $471,472 | $1.90 | | |
| COH | City of Oak Harbor | 2.3001546061 | $471,472 | $471,472 | $1,084.46 | | |
| OAKBOND | City of Oak Harbor BOND | 0.1926904192 | $471,472 | $471,472 | $90.85 | | |
| HOBOND | Hospital BOND | 0.1910887512 | $471,472 | $471,472 | $90.09 | | |
| HOGEN | Hospital GEN | 0.3902502903 | $471,472 | $471,472 | $183.99 | | |
| CE | County Current Expense | 0.3708482477 | $471,472 | $471,472 | $174.84 | | |
| ISLANDEMS | Hospital GEN (EMS) | 0.5000000000 | $471,472 | $471,472 | $235.74 | | |
| LIB | Library Sno-Isle GEN | 0.3153421757 | $471,472 | $471,472 | $148.68 | | |
| NWHIDPRMT | P & R N Whidbey GEN | 0.2004466701 | $471,472 | $471,472 | $94.50 | | |
| SCH201MO | School 201 Enrichment | 1.8559231640 | $471,472 | $471,472 | $875.02 | | |
| ST | State School | 1.3035497053 | $471,472 | $471,472 | $614.59 | | |
| ST2 | State School Part 2 | 0.8169543533 | $471,472 | $471,472 | $385.17 | | |
| | Total Tax Rate: | 8.4728839852 | | | | | |
| | | | | Taxes w/Current Exemptions: | $3,994.73 | | |
| | | | | Taxes w/o Exemptions: | $3,994.73 | | |
Improvement / Building
| Improvement #1: | RESIDENTIAL | State Code: | Y | 1619.0 sqft | Value: | $281,472 |
| Bathrooms: | 1.75 | Bedrooms: | 3 | | Ceiling: | DRY WALL SPRAYED | Exterior Wall/Cover: | WOOD SIDING | | Floor Covering: | CARPET/VINYL 80-20 | Floor Structure: | WOOD W/SUBFLOOR | | Foundation: | CONCRETE | Heating: | BASEBOARD ELECTRIC | | Interior Finish: | DRYWALL PAINT | Plumbing Fixture Cnt: | 9 | | Roof Slope: | 4" IN 12" | Roof Structure/Cover: | CJ ASPHALT |
|
| | Type | Description | Class CD | Sub Class CD | Year Built | Area |
| | BAS | BASE/MAIN FLOOR | 3 | 0 | 1980 | 1619.0 |
| | AGR | ATTACHED GARAGE | 3 | 0 | 1980 | 480.0 |
| | OWP | OPEN WOOD PORCH W/STEPS | 3 | 0 | 1980 | 121.0 |
| | OWC | OPEN WOOD PORCH W/STEPS/ROOF/C | 3 | 0 | 1980 | 28.0 |
Sketch
Property Image
Land
| 1 | 14 | SQ (08001-12000) | 0.0000 | 0.00 | 0.00 | 0.00 | 1.00 | $190,000 | $0 |
Roll Value History
| 2026 | N/A | N/A | N/A | N/A | N/A |
| 2025 | $281,472 | $190,000 | $0 | $471,472 | $471,472 |
| 2024 | $290,927 | $180,000 | $0 | $470,927 | $470,927 |
| 2023 | $294,340 | $190,000 | $0 | $484,340 | $484,340 |
| 2022 | $269,624 | $180,000 | $0 | $449,624 | $449,624 |
| 2021 | $237,136 | $130,000 | $0 | $367,136 | $367,136 |
| 2020 | $186,739 | $100,000 | $0 | $286,739 | $286,739 |
| 2019 | $136,394 | $150,000 | $0 | $286,394 | $286,394 |
| 2018 | $136,853 | $130,000 | $0 | $266,853 | $266,853 |
| 2017 | $114,460 | $110,000 | $0 | $224,460 | $224,460 |
| 2016 | $116,248 | $90,000 | $0 | $206,248 | $206,248 |
| 2015 | $118,038 | $70,000 | $0 | $188,038 | $188,038 |
| 2014 | $119,825 | $55,000 | $0 | $174,825 | $174,825 |
| 2013 | $121,614 | $55,000 | $0 | $176,614 | $176,614 |
| 2012 | $123,402 | $65,000 | $0 | $188,402 | $188,402 |
| 2011 | $126,251 | $65,000 | $0 | $191,251 | $191,251 |
| 2010 | $135,904 | $65,000 | $0 | $200,904 | $200,904 |
| 2009 | $141,780 | $87,150 | $0 | $228,930 | $228,930 |
| 2008 | $143,590 | $105,000 | $0 | $248,590 | $248,590 |
| 2007 | $145,430 | $105,000 | $0 | $250,430 | $250,430 |
Deed and Sales History
| 1 | 12/05/2024 | WD | Warranty Deed | PALMER, MASON WAYNE | KLIX, RYAN EDWARD | | | $469,000.00 | 62013 | 4580168 |
| 2 | 12/17/2020 | WD | Warranty Deed | GASPAR, WILLIAM V | PALMER, MASON WAYNE | | | $389,950.00 | 46212 | 4505857 |
| 3 | 02/24/2000 | QCD | Quit Claim Deed | GASPAR, WILLIAM V | GASPAR, WILLIAM V | | | $0.00 | 630 | 20003331 |
| 4 | 06/01/1981 | WD | Warranty Deed | VENTURE, EXCAVATION & | GASPAR, WILLIAM V | | | $62,000.00 | 11875 | 384451 |
| 5 | 07/01/1980 | WD | Warranty Deed | HOBDAY, LEROY C | VENTURE, EXCAVATION & | | | $29,000.00 | 2447 | 371419 |
| 6 | 01/01/1900 | OTHER | Other - Misc. Documents | Unknown | HOBDAY, LEROY C | | | $0.00 | 0 | 0 |
Payout Agreement
| No payout information available.. |