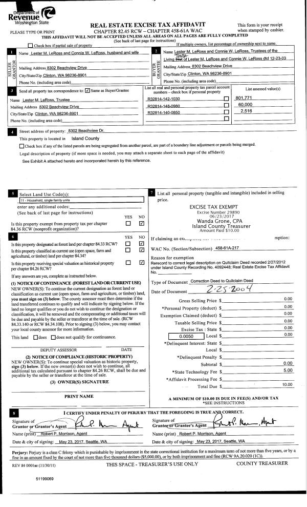
Property
Account |
| Property ID: | 386923 | Abbreviated Legal Description: | SHAD GLN 8 LOT 15 BLK 6 |
| Geographic ID: | S8140-08-06015-0 | Agent Code: | |
| Type: | Real | | |
| Tax Area: | 100 - APPRAISER-OH Schl Dist, in OH | Land Use Code | 11 |
| Open Space: | N | DFL | N |
| Historic Property: | N | Remodel Property: | N |
| Multi-Family Redevelopment: | N | | |
| Township: | | Section: | |
| Range: | |
Location |
| Address: | 692 NW HIYU DR OAK HARBOR, WA 98277 | Mapsco: | |
| Neighborhood: | Cycle 1 | Map ID: | 255 |
| Neighborhood CD: | 1 |
Owner |
| Name: | LINDSLEY, JOHNATHAN | Owner ID: | 295594 |
| Mailing Address: | GABRIELA LINDSLEY 692 NW HIYU DR OAK HARBOR, WA 98277 | % Ownership: | 100.0000000000% |
| | | Exemptions: | SNR/DSBL |
Taxes and Assessment Details
Values
| (+) Improvement Homesite Value: | + | $198,943 | |
| (+) Improvement Non-Homesite Value: | + | $0 | |
| (+) Land Homesite Value: | + | $190,000 | |
| (+) Land Non-Homesite Value: | + | $0 | |
| (+) Curr Use (HS): | + | $0 | $0 |
| (+) Curr Use (NHS): | + | $0 | $0 |
| | | -------------------------- | |
| (=) Market Value: | = | $388,943 | |
| (–) Productivity Loss: | – | $0 | |
| | | -------------------------- | |
| (=) Subtotal: | = | $388,943 | |
| (+) Senior Appraised Value: | + | $388,943 | |
| (+) Non-Senior Appraised Value: | + | $0 | |
| | | -------------------------- | |
| (=) Total Appraised Value: | = | $388,943 | |
| (–) Senior Exemption Loss: | – | $0 | |
| (–) Exemption Loss: | – | $0 | |
| | | -------------------------- | |
| (=) Taxable Value: | = | $388,943 | |
Taxing Jurisdiction
| Owner: | LINDSLEY, JOHNATHAN | | |
| % Ownership: | 100.0000000000% | | |
| Total Value: | $388,943 | | |
| Tax Area: | 100 - APPRAISER-OH Schl Dist, in OH |
| CF | Conservation Futures | 0.0316035091 | $388,943 | $388,943 | $12.29 | | |
| CEM1 | Cemetery #1 | 0.0040320932 | $388,943 | $388,943 | $1.57 | | |
| COH | City of Oak Harbor | 2.3001546061 | $388,943 | $388,943 | $894.63 | | |
| OAKBOND | City of Oak Harbor BOND | 0.1926904192 | $388,943 | $388,943 | $74.95 | | |
| HOBOND | Hospital BOND | 0.0000000000 | $388,943 | $0 | $0.00 | | |
| HOGEN | Hospital GEN | 0.3902502903 | $388,943 | $388,943 | $151.79 | | |
| CE | County Current Expense | 0.3708482477 | $388,943 | $388,943 | $144.24 | | |
| ISLANDEMS | Hospital GEN (EMS) | 0.5000000000 | $388,943 | $388,943 | $194.47 | | |
| LIB | Library Sno-Isle GEN | 0.3153421757 | $388,943 | $388,943 | $122.65 | | |
| NWHIDPRMT | P & R N Whidbey GEN | 0.2004466701 | $388,943 | $388,943 | $77.96 | | |
| SCH201MO | School 201 Enrichment | 0.0000000000 | $388,943 | $0 | $0.00 | | |
| ST | State School | 1.3035497053 | $388,943 | $388,943 | $507.01 | | |
| ST2 | State School Part 2 | 0.0000000000 | $388,943 | $0 | $0.00 | | |
| | Total Tax Rate: | 5.6089177167 | | | | | |
| | | | | Taxes w/Current Exemptions: | $2,181.56 | | |
| | | | | Taxes w/o Exemptions: | $3,295.48 | | |
Improvement / Building
| Improvement #1: | RESIDENTIAL | State Code: | Y | 1120.0 sqft | Value: | $198,943 |
| Bathrooms: | 1.5 | Bedrooms: | 3 | | Ceiling: | DRY WALL SPRAYED | Exterior Wall/Cover: | PLY/HARDBOARD T-111 | | Floor Covering: | CARPET/VINYL 80-20 | Floor Structure: | WOOD W/SUBFLOOR | | Foundation: | CONCRETE | Heating: | BASEBOARD ELECTRIC | | Interior Finish: | DRYWALL PAINT | Plumbing Fixture Cnt: | 8 | | Roof Slope: | 4" IN 12" | Roof Structure/Cover: | CJ ASPHALT |
|
| | Type | Description | Class CD | Sub Class CD | Year Built | Area |
| | BAS | BASE/MAIN FLOOR | 3 | 0 | 1979 | 1120.0 |
| | OP3 | OPEN PORCH W/ROOF | 3 | 0 | 1979 | 100.0 |
| | AGR | ATTACHED GARAGE | 3 | 0 | 1979 | 210.0 |
| | UTY | STORAGE/UTILITY | 3 | 0 | 1979 | 126.0 |
| | OWP | OPEN WOOD PORCH W/STEPS | 3 | 0 | 1979 | 144.0 |
Sketch
Property Image
Land
| 1 | 14 | SQ (08001-12000) | 0.0000 | 0.00 | 0.00 | 0.00 | 1.00 | $190,000 | $0 |
Roll Value History
| 2026 | N/A | N/A | N/A | N/A | N/A |
| 2025 | $198,943 | $190,000 | $0 | $388,943 | $388,943 |
| 2024 | $205,615 | $180,000 | $0 | $385,615 | $385,615 |
| 2023 | $203,115 | $190,000 | $0 | $393,115 | $393,115 |
| 2022 | $186,186 | $180,000 | $0 | $366,186 | $366,186 |
| 2021 | $163,869 | $130,000 | $0 | $293,869 | $293,869 |
| 2020 | $159,395 | $100,000 | $0 | $259,395 | $259,395 |
| 2019 | $112,133 | $150,000 | $0 | $262,133 | $262,133 |
| 2018 | $112,462 | $130,000 | $0 | $242,462 | $242,462 |
| 2017 | $83,950 | $110,000 | $0 | $193,950 | $193,950 |
| 2016 | $85,283 | $90,000 | $0 | $175,283 | $175,283 |
| 2015 | $86,617 | $70,000 | $0 | $156,617 | $156,617 |
| 2014 | $87,949 | $55,000 | $0 | $142,949 | $142,949 |
| 2013 | $89,281 | $55,000 | $0 | $144,281 | $144,281 |
| 2012 | $90,614 | $65,000 | $0 | $155,614 | $155,614 |
| 2011 | $91,855 | $65,000 | $0 | $156,855 | $156,855 |
| 2010 | $101,059 | $65,000 | $0 | $166,059 | $166,059 |
| 2009 | $105,389 | $87,150 | $0 | $192,539 | $192,539 |
| 2008 | $106,765 | $105,000 | $0 | $211,765 | $211,765 |
| 2007 | $108,152 | $105,000 | $0 | $213,152 | $213,152 |
Deed and Sales History
| 1 | 08/11/2020 | QCD | Quit Claim Deed | LINDSLEY, JOHNATHAN | LINDSLEY, JOHNATHAN | | | $0.00 | 44191 | 4493597 |
| 2 | 08/09/2017 | WD | Warranty Deed | ZEIN, HUSSEIN | LINDSLEY, JOHNATHAN | | | $259,000.00 | 30717 | 4428499 |
| 3 | 05/05/2017 | TRUSTEED | Trustee's Deed | JONES, JAMES CHRISTOPHER | ZEIN, HUSSEIN | | | $185,500.00 | 29197 | 4422116 |
| 4 | 05/10/2007 | WD | Warranty Deed | CARROLL, YVONNE M | JONES, JAMES CHRISTOPHER | | | $210,000.00 | 71622 | 4202224 |
| 5 | 08/22/2001 | WD | Warranty Deed | BOURLET, JERRY L | CARROLL, YVONNE M | | | $126,000.00 | 13245 | 20041253 |
| 6 | 07/01/1997 | WD | Warranty Deed | BAILY, JOHN W | BOURLET, JERRY L | | | $114,900.00 | 72593 | 97012278 |
| 7 | 09/01/1979 | WD | Warranty Deed | FORD, ROBERT | BAILY, JOHN W | | | $49,500.00 | 94710 | 359285 |
| 8 | 06/01/1979 | WD | Warranty Deed | HOBDAY, LEROY C | FORD, ROBERT | | | $29,850.00 | 928350 | 3537780 |
| 9 | 01/01/1900 | OTHER | Other - Misc. Documents | Unknown | HOBDAY, LEROY C | | | $0.00 | 0 | 0 |
Payout Agreement
| No payout information available.. |