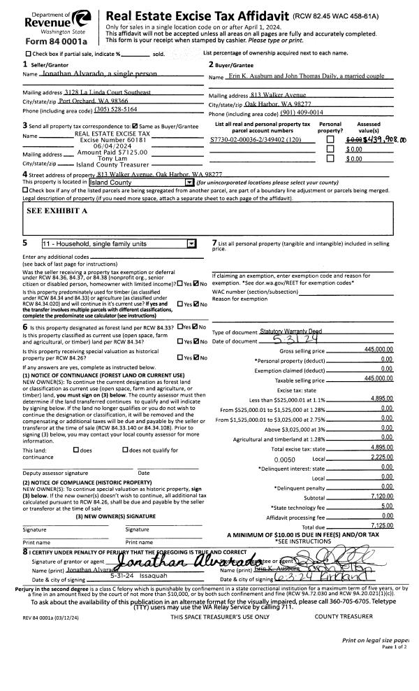
Property
Account |
| Property ID: | 387058 | Abbreviated Legal Description: | SHAD GLN 8 LOT 10 BLK 8 |
| Geographic ID: | S8140-08-08010-0 | Agent Code: | |
| Type: | Real | | |
| Tax Area: | 100 - APPRAISER-OH Schl Dist, in OH | Land Use Code | 11 |
| Open Space: | N | DFL | N |
| Historic Property: | N | Remodel Property: | N |
| Multi-Family Redevelopment: | N | | |
| Township: | | Section: | |
| Range: | |
Location |
| Address: | 880 NW HASLO PLACE OAK HARBOR, WA 98277 | Mapsco: | |
| Neighborhood: | Cycle 1 | Map ID: | 255 |
| Neighborhood CD: | 1 |
Owner |
| Name: | JOHNSON, RANDY W | Owner ID: | 80280 |
| Mailing Address: | 880 NW HASLO PLACE OAK HARBOR, WA 98277 | % Ownership: | 100.0000000000% |
| | | Exemptions: | |
Taxes and Assessment Details
Values
| (+) Improvement Homesite Value: | + | $0 | |
| (+) Improvement Non-Homesite Value: | + | $235,111 | |
| (+) Land Homesite Value: | + | $0 | |
| (+) Land Non-Homesite Value: | + | $190,000 | |
| (+) Curr Use (HS): | + | $0 | $0 |
| (+) Curr Use (NHS): | + | $0 | $0 |
| | | -------------------------- | |
| (=) Market Value: | = | $425,111 | |
| (–) Productivity Loss: | – | $0 | |
| | | -------------------------- | |
| (=) Subtotal: | = | $425,111 | |
| (+) Senior Appraised Value: | + | $0 | |
| (+) Non-Senior Appraised Value: | + | $425,111 | |
| | | -------------------------- | |
| (=) Total Appraised Value: | = | $425,111 | |
| (–) Senior Exemption Loss: | – | $0 | |
| (–) Exemption Loss: | – | $0 | |
| | | -------------------------- | |
| (=) Taxable Value: | = | $425,111 | |
Taxing Jurisdiction
| Owner: | JOHNSON, RANDY W | | |
| % Ownership: | 100.0000000000% | | |
| Total Value: | $425,111 | | |
| Tax Area: | 100 - APPRAISER-OH Schl Dist, in OH |
| CF | Conservation Futures | 0.0316035091 | $425,111 | $425,111 | $13.43 | | |
| CEM1 | Cemetery #1 | 0.0040320932 | $425,111 | $425,111 | $1.71 | | |
| COH | City of Oak Harbor | 2.3001546061 | $425,111 | $425,111 | $977.82 | | |
| OAKBOND | City of Oak Harbor BOND | 0.1926904192 | $425,111 | $425,111 | $81.91 | | |
| HOBOND | Hospital BOND | 0.1910887512 | $425,111 | $425,111 | $81.23 | | |
| HOGEN | Hospital GEN | 0.3902502903 | $425,111 | $425,111 | $165.90 | | |
| CE | County Current Expense | 0.3708482477 | $425,111 | $425,111 | $157.65 | | |
| ISLANDEMS | Hospital GEN (EMS) | 0.5000000000 | $425,111 | $425,111 | $212.56 | | |
| LIB | Library Sno-Isle GEN | 0.3153421757 | $425,111 | $425,111 | $134.06 | | |
| NWHIDPRMT | P & R N Whidbey GEN | 0.2004466701 | $425,111 | $425,111 | $85.21 | | |
| SCH201MO | School 201 Enrichment | 1.8559231640 | $425,111 | $425,111 | $788.97 | | |
| ST | State School | 1.3035497053 | $425,111 | $425,111 | $554.15 | | |
| ST2 | State School Part 2 | 0.8169543533 | $425,111 | $425,111 | $347.30 | | |
| | Total Tax Rate: | 8.4728839852 | | | | | |
| | | | | Taxes w/Current Exemptions: | $3,601.90 | | |
| | | | | Taxes w/o Exemptions: | $3,601.90 | | |
Improvement / Building
| Improvement #1: | RESIDENTIAL | State Code: | Y | 1650.0 sqft | Value: | $235,111 |
| Bathrooms: | 3 | Bedrooms: | 4 | | Ceiling: | DRY WALL SPRAYED | Exterior Wall/Cover: | VINYL | | Floor Covering: | CARPET/VINYL 80-20 | Floor Structure: | SLAB ON GRADE | | Foundation: | CONCRETE | Heating: | FHA GAS | | Interior Finish: | DRYWALL PAINT | Plumbing Fixture Cnt: | 12 | | Roof Slope: | 4" IN 12" | Roof Structure/Cover: | CJ ASPHALT |
|
| | Type | Description | Class CD | Sub Class CD | Year Built | Area |
| | BAS | BASE/MAIN FLOOR | 3 | 0 | 1980 | 1075.0 |
| | DWN | DOWNSTAIRS LIVING AREA | 3 | 0 | 1980 | 575.0 |
| | BIG | BUILT IN GARAGE | 3 | 0 | 1980 | 500.0 |
| | OWP | OPEN WOOD PORCH W/STEPS | 3 | 0 | 1980 | 100.0 |
| | OWP | OPEN WOOD PORCH W/STEPS | 3 | 0 | 1980 | 156.0 |
Sketch
Property Image
Land
| 1 | 14 | SQ (08001-12000) | 0.0000 | 0.00 | 0.00 | 0.00 | 1.00 | $190,000 | $0 |
Roll Value History
| 2026 | N/A | N/A | N/A | N/A | N/A |
| 2025 | $235,111 | $190,000 | $0 | $425,111 | $425,111 |
| 2024 | $238,235 | $180,000 | $0 | $418,235 | $418,235 |
| 2023 | $235,111 | $190,000 | $0 | $425,111 | $425,111 |
| 2022 | $215,719 | $180,000 | $0 | $395,719 | $395,719 |
| 2021 | $190,042 | $130,000 | $0 | $320,042 | $320,042 |
| 2020 | $184,948 | $100,000 | $0 | $284,948 | $284,948 |
| 2019 | $133,486 | $150,000 | $0 | $283,486 | $283,486 |
| 2018 | $133,908 | $130,000 | $0 | $263,908 | $263,908 |
| 2017 | $109,347 | $110,000 | $0 | $219,347 | $219,347 |
| 2016 | $111,004 | $90,000 | $0 | $201,004 | $201,004 |
| 2015 | $112,660 | $70,000 | $0 | $182,660 | $182,660 |
| 2014 | $114,319 | $55,000 | $0 | $169,319 | $169,319 |
| 2013 | $115,975 | $55,000 | $0 | $170,975 | $170,975 |
| 2012 | $117,631 | $65,000 | $0 | $182,631 | $182,631 |
| 2011 | $113,257 | $65,000 | $0 | $178,257 | $178,257 |
| 2010 | $119,017 | $65,000 | $0 | $184,017 | $184,017 |
| 2009 | $124,224 | $87,150 | $0 | $211,374 | $211,374 |
| 2008 | $125,828 | $105,000 | $0 | $230,828 | $230,828 |
| 2007 | $127,432 | $105,000 | $0 | $232,432 | $232,432 |
Deed and Sales History
| 1 | 11/23/2009 | ESTSEPPROP | Establish Separate Property | JOHNSON, LYNN C | JOHNSON, RANDY W | | | $0.00 | 92930 | 4264471 |
| 2 | 11/03/1999 | WD | Warranty Deed | FLORES, J J | JOHNSON, LYNN C | | | $126,000.00 | 94630 | 99025834 |
| 3 | 08/01/1990 | WD | Warranty Deed | HARVEY, ROYCE W | FLORES, J J | | | $84,900.00 | 4653 | 90015398 |
| 4 | 02/01/1985 | WD | Warranty Deed | MILLER, EDWIN B | HARVEY, ROYCE W | | | $69,500.00 | 50371 | 85001696 |
| 5 | 09/01/1980 | WD | Warranty Deed | KEYCO, INC | MILLER, EDWIN B | | | $61,000.00 | 3254 | 374364 |
| 6 | 09/01/1979 | WD | Warranty Deed | HOBDAY, LEROY C | KEYCO, INC | | | $29,000.00 | 94776 | 359569 |
| 7 | 01/01/1900 | OTHER | Other - Misc. Documents | Unknown | HOBDAY, LEROY C | | | $0.00 | 0 | 0 |
Payout Agreement
| No payout information available.. |