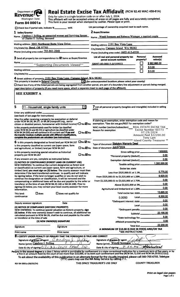
Property
Account |
| Property ID: | 387174 | Abbreviated Legal Description: | SHADY OAKS LOTS 3 TO 7 INCL ALSO LOTS 10 & 11 BLK 1 |
| Geographic ID: | S8145-00-01003-0 | Agent Code: | |
| Type: | Real | | |
| Tax Area: | 100 - APPRAISER-OH Schl Dist, in OH | Land Use Code | 41 |
| Open Space: | N | DFL | N |
| Historic Property: | N | Remodel Property: | N |
| Multi-Family Redevelopment: | N | | |
| Township: | | Section: | |
| Range: | |
Location |
| Address: | 1083 SE 4TH AVE OAK HARBOR, WA 98277 | Mapsco: | |
| Neighborhood: | 12cOH-se jerome | Map ID: | 89 |
| Neighborhood CD: | 12cOHjerom |
Owner |
| Name: | BORNFREE 1 LLC | Owner ID: | 276675 |
| Mailing Address: | 1083 SE 4TH AVE OAK HARBOR, WA 98277 | % Ownership: | 100.0000000000% |
| | | Exemptions: | |
Taxes and Assessment Details
Values
| (+) Improvement Homesite Value: | + | $0 | |
| (+) Improvement Non-Homesite Value: | + | $309,675 | |
| (+) Land Homesite Value: | + | $0 | |
| (+) Land Non-Homesite Value: | + | $1,102,896 | |
| (+) Curr Use (HS): | + | $0 | $0 |
| (+) Curr Use (NHS): | + | $0 | $0 |
| | | -------------------------- | |
| (=) Market Value: | = | $1,412,571 | |
| (–) Productivity Loss: | – | $0 | |
| | | -------------------------- | |
| (=) Subtotal: | = | $1,412,571 | |
| (+) Senior Appraised Value: | + | $0 | |
| (+) Non-Senior Appraised Value: | + | $1,412,571 | |
| | | -------------------------- | |
| (=) Total Appraised Value: | = | $1,412,571 | |
| (–) Senior Exemption Loss: | – | $0 | |
| (–) Exemption Loss: | – | $0 | |
| | | -------------------------- | |
| (=) Taxable Value: | = | $1,412,571 | |
Taxing Jurisdiction
| Owner: | BORNFREE 1 LLC | | |
| % Ownership: | 100.0000000000% | | |
| Total Value: | $1,412,571 | | |
| Tax Area: | 100 - APPRAISER-OH Schl Dist, in OH |
| CF | Conservation Futures | 0.0316035091 | $1,412,571 | $1,412,571 | $44.64 | | |
| CEM1 | Cemetery #1 | 0.0040320932 | $1,412,571 | $1,412,571 | $5.70 | | |
| COH | City of Oak Harbor | 2.3001546061 | $1,412,571 | $1,412,571 | $3,249.13 | | |
| OAKBOND | City of Oak Harbor BOND | 0.1926904192 | $1,412,571 | $1,412,571 | $272.19 | | |
| HOBOND | Hospital BOND | 0.1910887512 | $1,412,571 | $1,412,571 | $269.93 | | |
| HOGEN | Hospital GEN | 0.3902502903 | $1,412,571 | $1,412,571 | $551.26 | | |
| CE | County Current Expense | 0.3708482477 | $1,412,571 | $1,412,571 | $523.85 | | |
| ISLANDEMS | Hospital GEN (EMS) | 0.5000000000 | $1,412,571 | $1,412,571 | $706.29 | | |
| LIB | Library Sno-Isle GEN | 0.3153421757 | $1,412,571 | $1,412,571 | $445.44 | | |
| NWHIDPRMT | P & R N Whidbey GEN | 0.2004466701 | $1,412,571 | $1,412,571 | $283.15 | | |
| SCH201MO | School 201 Enrichment | 1.8559231640 | $1,412,571 | $1,412,571 | $2,621.62 | | |
| ST | State School | 1.3035497053 | $1,412,571 | $1,412,571 | $1,841.36 | | |
| ST2 | State School Part 2 | 0.8169543533 | $1,412,571 | $1,412,571 | $1,154.01 | | |
| | Total Tax Rate: | 8.4728839852 | | | | | |
| | | | | Taxes w/Current Exemptions: | $11,968.57 | | |
| | | | | Taxes w/o Exemptions: | $11,968.57 | | |
Improvement / Building
| Improvement #1: | COMMERCIAL | State Code: | Y | 12612.0 sqft | Value: | $309,675 |
| Bathrooms: | 1 | Ceiling: | PAINT OPEN FLOOR BAS | | Exterior Wall/Cover: | 8" CONC BLK/CON FRAM | Floor Covering: | CONCRETE SEALER | | Floor Structure: | CONCRETE ON GROUND | Foundation: | SLAB | | Heating: | WALL HEAT ELECTRIC | Interior Finish: | WAREHOUSE DISTRIBUTE | | Plumbing Fixture Cnt: | 2 | Roof Structure/Cover: | BEAM BUILT-UP ROCK |
|
| | Type | Description | Class CD | Sub Class CD | Year Built | Area |
| | BAS | BASE/MAIN FLOOR | 2 | 0 | 1958 | 11762.0 |
| | OP1 | OPEN PORCH SLAB | 2 | 0 | 1958 | 201.0 |
| | OP2 | OPEN PORCH W/STEPS | 2 | 0 | 1958 | 228.0 |
| | OP2 | OPEN PORCH W/STEPS | 2 | 0 | 1958 | 267.0 |
| | oOBD | Out Buildings | 2 | 0 | 1958 | 96.0 |
| | UPS | UPPER STORY | 2 | 0 | 1958 | 850.0 |
Sketch
Property Image
Land
| 1 | 72 | INDUSTRIAL STORAGE | 0.7500 | 78778.26 | 0.00 | 0.00 | 1.00 | $1,102,896 | $0 |
Roll Value History
| 2026 | N/A | N/A | N/A | N/A | N/A |
| 2025 | $309,675 | $1,102,896 | $0 | $1,412,571 | $1,412,571 |
| 2024 | $330,103 | $1,102,896 | $0 | $1,432,999 | $1,432,999 |
| 2023 | $218,273 | $1,102,896 | $0 | $1,321,169 | $1,321,169 |
| 2022 | $187,003 | $1,102,896 | $0 | $1,289,899 | $1,289,899 |
| 2021 | $182,931 | $1,102,896 | $0 | $1,285,827 | $1,285,827 |
| 2020 | $182,523 | $1,102,896 | $0 | $1,285,419 | $1,285,419 |
| 2019 | $184,251 | $866,561 | $0 | $1,050,812 | $1,050,812 |
| 2018 | $184,348 | $787,783 | $0 | $972,131 | $972,131 |
| 2017 | $174,247 | $465,025 | $0 | $639,272 | $639,272 |
| 2016 | $174,247 | $465,025 | $0 | $639,272 | $639,272 |
| 2015 | $174,247 | $185,133 | $0 | $359,380 | $359,380 |
| 2014 | $176,859 | $185,133 | $0 | $361,992 | $361,992 |
| 2013 | $160,879 | $185,133 | $0 | $346,012 | $346,012 |
| 2012 | $204,009 | $185,133 | $0 | $389,142 | $389,142 |
| 2011 | $204,009 | $185,133 | $0 | $389,142 | $389,142 |
| 2010 | $214,340 | $185,133 | $0 | $399,473 | $399,473 |
| 2009 | $226,248 | $222,947 | $0 | $449,195 | $449,195 |
| 2008 | $232,202 | $234,764 | $0 | $466,966 | $466,966 |
| 2007 | $244,110 | $234,764 | $0 | $478,874 | $478,874 |
Deed and Sales History
| 1 | 08/23/2016 | WD | Warranty Deed | JANSEN, DWAYNE | BORNFREE 1 LLC | | | $750,000.00 | 26001 | 4406686 |
| 2 | 05/23/2016 | DECREE | Divorce Decree/Legal Separation | JANSEN, DWAYNE | JANSEN, DWAYNE | | | $0.00 | 24436 | 4399907 |
| 3 | 11/01/1982 | WD | Warranty Deed | VANDERPOL, HENRY | JANSEN, DWAYNE & | | | $300,000.00 | 22729 | 402640 |
Payout Agreement
| No payout information available.. |