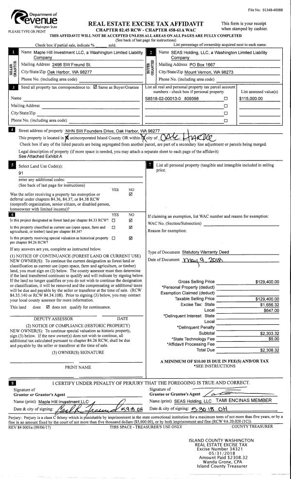
Property
Account |
| Property ID: | 387389 | Abbreviated Legal Description: | SHADY OAKS LOT 9 BLK 2 |
| Geographic ID: | S8145-00-02009-0 | Agent Code: | |
| Type: | Real | | |
| Tax Area: | 100 - APPRAISER-OH Schl Dist, in OH | Land Use Code | 11 |
| Open Space: | N | DFL | N |
| Historic Property: | N | Remodel Property: | N |
| Multi-Family Redevelopment: | N | | |
| Township: | | Section: | |
| Range: | |
Location |
| Address: | 527 SE JEROME ST OAK HARBOR, WA 98277 | Mapsco: | |
| Neighborhood: | Cycle 1 | Map ID: | 89 |
| Neighborhood CD: | 1 |
Owner |
| Name: | JEFFERSON, TREYVANTE A | Owner ID: | 284966 |
| Mailing Address: | 527 SE JEROME ST OAK HARBOR, WA 98277 | % Ownership: | 100.0000000000% |
| | | Exemptions: | |
Taxes and Assessment Details
Values
| (+) Improvement Homesite Value: | + | $0 | |
| (+) Improvement Non-Homesite Value: | + | $220,815 | |
| (+) Land Homesite Value: | + | $0 | |
| (+) Land Non-Homesite Value: | + | $180,000 | |
| (+) Curr Use (HS): | + | $0 | $0 |
| (+) Curr Use (NHS): | + | $0 | $0 |
| | | -------------------------- | |
| (=) Market Value: | = | $400,815 | |
| (–) Productivity Loss: | – | $0 | |
| | | -------------------------- | |
| (=) Subtotal: | = | $400,815 | |
| (+) Senior Appraised Value: | + | $0 | |
| (+) Non-Senior Appraised Value: | + | $400,815 | |
| | | -------------------------- | |
| (=) Total Appraised Value: | = | $400,815 | |
| (–) Senior Exemption Loss: | – | $0 | |
| (–) Exemption Loss: | – | $0 | |
| | | -------------------------- | |
| (=) Taxable Value: | = | $400,815 | |
Taxing Jurisdiction
| Owner: | JEFFERSON, TREYVANTE A | | |
| % Ownership: | 100.0000000000% | | |
| Total Value: | $400,815 | | |
| Tax Area: | 100 - APPRAISER-OH Schl Dist, in OH |
| CF | Conservation Futures | 0.0316035091 | $400,815 | $400,815 | $12.67 | | |
| CEM1 | Cemetery #1 | 0.0040320932 | $400,815 | $400,815 | $1.62 | | |
| COH | City of Oak Harbor | 2.3001546061 | $400,815 | $400,815 | $921.94 | | |
| OAKBOND | City of Oak Harbor BOND | 0.1926904192 | $400,815 | $400,815 | $77.23 | | |
| HOBOND | Hospital BOND | 0.1910887512 | $400,815 | $400,815 | $76.59 | | |
| HOGEN | Hospital GEN | 0.3902502903 | $400,815 | $400,815 | $156.42 | | |
| CE | County Current Expense | 0.3708482477 | $400,815 | $400,815 | $148.64 | | |
| ISLANDEMS | Hospital GEN (EMS) | 0.5000000000 | $400,815 | $400,815 | $200.41 | | |
| LIB | Library Sno-Isle GEN | 0.3153421757 | $400,815 | $400,815 | $126.39 | | |
| NWHIDPRMT | P & R N Whidbey GEN | 0.2004466701 | $400,815 | $400,815 | $80.34 | | |
| SCH201MO | School 201 Enrichment | 1.8559231640 | $400,815 | $400,815 | $743.88 | | |
| ST | State School | 1.3035497053 | $400,815 | $400,815 | $522.48 | | |
| ST2 | State School Part 2 | 0.8169543533 | $400,815 | $400,815 | $327.45 | | |
| | Total Tax Rate: | 8.4728839852 | | | | | |
| | | | | Taxes w/Current Exemptions: | $3,396.06 | | |
| | | | | Taxes w/o Exemptions: | $3,396.06 | | |
Improvement / Building
| Improvement #1: | RESIDENTIAL | State Code: | Y | 1574.0 sqft | Value: | $220,815 |
| Bathrooms: | 1 | Bedrooms: | 2 | | Ceiling: | DRYWALL PAINTED | Exterior Wall/Cover: | VINYL | | Floor Covering: | VINYL/HARDWOOD 60-40 | Floor Structure: | WOOD W/SUBFLOOR | | Foundation: | CONCRETE | Heating: | FHA GAS | | Interior Finish: | DRYWALL PAINT | Plumbing Fixture Cnt: | 6 | | Roof Slope: | 5" IN 12" | Roof Structure/Cover: | CJ ASPHALT |
|
| | Type | Description | Class CD | Sub Class CD | Year Built | Area |
| | BAS | BASE/MAIN FLOOR | 3 | 0 | 1951 | 1574.0 |
| | OCP | OPEN CARPORT | 3 | 0 | 1951 | 190.0 |
| | OWP | OPEN WOOD PORCH W/STEPS | 3 | 0 | 1951 | 481.0 |
| | OP2 | OPEN PORCH W/STEPS | 3 | 0 | 1951 | 40.0 |
Sketch
Property Image
Land
| 1 | 14 | SQ (08001-12000) | 0.0000 | 0.00 | 0.00 | 0.00 | 1.00 | $180,000 | $0 |
Roll Value History
| 2026 | N/A | N/A | N/A | N/A | N/A |
| 2025 | $220,815 | $180,000 | $0 | $400,815 | $400,815 |
| 2024 | $224,005 | $170,000 | $0 | $394,005 | $394,005 |
| 2023 | $209,833 | $170,000 | $0 | $379,833 | $379,833 |
| 2022 | $192,756 | $160,000 | $0 | $352,756 | $352,756 |
| 2021 | $169,995 | $125,000 | $0 | $294,995 | $294,995 |
| 2020 | $166,468 | $100,000 | $0 | $266,468 | $266,468 |
| 2019 | $122,692 | $140,000 | $0 | $262,692 | $262,692 |
| 2018 | $123,111 | $125,000 | $0 | $248,111 | $248,111 |
| 2017 | $101,004 | $110,000 | $0 | $211,004 | $211,004 |
| 2016 | $102,716 | $90,000 | $0 | $192,716 | $192,716 |
| 2015 | $104,428 | $70,000 | $0 | $174,428 | $174,428 |
| 2014 | $106,140 | $55,000 | $0 | $161,140 | $161,140 |
| 2013 | $107,852 | $55,000 | $0 | $162,852 | $162,852 |
| 2012 | $109,563 | $60,000 | $0 | $169,563 | $169,563 |
| 2011 | $111,276 | $68,938 | $0 | $180,214 | $180,214 |
| 2010 | $118,862 | $68,938 | $0 | $187,800 | $187,800 |
| 2009 | $124,270 | $97,000 | $0 | $221,270 | $221,270 |
| 2008 | $126,041 | $120,350 | $0 | $246,391 | $246,391 |
| 2007 | $127,810 | $120,350 | $0 | $248,160 | $248,160 |
Deed and Sales History
| 1 | 05/07/2018 | WD | Warranty Deed | WANLESS, MARK A | JEFFERSON, TREYVANTE A | | | $254,000.00 | 34037 | 4444099 |
| 2 | 10/01/1992 | WD | Warranty Deed | FARNSWORTH, ROBERT | WANLESS, MARK A | | | $72,000.00 | 24091 | 92019917 |
| 3 | 01/01/1990 | WD | Warranty Deed | BRITTELL, KENNETH D | FARNSWORTH, ROBERT | | | $57,000.00 | 381 | 90001158 |
| 4 | 01/01/1983 | WD | Warranty Deed | JOHNSTON, JAMES G | BRITTELL, KENNETH D | | | $46,500.00 | 30230 | 405316 |
| 5 | 01/01/1900 | OTHER | Other - Misc. Documents | Unknown | JOHNSTON, JAMES G | | | $0.00 | 0 | 0 |
Payout Agreement
| No payout information available.. |