Property
Account |
| Property ID: | 387566 | Abbreviated Legal Description: | SHADY OAKS LOT 5 BLK 4 |
| Geographic ID: | S8145-00-04005-0 | Agent Code: | |
| Type: | Real | | |
| Tax Area: | 100 - APPRAISER-OH Schl Dist, in OH | Land Use Code | 11 |
| Open Space: | N | DFL | N |
| Historic Property: | N | Remodel Property: | N |
| Multi-Family Redevelopment: | N | | |
| Township: | | Section: | |
| Range: | |
Location |
| Address: | 1049 SE 6TH AVE OAK HARBOR, WA 98277 | Mapsco: | |
| Neighborhood: | Cycle 1 | Map ID: | 89 |
| Neighborhood CD: | 1 |
Owner |
| Name: | WEBB, ROBERT A | Owner ID: | 293824 |
| Mailing Address: | MARGARITA GARRUCHO SERRANO 1049 SE 6TH AVE OAK HARBOR, WA 98277-3986 | % Ownership: | 100.0000000000% |
| | | Exemptions: | |
Taxes and Assessment Details
Values
| (+) Improvement Homesite Value: | + | $0 | |
| (+) Improvement Non-Homesite Value: | + | $225,498 | |
| (+) Land Homesite Value: | + | $0 | |
| (+) Land Non-Homesite Value: | + | $180,000 | |
| (+) Curr Use (HS): | + | $0 | $0 |
| (+) Curr Use (NHS): | + | $0 | $0 |
| | | -------------------------- | |
| (=) Market Value: | = | $405,498 | |
| (–) Productivity Loss: | – | $0 | |
| | | -------------------------- | |
| (=) Subtotal: | = | $405,498 | |
| (+) Senior Appraised Value: | + | $0 | |
| (+) Non-Senior Appraised Value: | + | $405,498 | |
| | | -------------------------- | |
| (=) Total Appraised Value: | = | $405,498 | |
| (–) Senior Exemption Loss: | – | $0 | |
| (–) Exemption Loss: | – | $0 | |
| | | -------------------------- | |
| (=) Taxable Value: | = | $405,498 | |
Taxing Jurisdiction
| Owner: | WEBB, ROBERT A | | |
| % Ownership: | 100.0000000000% | | |
| Total Value: | $405,498 | | |
| Tax Area: | 100 - APPRAISER-OH Schl Dist, in OH |
| CF | Conservation Futures | 0.0316035091 | $405,498 | $405,498 | $12.82 | | |
| CEM1 | Cemetery #1 | 0.0040320932 | $405,498 | $405,498 | $1.64 | | |
| COH | City of Oak Harbor | 2.3001546061 | $405,498 | $405,498 | $932.71 | | |
| OAKBOND | City of Oak Harbor BOND | 0.1926904192 | $405,498 | $405,498 | $78.14 | | |
| HOBOND | Hospital BOND | 0.1910887512 | $405,498 | $405,498 | $77.49 | | |
| HOGEN | Hospital GEN | 0.3902502903 | $405,498 | $405,498 | $158.25 | | |
| CE | County Current Expense | 0.3708482477 | $405,498 | $405,498 | $150.38 | | |
| ISLANDEMS | Hospital GEN (EMS) | 0.5000000000 | $405,498 | $405,498 | $202.75 | | |
| LIB | Library Sno-Isle GEN | 0.3153421757 | $405,498 | $405,498 | $127.87 | | |
| NWHIDPRMT | P & R N Whidbey GEN | 0.2004466701 | $405,498 | $405,498 | $81.28 | | |
| SCH201MO | School 201 Enrichment | 1.8559231640 | $405,498 | $405,498 | $752.57 | | |
| ST | State School | 1.3035497053 | $405,498 | $405,498 | $528.59 | | |
| ST2 | State School Part 2 | 0.8169543533 | $405,498 | $405,498 | $331.27 | | |
| | Total Tax Rate: | 8.4728839852 | | | | | |
| | | | | Taxes w/Current Exemptions: | $3,435.76 | | |
| | | | | Taxes w/o Exemptions: | $3,435.76 | | |
Improvement / Building
| Improvement #1: | RESIDENTIAL | State Code: | Y | 1062.0 sqft | Value: | $225,498 |
| Bathrooms: | 1 | Bedrooms: | 2 | | Ceiling: | DRYWALL PAINTED | Cooling: | FHA AND AC | | Exterior Wall/Cover: | COMMON BRICK VENEER | Floor Covering: | VINYL/HARDWOOD 20-80 | | Floor Structure: | WOOD W/SUBFLOOR | Foundation: | CONCRETE BLOCKS | | Interior Finish: | DRYWALL PAINT | Plumbing Fixture Cnt: | 6 | | Roof Slope: | 8" IN 12" | Roof Structure/Cover: | CJ ASPHALT |
|
| | Type | Description | Class CD | Sub Class CD | Year Built | Area |
| | BAS | BASE/MAIN FLOOR | 3 | 0 | 1955 | 1062.0 |
| | AGR | ATTACHED GARAGE | 3 | 0 | 1955 | 360.0 |
| | UTY | STORAGE/UTILITY | 3 | 0 | 1955 | 204.0 |
| | OP4 | OPEN PORCH W/CEILING-ROOF | 3 | 0 | 1955 | 36.0 |
Sketch
Property Image
Land
| 1 | 13 | SQ (06001-08000) | 0.0000 | 0.00 | 0.00 | 0.00 | 1.00 | $180,000 | $0 |
Roll Value History
| 2026 | N/A | N/A | N/A | N/A | N/A |
| 2025 | $225,498 | $180,000 | $0 | $405,498 | $405,498 |
| 2024 | $228,418 | $170,000 | $0 | $398,418 | $398,418 |
| 2023 | $213,897 | $170,000 | $0 | $383,897 | $383,897 |
| 2022 | $196,190 | $160,000 | $0 | $356,190 | $356,190 |
| 2021 | $170,793 | $120,000 | $0 | $290,793 | $290,793 |
| 2020 | $159,717 | $100,000 | $0 | $259,717 | $259,717 |
| 2019 | $117,390 | $140,000 | $0 | $257,390 | $257,390 |
| 2018 | $117,775 | $125,000 | $0 | $242,775 | $242,775 |
| 2017 | $86,637 | $110,000 | $0 | $196,637 | $196,637 |
| 2016 | $88,157 | $90,000 | $0 | $178,157 | $178,157 |
| 2015 | $89,676 | $70,000 | $0 | $159,676 | $159,676 |
| 2014 | $91,196 | $55,000 | $0 | $146,196 | $146,196 |
| 2013 | $92,716 | $55,000 | $0 | $147,716 | $147,716 |
| 2012 | $94,236 | $60,000 | $0 | $154,236 | $154,236 |
| 2011 | $91,302 | $68,938 | $0 | $160,240 | $160,240 |
| 2010 | $96,259 | $68,938 | $0 | $165,197 | $165,197 |
| 2009 | $100,670 | $97,000 | $0 | $197,670 | $197,670 |
| 2008 | $102,152 | $102,950 | $0 | $205,102 | $205,102 |
| 2007 | $103,634 | $102,950 | $0 | $206,584 | $206,584 |
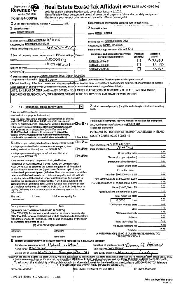
Deed and Sales History
| 1 | 03/23/2020 | WD | Warranty Deed | LERCH, LISA COREEN | WEBB, ROBERT A | | | $310,000.00 | 42473 | 4483618 |
| 2 | 12/23/2019 | WD | Warranty Deed | MERRYMAN, LINDA | LERCH, LISA COREEN | | | $210,000.00 | 41587 | 4478098 |
| 3 | 02/01/1994 | WD | Warranty Deed | VANDER, VOET, C | MERRYMAN, LINDA | | | $91,500.00 | 40505 | 94003237 |
| 4 | 12/01/1982 | OTHER | Other - Misc. Documents | VANDER, VOET, C | VANDER, VOET, C | | | $0.00 | 23163 | 404285 |
| 5 | 12/01/1982 | OTHER | Other - Misc. Documents | VANDER, VOET, C | VANDER, VOET, C | | | $0.00 | 23164 | 404286 |
| 6 | 12/01/1982 | OTHER | Other - Misc. Documents | BALSTER, BONNIE L | VANDER, VOET, C | | | $0.00 | 23165 | 404287 |
| 7 | 12/01/1982 | QCD | Quit Claim Deed | VANDER, VOET, C | BALSTER, BONNIE L | | | $0.00 | 23166 | 404288 |
| 8 | 01/01/1982 | REC | Real Estate Contract | VANDER, VOET, E | VANDER, VOET, C | | | $35,000.00 | 20077 | 392018 |
| 9 | 01/01/1900 | OTHER | Other - Misc. Documents | Unknown | VANDER, VOET, E | | | $0.00 | 0 | 0 |
Payout Agreement
| No payout information available.. |