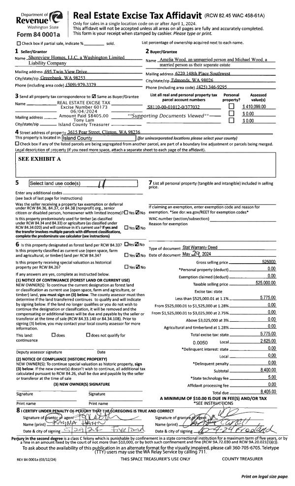
Property
Account |
| Property ID: | 387575 | Abbreviated Legal Description: | SHADY OAKS LOT 6 BLK 4 |
| Geographic ID: | S8145-00-04006-0 | Agent Code: | |
| Type: | Real | | |
| Tax Area: | 100 - APPRAISER-OH Schl Dist, in OH | Land Use Code | 11 |
| Open Space: | N | DFL | N |
| Historic Property: | N | Remodel Property: | N |
| Multi-Family Redevelopment: | N | | |
| Township: | | Section: | |
| Range: | |
Location |
| Address: | 1025 SE 6TH AVE OAK HARBOR, WA 98277 | Mapsco: | |
| Neighborhood: | Cycle 1 | Map ID: | 89 |
| Neighborhood CD: | 1 |
Owner |
| Name: | CHAMBERLAIN-PUNCH TRUSTEE, CONNIE J | Owner ID: | 272213 |
| Mailing Address: | 1025 SE 6TH AVE OAK HARBOR, WA 98277 | % Ownership: | 100.0000000000% |
| | | Exemptions: | |
Taxes and Assessment Details
Values
| (+) Improvement Homesite Value: | + | $0 | |
| (+) Improvement Non-Homesite Value: | + | $306,493 | |
| (+) Land Homesite Value: | + | $0 | |
| (+) Land Non-Homesite Value: | + | $180,000 | |
| (+) Curr Use (HS): | + | $0 | $0 |
| (+) Curr Use (NHS): | + | $0 | $0 |
| | | -------------------------- | |
| (=) Market Value: | = | $486,493 | |
| (–) Productivity Loss: | – | $0 | |
| | | -------------------------- | |
| (=) Subtotal: | = | $486,493 | |
| (+) Senior Appraised Value: | + | $0 | |
| (+) Non-Senior Appraised Value: | + | $486,493 | |
| | | -------------------------- | |
| (=) Total Appraised Value: | = | $486,493 | |
| (–) Senior Exemption Loss: | – | $0 | |
| (–) Exemption Loss: | – | $0 | |
| | | -------------------------- | |
| (=) Taxable Value: | = | $486,493 | |
Taxing Jurisdiction
| Owner: | CHAMBERLAIN-PUNCH TRUSTEE, CONNIE J | | |
| % Ownership: | 100.0000000000% | | |
| Total Value: | $486,493 | | |
| Tax Area: | 100 - APPRAISER-OH Schl Dist, in OH |
| CF | Conservation Futures | 0.0316035091 | $486,493 | $486,493 | $15.37 | | |
| CEM1 | Cemetery #1 | 0.0040320932 | $486,493 | $486,493 | $1.96 | | |
| COH | City of Oak Harbor | 2.3001546061 | $486,493 | $486,493 | $1,119.01 | | |
| OAKBOND | City of Oak Harbor BOND | 0.1926904192 | $486,493 | $486,493 | $93.74 | | |
| HOBOND | Hospital BOND | 0.1910887512 | $486,493 | $486,493 | $92.96 | | |
| HOGEN | Hospital GEN | 0.3902502903 | $486,493 | $486,493 | $189.85 | | |
| CE | County Current Expense | 0.3708482477 | $486,493 | $486,493 | $180.42 | | |
| ISLANDEMS | Hospital GEN (EMS) | 0.5000000000 | $486,493 | $486,493 | $243.25 | | |
| LIB | Library Sno-Isle GEN | 0.3153421757 | $486,493 | $486,493 | $153.41 | | |
| NWHIDPRMT | P & R N Whidbey GEN | 0.2004466701 | $486,493 | $486,493 | $97.52 | | |
| SCH201MO | School 201 Enrichment | 1.8559231640 | $486,493 | $486,493 | $902.89 | | |
| ST | State School | 1.3035497053 | $486,493 | $486,493 | $634.17 | | |
| ST2 | State School Part 2 | 0.8169543533 | $486,493 | $486,493 | $397.44 | | |
| | Total Tax Rate: | 8.4728839852 | | | | | |
| | | | | Taxes w/Current Exemptions: | $4,121.99 | | |
| | | | | Taxes w/o Exemptions: | $4,121.99 | | |
Improvement / Building
| Improvement #1: | RESIDENTIAL | State Code: | Y | 1661.0 sqft | Value: | $306,493 |
| Bathrooms: | 2 | Bedrooms: | 3 | | Ceiling: | DRYWALL PAINTED | Exterior Wall/Cover: | FACE BRICK VENEER | | Floor Covering: | HARDWOOD 100% | Floor Structure: | WOOD W/SUBFLOOR | | Foundation: | CONCRETE | Heating: | CEILING ELECTRIC | | Interior Finish: | DRYWALL PAINT | Plumbing Fixture Cnt: | 9 | | Roof Slope: | 6" IN 12" | Roof Structure/Cover: | CJ ASPHALT |
|
| | Type | Description | Class CD | Sub Class CD | Year Built | Area |
| | BAS | BASE/MAIN FLOOR | 3 | 0 | 1958 | 1661.0 |
| | AGR | ATTACHED GARAGE | 3 | 0 | 1958 | 360.0 |
| | OWP | OPEN WOOD PORCH W/STEPS | 3 | 0 | 1958 | 168.0 |
| | OP4 | OPEN PORCH W/CEILING-ROOF | 3 | 0 | 1958 | 36.0 |
Sketch
Property Image
Land
| 1 | 13 | SQ (06001-08000) | 0.0000 | 0.00 | 0.00 | 0.00 | 1.00 | $180,000 | $0 |
Roll Value History
| 2026 | N/A | N/A | N/A | N/A | N/A |
| 2025 | $306,493 | $180,000 | $0 | $486,493 | $486,493 |
| 2024 | $310,511 | $170,000 | $0 | $480,511 | $480,511 |
| 2023 | $288,380 | $170,000 | $0 | $458,380 | $458,380 |
| 2022 | $267,497 | $160,000 | $0 | $427,497 | $427,497 |
| 2021 | $235,659 | $120,000 | $0 | $355,659 | $355,659 |
| 2020 | $230,416 | $100,000 | $0 | $330,416 | $330,416 |
| 2019 | $171,319 | $140,000 | $0 | $311,319 | $311,319 |
| 2018 | $171,861 | $125,000 | $0 | $296,861 | $296,861 |
| 2017 | $123,437 | $110,000 | $0 | $233,437 | $233,437 |
| 2016 | $125,603 | $90,000 | $0 | $215,603 | $215,603 |
| 2015 | $127,768 | $70,000 | $0 | $197,768 | $197,768 |
| 2014 | $129,934 | $55,000 | $0 | $184,934 | $184,934 |
| 2013 | $132,099 | $55,000 | $0 | $187,099 | $187,099 |
| 2012 | $134,265 | $60,000 | $0 | $194,265 | $194,265 |
| 2011 | $129,984 | $68,938 | $0 | $198,922 | $198,922 |
| 2010 | $117,622 | $68,938 | $0 | $186,560 | $186,560 |
| 2009 | $108,640 | $97,000 | $0 | $205,640 | $205,640 |
| 2008 | $110,451 | $102,950 | $0 | $213,401 | $213,401 |
| 2007 | $110,480 | $102,950 | $0 | $213,430 | $213,430 |
Deed and Sales History
| 1 | 08/14/2015 | TRUSTEED | Trustee's Deed | PUNCH, CONNIE J | CHAMBERLAIN-PUNCH TRUSTEE, CONNIE J | | | $0.00 | 21448 | 4386450 |
| 2 | 01/06/2009 | DECREE | Divorce Decree/Legal Separation | PUNCH, BRIAN D | PUNCH, CONNIE J | | | $0.00 | 90079 | 4242705 |
| 3 | 03/01/1992 | WD | Warranty Deed | BEERS, JOHN R | PUNCH, BRIAN D | | | $93,500.00 | 21152 | 92005650 |
| 4 | 06/01/1986 | PRD | Personal Representatives Deed | KINGMA, MARGARET | BEERS, JOHN R | | | $56,000.00 | 61561 | 86007317 |
| 5 | 03/01/1981 | TRUSTEED | Trustee's Deed | KINGMA, JOHN | KINGMA, MARGARET | | | $0.00 | 10873 | 381030 |
| 6 | 01/01/1900 | OTHER | Other - Misc. Documents | Unknown | KINGMA, JOHN | | | $0.00 | 0 | 0 |
Payout Agreement
| No payout information available.. |