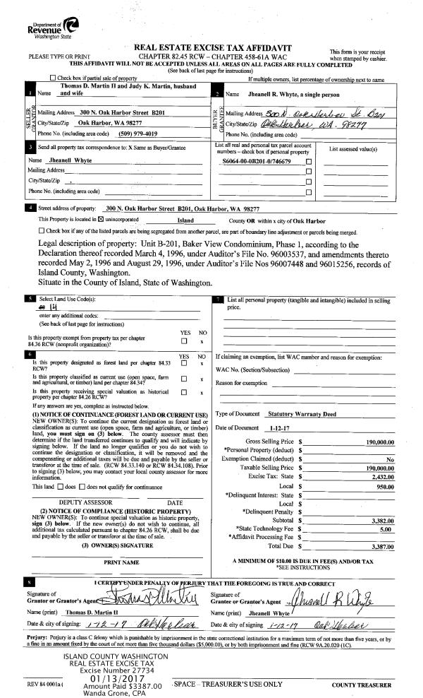
Property
Account |
| Property ID: | 387673 | Abbreviated Legal Description: | SHANG LA SH 1 LOT 4 BLK 1 |
| Geographic ID: | S8150-00-01004-0 | Agent Code: | |
| Type: | Real | | |
| Tax Area: | 310 - APPRAISER-Cpvl Schl Dist, outside Cpvl, improved & 1 acre or less | Land Use Code | 11 |
| Open Space: | N | DFL | N |
| Historic Property: | N | Remodel Property: | N |
| Multi-Family Redevelopment: | N | | |
| Township: | | Section: | |
| Range: | |
Location |
| Address: | 514 PULLMAN RD COUPEVILLE, WA 98239 | Mapsco: | |
| Neighborhood: | Cycle 2 | Map ID: | 466 |
| Neighborhood CD: | 2 |
Owner |
| Name: | OLDFIELD, BRIAN M | Owner ID: | 296259 |
| Mailing Address: | EMILY M OLDFIELD 4323 THACKERAY PL NE SEATTLE, WA 98105 | % Ownership: | 100.0000000000% |
| | | Exemptions: | |
Taxes and Assessment Details
Values
| (+) Improvement Homesite Value: | + | $0 | |
| (+) Improvement Non-Homesite Value: | + | $88,599 | |
| (+) Land Homesite Value: | + | $0 | |
| (+) Land Non-Homesite Value: | + | $135,000 | |
| (+) Curr Use (HS): | + | $0 | $0 |
| (+) Curr Use (NHS): | + | $0 | $0 |
| | | -------------------------- | |
| (=) Market Value: | = | $223,599 | |
| (–) Productivity Loss: | – | $0 | |
| | | -------------------------- | |
| (=) Subtotal: | = | $223,599 | |
| (+) Senior Appraised Value: | + | $0 | |
| (+) Non-Senior Appraised Value: | + | $223,599 | |
| | | -------------------------- | |
| (=) Total Appraised Value: | = | $223,599 | |
| (–) Senior Exemption Loss: | – | $0 | |
| (–) Exemption Loss: | – | $0 | |
| | | -------------------------- | |
| (=) Taxable Value: | = | $223,599 | |
Taxing Jurisdiction
| Owner: | OLDFIELD, BRIAN M | | |
| % Ownership: | 100.0000000000% | | |
| Total Value: | $223,599 | | |
| Tax Area: | 310 - APPRAISER-Cpvl Schl Dist, outside Cpvl, improved & 1 acre or less |
| CF | Conservation Futures | 0.0316035091 | $223,599 | $223,599 | $7.07 | | |
| CEM2 | Cemetery #2 | 0.0095056933 | $223,599 | $223,599 | $2.13 | | |
| FIRE5 | Fire & Rescue Dist #5 C Whidbey GEN | 1.2008080668 | $223,599 | $223,599 | $268.50 | | |
| FIRE5BOND | Fire & Rescue Dist #5 C Whidbey BOND | 0.1400090713 | $223,599 | $223,599 | $31.31 | | |
| HOBOND | Hospital BOND | 0.1910887512 | $223,599 | $223,599 | $42.73 | | |
| HOGEN | Hospital GEN | 0.3902502903 | $223,599 | $223,599 | $87.26 | | |
| CE | County Current Expense | 0.3708482477 | $223,599 | $223,599 | $82.92 | | |
| CR | County Roads | 0.4584763726 | $223,599 | $223,599 | $102.51 | | |
| ISLANDEMS | Hospital GEN (EMS) | 0.5000000000 | $223,599 | $223,599 | $111.80 | | |
| LIB | Library Sno-Isle GEN | 0.3153421757 | $223,599 | $223,599 | $70.51 | | |
| LIBCAP | Library Sno-Isle BOND (Cap Fac Imp Area) | 0.0543427938 | $223,599 | $223,599 | $12.15 | | |
| POCOUP | Port of Coupeville GEN | 0.1093371703 | $223,599 | $223,599 | $24.45 | | |
| POCOUPIDD | Port of Coupeville IDD | 0.3409740022 | $223,599 | $223,599 | $76.24 | | |
| COUPSDTECH | School 204 CP (TECH) | 0.7545480007 | $223,599 | $223,599 | $168.72 | | |
| SCH204MO | School 204 Enrichment | 0.6716186034 | $223,599 | $223,599 | $150.17 | | |
| ST | State School | 1.3035497053 | $223,599 | $223,599 | $291.47 | | |
| ST2 | State School Part 2 | 0.8169543533 | $223,599 | $223,599 | $182.67 | | |
| | Total Tax Rate: | 7.6592568070 | | | | | |
| | | | | Taxes w/Current Exemptions: | $1,712.61 | | |
| | | | | Taxes w/o Exemptions: | $1,712.61 | | |
Improvement / Building
| Improvement #1: | RESIDENTIAL | State Code: | Y | 856.0 sqft | Value: | $88,599 |
| Bathrooms: | 1 | Bedrooms: | 1 | | Ceiling: | BEAM T&G | Exterior Wall/Cover: | PLY/HARDBOARD T-111 | | Floor Covering: | VINYL TILE | Floor Structure: | WOOD W/SUBFLOOR | | Foundation: | WOOD BLOCKS | Heating: | (NONE) | | Interior Finish: | (NONE) | Plumbing Fixture Cnt: | 1 | | Roof Slope: | 6" IN 12" | Roof Structure/Cover: | BEAM ASPHALT |
|
| | Type | Description | Class CD | Sub Class CD | Year Built | Area |
| | BAS | BASE/MAIN FLOOR | 3 | 0 | 1962 | 676.0 |
| | OWP | OPEN WOOD PORCH W/STEPS | 3 | 0 | 1962 | 420.0 |
| | LOF | LOFT | 3 | 0 | 1962 | 180.0 |
Sketch
Property Image
Land
| 1 | 14 | SQ (08001-12000) | 0.2800 | 12196.80 | 0.00 | 0.00 | 1.00 | $135,000 | $0 |
Roll Value History
| 2026 | N/A | N/A | N/A | N/A | N/A |
| 2025 | $88,599 | $135,000 | $0 | $223,599 | $223,599 |
| 2024 | $68,655 | $190,000 | $0 | $258,655 | $258,655 |
| 2023 | $150,638 | $180,000 | $0 | $330,638 | $330,638 |
| 2022 | $138,170 | $170,000 | $0 | $308,170 | $308,170 |
| 2021 | $121,682 | $140,000 | $0 | $261,682 | $261,682 |
| 2020 | $99,331 | $120,000 | $0 | $219,331 | $219,331 |
| 2019 | $69,404 | $155,000 | $0 | $224,404 | $224,404 |
| 2018 | $64,460 | $135,000 | $0 | $199,460 | $199,460 |
| 2017 | $64,899 | $115,000 | $0 | $179,899 | $179,899 |
| 2016 | $58,747 | $115,000 | $0 | $173,747 | $173,747 |
| 2015 | $59,571 | $90,000 | $0 | $149,571 | $149,571 |
| 2014 | $60,399 | $85,000 | $0 | $145,399 | $145,399 |
| 2013 | $61,227 | $85,000 | $0 | $146,227 | $146,227 |
| 2012 | $55,435 | $90,000 | $0 | $145,435 | $145,435 |
| 2011 | $56,261 | $100,000 | $0 | $156,261 | $156,261 |
| 2010 | $58,492 | $100,000 | $0 | $158,492 | $158,492 |
| 2009 | $61,086 | $125,000 | $0 | $186,086 | $186,086 |
| 2008 | $61,901 | $125,000 | $0 | $186,901 | $186,901 |
| 2007 | $62,715 | $125,000 | $0 | $187,715 | $187,715 |
Deed and Sales History
| 1 | 09/22/2020 | WD | Warranty Deed | SMITH, CATO J | OLDFIELD, BRIAN M | | | $293,700.00 | 44925 | 4497655 |
| 2 | 01/19/2017 | QCD | Quit Claim Deed | WATERMAN, DEBRA J | SMITH, CATO J | | | $0.00 | 27815 | 4415600 |
| 3 | 08/03/2016 | WD | Warranty Deed | SEBASTIAN, TONI M | WATERMAN, DEBRA J | | | $195,000.00 | 25561 | 4404600 |
| 4 | 08/26/2002 | WD | Warranty Deed | BUIRS, BRIAN R | SEBASTIAN, TONI M | | | $118,000.00 | 23520 | 4030385 |
| 5 | 05/01/1995 | QCD | Quit Claim Deed | PRATT, VINCENT J | BUIRS, BRIAN R | | | $0.00 | 51483 | 95006903 |
| 6 | 11/01/1988 | QCD | Quit Claim Deed | PRATT, VINCENT J | PRATT, VINCENT J | | | $0.00 | 84029 | 88015116 |
| 7 | 09/01/1981 | CD | DNU - Correction Deed | PRATT, MORLEENE B | PRATT, VINCENT J | | | $1.00 | 12737 | 387443 |
Payout Agreement
| No payout information available.. |