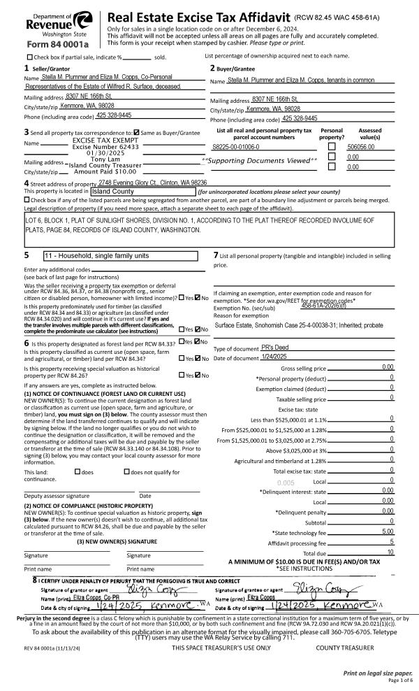
Property
Account |
| Property ID: | 387771 | Abbreviated Legal Description: | SHANG LA SH 1 LOT 14 BLK 1 |
| Geographic ID: | S8150-00-01014-0 | Agent Code: | |
| Type: | Real | | |
| Tax Area: | 310 - APPRAISER-Cpvl Schl Dist, outside Cpvl, improved & 1 acre or less | Land Use Code | 11 |
| Open Space: | N | DFL | N |
| Historic Property: | N | Remodel Property: | N |
| Multi-Family Redevelopment: | N | | |
| Township: | | Section: | |
| Range: | |
Location |
| Address: | 769 ROBERTS BLUFF RD COUPEVILLE, WA 98239 | Mapsco: | |
| Neighborhood: | Cycle 2 | Map ID: | 466 |
| Neighborhood CD: | 2 |
Owner |
| Name: | KENDALL, LYLE | Owner ID: | 256945 |
| Mailing Address: | MARY FRANCES KENDALL 769 ROBERTS BLUFF RD COUPEVILLE, WA 98239 | % Ownership: | 100.0000000000% |
| | | Exemptions: | |
Taxes and Assessment Details
Values
| (+) Improvement Homesite Value: | + | $0 | |
| (+) Improvement Non-Homesite Value: | + | $665,591 | |
| (+) Land Homesite Value: | + | $0 | |
| (+) Land Non-Homesite Value: | + | $550,000 | |
| (+) Curr Use (HS): | + | $0 | $0 |
| (+) Curr Use (NHS): | + | $0 | $0 |
| | | -------------------------- | |
| (=) Market Value: | = | $1,215,591 | |
| (–) Productivity Loss: | – | $0 | |
| | | -------------------------- | |
| (=) Subtotal: | = | $1,215,591 | |
| (+) Senior Appraised Value: | + | $0 | |
| (+) Non-Senior Appraised Value: | + | $1,215,591 | |
| | | -------------------------- | |
| (=) Total Appraised Value: | = | $1,215,591 | |
| (–) Senior Exemption Loss: | – | $0 | |
| (–) Exemption Loss: | – | $0 | |
| | | -------------------------- | |
| (=) Taxable Value: | = | $1,215,591 | |
Taxing Jurisdiction
| Owner: | KENDALL, LYLE | | |
| % Ownership: | 100.0000000000% | | |
| Total Value: | $1,215,591 | | |
| Tax Area: | 310 - APPRAISER-Cpvl Schl Dist, outside Cpvl, improved & 1 acre or less |
| CF | Conservation Futures | 0.0316035091 | $1,215,591 | $1,215,591 | $38.42 | | |
| CEM2 | Cemetery #2 | 0.0095056933 | $1,215,591 | $1,215,591 | $11.56 | | |
| FIRE5 | Fire & Rescue Dist #5 C Whidbey GEN | 1.2008080668 | $1,215,591 | $1,215,591 | $1,459.69 | | |
| FIRE5BOND | Fire & Rescue Dist #5 C Whidbey BOND | 0.1400090713 | $1,215,591 | $1,215,591 | $170.19 | | |
| HOBOND | Hospital BOND | 0.1910887512 | $1,215,591 | $1,215,591 | $232.29 | | |
| HOGEN | Hospital GEN | 0.3902502903 | $1,215,591 | $1,215,591 | $474.38 | | |
| CE | County Current Expense | 0.3708482477 | $1,215,591 | $1,215,591 | $450.80 | | |
| CR | County Roads | 0.4584763726 | $1,215,591 | $1,215,591 | $557.32 | | |
| ISLANDEMS | Hospital GEN (EMS) | 0.5000000000 | $1,215,591 | $1,215,591 | $607.80 | | |
| LIB | Library Sno-Isle GEN | 0.3153421757 | $1,215,591 | $1,215,591 | $383.33 | | |
| LIBCAP | Library Sno-Isle BOND (Cap Fac Imp Area) | 0.0543427938 | $1,215,591 | $1,215,591 | $66.06 | | |
| POCOUP | Port of Coupeville GEN | 0.1093371703 | $1,215,591 | $1,215,591 | $132.91 | | |
| POCOUPIDD | Port of Coupeville IDD | 0.3409740022 | $1,215,591 | $1,215,591 | $414.48 | | |
| COUPSDTECH | School 204 CP (TECH) | 0.7545480007 | $1,215,591 | $1,215,591 | $917.22 | | |
| SCH204MO | School 204 Enrichment | 0.6716186034 | $1,215,591 | $1,215,591 | $816.41 | | |
| ST | State School | 1.3035497053 | $1,215,591 | $1,215,591 | $1,584.58 | | |
| ST2 | State School Part 2 | 0.8169543533 | $1,215,591 | $1,215,591 | $993.08 | | |
| | Total Tax Rate: | 7.6592568070 | | | | | |
| | | | | Taxes w/Current Exemptions: | $9,310.52 | | |
| | | | | Taxes w/o Exemptions: | $9,310.52 | | |
Improvement / Building
| Improvement #1: | RESIDENTIAL | State Code: | Y | 2798.0 sqft | Value: | $665,591 |
| Bathrooms: | 2.5 | Bedrooms: | 3 | | Ceiling: | DRYWALL PAINTED | Cooling: | HEAT PUMP/CONV/V | | Exterior Wall/Cover: | CEMENT FIBER | Floor Covering: | HARDWOOD/CARP 60-40 | | Floor Structure: | WOOD W/SUBFLOOR | Foundation: | CONCRETE | | Interior Finish: | DRYWALL PAINT | Plumbing Fixture Cnt: | 15 | | Roof Slope: | 4" IN 12" | Roof Structure/Cover: | CJ ALUMINIUM HEAVY |
|
| | Type | Description | Class CD | Sub Class CD | Year Built | Area |
| | BAS | BASE/MAIN FLOOR | 4 | 0 | 2013 | 1098.0 |
| | BIG | BUILT IN GARAGE | 4 | 0 | 2013 | 650.5 |
| | UPS | UPPER STORY | 4 | 0 | 2013 | 1700.0 |
| | OWP | OPEN WOOD PORCH W/STEPS | 4 | 0 | 2013 | 857.0 |
| | OWP | OPEN WOOD PORCH W/STEPS | 4 | 0 | 2013 | 60.0 |
| | OP4 | OPEN PORCH W/CEILING-ROOF | 4 | 0 | 2013 | 60.0 |
Sketch
| No sketches available for this property. |
Property Image
Land
| 1 | HB | HIGH BLUFF | 0.2676 | 11656.66 | 62.00 | 0.00 | 1.00 | $550,000 | $0 |
Roll Value History
| 2026 | N/A | N/A | N/A | N/A | N/A |
| 2025 | $665,591 | $550,000 | $0 | $1,215,591 | $1,215,591 |
| 2024 | $650,838 | $525,000 | $0 | $1,175,838 | $1,175,838 |
| 2023 | $656,307 | $500,000 | $0 | $1,156,307 | $1,156,307 |
| 2022 | $599,567 | $375,000 | $0 | $974,567 | $974,567 |
| 2021 | $525,388 | $350,000 | $0 | $875,388 | $875,388 |
| 2020 | $510,475 | $275,000 | $0 | $785,475 | $785,475 |
| 2019 | $397,572 | $325,000 | $0 | $722,572 | $722,572 |
| 2018 | $399,036 | $300,000 | $0 | $699,036 | $699,036 |
| 2017 | $380,480 | $250,000 | $0 | $630,480 | $630,480 |
| 2016 | $384,485 | $250,000 | $0 | $634,485 | $634,485 |
| 2015 | $388,490 | $250,000 | $0 | $638,490 | $638,490 |
| 2014 | $392,495 | $250,000 | $0 | $642,495 | $642,495 |
| 2013 | $48,278 | $200,010 | $0 | $248,288 | $248,288 |
| 2012 | $48,912 | $200,010 | $0 | $248,922 | $248,922 |
| 2011 | $49,548 | $200,010 | $0 | $249,558 | $249,558 |
| 2010 | $45,562 | $200,010 | $0 | $245,572 | $245,572 |
| 2009 | $45,929 | $263,346 | $0 | $309,275 | $309,275 |
| 2008 | $46,505 | $263,346 | $0 | $309,851 | $309,851 |
| 2007 | $47,082 | $216,927 | $0 | $264,009 | $264,009 |
Deed and Sales History
| 1 | 08/15/2011 | WD | Warranty Deed | TOGNAZZINI, MARY L | KENDALL, LYLE | | | $260,000.00 | 5295 | 4299784 |
| 2 | 10/30/2000 | ESTSEPPROP | Establish Separate Property | TOGNAZZINI, MARY L | TOGNAZZINI, MARY L | | | $0.00 | 4214 | 20019287 |
| 3 | 10/30/2000 | WD | Warranty Deed | PETRICH, JOHN & | TOGNAZZINI, MARY L | | | $119,000.00 | 4213 | 20019286 |
| 4 | 12/01/1994 | QCD | Quit Claim Deed | PETRICH, JOHN & | PETRICH, JOHN & | | | $0.00 | 45179 | 94026243 |
| 5 | 09/01/1994 | WD | Warranty Deed | SEATTLE, PACIFIC U | PETRICH, JOHN & | | | $150,000.00 | 44052 | 94020877 |
| 6 | 06/01/1994 | WD | Warranty Deed | NAZARENUS, ELEANOR | SEATTLE, PACIFIC U | | | $0.00 | 42615 | 94014471 |
| 7 | 01/01/1900 | OTHER | Other - Misc. Documents | Unknown | NAZARENUS, ELEANOR | | | $0.00 | 0 | 0 |
Payout Agreement
| No payout information available.. |