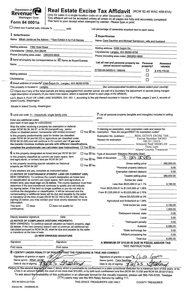
Property
Account |
| Property ID: | 387780 | Abbreviated Legal Description: | SHANG LA SH 1 LOT 15 BLK 1 |
| Geographic ID: | S8150-00-01015-0 | Agent Code: | |
| Type: | Real | | |
| Tax Area: | 310 - APPRAISER-Cpvl Schl Dist, outside Cpvl, improved & 1 acre or less | Land Use Code | 11 |
| Open Space: | N | DFL | N |
| Historic Property: | N | Remodel Property: | N |
| Multi-Family Redevelopment: | N | | |
| Township: | | Section: | |
| Range: | |
Location |
| Address: | 763 ROBERTS BLUFF RD COUPEVILLE, WA 98239 | Mapsco: | |
| Neighborhood: | Cycle 2 | Map ID: | 466 |
| Neighborhood CD: | 2 |
Owner |
| Name: | DENNIS, DAVID | Owner ID: | 259591 |
| Mailing Address: | VALERIE MILLER-DENNIS 16636 SE 161ST ST RENTON, WA 98058 | % Ownership: | 100.0000000000% |
| | | Exemptions: | |
Taxes and Assessment Details
Values
| (+) Improvement Homesite Value: | + | $0 | |
| (+) Improvement Non-Homesite Value: | + | $394,385 | |
| (+) Land Homesite Value: | + | $0 | |
| (+) Land Non-Homesite Value: | + | $340,000 | |
| (+) Curr Use (HS): | + | $0 | $0 |
| (+) Curr Use (NHS): | + | $0 | $0 |
| | | -------------------------- | |
| (=) Market Value: | = | $734,385 | |
| (–) Productivity Loss: | – | $0 | |
| | | -------------------------- | |
| (=) Subtotal: | = | $734,385 | |
| (+) Senior Appraised Value: | + | $0 | |
| (+) Non-Senior Appraised Value: | + | $734,385 | |
| | | -------------------------- | |
| (=) Total Appraised Value: | = | $734,385 | |
| (–) Senior Exemption Loss: | – | $0 | |
| (–) Exemption Loss: | – | $0 | |
| | | -------------------------- | |
| (=) Taxable Value: | = | $734,385 | |
Taxing Jurisdiction
| Owner: | DENNIS, DAVID | | |
| % Ownership: | 100.0000000000% | | |
| Total Value: | $734,385 | | |
| Tax Area: | 310 - APPRAISER-Cpvl Schl Dist, outside Cpvl, improved & 1 acre or less |
| CF | Conservation Futures | 0.0316035091 | $734,385 | $734,385 | $23.21 | | |
| CEM2 | Cemetery #2 | 0.0095056933 | $734,385 | $734,385 | $6.98 | | |
| FIRE5 | Fire & Rescue Dist #5 C Whidbey GEN | 1.2008080668 | $734,385 | $734,385 | $881.86 | | |
| FIRE5BOND | Fire & Rescue Dist #5 C Whidbey BOND | 0.1400090713 | $734,385 | $734,385 | $102.82 | | |
| HOBOND | Hospital BOND | 0.1910887512 | $734,385 | $734,385 | $140.33 | | |
| HOGEN | Hospital GEN | 0.3902502903 | $734,385 | $734,385 | $286.59 | | |
| CE | County Current Expense | 0.3708482477 | $734,385 | $734,385 | $272.35 | | |
| CR | County Roads | 0.4584763726 | $734,385 | $734,385 | $336.70 | | |
| ISLANDEMS | Hospital GEN (EMS) | 0.5000000000 | $734,385 | $734,385 | $367.19 | | |
| LIB | Library Sno-Isle GEN | 0.3153421757 | $734,385 | $734,385 | $231.58 | | |
| LIBCAP | Library Sno-Isle BOND (Cap Fac Imp Area) | 0.0543427938 | $734,385 | $734,385 | $39.91 | | |
| POCOUP | Port of Coupeville GEN | 0.1093371703 | $734,385 | $734,385 | $80.30 | | |
| POCOUPIDD | Port of Coupeville IDD | 0.3409740022 | $734,385 | $734,385 | $250.41 | | |
| COUPSDTECH | School 204 CP (TECH) | 0.7545480007 | $734,385 | $734,385 | $554.13 | | |
| SCH204MO | School 204 Enrichment | 0.6716186034 | $734,385 | $734,385 | $493.23 | | |
| ST | State School | 1.3035497053 | $734,385 | $734,385 | $957.31 | | |
| ST2 | State School Part 2 | 0.8169543533 | $734,385 | $734,385 | $599.96 | | |
| | Total Tax Rate: | 7.6592568070 | | | | | |
| | | | | Taxes w/Current Exemptions: | $5,624.86 | | |
| | | | | Taxes w/o Exemptions: | $5,624.86 | | |
Improvement / Building
| Improvement #1: | RESIDENTIAL | State Code: | Y | 2421.6 sqft | Value: | $394,385 |
| Bathrooms: | 2 | Bedrooms: | 2 | | Ceiling: | DRYWALL PAINTED | Exterior Wall/Cover: | CEMENT FIBER | | Floor Covering: | CERAMIC TILE/HWD 40/60 | Floor Structure: | WOOD W/SUBFLOOR | | Foundation: | CONCRETE | Heating: | FHA ELECTRIC | | Interior Finish: | DRYWALL PAINT | Plumbing Fixture Cnt: | 10 | | Roof Slope: | 8" IN 12" | Roof Structure/Cover: | BEAM ASPHALT |
|
| | Type | Description | Class CD | Sub Class CD | Year Built | Area |
| | BAS | BASE/MAIN FLOOR | 3 | 0 | 1935 | 1713.6 |
| | ATU | ATTIC UNFINISHED | 3 | 0 | 1935 | 184.0 |
| | DWN | DOWNSTAIRS LIVING AREA | 3 | 0 | 1935 | 448.0 |
| | DGR | DETACHED GARAGE | 3 | 0 | 1935 | 471.0 |
| | OWP | OPEN WOOD PORCH W/STEPS | 3 | 0 | 1935 | 481.4 |
| | OWC | OPEN WOOD PORCH W/STEPS/ROOF/C | 3 | 0 | 1935 | 48.0 |
| | LOF | LOFT | 3 | 0 | 1935 | 260.0 |
Sketch
Property Image
Land
| 1 | 15 | SQ (12001-21780) | 0.1879 | 8184.92 | 0.00 | 0.00 | 1.00 | $340,000 | $0 |
Roll Value History
| 2026 | N/A | N/A | N/A | N/A | N/A |
| 2025 | $394,385 | $340,000 | $0 | $734,385 | $734,385 |
| 2024 | $369,834 | $310,000 | $0 | $679,834 | $679,834 |
| 2023 | $374,560 | $300,000 | $0 | $674,560 | $674,560 |
| 2022 | $343,454 | $280,000 | $0 | $623,454 | $623,454 |
| 2021 | $302,382 | $200,000 | $0 | $502,382 | $502,382 |
| 2020 | $295,491 | $200,000 | $0 | $495,491 | $495,491 |
| 2019 | $230,795 | $250,000 | $0 | $480,795 | $480,795 |
| 2018 | $210,519 | $230,000 | $0 | $440,519 | $440,519 |
| 2017 | $211,786 | $175,000 | $0 | $386,786 | $386,786 |
| 2016 | $214,367 | $135,000 | $0 | $349,367 | $349,367 |
| 2015 | $216,728 | $135,000 | $0 | $351,728 | $351,728 |
| 2014 | $219,309 | $135,000 | $0 | $354,309 | $354,309 |
| 2013 | $133,647 | $135,000 | $0 | $268,647 | $268,647 |
| 2012 | $135,292 | $121,500 | $0 | $256,792 | $256,792 |
| 2011 | $137,651 | $135,000 | $0 | $272,651 | $272,651 |
| 2010 | $155,179 | $135,000 | $0 | $290,179 | $290,179 |
| 2009 | $162,186 | $150,000 | $0 | $312,186 | $312,186 |
| 2008 | $164,591 | $150,000 | $0 | $314,591 | $314,591 |
| 2007 | $167,000 | $150,000 | $0 | $317,000 | $317,000 |
Deed and Sales History
| 1 | 10/01/2012 | WD | Warranty Deed | MITCHELL, NIGEL FRANK | DENNIS, DAVID | | | $250,000.00 | 9040 | 4324312 |
| 2 | 07/19/2004 | PRD | Personal Representatives Deed | MITCHELL, DOREEN | MITCHELL, CAROL ANN | | | $0.00 | 43246 | 4107238 |
| 3 | 03/01/1978 | PACD | Purchaser's Assignment | Unknown | MITCHELL, DOREEN | | | $0.00 | 59241 | 0 |
Payout Agreement
| No payout information available.. |