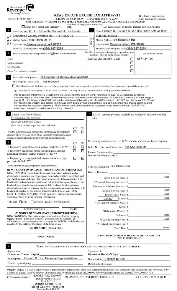
Property
Account |
| Property ID: | 387860 | Abbreviated Legal Description: | SHANG LA SH 1 BLK 2 LOTS 6 & 7 |
| Geographic ID: | S8150-00-02007-0 | Agent Code: | |
| Type: | Real | | |
| Tax Area: | 310 - APPRAISER-Cpvl Schl Dist, outside Cpvl, improved & 1 acre or less | Land Use Code | 11 |
| Open Space: | N | DFL | N |
| Historic Property: | N | Remodel Property: | N |
| Multi-Family Redevelopment: | N | | |
| Township: | | Section: | |
| Range: | |
Location |
| Address: | 503 PULLMAN RD COUPEVILLE, WA 98239 | Mapsco: | |
| Neighborhood: | Cycle 2 | Map ID: | 466 |
| Neighborhood CD: | 2 |
Owner |
| Name: | SHERWOOD JR, GLEN R | Owner ID: | 286514 |
| Mailing Address: | DENA M PALMQUIST 503 PULLMAN RD COUPEVILLE, WA 98239 | % Ownership: | 100.0000000000% |
| | | Exemptions: | |
Taxes and Assessment Details
Values
| (+) Improvement Homesite Value: | + | $0 | |
| (+) Improvement Non-Homesite Value: | + | $243,799 | |
| (+) Land Homesite Value: | + | $0 | |
| (+) Land Non-Homesite Value: | + | $250,000 | |
| (+) Curr Use (HS): | + | $0 | $0 |
| (+) Curr Use (NHS): | + | $0 | $0 |
| | | -------------------------- | |
| (=) Market Value: | = | $493,799 | |
| (–) Productivity Loss: | – | $0 | |
| | | -------------------------- | |
| (=) Subtotal: | = | $493,799 | |
| (+) Senior Appraised Value: | + | $0 | |
| (+) Non-Senior Appraised Value: | + | $493,799 | |
| | | -------------------------- | |
| (=) Total Appraised Value: | = | $493,799 | |
| (–) Senior Exemption Loss: | – | $0 | |
| (–) Exemption Loss: | – | $0 | |
| | | -------------------------- | |
| (=) Taxable Value: | = | $493,799 | |
Taxing Jurisdiction
| Owner: | SHERWOOD JR, GLEN R | | |
| % Ownership: | 100.0000000000% | | |
| Total Value: | $493,799 | | |
| Tax Area: | 310 - APPRAISER-Cpvl Schl Dist, outside Cpvl, improved & 1 acre or less |
| CF | Conservation Futures | 0.0316035091 | $493,799 | $493,799 | $15.61 | | |
| CEM2 | Cemetery #2 | 0.0095056933 | $493,799 | $493,799 | $4.69 | | |
| FIRE5 | Fire & Rescue Dist #5 C Whidbey GEN | 1.2008080668 | $493,799 | $493,799 | $592.96 | | |
| FIRE5BOND | Fire & Rescue Dist #5 C Whidbey BOND | 0.1400090713 | $493,799 | $493,799 | $69.14 | | |
| HOBOND | Hospital BOND | 0.1910887512 | $493,799 | $493,799 | $94.36 | | |
| HOGEN | Hospital GEN | 0.3902502903 | $493,799 | $493,799 | $192.71 | | |
| CE | County Current Expense | 0.3708482477 | $493,799 | $493,799 | $183.12 | | |
| CR | County Roads | 0.4584763726 | $493,799 | $493,799 | $226.40 | | |
| ISLANDEMS | Hospital GEN (EMS) | 0.5000000000 | $493,799 | $493,799 | $246.90 | | |
| LIB | Library Sno-Isle GEN | 0.3153421757 | $493,799 | $493,799 | $155.72 | | |
| LIBCAP | Library Sno-Isle BOND (Cap Fac Imp Area) | 0.0543427938 | $493,799 | $493,799 | $26.83 | | |
| POCOUP | Port of Coupeville GEN | 0.1093371703 | $493,799 | $493,799 | $53.99 | | |
| POCOUPIDD | Port of Coupeville IDD | 0.3409740022 | $493,799 | $493,799 | $168.37 | | |
| COUPSDTECH | School 204 CP (TECH) | 0.7545480007 | $493,799 | $493,799 | $372.60 | | |
| SCH204MO | School 204 Enrichment | 0.6716186034 | $493,799 | $493,799 | $331.64 | | |
| ST | State School | 1.3035497053 | $493,799 | $493,799 | $643.69 | | |
| ST2 | State School Part 2 | 0.8169543533 | $493,799 | $493,799 | $403.41 | | |
| | Total Tax Rate: | 7.6592568070 | | | | | |
| | | | | Taxes w/Current Exemptions: | $3,782.14 | | |
| | | | | Taxes w/o Exemptions: | $3,782.14 | | |
Improvement / Building
| Improvement #1: | RESIDENTIAL | State Code: | Y | 1656.0 sqft | Value: | $243,799 |
| Bathrooms: | 2 | Bedrooms: | 3 | | Ceiling: | TONGUE & GROOVE | Cooling: | HEAT PUMP/CONV/V | | Exterior Wall/Cover: | PLY/HARDBOARD T-111 | Floor Covering: | HARDWOOD/CARP 60-40 | | Floor Structure: | WOOD W/SUBFLOOR | Foundation: | CONCRETE BLOCKS | | Interior Finish: | DRYWALL PAINT | Plumbing Fixture Cnt: | 9 | | Roof Slope: | 3" IN 12" | Roof Structure/Cover: | BEAM BUILT-UP ROCK |
|
| | Type | Description | Class CD | Sub Class CD | Year Built | Area |
| | BAS | BASE/MAIN FLOOR | 3 | 0 | 1966 | 936.0 |
| | UB6 | BASEMENT UNFINISHED 6" | 3 | 0 | 1966 | 216.0 |
| | OWP | OPEN WOOD PORCH W/STEPS | 3 | 0 | 1966 | 312.0 |
| | DWN | DOWNSTAIRS LIVING AREA | 3 | 0 | 1966 | 720.0 |
Sketch
| No sketches available for this property. |
Property Image
Land
| 1 | 15 | SQ (12001-21780) | 0.5100 | 22215.60 | 0.00 | 0.00 | 1.00 | $250,000 | $0 |
Roll Value History
| 2026 | N/A | N/A | N/A | N/A | N/A |
| 2025 | $243,799 | $250,000 | $0 | $493,799 | $493,799 |
| 2024 | $213,423 | $230,000 | $0 | $443,423 | $443,423 |
| 2023 | $216,296 | $220,000 | $0 | $436,296 | $436,296 |
| 2022 | $198,454 | $210,000 | $0 | $408,454 | $408,454 |
| 2021 | $175,042 | $150,000 | $0 | $325,042 | $325,042 |
| 2020 | $170,751 | $140,000 | $0 | $310,751 | $310,751 |
| 2019 | $125,228 | $200,000 | $0 | $325,228 | $325,228 |
| 2018 | $121,499 | $180,000 | $0 | $301,499 | $301,499 |
| 2017 | $122,292 | $150,000 | $0 | $272,292 | $272,292 |
| 2016 | $123,880 | $135,000 | $0 | $258,880 | $258,880 |
| 2015 | $124,803 | $100,000 | $0 | $224,803 | $224,803 |
| 2014 | $123,405 | $120,000 | $0 | $243,405 | $243,405 |
| 2013 | $124,987 | $120,000 | $0 | $244,987 | $244,987 |
| 2012 | $109,944 | $121,500 | $0 | $231,444 | $231,444 |
| 2011 | $111,584 | $135,000 | $0 | $246,584 | $246,584 |
| 2010 | $121,222 | $135,000 | $0 | $256,222 | $256,222 |
| 2009 | $126,543 | $150,000 | $0 | $276,543 | $276,543 |
| 2008 | $128,214 | $150,000 | $0 | $278,214 | $278,214 |
| 2007 | $129,885 | $150,000 | $0 | $279,885 | $279,885 |
Deed and Sales History
| 1 | 08/03/2018 | QCD | Quit Claim Deed | SHERWOOD, GLEN R | SHERWOOD JR, GLEN R | | | $0.00 | 35513 | 4450080 |
| 2 | 05/03/2005 | 5 | DNU - Marriage License/Name Change | PALMQUIST, DENA M | SHERWOOD, GLEN R | | | $0.00 | 52349 | 4135459 |
| 3 | 12/01/1995 | QCD | Quit Claim Deed | PALMQUIST, DENA M | PALMQUIST, DENA M | | | $0.00 | 54496 | 95020734 |
| 4 | 09/01/1992 | QCD | Quit Claim Deed | PALMQUIST, DENA M | PALMQUIST, DENA M | | | $0.00 | 23863 | 92018675 |
| 5 | 01/01/1990 | DECREE | Divorce Decree/Legal Separation | GUIDRY, MARK S | PALMQUIST, DENA M | | | $0.00 | 300 | 90000855 |
| 6 | 05/01/1984 | OTHER | Other - Misc. Documents | PALMQUIST, JAMES D | GUIDRY, MARK S | | | $0.00 | 60600 | 424640 |
| 7 | 05/01/1984 | WD | Warranty Deed | GUIDRY, MARK S | PALMQUIST, JAMES D | | | $60,000.00 | 41499 | 425160 |
| 8 | 01/01/1900 | OTHER | Other - Misc. Documents | Unknown | GUIDRY, MARK S | | | $0.00 | 0 | 0 |
Payout Agreement
| No payout information available.. |