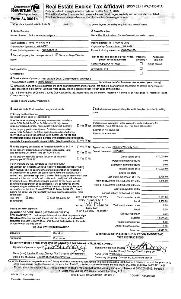
Property
Account |
| Property ID: | 388057 | Abbreviated Legal Description: | Shangri-la-shores - 2,s Lot 13, 18, 19 AND PT LOT 12,s Blk 3;s LOT A LOT COMB AF#4536235s |
| Geographic ID: | S8150-02-03013-0 | Agent Code: | |
| Type: | Real | | |
| Tax Area: | 310 - APPRAISER-Cpvl Schl Dist, outside Cpvl, improved & 1 acre or less | Land Use Code | 11 |
| Open Space: | N | DFL | N |
| Historic Property: | N | Remodel Property: | N |
| Multi-Family Redevelopment: | N | | |
| Township: | | Section: | |
| Range: | |
Location |
| Address: | 770 ARBOR DR COUPEVILLE, WA 98239 | Mapsco: | |
| Neighborhood: | Cycle 2 | Map ID: | 466 |
| Neighborhood CD: | 2 |
Owner |
| Name: | ELLSWORTH, CATHERINE G | Owner ID: | 11974 |
| Mailing Address: | PO BOX 83 COUPEVILLE, WA 98239-0083 | % Ownership: | 100.0000000000% |
| | | Exemptions: | |
Taxes and Assessment Details
Values
| (+) Improvement Homesite Value: | + | $0 | |
| (+) Improvement Non-Homesite Value: | + | $258,634 | |
| (+) Land Homesite Value: | + | $0 | |
| (+) Land Non-Homesite Value: | + | $250,000 | |
| (+) Curr Use (HS): | + | $0 | $0 |
| (+) Curr Use (NHS): | + | $0 | $0 |
| | | -------------------------- | |
| (=) Market Value: | = | $508,634 | |
| (–) Productivity Loss: | – | $0 | |
| | | -------------------------- | |
| (=) Subtotal: | = | $508,634 | |
| (+) Senior Appraised Value: | + | $0 | |
| (+) Non-Senior Appraised Value: | + | $508,634 | |
| | | -------------------------- | |
| (=) Total Appraised Value: | = | $508,634 | |
| (–) Senior Exemption Loss: | – | $0 | |
| (–) Exemption Loss: | – | $0 | |
| | | -------------------------- | |
| (=) Taxable Value: | = | $508,634 | |
Taxing Jurisdiction
| Owner: | ELLSWORTH, CATHERINE G | | |
| % Ownership: | 100.0000000000% | | |
| Total Value: | $508,634 | | |
| Tax Area: | 310 - APPRAISER-Cpvl Schl Dist, outside Cpvl, improved & 1 acre or less |
| CF | Conservation Futures | 0.0316035091 | $508,634 | $508,634 | $16.07 | | |
| CEM2 | Cemetery #2 | 0.0095056933 | $508,634 | $508,634 | $4.83 | | |
| FIRE5 | Fire & Rescue Dist #5 C Whidbey GEN | 1.2008080668 | $508,634 | $508,634 | $610.77 | | |
| FIRE5BOND | Fire & Rescue Dist #5 C Whidbey BOND | 0.1400090713 | $508,634 | $508,634 | $71.21 | | |
| HOBOND | Hospital BOND | 0.1910887512 | $508,634 | $508,634 | $97.19 | | |
| HOGEN | Hospital GEN | 0.3902502903 | $508,634 | $508,634 | $198.49 | | |
| CE | County Current Expense | 0.3708482477 | $508,634 | $508,634 | $188.63 | | |
| CR | County Roads | 0.4584763726 | $508,634 | $508,634 | $233.20 | | |
| ISLANDEMS | Hospital GEN (EMS) | 0.5000000000 | $508,634 | $508,634 | $254.32 | | |
| LIB | Library Sno-Isle GEN | 0.3153421757 | $508,634 | $508,634 | $160.39 | | |
| LIBCAP | Library Sno-Isle BOND (Cap Fac Imp Area) | 0.0543427938 | $508,634 | $508,634 | $27.64 | | |
| POCOUP | Port of Coupeville GEN | 0.1093371703 | $508,634 | $508,634 | $55.61 | | |
| POCOUPIDD | Port of Coupeville IDD | 0.3409740022 | $508,634 | $508,634 | $173.43 | | |
| COUPSDTECH | School 204 CP (TECH) | 0.7545480007 | $508,634 | $508,634 | $383.79 | | |
| SCH204MO | School 204 Enrichment | 0.6716186034 | $508,634 | $508,634 | $341.61 | | |
| ST | State School | 1.3035497053 | $508,634 | $508,634 | $663.03 | | |
| ST2 | State School Part 2 | 0.8169543533 | $508,634 | $508,634 | $415.53 | | |
| | Total Tax Rate: | 7.6592568070 | | | | | |
| | | | | Taxes w/Current Exemptions: | $3,895.74 | | |
| | | | | Taxes w/o Exemptions: | $3,895.74 | | |
Improvement / Building
| Improvement #1: | RESIDENTIAL | State Code: | Y | 898.2 sqft | Value: | $258,634 |
| Bathrooms: | 1 | Bedrooms: | 2 | | Ceiling: | TONGUE & GROOVE | Cooling: | HEAT PUMP/CONV/V | | Exterior Wall/Cover: | WOOD SIDING | Floor Covering: | HARDWOOD/CARP 60-40 | | Floor Structure: | WOOD W/SUBFLOOR | Foundation: | CONCRETE | | Interior Finish: | DRYWALL PAINT | Plumbing Fixture Cnt: | 6 | | Roof Slope: | 5" IN 12" | Roof Structure/Cover: | BEAM ALUMINUM HEAVY |
|
| | Type | Description | Class CD | Sub Class CD | Year Built | Area |
| | BAS | BASE/MAIN FLOOR | 3 | 0 | 1966 | 898.2 |
| | OWR | OPEN WOOD PORCH W/STEPS/ROOF | 3 | 0 | 1966 | 236.8 |
| | OWP | OPEN WOOD PORCH W/STEPS | 3 | 0 | 1966 | 283.8 |
| | oGAR | GARAGE | 4 | 0 | 2025 | 840.0 |
| | ATF | ATTIC FINISHED | 3 | 0 | 1966 | 450.0 |
| | ATU | ATTIC UNFINISHED | 3 | 0 | 1966 | 390.0 |
| | OWP | OPEN WOOD PORCH W/STEPS | 3 | 0 | 1966 | 84.0 |
| | OWP | OPEN WOOD PORCH W/STEPS | 3 | 0 | 1966 | 108.0 |
Sketch
| No sketches available for this property. |
Property Image
Land
| 1 | 16 | AC (00.51-01.00) | 0.8200 | 35719.20 | 0.00 | 0.00 | 1.00 | $250,000 | $0 |
Roll Value History
| 2026 | N/A | N/A | N/A | N/A | N/A |
| 2025 | $258,634 | $250,000 | $0 | $508,634 | $508,634 |
| 2024 | $215,925 | $230,000 | $0 | $445,925 | $445,925 |
| 2023 | $193,184 | $220,000 | $0 | $413,184 | $413,184 |
| 2022 | $0 | $210,000 | $0 | $210,000 | $210,000 |
| 2021 | $149,752 | $240,000 | $0 | $389,752 | $389,752 |
| 2020 | $146,056 | $140,000 | $0 | $286,056 | $286,056 |
| 2019 | $104,650 | $200,000 | $0 | $304,650 | $304,650 |
| 2018 | $99,880 | $180,000 | $0 | $279,880 | $279,880 |
| 2017 | $100,465 | $150,000 | $0 | $250,465 | $250,465 |
| 2016 | $101,770 | $135,000 | $0 | $236,770 | $236,770 |
| 2015 | $103,073 | $100,000 | $0 | $203,073 | $203,073 |
| 2014 | $104,378 | $95,000 | $0 | $199,378 | $199,378 |
| 2013 | $105,683 | $95,000 | $0 | $200,683 | $200,683 |
| 2012 | $105,745 | $121,500 | $0 | $227,245 | $227,245 |
| 2011 | $107,070 | $135,000 | $0 | $242,070 | $242,070 |
| 2010 | $112,298 | $135,000 | $0 | $247,298 | $247,298 |
| 2009 | $117,236 | $150,000 | $0 | $267,236 | $267,236 |
| 2008 | $107,358 | $136,638 | $0 | $243,996 | $243,996 |
| 2007 | $134,628 | $140,123 | $0 | $274,750 | $274,750 |
Deed and Sales History
| 1 | 12/14/2007 | BLA | DNU - Boundary Line Adjustment | ELLSWORTH, CATHERINE G | ELLSWORTH, CATHERINE G | | | $0.00 | 80519 | 4217322 |
| 2 | 07/01/1987 | WD | Warranty Deed | PINNELL, JOAN & | ELLSWORTH, CATHERINE G | | | $46,000.00 | 71901 | 87008785 |
| 3 | 01/01/1900 | OTHER | Other - Misc. Documents | Unknown | PINNELL, JOAN & | | | $0.00 | 0 | 0 |
Payout Agreement
| No payout information available.. |