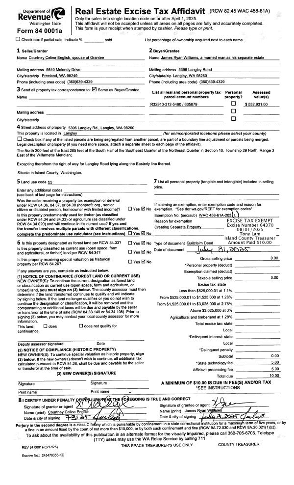
Property
Account |
| Property ID: | 388182 | Abbreviated Legal Description: | SHANGRI-LA SHORES #2 LOT 26 BLK 3 |
| Geographic ID: | S8150-02-03026-0 | Agent Code: | |
| Type: | Real | | |
| Tax Area: | 310 - APPRAISER-Cpvl Schl Dist, outside Cpvl, improved & 1 acre or less | Land Use Code | 11 |
| Open Space: | N | DFL | N |
| Historic Property: | N | Remodel Property: | N |
| Multi-Family Redevelopment: | N | | |
| Township: | | Section: | |
| Range: | |
Location |
| Address: | 796 SHANGRI-LA CIR COUPEVILLE, WA 98239 | Mapsco: | |
| Neighborhood: | Cycle 2 | Map ID: | 466 |
| Neighborhood CD: | 2 |
Owner |
| Name: | SURBER, STEWART D | Owner ID: | 252760 |
| Mailing Address: | 796 SHANGRI LA CIRCLE COUPEVILLE, WA 98239 | % Ownership: | 100.0000000000% |
| | | Exemptions: | |
Taxes and Assessment Details
Values
| (+) Improvement Homesite Value: | + | $0 | |
| (+) Improvement Non-Homesite Value: | + | $154,973 | |
| (+) Land Homesite Value: | + | $0 | |
| (+) Land Non-Homesite Value: | + | $190,000 | |
| (+) Curr Use (HS): | + | $0 | $0 |
| (+) Curr Use (NHS): | + | $0 | $0 |
| | | -------------------------- | |
| (=) Market Value: | = | $344,973 | |
| (–) Productivity Loss: | – | $0 | |
| | | -------------------------- | |
| (=) Subtotal: | = | $344,973 | |
| (+) Senior Appraised Value: | + | $0 | |
| (+) Non-Senior Appraised Value: | + | $344,973 | |
| | | -------------------------- | |
| (=) Total Appraised Value: | = | $344,973 | |
| (–) Senior Exemption Loss: | – | $0 | |
| (–) Exemption Loss: | – | $0 | |
| | | -------------------------- | |
| (=) Taxable Value: | = | $344,973 | |
Taxing Jurisdiction
| Owner: | SURBER, STEWART D | | |
| % Ownership: | 100.0000000000% | | |
| Total Value: | $344,973 | | |
| Tax Area: | 310 - APPRAISER-Cpvl Schl Dist, outside Cpvl, improved & 1 acre or less |
| CF | Conservation Futures | 0.0316035091 | $344,973 | $344,973 | $10.90 | | |
| CEM2 | Cemetery #2 | 0.0095056933 | $344,973 | $344,973 | $3.28 | | |
| FIRE5 | Fire & Rescue Dist #5 C Whidbey GEN | 1.2008080668 | $344,973 | $344,973 | $414.25 | | |
| FIRE5BOND | Fire & Rescue Dist #5 C Whidbey BOND | 0.1400090713 | $344,973 | $344,973 | $48.30 | | |
| HOBOND | Hospital BOND | 0.1910887512 | $344,973 | $344,973 | $65.92 | | |
| HOGEN | Hospital GEN | 0.3902502903 | $344,973 | $344,973 | $134.63 | | |
| CE | County Current Expense | 0.3708482477 | $344,973 | $344,973 | $127.93 | | |
| CR | County Roads | 0.4584763726 | $344,973 | $344,973 | $158.16 | | |
| ISLANDEMS | Hospital GEN (EMS) | 0.5000000000 | $344,973 | $344,973 | $172.49 | | |
| LIB | Library Sno-Isle GEN | 0.3153421757 | $344,973 | $344,973 | $108.78 | | |
| LIBCAP | Library Sno-Isle BOND (Cap Fac Imp Area) | 0.0543427938 | $344,973 | $344,973 | $18.75 | | |
| POCOUP | Port of Coupeville GEN | 0.1093371703 | $344,973 | $344,973 | $37.72 | | |
| POCOUPIDD | Port of Coupeville IDD | 0.3409740022 | $344,973 | $344,973 | $117.63 | | |
| COUPSDTECH | School 204 CP (TECH) | 0.7545480007 | $344,973 | $344,973 | $260.30 | | |
| SCH204MO | School 204 Enrichment | 0.6716186034 | $344,973 | $344,973 | $231.69 | | |
| ST | State School | 1.3035497053 | $344,973 | $344,973 | $449.69 | | |
| ST2 | State School Part 2 | 0.8169543533 | $344,973 | $344,973 | $281.83 | | |
| | Total Tax Rate: | 7.6592568070 | | | | | |
| | | | | Taxes w/Current Exemptions: | $2,642.25 | | |
| | | | | Taxes w/o Exemptions: | $2,642.25 | | |
Improvement / Building
| Improvement #1: | RESIDENTIAL | State Code: | Y | 1008.0 sqft | Value: | $154,973 |
| Bathrooms: | 1 | Bedrooms: | 3 | | Ceiling: | DRYWALL PAINTED | Exterior Wall/Cover: | WOOD SIDING | | Floor Covering: | CARPET/VINYL 80-20 | Floor Structure: | WOOD W/SUBFLOOR | | Foundation: | CONCRETE | Heating: | FHA ELECTRIC | | Interior Finish: | DRYWALL PAINT | Plumbing Fixture Cnt: | 6 | | Roof Slope: | 8" IN 12" | Roof Structure/Cover: | CJ ASPHALT |
|
| | Type | Description | Class CD | Sub Class CD | Year Built | Area |
| | BAS | BASE/MAIN FLOOR | 3 | 0 | 1970 | 672.0 |
| | OWP | OPEN WOOD PORCH W/STEPS | 3 | 0 | 1970 | 64.0 |
| | UPH | HALF STORY | 3 | 0 | 1970 | 336.0 |
| | OWP | OPEN WOOD PORCH W/STEPS | 3 | 0 | 1970 | 480.0 |
| | oCAR | CARPORT | 3 | 0 | 2024 | 144.0 |
| | oUTI | UTILITY | 4 | 0 | 2024 | 192.0 |
Sketch
| No sketches available for this property. |
Property Image
Land
| 1 | 14 | SQ (08001-12000) | 0.2330 | 10149.48 | 0.00 | 0.00 | 1.00 | $190,000 | $0 |
Roll Value History
| 2026 | N/A | N/A | N/A | N/A | N/A |
| 2025 | $154,973 | $190,000 | $0 | $344,973 | $344,973 |
| 2024 | $133,763 | $190,000 | $0 | $323,763 | $323,763 |
| 2023 | $135,947 | $180,000 | $0 | $315,947 | $315,947 |
| 2022 | $125,077 | $170,000 | $0 | $295,077 | $295,077 |
| 2021 | $110,483 | $140,000 | $0 | $250,483 | $250,483 |
| 2020 | $108,044 | $120,000 | $0 | $228,044 | $228,044 |
| 2019 | $77,994 | $155,000 | $0 | $232,994 | $232,994 |
| 2018 | $78,289 | $135,000 | $0 | $213,289 | $213,289 |
| 2017 | $78,877 | $115,000 | $0 | $193,877 | $193,877 |
| 2016 | $80,055 | $115,000 | $0 | $195,055 | $195,055 |
| 2015 | $81,232 | $90,000 | $0 | $171,232 | $171,232 |
| 2014 | $82,409 | $55,000 | $0 | $137,409 | $137,409 |
| 2013 | $83,586 | $55,000 | $0 | $138,586 | $138,586 |
| 2012 | $67,858 | $76,500 | $0 | $144,358 | $144,358 |
| 2011 | $68,971 | $85,000 | $0 | $153,971 | $153,971 |
| 2010 | $75,910 | $85,000 | $0 | $160,910 | $160,910 |
| 2009 | $79,287 | $100,000 | $0 | $179,287 | $179,287 |
| 2008 | $79,287 | $100,000 | $0 | $179,287 | $179,287 |
| 2007 | $80,400 | $100,000 | $0 | $180,400 | $180,400 |
Deed and Sales History
| 1 | 11/29/2010 | QCD | Quit Claim Deed | SURBER, STEWART D | SURBER, STEWART D | | | $0.00 | 3000 | 4285991 |
| 2 | 10/01/1989 | WD | Warranty Deed | SNYDER, JERRY M | SURBER, STEWART D | | | $52,900.00 | 94769 | 89015520 |
| 3 | 04/01/1982 | TRUSTEED | Trustee's Deed | NODELL, WILLIAM R | SNYDER, JERRY M | | | $47,000.00 | 20957 | 395579 |
| 4 | 01/01/1900 | OTHER | Other - Misc. Documents | Unknown | NODELL, WILLIAM R | | | $0.00 | 0 | 0 |
Payout Agreement
| No payout information available.. |