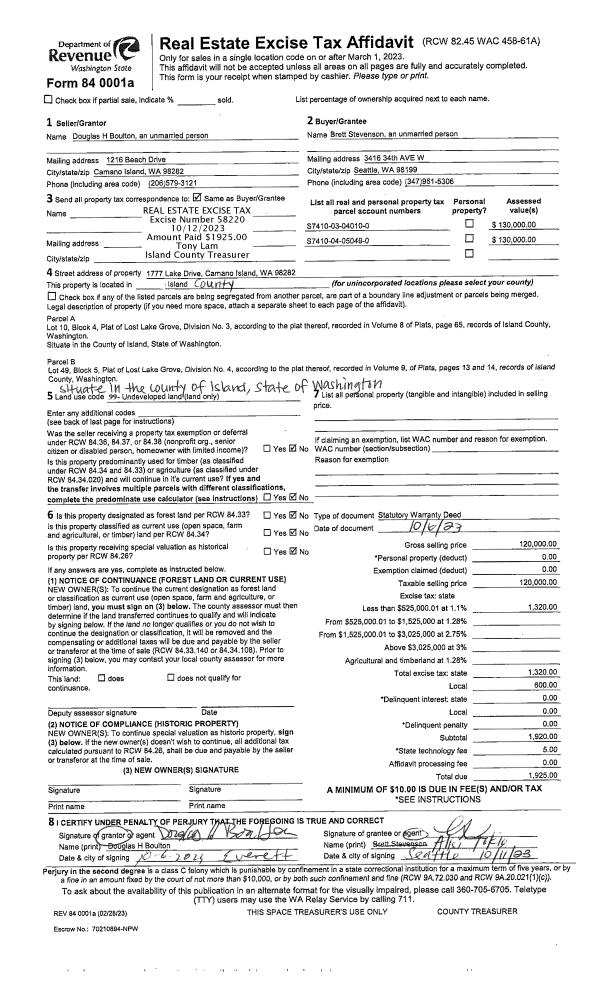
Property
Account |
| Property ID: | 38827 | Abbreviated Legal Description: | 42 - IN E/2 SW SE EX TL 51,52 |
| Geographic ID: | R13328-031-3600 | Agent Code: | |
| Type: | Real | | |
| Tax Area: | 119 - APPRAISER-OH Schl Dist, outside OH, vacant & 50 acres or less | Land Use Code | 91 |
| Open Space: | N | DFL | N |
| Historic Property: | N | Remodel Property: | N |
| Multi-Family Redevelopment: | N | | |
| Township: | 33 | Section: | 28 |
| Range: | R1 |
Location |
| Address: | | Mapsco: | |
| Neighborhood: | Cycle 6 | Map ID: | 239 |
| Neighborhood CD: | 6 |
Owner |
| Name: | MEYERS, ROGER F | Owner ID: | 190317 |
| Mailing Address: | MARIE R MEYERS PO BOX 447 OAK HARBOR, WA 98277-0447 | % Ownership: | 100.0000000000% |
| | | Exemptions: | |
Taxes and Assessment Details
Values
| (+) Improvement Homesite Value: | + | $0 | |
| (+) Improvement Non-Homesite Value: | + | $0 | |
| (+) Land Homesite Value: | + | $0 | |
| (+) Land Non-Homesite Value: | + | $17,000 | |
| (+) Curr Use (HS): | + | $0 | $0 |
| (+) Curr Use (NHS): | + | $0 | $0 |
| | | -------------------------- | |
| (=) Market Value: | = | $17,000 | |
| (–) Productivity Loss: | – | $0 | |
| | | -------------------------- | |
| (=) Subtotal: | = | $17,000 | |
| (+) Senior Appraised Value: | + | $0 | |
| (+) Non-Senior Appraised Value: | + | $17,000 | |
| | | -------------------------- | |
| (=) Total Appraised Value: | = | $17,000 | |
| (–) Senior Exemption Loss: | – | $0 | |
| (–) Exemption Loss: | – | $0 | |
| | | -------------------------- | |
| (=) Taxable Value: | = | $17,000 | |
Taxing Jurisdiction
| Owner: | MEYERS, ROGER F | | |
| % Ownership: | 100.0000000000% | | |
| Total Value: | $17,000 | | |
| Tax Area: | 119 - APPRAISER-OH Schl Dist, outside OH, vacant & 50 acres or less |
| CF | Conservation Futures | 0.0316035091 | $17,000 | $17,000 | $0.54 | | |
| CEM1 | Cemetery #1 | 0.0040320932 | $17,000 | $17,000 | $0.07 | | |
| HOBOND | Hospital BOND | 0.1910887512 | $17,000 | $17,000 | $3.25 | | |
| HOGEN | Hospital GEN | 0.3902502903 | $17,000 | $17,000 | $6.63 | | |
| CE | County Current Expense | 0.3708482477 | $17,000 | $17,000 | $6.30 | | |
| CR | County Roads | 0.4584763726 | $17,000 | $17,000 | $7.79 | | |
| ISLANDEMS | Hospital GEN (EMS) | 0.5000000000 | $17,000 | $17,000 | $8.50 | | |
| LIB | Library Sno-Isle GEN | 0.3153421757 | $17,000 | $17,000 | $5.36 | | |
| NWHIDPRMT | P & R N Whidbey GEN | 0.2004466701 | $17,000 | $17,000 | $3.41 | | |
| SCH201MO | School 201 Enrichment | 1.8559231640 | $17,000 | $17,000 | $31.55 | | |
| ST | State School | 1.3035497053 | $17,000 | $17,000 | $22.16 | | |
| ST2 | State School Part 2 | 0.8169543533 | $17,000 | $17,000 | $13.89 | | |
| | Total Tax Rate: | 6.4385153325 | | | | | |
| | | | | Taxes w/Current Exemptions: | $109.45 | | |
| | | | | Taxes w/o Exemptions: | $109.45 | | |
Improvement / Building
Sketch
| No sketches available for this property. |
Property Image
Land
| 1 | 15 | SQ (12001-21780) | 0.4900 | 21344.40 | 0.00 | 0.00 | 1.00 | $17,000 | $0 |
Roll Value History
| 2026 | N/A | N/A | N/A | N/A | N/A |
| 2025 | $0 | $17,000 | $0 | $17,000 | $17,000 |
| 2024 | $0 | $17,000 | $0 | $17,000 | $17,000 |
| 2023 | $0 | $9,000 | $0 | $9,000 | $9,000 |
| 2022 | $0 | $9,000 | $0 | $9,000 | $9,000 |
| 2021 | $0 | $7,000 | $0 | $7,000 | $7,000 |
| 2020 | $0 | $7,000 | $0 | $7,000 | $7,000 |
| 2019 | $0 | $7,000 | $0 | $7,000 | $7,000 |
| 2018 | $0 | $7,000 | $0 | $7,000 | $7,000 |
| 2017 | $0 | $7,000 | $0 | $7,000 | $7,000 |
| 2016 | $0 | $7,224 | $0 | $7,224 | $7,224 |
| 2015 | $0 | $7,224 | $0 | $7,224 | $7,224 |
| 2014 | $0 | $7,224 | $0 | $7,224 | $7,224 |
| 2013 | $0 | $7,224 | $0 | $7,224 | $7,224 |
| 2012 | $0 | $7,224 | $0 | $7,224 | $7,224 |
| 2011 | $0 | $7,224 | $0 | $7,224 | $7,224 |
| 2010 | $0 | $7,224 | $0 | $7,224 | $7,224 |
| 2009 | $0 | $8,400 | $0 | $8,400 | $8,400 |
| 2008 | $0 | $8,400 | $0 | $8,400 | $8,400 |
| 2007 | $0 | $8,470 | $0 | $8,470 | $8,470 |
Deed and Sales History
| 1 | 05/23/2003 | WD | Warranty Deed | MEYERS, ROGER F | MEYERS, ROGER F | | | $2,415.00 | 33926 | 4073587 |
| 2 | 05/22/2003 | WD | Warranty Deed | MEYERS, LOIS M | MEYERS, ROGER F | | | $2,415.00 | 32202 | 4060320 |
| 3 | 01/01/1900 | OTHER | Other - Misc. Documents | Unknown | MEYERS, LOIS M | | | $0.00 | 0 | 0 |
Payout Agreement
| No payout information available.. |